매거진 건축도감

리버티 라운지

심플렉스 건축사사무소 Simplec Architecture

by 한씨

1. 대지 특징

리버티 라운지는 서울 강남구의 도산대로에서 몇 블록 떨어진 골목에 위치하고 있다. 과거 저층 주거 지역이었으나, 현재는 상업 지역으로 급변하고 있으며, 상점과 레스토랑이 밀집한 지역이다. 이 지역의 변화는 리버티 라운지 건축물의 설계에 큰 영향을 미쳤으며, 현대적인 요구와 상업적 특성을 반영한 공간 구성이 필요했다.


2. 건축적 특징

- 기존 재료의 유지

기존 건물의 재료성과 스타일을 보존하면서 새로운 프로그램을 수용하는 것이 중요한 설계 요소였다. 북쪽의 콘크리트 블록 벽은 원래 건물의 특성을 그대로 유지하고, 흑색 강철은 새로 추가된 벽에 사용되어 재료의 일관성을 유지하면서도 현대적인 변화를 더했다.


- 확장과 기울기

기존 2층 건물에서 3층으로 확장되어 건폐율은 59.74%, 용적률은 118.97%로 증가했다. 북동쪽 모서리의 높이 제한을 반영해 3층 매스는 2층 매스에서 기울어져 삼각형 발코니가 형성됐다. 이 기울기는 공간적인 변화를 시각적으로 강조하는 효과를 준다.


- 금속 메시 커튼

동쪽 주요 파사드는 금속 메시 커튼으로 덮여 있으며, 여러 개의 반원 형태로 구성된 곡선 패턴을 따른다. 이 메시 커튼은 단단하면서도 유연한 소재로, 건물 외벽을 장식하며 공간을 보호하는 기능을 한다.


- 다채로운 LED 조명

금속 메시 커튼은 파사드 하단에 다채로운 LED 조명을 설치하여 야간에 곡선 형태를 강조한다. LED 조명은 건축물의 특성을 다채롭게 표현하며, 주변 환경과 시각적으로 상호작용하는 방식으로 디자인되었다.


- 외부와 내부의 경계

금속 메시 커튼은 내부 공간과 외부 공간을 완전히 분리하며, 확산 층을 형성한다. 이를 통해 건축물의 외부와 내부가 명확하게 구분되며, 파사드의 모호한 특성이 강조된다.


image-asset.jpg
image-asset.jpg
image-asset.jpg
image-asset.jpg
image-asset.jpg
image-asset.jpg
image-asset.jpg
image-asset.jpg
image-asset.jpg
image-asset.jpg
image-asset.jpg
image-asset.jpg
image-asset.jpg
image-asset.jpg
image-asset.jpg
다이어그램
image-asset.jpg
image-asset.jpg
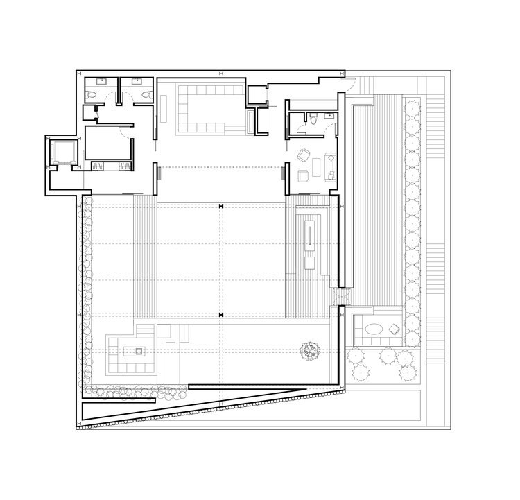
1층 평면도 ㅣ 2층 평면도
image-asset.jpg
image-asset.jpg
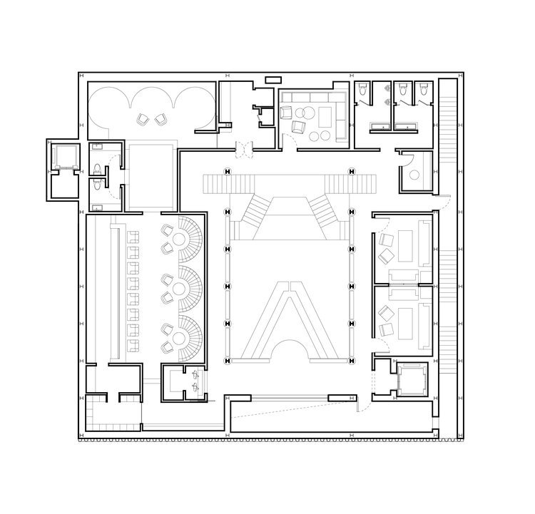
3층 평면도 ㅣ 지붕 평면도
image-asset.jpg
image-asset.jpg
남북 구간 ㅣ 동서 섹션


사진 출처: SIMPLEX ARCHITECTURE

keyword
매거진의 이전글이사부 독도 기념관