상가주택 '세정원' (가칭)

과천지식정보타운 내 점포주택 계획안

by 보통의 건축가

상가주택 계획을 시작하는 단계에서 우린 가급적 다양한 가능성을 탐색한다.

모든 경우의 수를 열어 놓고 집을 어떻게 앉힐 것인가를 고민한다.

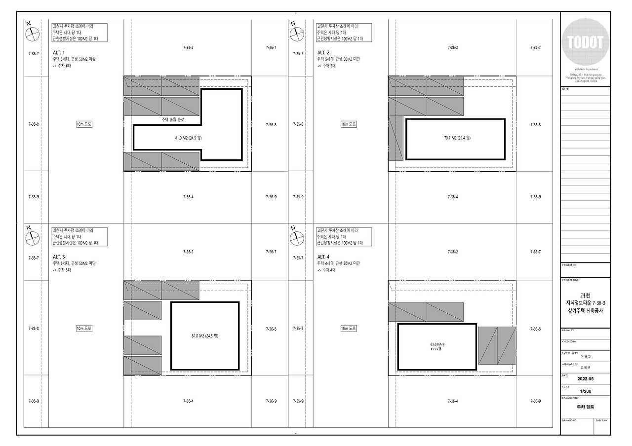
세대수와 계단실의 위치와 주차의 관계는 서로 얽혀 있어서, 다양한 조건을 반영한 조합은

깊은 고민이 필요하다.

주차검토.jpg

주차에 대한 여러 경우의 수를 탐색하고


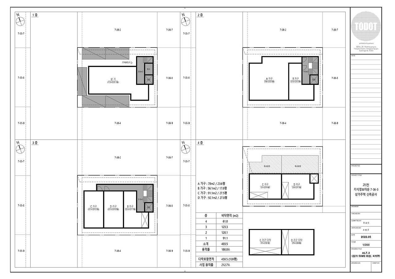
집의 배치.jpg

세대의 구성과 코어 위치에 대한 대안을 살펴본 후


01.jpg
02.jpg
03.jpg

그것을 통합한 세 개의 대안을 마련했다.

각각의 대안에 대해 장, 단점을 건축주에게 설명하고 협의해나간다.

이때가 건축주와 우리의 고민이 우물같이 깊을 때이다.

결정이 신중해야 하므로 이 세 가지 대안 외의 가능성도 탐색하는 시간을 가진다.


선택은 결국 건축주의 몫이다.

건축주가 이 집에 기대하는 가치는 우리가 지향하는 가치와 다를 수 있으므로 우리의 지향을 강요할 수는 없다.

흔들림 없는 선택이 될 수 있도록 곁에서 우리의 몫을 다하고 도움을 드리는 것이 우리의 역할이고

진심의 시간으로 신뢰를 구축하는 것이 이 과정의 목표인 것이다.


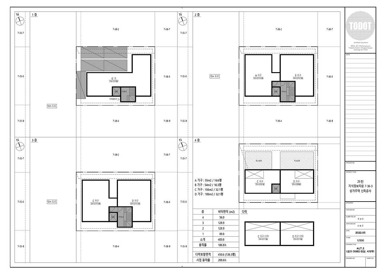
계획의 방향은 세 번째 대안이 변형된 형태로 결정되었다.

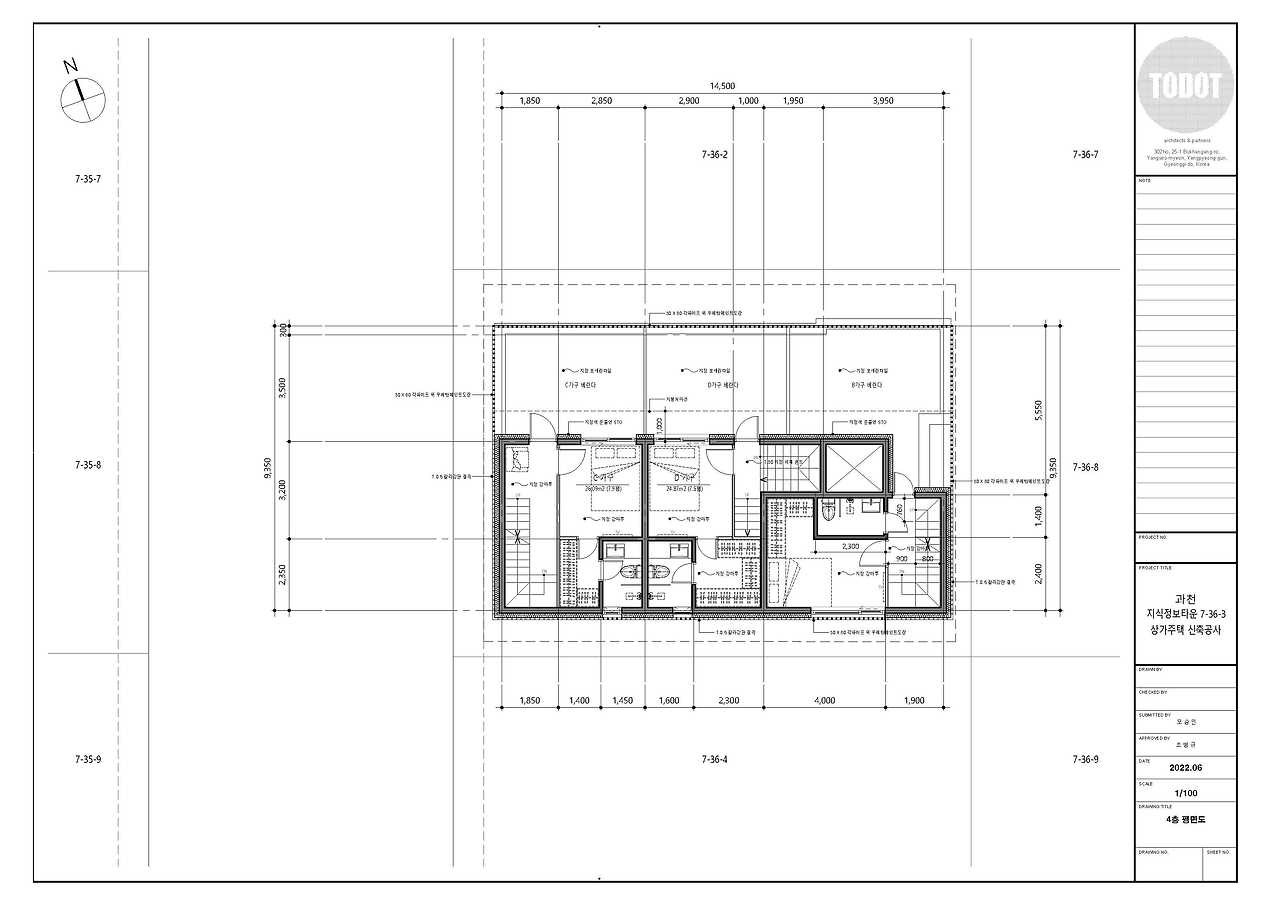
부모님과 1명의 자녀가 살게 될 집은 2층에 플랫 한 타입으로, 나머지 3개의 임대세대는 복층의 구조를 적용해 모두 옥상정원과 다락을 갖는 형태이다.



Image1_000.jpg


Image2_001.jpg


베란다는 들어 올려진 정원이고 마당이다.

마당은 단독주택에서 살고 싶은 사람들이 가장 바라는 것들 중의 하나가 아닐까 싶다.

일조사선제한으로 만들어지는 4층의 베란다는 비록 접지된 마당은 아니지만 충분히 매력적인 외부공간이다.

그래서 보통은 4층의 주인세대가 전유하게 된다.


초기 계획 안은 2층에 넓은 베란다를 둔 주인세대를 배치하고 나머지 3세대를 2개 층 복층, 또는 3개 층 복층으로 구성하여 임대세대에게 독립된 베란다를 제공하는 것이었다.

이렇게 하면 환경은 조금 다르지만 자연과 만나는 외부 공간을 전세대 모두 누릴 수 있게 된다.

하지만 설계를 진행하는 과정에서 내부 공간의 면적이 더 필요한 주인세대는 베란다를 삭제할 수밖에 없었다.

아쉽지만 이 또한 건축주의 선택이다.

선택을 할 수 있도록 여지를 만들었지만 현실과 타협할 수밖에 없는 건축주의 의견을 존중하고 그런 여지를 만들어 줬음에도 받아들이지 못한 건축주의 미안함으로 충분하다.


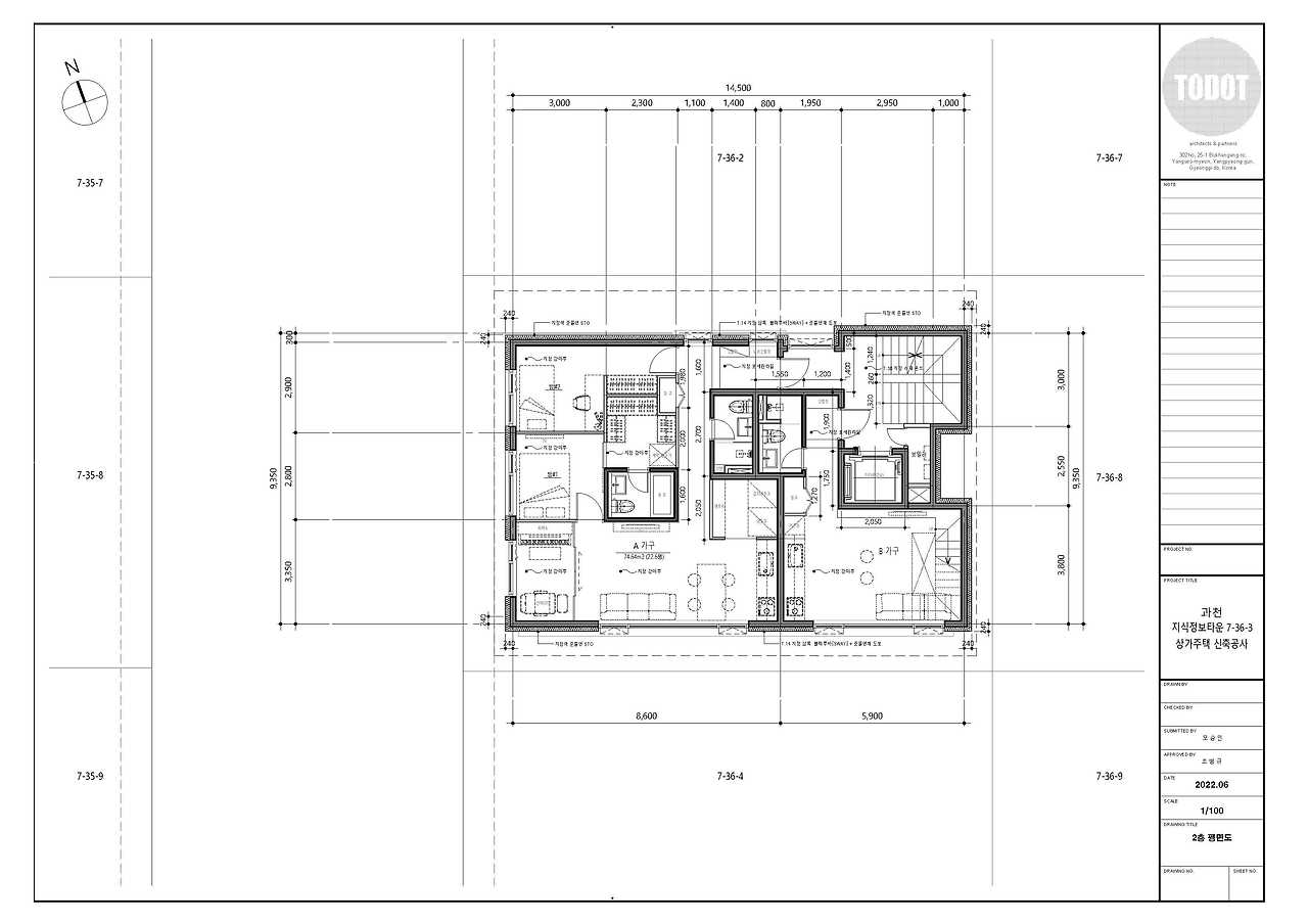
2층.jpg A 가구 : 주인세대 B 가구 : 복층(3개층) 임대세대


3층.jpg C 가구 : 복층(2개층) 임대세대 D 가구 : 복층(2개층) 임대세대


4층.jpg 4층 베란다는 B,C,D 세대 모두에게 제공된다.



투닷이 그간 작업했던 상가주택에서 주택의 창은 세로로 긴 비율의 창이 많았다.

세로로 긴 비율의 창은 도시 주거에서 잘 보지 못하는 낯설음의 특이성을 가지기도 하지만 주변의 집들과 가까이 위치한 상황에서 일조의 시간을 연장하는 장점을 가지고 있다.

세로 창이 극단적으로 적용된 예가 향동 상가주택 '커튼콜'의 경우다.

web _DSA4223.jpg 향동 상가주택 '커튼콜'


도시 주거에서 세로 창의 장점은 그 외에도 여러 가지가 있겠지만 안타깝게도 하나의 단점이 존재한다.

그 단점은 가구 배치에 제약을 줄 수 있다는 것이다.

바닥부터 천정까지 열려 있기에 책상이나 침대, 책상 등이 자리 잡을 위치를 제한하게 된다.


'세정원'은 집을 앉히는 데에 있어 인접대지와 최대한 이격 하였다.

정북 방향의 인접대지와는 일조사선으로 인해 1.5M 이상 이격 되어있고 아마도 북쪽의 건축물 또한 방화유리창의 설치 문제로 1.5M 이상 이격 할 공산이 크다.

남쪽의 인접대지와도 1.5M 이상 이격 한 상태다.

그렇다면 인접 건물과 3M 정도의 이격거리가 생기게 된다.

가로로 긴 창을 적용해 볼 최소의 조건은 갖추어진다고 봤다.

바닥에서 90CM 올라간 위치에서 가로로 긴 창을 거실과 침실에 적용하였다.

소파나 책상, 침대의 위치에 제한을 두지 않기 위함이기도 하고 빛이 공간을 확장시키는 감각을 체험할 수 있도록 하기 위함이기도 하다.



'세정원'(가칭)은 아직 갈 길이 멀다.

그 긴 여정에 잠시 다리쉼을 하며 지나온 길을 되짚는 중이다.



keyword