brunch

전원주택 , 행복한 집짓기의 여정 - 너에게 가는 길

너에게 가는 길

by 보통의 건축가

너에게 가마! 나에게 오라!

소설의 제목처럼 운명처럼 나에게 왔으니, 이제는 너에게 가는 길이 남았다. 그 첫발은 땅을 보러 가는 것이었다. 그때 블로그의 기록은 이렇다.


여주 집이 자리할 땅을 보러 왔다.

편안해 보이는 땅이다. 평평한 너른 논에 일곱 집이 들어설 예정인데, 저마다 땅을 높이려 들면 어쩌나 싶다. 함께 기대며 살자고 모이신 분들이니 기우일 수도 있겠다.

수평으로 눈이 닿는 곳에는 인삼밭과 농막과 비닐하우스가 들어온다. 좀 아쉬운 부분이다. 그래도 눈을 살짝 들면 삼면을 둘러싼 키 큰 소나무 숲이 보이고 남쪽 들판으로는 효종대왕릉이 자리한 나지막한 구릉이 편안하다. 몸을 편안히 받아주는 푹신한 소파에 몸을 기대고 바라보는 시선에 저 솔숲과 구릉이 들어오면 좋겠다는 상상을 해본다. 오늘같이 따뜻한 날, 창문을 열었을 때 솔잎 부딪는 소리가 들리면 더 좋을 테고.


첫 미팅을 앞두고, 영성, 따뜻함, 진실을 화두로 던지신 사모님의 마음에 어찌 다가갈지 고민하는 시간이 꽤 길었다. 두 분의 생활을 기능적으로 담아내는 집이 목표가 아니었기에 시작이 더 조심스러웠다. 거짓 없이 바르기 위해서는 눈을 현혹하는 형태와 장식이 과하면 안 될 것이었다.

따뜻함이란 집 온도가 높은 집이 아닌 마음의 온도가 높은 집일 것이다.

영성은? 솔직히 종교가 없는 내게는 와 닿지 않는 말이었다. 그룸은 영성을 “모든 인간의 머리, 가슴, 손을 쓰는 통전적인 일이며, 온전한 삶의 방식”이라 했고, 그리피스는 “우주 전체를 지배하며 관통하는 보편성과 인간이 일치되는 지점으로, 인간 초월의 지점이며, 무한과 유한이 일시적인 것과 영원한 것이, 다수와 하나가 만나고 접촉하는 지점”으로 정의 내렸다.

알쏭달쏭한 정의인데, 나는 이것을 ‘집은 나와 세상이 합일되는 곳’으로 이해하기로 했다. 나를 온전히 담으면 세상을 담는 것과 같으므로 집은 오히려 면적에서 자유로울 것이었다. 이런 생각이 하나로 모여 생각난 단어는 ‘고졸함’이었다.

잔재주를 부리기보다는 집이 땅에 원래부터 있던 듯, 여주의 완만한 들판을 닮은 집이 자연스럽게 내려앉고 두 분과 함께 나이 먹어 시김 되면 좋겠다는 생각이 들었다. 이제 시작이니 너무 섣부른 마음일 수도 있겠다.

이것으로 두 분과 집에 관한 이야기를 시작하는 것에 의미를 두기로 했다.


2-01.jpg


첫 미팅을 마치고 사모님은 장문의 메일을 보내오셨다.


(2021년 4월 4일)

소장님께

첫 그림 미팅을 마치고 돌아와 편지를 씁니다. 어제는 앞집에 살 친구네와 함께 농막에서 이른 아침부터 씨감자와 삼채, 초석잠을 심고, 표고버섯과 느타리버섯 종균을 나무에 심고, 밤까지 집 이야기를 하느라 이제야 답을 드립니다.

무엇보다 먼저, 첫 그림을 보여주셨는데 정작 가장 중요한 말씀을 드리지 못했습니다.

“우리 집을 이렇게 고민하고 탄생시켜주셔서 고맙습니다.”

사무실을 나와서야 이 말씀을 드리지 못했다는 것을 알아차렸습니다. ‘본격적인 만남에서 이 중요한 감상을 전하지 못하고 도대체 무슨 말들을 한 거야?’ 하니 민망해졌습니다. 집을 설계하는 건 난생처음이라 건축사 사무실도 익숙하지 않고, 묻는 말 외에 무슨 말을 어떻게 해야 할지 몰라서 어리둥절했습니다. 겨우 “제가 원하는 걸 다 담으셨던데요.” 정도로 제 상태를 표현했습니다. 화장실에 대해서 저도 의견이 있었는데, 제가 아무 말 하지 못하고 있으니 남편이 나서서 의견을 말했잖아요. 제 의견은 남편과 조금 달랐는데, 남편이 짚은 점에 어느 정도 수긍해서 가만히 있었어요. 그런 장면을 돌아보니 제가 입학 첫날 등교한 학생 같았더군요.

소장님이 저희에게 보여주신 첫 그림을 마음에 들지 않아 할까 봐 걱정하셨다는 말씀, 끝에 가서야 이대로 진행해도 되겠는지 물으시는 모습을 떠올리며 그저 빙긋 웃고 있습니다. 이제 탄생한 여주 집을 보니 재미있습니다. 저 혼자 찾아보고 상상하던 때보다 사뭇 즐거운 것은 전적으로 소장님 덕분입니다. 앞으로 이 집을 조심조심, 조곤조곤 키우는 과정이 또 얼마나 재미있을까 기대됩니다.

블로그에 첫 그림을 올려주셨을 때, 다른 때와 달리 바로 ‘좋아요’를 하지 못하고 보고 또 보았습니다. 그 집에서 사는 모습을 그려보려고 애썼지요. 제가 원하는 집의 요소들을 찾아보고 설레기도 하고, 뭐가 부족한 게 없나 실체 없는 걱정도 했습니다. 그날 밤은 흥분해서 일찍 잠들지 못했습니다. 다음 날도, 그다음 날도 아침저녁으로 이리 보고 저리 보았지요. 게스트룸을 방 두 개로 나눌 수 있으면 좋겠다, 옷과 침구는 어디에 넣을까, 숨을 구석은 어디일까, 다락인가 2층인가, 탁구장은 아마 나중에 선룸 같은 전이공간으로 생각하시나보다, 동서남북 마당과 가운데 마당의 크기는 얼마나 될까, 앞마당이 좀 길었으면 좋겠네 하면서요. 남편은 잘 모르겠다면서 “소장님을 만나서 이야기를 들으면 알겠지” 하고는 별 말이 없었답니다. 그제 소장님과 이야기하면서 보니 화장실 외에는 불편함이 없고, 설계의 콘셉트를 이해하고 수용하는 줄 알았는데, 돌아와서 이야기하니 화장실을 해결하려면 ㄱ자 집에 별채(게스트룸) 정도가 어떤가 하는 의견을 말해서 소장님이 다 알아서 해주실 거라고, 다음을 기다려보자고 했습니다. 저는 복도에 끌립니다. 겨울날 대청 마루방 분합문 앞에서 볕을 쪼이던 어린 저를 위해 만드셨구나 생각했습니다. 제가 좋아하는 후배는 여주 집 그림을 보고 복도에서 영성을 느낀다고 했답니다. 다음 그림에서 복도가 어떻게 될지 기대보다 걱정이 앞섭니다.

집 이름은 남편에게 부탁했습니다. 우리 집은 고졸한 집, 도연명의 집이니, 수졸당이 어떠냐 하기에 그 이름은 너무 많이들 써서 안 된다고 퇴짜를 놓았습니다. 남편은 퇴짜에도 굴하지 않고 도연명의 집답게 벚나무보다 매화나무를 심자면서 정원을 ‘졸정원’이라고 하면 어떨까, 별채는 외손녀인 ‘서하’의 이름을 따서 ‘서하재’-서쪽 노을 서재, 본채는 친손주 두 아이의 이름인 ‘동율’과 ‘지인’에서 한 자씩 따서 ‘동인당’이 어떠냐, 그럼 6월과 7월에 태어나는 아이들이 서운해하지 않을까, 이 아이들 이름까지 생기면 그때 짓자 등등 귀차니스트께서 집 이름 짓기를 부지런히 하고 있습니다. 전에 말씀드렸듯이 남편은 집에 욕심이 없는 사람이라 제가 책을 읽고 영상을 보고 말해도 별 반응을 하지 않았거든요. 그래서 남편의 이런 모습이 신기방기, 신통방통합니다.

친구네는 서쪽으로 붙일 거라고 합니다. 단층에 다락방을 올린 본채는 가로 7m 세로 13m 정도로 저희 경계에서 2m 떼어 앉히고, 별채를 본채 앞에 서쪽으로 6평 놓을 계획이라고 합니다. 설계하시면서 저희나 집에 대한 정보가 더 필요하면 말씀해주세요.

그제 저희를 무어라 부를지 갸웃하는 모습을 보면서 남편과 이야기해보았는데, 그냥 소장님이 편하신 대로 사장님, 사모님이든 할아버지 할머니든 저희는 좋습니다. 부담 없이 들으시기를 바랍니다.

고백 하나. 그제 미팅에서 가장 인상 깊은 것은 ‘제가 너무 진지해서 부담을 가졌다’라는 말씀이었습니다.

‘맞다. 나 원하는 게 생기면 엄청 집착하지! 그게 어렵든 쉽든 생각할 수 있는 건 다 꺼내서 어떻게든 해보려고 하지! 옛날엔 더했지! 요즘은 덜한 줄 알았는데 그건 내 착각이었나?’

그 말을 듣고 제가 집에 대해서뿐만 아니라 관심 있는 일에 대해 아직도 엄청 진지하고 온갖 생각을 다 한다는 걸 확실히 깨달았다니까요. 그런데 이제까지 저에게 직접 이렇게 말해준 사람은 없었던 것 같아요. 남편은 몇 번 말했을 텐데 제가 달라지지 않으니 ‘그래 나만 귀찮게 하지 마라’ 했을 거예요. 그런데 소장님의 말씀은 그냥 지나가지 않았어요. 이제야 철드나 봐요. 무엇보다도 이제까지 나의 진지함이 다른 사람을 많이 부담스럽게 했겠구나 하는 걸 깨달았답니다. (그다음 전개는 생략합니다.)

이렇게 여주 집은 들어가 살기도 전에 저를 가르칩니다. 여주 집과 소장님께 고맙습니다. 여주 집이, 소장님이 점점 좋아지는 건 덤입니다.


이 얼마나 사랑스러운 고백인가. 이 얼마나 힘이 되는 글인가. 건축가는 건축주에게 존중받을 때, 신뢰를 보여줄 때 만랩이 된다.

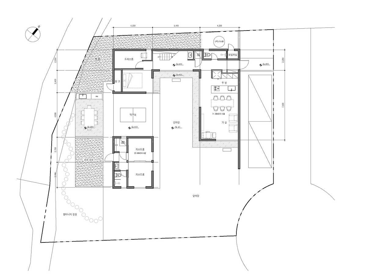
두 번째 미팅을 준비하며, 안마당을 중심에 두고 ㄷ자로 집을 배치하는 것은 유지하되 곡면의 평면 형태를 직선으로 변경했다. 사모님께서 여주 집이 들어가 살기도 전에 당신을 가르쳤다고 깨닫듯 나 역시 형태에 집착해 멋을 부린 나 자신을 나무라며, 여주 집에 겸손해지기로 했다. 면적을 알뜰하게 사용해야 하는 작은 집에서 곡선은 사치다. 형태보다는 안채와 별채, 안마당과 대청마루, 거실과 주방 공간에서 두 분이 벌일 사건, 상황 등에 집중하고 그 사건 속에서 느끼는 영성, 따뜻함에 집중하기로 했다. 그 감정이 곧 여주 집 자체가 되어야 하므로.

별채는 게스트룸을 2개 배치하고 측면의 화장실을 공동으로 사용하게 계획했다. 게스트룸 하나는 사모님을 위한 방이고 나머지 하나는 자녀들이 놀러 왔을 때 머무를 방으로 예정했다. 자녀가 둘이니 동시에 오는 경우를 가정해서 다락을 계획했다. 안방과 거실, 주방을 연결하는 복도를 확장해서 다락으로 올라가는 계단을 두고, 계단은 두 분이 좋아하는 책을 꽂아두는 책꽂이를 겸하면 좋을 듯했다.

뒷사람을 위해 남기고 싶은 공간은 탁구대가 놓이는 공간과 겸하게 계획했지만, 이런저런 실을 배치하다 보니 제한된 20%의 건폐율을 넘겨야 하는 상황이 되었다. 고민이었다. 두 분과 이 고민을 같이 나누기로 하고 어느 화창한 봄날에 두 번째 미팅을 진행했다.


2-02.jpg


keyword
이전 01화전원주택, 행복한 집짓기의 여정 _ 특별한 인연의 시작