brunch

전원주택, 행복한 집짓기의 여정_바라는 것의 교집합

바라는 것의 교집합

by 보통의 건축가
2-02.jpg

(2021년 4월 24일)

소장님께

이번 주는 별일도 없이 메일이 늦어졌습니다. 뜻밖에 소장님 메일을 받으니 기분이 나쁘지 않네요. 참! 별일 있었습니다. 소장님의 오래된 소망을 이루신 것 축하드립니다. 덕분에 저도 버킷리스트를 생각해보았어요. ‘물만 열심히 저었지 이렇다 할 취향이란 게 없이 살았구나’ 하는 슬픈 결론에 이르긴 했지만, 의미 있는 시간이었답니다.

‘이제부터라도! 여주 집에서!’라고 말하려니 남편이 요즘 밀고 있는 집 이름이 ‘무위재’, ‘무위당’이네요.

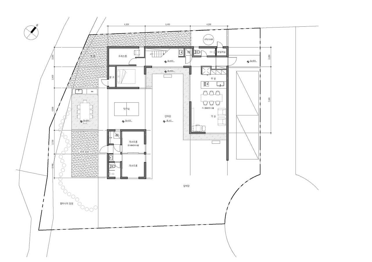
지난 토요일 두 번째 그림을 보고 돌아와 남편과 이야기를 나누다 보니 남편은 부엌창고가, 저는 물을 쓰는 다용도실이 미흡하다는 걸 알게 되었어요. 주방 싱크대에 끌어들이기 어려운 김칫거리나 많은 푸성귀를 씻을 때 여름에는 바깥 수도를 쓰면 되는데, 다른 계절이나 저녁에는 실내 공간에서 하는 게 좋아요. 보일러실을 늘려서 큰 다라이 두 개 정도를 바닥에 놓고 쓰고(이 대목에서 다른 방법이 없을까 생각하다가 일단 구닥다리 할머니가 되기로 합니다), 위쪽에는 선반을 달아 아까 그 다라이들, 곰탕용 찜솥들, 휴대용 가스버너, 대형 플라스틱 사각 김치통(아, 이걸 끌고 가야 할까요), 채소 말린 것, 각종 곡류를 보관하면 어떨까 합니다.

여주에 가면 자전거를 두 대 보유할 예정입니다. 자전거는 어디에 두어야 할까요? 처마 밑에 비를 맞지 않게 둘 수 있을까요?

저희가 가지고 있는, 가지고 갈 가능성이 있는 가구, 가전의 크기는 다음과 같습니다.

1. 침대: 가로 180㎝, 세로 250㎝, 높이 43㎝.

(침대가 커서 농막에서 쓰고 있는 가로 150㎝, 세로 210㎝, 높이 50㎝로 가져갈까? 침실과 드레스룸 공간 나눔을 가변적으로 하는 방법이 뭐가 있을까? 커튼? 나이 들면서 옷은 줄어들 텐데 아예 확 줄여서 가면 아무 일도 일어나지 않겠지.)

2. 냉장고: 가로 83.5㎝, 세로 73.4㎝, 높이 178.7㎝.

3. 김치냉장고(구입 예정): 가로 66.6㎝, 세로 73.7㎝, 높이 180.2㎝.

4. 고가구(궤짝): 가로 95㎝, 세로 36㎝, 높이 68㎝.

다음부터는 대체할 수 있으면 가져가지 않아도 되는 것들입니다.

1. 자개장식장: 가로 60㎝, 세로 45㎝, 높이 178㎝.

(두 개인데, 하나만 가져갈지 가져가지 않을지 생각 중. 별채에 니치를 만들어 어머니 기념품을 놓으면 어떨까 하고요.)

2. 식탁: 가로 120㎝, 세로 90㎝, 높이 77㎝.

(의자 4개 있음. 이 식탁을 살 때 평생 쓸 수 있다고 한 말을 남편이 기억하고 있어서…….)

3. 책상(1): 가로 145㎝, 세로 76㎝, 높이 72㎝.

(딸이 쓰던 것이라.)

4. 책상(2): 가로 120㎝, 세로 75㎝, 높이 73㎝.

(조립하고 오일스테인 칠을 해서 여주 농막에서 쓰고 있는데, 수도자의 책상 같아서…….)

5. 오픈 책장(1): 가로 70㎝, 세로 30㎝, 높이 180㎝.

(30년 된 집성목서가, 정이 들어서…….)

6. 오픈 책장(2): 가로 60㎝, 세로 30㎝, 높이 205㎝.

(가로 80㎝, 세로 30㎝, 높이 205㎝로, 5년 된 새것이라…….)

가구 외에 필요한 물건들과 수납을 이제부터 정리해보려고 합니다. 필수적인 것, 충분조건에 해당하는 것, 소장할 것으로 분류해서 어디에 배치할지 구상해보려고요. 제로에서 시작해보려는데 미련 때문에 들었다 놓았다 하겠지요. 머리는 미니멀리즘! 적어도 집에 맞추자 하면서도요.

이번 주에는 욕실을 제일 많이 생각했습니다. ‘변기와 세면대+샤워기’, ‘욕조만 있는 욕실’ 이렇게 분리하는 게 내 바람인데 어떻게 배치할 수 있을까, 계단 아래로 간이 세면대를 두고 파우더룸처럼 쓸 수 없을까, 쭉 늘어놓으면서 궁리해보았어요. 우선순위를 ‘변기+세면대+샤워기’, ‘욕조’, ‘별도 세면대’로 하고, 세 가지를 다 갖추는 게 어려우면 ‘별도 세면대’는 포기할 수도 있습니다. 두 가지로 가는 것도 어려우면 욕조까지 한 실에 집어넣고요. 제가 너무 일찍 포기하는 것 같아요.

집의 크기도 생각해보았습니다. 요즘은 줄자를 가지고 다니면서 이 정도면 몇 ㎝인가 재본답니다. 세면대도 재보고 변기도 재고 다용도실도 재고 싱크대도 잽니다. 어제 아들 집에 간 김에 주방과 거실의 크기를 가늠해보았어요. 그 집은 아파트인데, 베란다를 터서 가로 4m 세로 7.7m, 둘째 그림의 여주 집은 가로 4.2m 세로 7.5m로 비슷해요. 남편과 갑갑하지 않을까 걱정하다가 제가 여주 집은 바깥으로 툇마루가 있는 단층이라 그 정도면 되겠다고 했습니다.

지난 토요일에 소장님께서 탁구대 놓는 공간을 건축 면적에 포함하는 것을 포기해야 할 것 같다고 하셨는데 저는 아직은 포기하고 싶지 않습니다. 저희가 되었든 다음 사람이 되었든 그 공간을 필요할 때 마음 편히 리모델링해서 쓸 수 있게 하는 게 나을 것 같아서요.

또 지난주에 골조를 나무로 제안하신 것에 대해 생각해보았습니다. 집을 지을 때 자재 품귀나 자재 가격 상승과 같은 현상이 보통 있나요? 요즘 건축용 목재가 그렇다는 말들이 있어서요. 그리고 소장님께서 우리 집을 맡길 만한 목조주택 시공 팀이 있는지요? 웹에 목조주택에서 일어나는 하자에 관한 기사가 많이 보여요. 목조주택이 늘어나고 목조주택에 대해 사람들이 많이 관심을 가지니 그런 거겠지요? 저희는 소장님께서 이끄는 대로 따를 것입니다만, 콘크리트+나무 지붕에서 목구조로 변경하신 것이 비용 때문이라면 바꾸지 않아도 된다고 말씀드립니다.

첫 그림의 곡선은 저도 처음에는 좀 놀라웠지요! 그러고 보니 곡선에 대해 남편과 구체적인 이야기를 나누지 않았네요. 아마 둘 다 소화하는 중에 바뀌어서 그랬나 봅니다. 남편은 그런가 보다, 그런데 쓸모는 덜 하겠구나 했어요. 첫 그림을 보고 이리저리 상상하다 보니 내 것이 되었는데 모래처럼 사라져서 아쉬워하긴 해요. 대신 별채를 내 공간이라고 생각하니 내 취향을 반영해야겠다고 생각합니다. 복도와 계단도 많이 생각나는 공간이고요. 한편 집에 대한 취향이 경험에 고착되는 게 아쉽다고 생각합니다. 호기심을 발동시켜서 막 나가볼까 하다가, 같이 사는 남편을 배려해야지 합니다. 남편은 별채도 별로라고 생각하거든요. 저는 첫 그림에서부터 집의 자태에서 품격을 느낄 수 있었습니다. 이 품격은 계속 그대로 가겠구나 하는 믿음이 생겼고요. 저희가 아직은 적응 중이라 피드백이 느립니다. 앞으로 조금씩 나아지겠지요.

봄꽃들이 진 자리에서 열매를 만드는 소리 없는 소란이 느껴집니다. 저도 소장님이 보여주시는 그림을 보고 나면 그림 속에서 사는 모습을 그리느라 소란스러워집니다. 소장님은 거두는 자식이 많아 무척 소란스러울 것 같아요.

애마 랭글러를 향해 웃음 짓는 소장님의 모습을 그려보며, 서화마을의 한가한 아침을 함께 보냅니다.


나는 어릴 때 맥가이버를 좋아했다.

총이 아닌 주변에서 보이는 물건들을 조합해 적을 제압하는 것도 좋았지만, 그가 타고 다니던 지프와 선글라스가 특히 좋았다. 모래 먼지 펄펄 날릴 것 같은 지프로 도시를 달리는 모습도 좋았고, 정장을 입고 선글라스를 낀 채 지프에 기대어 아이스크림을 할짝거리는 장면에서는 저거다 싶었다. 부드러우면서도 강해 보이는 남자의 이미지, 꼭 저렇게 되고 싶다는 강렬한 욕망이 생겼다.

어른이 되어 선글라스와 정장은 준비했는데 지프만 없었다. 죽을 때까지 없을 수도 있겠다는 생각에 사무실이 안정화될 무렵 큰마음 먹고 하얀색 지프를 리스했다. 다 이루었다는 충만감이 들었다. 당장 지프의 뚜껑을 열고 검은색 정장을 입고 선글라스를 낀 채 봄날의 양수리를 달렸다. 벚꽃이 비처럼 내리는 길에 차를 세우고 아이스크림을 먹으며, 차창에 비친 내 모습을 흐뭇하게 바라보다가 깨달았다. 나는 맥가이버가 아니었음을. 그저 배 나온 대머리 아저씨였음을.

사모님의 메일 첫머리에 언급한 내 버킷리스트가 지프였고, 아마도 비루한 내 모습에 관한 이야기는 빼고 차 자랑을 한 듯싶다.


미팅 말미에 사모님에게 새집에 들일 가구 목록을 정리해달라고 요청했다. 옛집의 바통을 이어받는 새집에 세간이 따라 오는 것은 당연하겠지만, ‘있으니 그냥 두는 것’과 ‘있어서 좋은 것’은 구별하고, 어떤 것을 꼭 가지고 올지에 대한 고민의 시간을 드리기 위해서다.

열심히 숙제하고 가구 하나하나의 의미를 곱씹는 사모님은 참 모범생이었다. 거기에 마음도 넓은 분이었다.

작은 집에서 꼭 뒷사람을 위해 여분의 공간을 남기고 싶다는 넉넉한 마음이 커 보이면서도 굳이 그렇게까지 할 필요가 있을까 싶었다. 두 분이 쓰실 공간도 모자라면서 누군지 모를 사람을 위해 면적을 남긴다고? 마뜩하지는 않았지만, 이것은 내가 풀어야 할 숙제였다.


사모님이 던지신 화두를 떠올렸다. 이 집에 기대하는 영성, 따뜻함, 진실함은 어디에서 비롯되는가? 좋은 디자인과 건축적 장치를 통해 집 그 자체로 획득될 수 있을까?

아무리 설계한 집이 내 자식 같더라도 살아 있는 것이 아닌 터에 스스로 영성, 따뜻함과 진실함의 본성을 가질 수는 없다. 집은 오히려 그런 감정이 자라고 익어가는 밭과 같아서, 씨를 뿌리고 잘 가꿔갈 수 있게 밭의 모양을 만들고 잘 갈아야 하는 것이 내 몫이 아닌가 싶었다. 따뜻함, 진실함이 묻어나는 집이 되기 위해서라도 뒷사람에게 여분의 공간을 남기는 것이 꼭 필요했는지도 모르겠다. 그렇다면 나는 그 밭을 만들어야만 한다.

그래서 탁구대가 놓이는, 추후 뒷사람 몫으로 남겨 놓은 공간의 크기를 조금 줄이고 별채의 게스트룸을 두 개에서 한 개로 줄이는 쪽으로 계획을 수정했다. 두 분이 탁구를 하더라도 젊은이처럼 강 스매싱을 하실 것도 아닐 테니 조금 줄여도 탁구 치는 데는 지장이 없을 것이고, 게스트룸도 자녀들이 매일 오는 상황이 아니니 평소에는 사모님이 사용하시다가 자녀가 머무를 때만 내어주면 되겠다 싶었다. 게스트룸에서 줄인 면적을 고민하시던 화장실과 다용도실의 구성을 위해 할애했다.


사모님이 처음 우리를 찾아와서 했던 질문이 “제가 원하는 것이 다 가능한가요?”였다. 나는 “가능합니다”라고 대답했다.

원하는 기능을 모두 나열하고 각각 배치하는 방법으로는 한정된 면적 안에 다 담아내기 어렵다.


욕망의 교집합을 찾고 그것을 받아낼 공간을 구성해 실현해야 한다.


그 교집합의 장소가 탁구장이고 별채였다.

탁구장이 비를 맞지 않는 외부 공간이어야 하고, 뒷사람을 위해 남겨 놓고 싶은 공간도 뒷사람의 의지 때문에 내부가 되기도 하고 외부 공간으로 남겨질 수도 있는 선택적 상황이 되려면 지붕이 있어야 했다. 여기서 공통된 욕망은 ‘비를 맞지 않는 외부 공간’이었고 두 욕망을 함께 풀어내도 충돌하지 않을 상황이었다. 이렇게 두 가지 바람을 한 공간에 담아낸 것이 탁구장이었다.


별채도 마찬가지였다. 사모님은 TV 시청을 즐기는 남편과 물리적 거리를 두고 조용히 혼자만의 시간을 보낼 수 있는 공간을 바랐다. 자녀의 가족이나 손님이 왔을 때 서로가 눈치 보지 않고 편히 머무를 게스트룸도 필요했다. 여기서 공통된 욕망은 ‘방해받지 않는 공간’이었고, 그렇기에 게스트룸과 사모님의 서재가 한 공간에서 풀어질 수 있게 된 것이다.


별채와 탁구장의 관계 또한 서로의 존재가 필요한 상황으로, 탁구장이 성립되려면 안채와 분리된 별채가 필요했고, 안채와 분리된 조용한 별채도 탁구장 같은 완충 공간이 필요했다. 이렇게 내부 공간은 정리되어 가고 있었고, 이제는 집의 모양을 생각할 때였다.

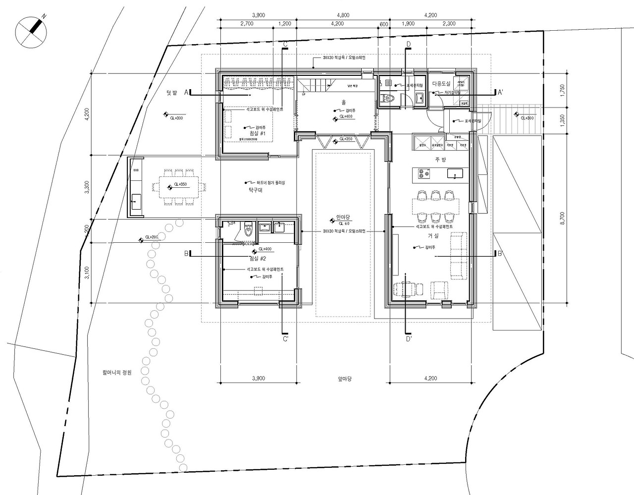
2-05.jpg 바라는 것을 교집합하여 정리한 평면


안마당을 중심으로 집이 나뉘어 있는 평면의 모습이 집의 모양에서는 하나로 보였으면 좋겠다는 생각이 있었다. 그 이유는 안마당으로 집이 나뉜 것이 아니라 안마당을 중심으로 집이 모여 있다고 생각했기 때문이었다. 그래서 커다란 박공을 집 전체에 덮고 안마당 부분만 파내는 전략을 시도했다.

처음 평면 스케치를 할 때 평면의 곡선과 땅과 마주한 효종대왕릉이 자리한 나지막한 산이 겹쳐 지붕의 형태를 둥글게 다듬었다. 산 위에 걸린 달을 상상했다. 그 달을 보는데 지붕이 방해되면 안 되겠다 싶어 안마당에서 보이는 지붕을 파냈다. 둥글게.

그림을 한참 보다가 집의 이름이 떠올랐다. ‘산 위에 달을 걸고’를 줄여 ‘산달집’이라 하면 어떨까? 이미 ‘무위재’라는 집 이름을 염두에 두고 계시지만 슬쩍 집의 이미지와 함께 들이밀어 보기로 했다.

2-03.jpg


(2021년 5월 5일)

소장님께.

제가 궁금해하는 것을 알고 얼른 네 번째 그림을 보내주셔서 고맙습니다.

입체로 보니 더 실감이 납니다. 동채와 안마당, 서채의 비율이 세 번째 보여주신 그림과 달라 보입니다. 특히 안마당이 좁아 보이는데 제대로 본 것인지요? 안마당에 세로로 꽃밭을 만들 생각이어서 하루 중 그늘이 어떻게 지는지 궁금했습니다.

전체적인 느낌은 고졸하기보다 멋 부린 집 같습니다. 너무 솔직하지요?

보내주신 그림을 보고 남편은 “재미있네”라고 했습니다. 저는 정면의 ‘산달’로 인해 집이 폐쇄적으로 보여서 답답하지 않을까 했습니다. ‘산달’의 미적 느낌에 대해서는 바로 말씀드리기 어렵네요. 처음 보여주신 그림에서 둥근 공간을 보았을 때와 비슷합니다. 새로워서 처음에는 어리둥절하다가 자꾸 보니 느낌이 왔거든요.

정면에서 보았을 때의 느낌은 말씀드렸고, 테라스와 대청에서 시야가 어떨까 상상해보았습니다. 대청에서는 앞산에 달이 걸린 게 그림자극처럼 보일 것 같습니다. 테라스에서는 어떨까? 앞집을 가리면서 산 아래는 우리 집 앞마당, 산 위로는 효종대왕의 앞산이 보일까요? 또 밖에서 보면 테라스를 가려줄까요? 시그니처 ‘산달’이 없으면 어떤 느낌일까요? 허전할까요? 지붕은 스페니시 평기와가 어떨까 생각했는데 보내주신 그림은 금속이지요? 느낌을 말하라고 하셨는데 질문을 하고 있네요.

외벽은 나무 루버와 콘크리트(별채 일부, 승방 느낌)로 보입니다. 나무가 자연스러우면서 따뜻하게 느껴집니다. 미국의 목조주택처럼요. 그동안 사진으로는 루버와 콘크리트가 외벽인 집들은 콘크리트가 대부분이고 일부에 루버를 댄 것들인데, 이렇게 비율이 반대인 집은 한 번도 보지 못해서 느낌이 어떨지 잘 상상이 되지 않습니다. 외벽 재료를 섞어서 지은 집 중에서 마음을 끄는 집이 별로 없었고, 작은 집은 한 가지로 통일하는 게 좋지 않을까 생각했기 때문입니다. 이 부분도 자꾸 상상해보아야겠습니다. 오래된 것은 아니고 지난주부터 ‘검은 밤색 지붕에 회색 외벽’이나 ‘밤색 지붕에 노란 느낌의 벽돌 외벽’은 어떨까 생각했습니다. 제가 회색은 좋아하는데, 검은색과는 친하지 않아서요.

이상, 외출 전에 급히 되는 대로 솔직한 느낌을 말씀드렸습니다. 생각이 변하거나 더 생각나는 게 있으면 또 말씀드리겠습니다.


고졸하기보다 멋 부린 집이라니. 이렇게 때때로 원펀치를 날리시는데, 너무 방심하고 있었다.

지붕의 형태에 집착하고 있었던 것은 사실이다. 용마루 부분을 둥글게 굴리고 달의 모양을 따라 지붕을 파낸 것은 산과 달의 직설적이고 형태적 차용임을 인정할 수밖에 없었다. 자꾸 보고 있으니 이상하게 왜색적이기까지 했다.

사모님의 말씀 한마디와 자아비판을 통해 지붕의 형태는 가장 단순한 박공지붕 형태로 가기로 했다. 산달이라고 부르는, 안마당과 대청에서 산과 달을 보기 위해 뚫어 놓은 둥근 형태의 오픈도 사각형 형태로 바꾸었다. 대신 지붕의 형태를 따르는 각 파이프를 계획해 프레임화했다. 그렇게 하면 사각형 형태의 안마당과 대청에서 시작된 시선이 산과 하늘로 자연스럽게 이어질 것이고, 프레임에 가둔 하늘과 달이 만드는 특별한 장면이 이 집을 장소화하는 데 중요한 역할을 할 수 있을 것으로 생각해서다.


1.jpg 직선의 박공지붕으로 정리한 계획
16.jpg 안마당에서 바라본 프레임의 모습


keyword
이전 02화전원주택 , 행복한 집짓기의 여정 - 너에게 가는 길