brunch

테일러샵 하나부터 열까지 뚝딱뚝딱

by ARTEFACT



날씨가 꽤 추웠던 올 2월에 시작한 프로젝트입니다. 아 올해도 날씨가 춥네, 그러게 겨울은 언제 가려나, 여름 휴가는 발리로 가고싶네, 하고 있는데 아직 해 본적 없는 남성복 테일러 브랜드의 스토어 의뢰가 들어왔습니다. 두 명의 친구가 함께 키워온 에스타도라는 브랜드고요. 저는 매일 넝마같은 느낌의 워크웨어만 걸치고 다니기 때문에 굳이 구입할 일이 없는 느낌이었습니다. 개인적으로, 그 당시까지는요.



처음에 한 분의 대표에게 전화로 연락이 왔는데 ‘아.. 파우스트 프로젝트 잘 봤습니다.’ 하는 식으로 연락이 와서 어깨가 좀 으쓱해졌었고요, 다른 한 분의 대표도 잘 만들어줄 사람을 찾던 중 저희가 완성한 디멘션 랩의 대표님에게 마침 저희를 소개 받았다고 했습니다. 디멘션 랩의 박대표도 에스타도의 고객이고요. 두 분 다 프로젝트를 위해 적절한 스튜디오를 찾고 있었는데 각자 찾아본 곳이 우리여서 깜짝 놀랐다는 그런 이야기. 믿거나 말거나...


네 깜짝 놀랐습니다.


그리고 에스타도에 저희를 소개해주신 디멘션 랩 박대표님


소개해주셔서 감사합니다. 저 옷이 에스타도의 옷입니다 여러분.


에스타도의 옷이 없으면 이런 느낌


저는 수트에 큰 관심이 없어 잘 몰랐지만 디멘션 랩 박형준 대표의 말을 빌리자면 여기저기 시도해봤는데 에스타도의 테일러드 수트가 가장 마음에 들어서 평소에도 에스타도의 옷을 즐겨입는다고 합니다. 특별한 결혼식 예복으로도 에스타도를 선택했다고 추천하더군요. 굉장히 취향이 깐깐한 클라이언트가 만족할 정도라면 뭔가 있겠구나 싶긴 했습니다.


에스타도의 두 대표를 처음 만났을 때였는데요. 이렇게 또 빼곡하게 요구사항과 체크할 점들을 꼼꼼히 작성해 오셨습니다. 아 뭐 이런걸 다... 요즘 세상에 보기드문 고객님이죠. 에스타도가 굉장히 흥미로웠던 부분은 얼핏 봤을 때 성향이나 배경이 전혀 달라보이는 두 대표가 운영하고 있다는 점이었습니다. 업계에서 새로운 시도를 지속해 온 브랜드로 알려져있는데, 전혀 다른 두 사람이 만나서 좋은 상승 효과가 난 것이 아닐까.. 하는 생각도 들었습니다.


대표 1 : 준호씨

특징 1 : 깐깐함

특징 2 : 매우 깐깐함

특징 3 : 흥분하면 말이 빨라짐

특징 4 : 잠 잘 때도 수트를 착용하실듯.

특징 5 : 술 잘 드심

특징 6 : 에스타도의 왕


대표 2 : 재우씨

특징 1 : 침착함

특징 2 : 매우 침착함

특징 3 : 너무 침착함

특징 4 : 수트 입는 모습을 못 봄

특징 5 : 포토그래퍼로 일하시고 밤에 주로 깨어있으신 듯

특징 6 : 논리왕


이렇게 딱 봐도, 전혀 스타일이 다른 두 고객님입니다. 다양한 요구사항들을 일목요연하게 정리해 온 꼼꼼함도 인상적이었습니다만 가장 동기부여가 되었던 부분은, ‘기존의 맨즈 클래식 샵들이 가지고 있는 톤앤매너와 정형화된 컨셉을 피해달라’고 프로젝트의 컨셉트 및 방향성에 있어 무한의 자유도를 우리에게 부여해 주었다는 점입니다. 기존의 샵이 작은 규모의 ‘우리가 생각할 법한 클래식한 컨셉’으로 잘 운영되고 있었음에도 새롭게 도약할 타이밍에 새로운 시도를 하는 것이 필요하다고 판단했던 것 같습니다.


d171a57dd359add500b335e09f7c33f3.png


클래식 테일러드 수트를 만드는 곳이라고 하면 누구나 머릿 속에 떠올릴 법한 이미지가 있잖아요? 영국이나 이태리의 장인들이 운영하는 테일러 샵을 생각해보죠, 그 샵이 가지고 있는 컨셉트와 요소들을 어렵지 않게 누구나 떠올릴 수 있을 것 같아요. 나무, 오래된 벽지, 과한 디테일의 조명 같은 요소들이요. 그 샵 안에는 머리가 반쯤 벗겨진 할아버지가 줄자를 둘러매고 안경알이 두꺼운 안경을 쓰고 칫수를 재고 작업을 하시겠죠. 어떤 곳은 그 완성도를 위해서 몇백년된 나무나 가구를 가져와서 ‘그 시대’ 클래식의 진본성을 재현하려 하는 곳들도 있을 것이고, 흉내만 내는 곳들도 있겠지요. 재현이든, 흉내가 되었든 그런 많은 헌사와 시도가 있기 때문에 역설적으로 현대에도 클래식의 가치가 빛을 발하는 게 아닐까 하는 생각이 듭니다. 최근 바버샵도 이러한 흐름 속에 있는 것이겠죠. 오래된 바버 체어를 경쟁적으로 사들이고, 다들 진본성을 재현하고자 합니다.


한편으론, 우리가 사는 이 곳이 테일러드 수트가 시작된 곳도 아니니까, 딱히 뭐. 현대에 한국에서 이런 복식 문화를 즐기고 소비하는 사람들을 면밀히 분석하고 보다 더 동시대적이고 새로운 컨셉트를 제시하는 것도 재미있겠다고 생각했습니다. 수트하면 직장인들이 다 입고 다니는.. 정도로 생각하기 쉽지만 이 문화를 즐기는 사람들과 입어야 하기 때문에 입는 사람들 사이에는 큰 차이가 있다는 것도 알게 되었거든요.


클래식 테일러 샵의 느낌 feat. 재우씨


Screen Shot 2019-07-26 at 11.47.06.png

자, 현장으로 가볼께요. 너무나도 현대적입니다. 갓 리모델링이 끝난 건물이네요. 금속 파사드가 남성복과 잘 어울린다는 느낌입니다. 직조된 패브릭을 연상케하는 패턴과 쭉 뻗은 선이 아름답습니다.


IMG_8074.jpeg
IMG_8098.jpeg
IMG_8127.jpeg


현장에서 두런 두런 이야기들을 나누고 있는데, 빔 보이시나요? 천장은 낮고 빔은 너무 두꺼워서 빔의 존재감이 압도적이네요. 가로지르는 빔의 존재 밖에 눈에 안 들어옵니다. 현장에서 나누는 이야기들은 귀에 들어오지도 않네요. 와 빔 두껍네 x나 두껍네.


25ED258125AC25EA25B325A0_-1.jpg 무.. 물론 H빔 말입니다.


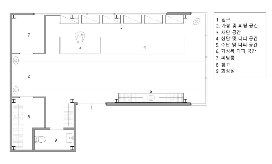
에스타도의 두 남자도 계약을 하긴 했지만 천장이 낮고 너무 열악해서 과연 잘 될까요, 공간은 충분할까요, 하는 걱정이 있었던 것 같습니다. 그리 넓지 않은 공간이지만 맞춤 수트 제작과 기성복을 함께 다루고 있기 때문에 기능적으로 필요한 부분이 많이 있습니다. 먼저 재단사가 작업할 재단 공간이 필요하고, 맞춤 수트이므로 상담 공간도 있어야 할 것입니다. 그리고 샘플이나 원단을 수납 및 전시할 수 있는 공간, 기성복만 모아서 보여줄 수 있는 공간, 피팅룸, 창고, 마지막으로 고객이 상담 전에 대기할 수 있는 자리도 필요했습니다.



잠깐 다시 현장으로 돌아가보면,

IMG_8073.jpeg
IMG_8071.jpeg


눈으로 보기에도 그렇지만 20평 정도의 공간이라 다양한 기능을 소화해야 한다는 점에 비추어봤을 때 아주 여유가 넘치는 면적은 아니었어요. 컨셉트도 매우 중요하지만 필요한 기능과 요구사항을 잘 정리하고 재조직하는 것이 우선이겠죠.


그리고 브랜드 아이덴티티의 요소를 잘 활용해 새로운 방향성에 잘 어우러질 수 있게 해야 될 것입니다. 황금비의 이미지를 심볼로 사용하고 있는 에스타도의 로고 디자인입니다. 클래식 / 수트 / 황금비.. 뭐 잘 연관되고, 서로 연상될 수 있는 키워드들이죠. 기존 쇼룸은 딱히 아이덴티티가 공간에 녹아있지 못했기 때문에, 아쉬웠던 부분입니다. 사실 실제로는 황금비라는 것이 그 디자인의 의도성이나 과학과는 별 연관이 없습니다만..


묘하게 사람의 마음을 자극하거나


묘하게 사람의 마음을 안정시키키도 합니다.


사실 여기저기 갖다붙여 보니까 얼추 다 되더라는.. 꿈보다 해몽이라고 하는 거겠죠 이런걸.

아무튼 이런 요소들을 잘 갈무리해서 나중에 써먹어야지, 하고 다짐해 봅니다.


접근을 어떻게 해볼까요.


먼저 레이아웃과 구조부터.

테일러샵에서 꼭 필요한 재단사의 작업 공간과, 상담 및 접객을 위한 공간에 대해 이야기를 해 보려고 합니다. 연구한 결과, 재단사의 작업 공간이 눈에 보이는 곳에 대부분 위치해 있고, 상담 공간은 응접실 혹은 라운지 같은 형태로 별도의 섹션으로 존재하는 케이스가 많았습니다. 빠른 시간에 얕게 연구했기 때문에.. 다른 경우도 많이 있겠습니다만 대부분 이러한 형태에요. 서로 꽤 떨어져 있는 경우가 많고요.


넓지 않은 공간이긴 해도, 두 가지 섹션을 만들 수 있겠지만 아무래도 시각적으로 강한 컨셉트를 가지긴 쉽지 않을 거라는 생각이 들었습니다. 면적이 좁고, 외부로 열려있는 면이 크기 때문이죠. 각자 다른 기능을 가진 섹션을 좁은 공간에 별도로 배치했을 때 얻을 수 있는 장점보다는 잃을 수 있는 단점이 더 크다고 보았고요. 여전히 얕게 연구를 많이 해 봤는데, 의외로 가까운 곳에 해답이 있었습니다. 우리 주변을 잘 살펴보면 작업 공간과 대화와 상담이 이루어지는 공간이 하나로 묶여있는 형태로 서비스 기능을 가진 곳을 어렵지 않게 찾을 수가 있습니다.


Screen-Shot-2019-07-19-at-12.51.03.png 상하이의 유명한 바 Speak Low

클래식을 기치로 내 걸고 운영하는 Bar에 가보면 굉장히 전문적인 스킬과 각자의 철학을 가진 바텐더들이 바에서 작업을 하고, 동시에 술에 관심이 있는 고객들이 바텐더와 술에 대한 전문지식을 나누듯 대화하는 모습을 쉽게 볼 수 있죠. 동시에 바 뒷 편에 있는 장에 놓여있는 주류나 디스플레이 방식을 통해 바에서 추구하는 철학이나 가치를 자연스럽게 표현할 수 있습니다. 작업과 서비스 그리고 디스플레이에 이르기까지 하나의 덩어리에서 이루어지는 셈인데, 여기서 착안을 했습니다. 시간이 흐르면서 리테일 공간 디자인도 고객 경험을 중시하는 방향으로 진화해 나가고 있는데, 이러한 구조를 활용함으로서 많은 요건을 만족시킬 수가 있겠다는 생각을 했어요.


-

입장했을 때 첫 인상으로 굉장히 프로페셔널하게 작업하는 재단사의 모습을 강조하고 싶었고,

동시에 좁은 공간이지만, 굉장한 덩어리감을 가진 바에서 테일러드 수트에 대해 상담하는 경험을 제공하고,

바 뒤에 위치한 가구나 디스플레이를 통해서 브랜드가 가진 아이덴티티를 강조하고 기능미를 보여줄 수 있을 것.

-



그리하여 구상한 바 형태의 프로토 타입입니다. 어? 너 고객? 나 남자, 에스타도야! 약간 이런 느낌으로 강하게 그냥 쭉쭉쭉 직선의 흐름을 가진 듯 싶지만, 훼이크다 요것들아! 하면서 살짝 황금비의 아이덴티티가 가진 요소를 가미해보았습니다. 한 떨기 은근한 곡선이랄까. 바의 스케일이 주는 위압감은 크지만 미약한 곡선의 흐름 덕에 날카롭게 느껴지진 않아요. 그리고 이러한 덩어리를 가지고 작업 / 상담 / 간단한 디스플레이 등을 할수 있게 요구사항을 잘 버무려서 개발을 진행하게 되고요. 창고나 피팅룸 등의 공간이 별도로 필요하긴 하지만 주 기능인 작업공간과 상담공간을 하나의 구조로 해결하는 것만으로도 보다 강력한 컨셉트를 표현하는데에 도움이 되겠죠. 강력한 존재감을 가지고 있으면서, 동시에 많은 기능적 요구를 충족할 수 있게 되는 겁니다.



테일러샵이 가진 스테레오타입에서 벗어나기 위한 연구를 해 봅니다. 남성 복식이 가지고 있는 요소에서 많은 팁을 얻을 수 있었어요. 왜냐면 몇대째 운영되는 이태리 어딘가 시골의 이름모를 테일러 샵이 백년 이상 같은 공간을 유지할지언정, 옷은 계속 달라지고 또 발전하고 있거든요. 매 시대와 트렌드가 요구하는 방향으로요.


그래서 우리가 갈 방향은 이런 겁니다. 소재는 현대적인 소재를 사용하여 동시대성을 추구하고, 복식의 요소에서 영감을 얻어 클래식의 뿌리 정도만 유지하고 싶은 느낌적인 느낌 같은 거랄까. 정말 좋은 브랜드라면 굳이 이 곳에 존재하지 않는 공간의 진본성을 흉내낼 필요가 없다고 생각해요. 역사와 전통은 이제부터 만들어가면 되는 겁니다. 그리고 에스타도라는 브랜드를 전개해온 과정을 이해하게 되면서 순발력있고 날렵한 이미지를 주면 좋겠다는 생각도 했습니다. 이미 그들이 맞춤복을 다루는 방식에 충분한 무게감과 고집이 있었으니까요.


kingsman.jpg


아무래도 대부라든가, 스카페이스(1932년작 *알 파치노 나오는 거 아님) 같은 느낌보다는 킹스맨 혹은 아메리칸 싸이코 같은 쪽에 가깝겠죠. 소재라거나 표면과 같은 부분에 있어서 말입니다. 아메리칸 싸이코는... 음... 굉장한 명작입니다. 디자인을 하는 사람에겐 여러모로 흥미 요소와 영감을 주는 부분이 많은 영화에요. 제가 명함에 상당히 집착하는 사람인데, 그게 이 영화를 보고나서 생긴 트라우마 같은 겁니다. 잠깐 쉬어가는 차원에서...


vlcsnap-2019-07-25-21h02m43s946.png
vlcsnap-2019-07-25-21h03m07s787.png
vlcsnap-2019-07-25-21h03m19s579.png
vlcsnap-2019-07-25-21h05m44s491.png
vlcsnap-2019-07-25-21h06m03s626.png
vlcsnap-2019-07-25-21h06m08s878.png
vlcsnap-2019-07-25-21h06m13s630.png
vlcsnap-2019-07-25-21h37m53s273.png

명함 자랑 잘못하면 살인납니다. #영화제목이아메리칸싸이코


현실은 저런 식으로 각자 명함을 만드는 것은.. 족보 없는 회사 인증이긴 합니다만. 디테일에 대한 집착이나, 미쟝센에서 흥미로운 부분이 많습니다. 수트를 즐기는 사람들도 엄청나게 디테일에 집착하는 경향이 있어요. 크게 봤을 때 격식이라는 틀이 존재하기 때문에, 차별화의 여지가 디테일에 많거든요. 그렇기 때문에 수트를 만드는 사람들의 디테일에 대한 집착도 대단합니다.


자 원래대로 돌아가서, 우리에겐 클라이언트가 부여해 준 자유도가 있었으니까요. 이래야 한다는 양식을 탈피하고 싶었습니다. 지금까지는 큰 그림에 대한 이야기를 했어요. 필요한 기능들을 레이아웃 형태로 재구성하는데에 있어서 바의 형식을 가져온 것이 가장 중요한 첫번째 큰 개념이고요, 이를 중심으로 모든 서비스 흐름과 고객동선이 결정될 것이니까 말이죠. 그리고 턱시도와 영화의 미장센에서 얻을 수 있는 소재라던가, 디테일이라던가 하는 다양한 종류의 인스피레이숀들을 지금까지 쭉 짚어봤네요.




표면, 중요합니다. 큰 매스와 구조로 승부하려고 마음을 먹었기 때문이죠. 처음에 블랙톤을 고려했을 때, 블랙 컬러의 비드블라스트가 이상적이라고 생각했습니다. 아무래도 빛이 좀 더 곱게 흐려지고 반사가 부드럽고 그래서 차분한 느낌이죠. 전체적으로 마감했을 때 디퓨징 효과가 있어서 조명비가 낮아지는 효과도 있고요. 실내에서는 잘 사용하진 않으나 설계 의도에는 부합했기 때문에 선택했습니다만, 예산 문제가 있어서 컨셉트를 효과적으로 유지하되 비용을 줄일 수 있는 대안을 찾아야만 했고 블랙 컬러의 헤어라인 재질로 바꾸어야만 했습니다. 아쉬움이 남는 대목입니다만 어느 정도의 타협은 늘 필요하니까요. 바꿔야만 했던..


마음 같아선...



Screen-Shot-2019-07-19-at-15.57.31.png


큰 그림에 이은 시작점은 이렇습니다. 바닥, 빔 그리고 천장까지 이어지는 형태를 사람의 몸 같은 하나의 구조로 보는 것이죠. 그래서 기본적인 바닥과 빔, 천장은 같은 톤으로 조절해 마치 근육질로 이루어진 구조체 또는 몸체가 되는 것이고, 여기 위에다 옷을 짓듯이 결점을 감추기 위한 요소들을 그냥 툭툭 놓듯이 배치하는거에요. 턱시도를 모티브로 한 블랙톤의 덩어리들이 마치 패브릭으로 몸을 감싸듯 올라갈 거고요.


Screen-Shot-2019-07-19-at-15.58.44.png
Screen-Shot-2019-07-19-at-16.21.35.png


이런 식이죠. 면적이 그리 넓지 않기 때문에 바와 가구만 툭툭 놓았을 뿐인데 존재감이 크게 다가옵니다. 우리는 딱 구조에 집중하는 것만으로 모든 것을 해결할 겁니다.


Screen-Shot-2019-07-19-at-16.45.56.png


처음 입구를 통해 들어왔을 때 보이는 시점입니다. 바와 가구가 만들어내는 큰 구조 하나로 모든 컨셉트에 대한 설명이 됩니다. 컨셉트도 강하지만 바 뒷 쪽의 가구는 디스플레이 기능과 다양한 원단 샘플을 수납하는 기능, 특히 가구 하부에는 만들어진 맞춤복을 보관하는 기능들도 가지게 됩니다. 바 자체가 맞춤복 기능을 위한 하나의 서비스 단위로 작동하기 때문에, 바의 맞은 편에는 기성복 섹션을 조성할 수 있는 당위성이 자연스레 생기겠죠.


자, 여기까지 왔더니 부담스럽고 거대해서 거슬렸던 H빔의 존재감도 거의 없어졌네요. 바 위를 가로지르는 조명 구조물은 디자인 포인트이기도 합니다만, 전략적인 역할을 잘 해주고 있군요. 큰 놈이 거슬리니까 더 큰 놈을 옆에 둠으로서 존재감을 없애려는 이 무슨 굉장히 초딩스럽고 단순 무식한 발상 같지만 역사적으로도 굉장히 잘 통했던 방법...


상대성 난쟁이 이론 같은 것이죠.




정말입니다.

올 천잰데?


Screen-Shot-2019-07-19-at-16.45.31.png

가구를 닫으면 금속이 주는 임팩트가 강렬합니다. 전혀 다른 분위기를 느낄 수 있습니다.


IMG_2802.jpeg

이런 느낌, 굉장히 좋아합니다. 기능미에 치중했다기엔 사치스러울 정도로 멋스럽죠. 구조와 표면으로 모든 것이 시작되고 끝나는 곳이 될 것입니다.


IMG_2672.jpeg


이 구조는 사인으로도 활용됩니다. 바의 매스가 파사드 창에 이르기까지 뻗어나오고 있는데요. 에스타도의 로고를 적용, 외부에서의 시안성을 위한 용도로 활용했습니다. 새롭게 단장된 건축물의 흐름을 거스르고 싶지 않았습니다. 가로수길을 걸어가다보면 주변을 고려하지 않은 과도한 사인과 불필요한 덩어리들이 사람들을 너무 힘들게 만들고 있거든요. 잘 만든 구조 하나로 여러 마리의 토끼를 잡아보고 싶었습니다 ;P


Screen-Shot-2019-07-19-at-17.54.38.png


아까 위에서 사람의 몸에 맞게 옷을 짓듯이 작업한다는 표현을 썼는데요. 마치 결점을 보완해서 옷을 재단하듯 공간의 결점(이라고 생각되는 부분)을 보완하는 형식으로 가구들을 만들고 배치합니다. 뒤에 H빔이 있으니 그냥 그 형태 그대로 가구집기를 만들어 버리는 거죠. 뒤에 빔이 있거나 뭐가 있거나 말거나. 이렇게 보면 반사가 있지만 충분히 예뻐서, 블랙 헤어라인도 괜찮네요. 좀 더 부유하고 블링블링한 맛이 있죠, 나름의.


멋집니다. 멋져요.



머스타드 톤의 컬러는 완성된 착장 위의 부토니에 같은 포인트가 됩니다. 할로윈에 입는다면 모를까, 아무래도 수트 컬러로는 좀 그렇죠. 그래서 포인트 컬러인 것입니다. 충분히 남성적이고 블랙 컬러와 대비해서 활용할 여지가 많습니다.


012A2084_1.jpg


바에서 바라본 기성복 섹션입니다. 바를 기준으로 나누어져 있기 때문에 다른 사람이 상담을 받는 중에도 제약없이 만져보고 살펴볼 수 있습니다. 사진찍느라 디스플레이에 신경을 쓰긴 했는데, 평소엔 많은 셔츠와 자켓류가 걸려있어서 마음껏 만져보고 입어보실 수 있을 거에요. 아무래도 맞춤복에 비하면 진입 장벽이 낮은 면이 있죠. 문을 열고 들어오면 느낄 수 있어요. 딱 낮은 진입 장벽만큼의 접근성을 가질 수 있도록 적절하게 배치하고 설계 했습니다.



아이덴티티의 요소가 들어간 구조물의 반복, 동일한 패턴의 반복을 통해 이 곳이 기성복을 다루는 영역임을 은근히 말해줍니다. 반대로 맞춤복 영역에 속하는 바의 뒷편 가구들은 디스플레이 방식을 커스터마이징 할 수 있게 되어 있어요.


Screen-Shot-2019-07-22-at-11.49.56.png


이렇게 봉과 선반의 위치를 조절해서 샘플북을 걸 수도 있고, 샘플 원단을 스택해서 보관할 수도 있습니다. 다양한 형태의 디스플레이 방법과 수납 가능성을 고려했습니다. 가구 문 손잡이는 저렇게 활짝 열었을 때 유용하게 쓰일 수 있어요.


Screen-Shot-2019-07-22-at-20.30.55.png
IMG_1791.jpeg

문 손잡이 위치의 적절한 예시. 보시다시피 작업 중인 혹은 작업할 옷들을 편하게 걸어둘 수 있습니다.



좌측 거울문은 창고, 우측 거울문은 피팅룸입니다. 카펫타일이 깔린 런웨이 형태의 공간이 조성되어 창고와 피팅룸의 분할이 전혀 부담스럽지 않습니다. 그리고 정면에 보이는 거울 앞에서 가봉된 옷을 입어보고 체크할 수 있는 것이죠. 완성된 옷도 물론 입어보고요. 길게 이어지는 컬러 카펫 끝에 서서 3면이 거울로 둘러쌓인 상태로 옷을 입어보고 칫수를 확인하는 경험은 더 색다를 거에요. 별 것 아닌 것 같지만 옷을 주문한 고객 입장에서는 가장 특별하고 다르게 느껴지는 부분입니다. 런웨이는 주로 고객 동선인 동시에 소재에 포인트를 주는 것으로 공간 전체를 광활해 보이게 만들어줍니다.



전체적인 큰 그림에서부터 하나씩 살펴보고 있는데요, 어딘들 공을 안 들인 부분이 있겠습니까마는 에스타도에서 특별히 신경을 써 주기를 바랐던 부분이 조명이었습니다.

IMG_6292.jpg


원하시는데로 해드립니다. 리테일에서 굉장히 중요한 부분이 조명이라고 항상 강조하는데, 색온도와 밝기, 더 디테일하게는 제품을 비추는 각도에 따라 상품이 어떻게 보이느냐가 좌우될 것이고, 매장 컨셉트의 완성도 역시 조명을 어떻게 쓰느냐에 따라 화룡점정이 될 수도 있고 한순간에 망할 수도 있기 때문입니다. 우리는 이미 조명의 사용만으로 공간의 사용성을 다양하게 변화시킬 수 있었던 사례들을 시도했던 적이 있습니다.



막간을 이용해 잠깐 자랑 하나 하고 넘어가자면, 고품격 건축자재 전문 매거진 감 매거진 열한번째 조명편에 저희가 상업 공간에서 조명 설계를 할 때 고려해야 할 노하우나 관점에 대해 인터뷰한 내용이 실렸습니다. 독특한 시도를 했던 케이스들을 예시로 보여드리고 있습니다. 어.. 그래서 굉장히 유용하고요. 네, 감 매거진 자체가 업계에 계신 분들에게도, 혹은 그렇지 않지만 건축과 인테리어에 관심이 있으신 분들에게도 다 도움이 되는 좋은 책입니다. 교양 서적으로 읽기에도 좋다고 생각해요. 사서 보시면 다 피가 되고 살이 되는 것 같습니다.


Screen-Shot-2019-07-22-at-22.09.38.png


긴 펜던트 조명과 바 위의 구조물 조명이 주조명 역할을 합니다. 이 조명들은 빔의 구성과 같은 흐름으로 배치됩니다. 구조가 가지고 있는 흐름을 거스르는 형태로 설치되는 조명은 없습니다. 예컨데 늘어뜨리는 방식의 포인트 펜던트라던지 하는 것들 말이죠. 우리의 의도는 스팟을 제외한 주조명을 사용함에 있어서 컬러 / 색온도 / 밝기 / 트랜지션의 컨트롤을 독립적으로 할 수 있도록 하는 겁니다. 그래서 주조명의 조작과 스팟 조명을 켜고 또 끄는 것만으로도 실내에 매우 다양한 분위기를 연출할 수 있게끔 하고, 마치 원래 그래왔듯이 필요하다면 촬영에 맞는 조명 상태로, 혹은 작업에 적절한 조명 상태로 스마트하게 바꿀 수 있도록 하는 것입니다.


IMG_2155.jpeg

이를테면, 위의 사진을 자세히 보시면 바 위에 조명 구조물이 있는데요. 일자형 같은 라인 조명 구성이지만 재단사의 머리 위쪽에는 주광색의 색온도로, 멀리보이는 상담공간 머리 위쪽은 전구색의 낮은 색온도로 표현되는 것을 보실 수 있습니다.


IMG_2825.jpeg

반대쪽 각도에서 본 사진, 재단사의 작업 공간만 주광색입니다.



오픈행사 때 슬쩍 찍어둔 사진. 거대한 구조 하나로 끝나는 컨셉트이기 때문에 주조명의 컬러 변화만으로도 다양한 기능을 소화할 수 있는 공간으로서 원하는 분위기를 쉽게 연출할 수 있습니다. 이 모든 것들은 스마트 기기로 제어가 가능합니다.


조명 테스트

그리고 이런 식으로 다양한 연출도 가능하게 되어 있습니다. 에스타도 라운지바로 불러도 손색이 없겠습니다. 기능적으로 설계된 공간은 그에 걸맞는 조명 계획을 통해 그 기능성이 극대화 됩니다.


이렇게 하나의 큰 구조에서 시작해, 옷을 짓는 개념을 활용해 덩어리들을 빚어내듯 툭툭 놓고, 구조와 표면만으로 컨셉트의 완성이 되는 형태의 작업 과정을 살펴보았습니다. 구조와 표면이라는 것에 집착이라고 해도 될 정도로 중점을 둔 이유는... 극히 공간의 일부 요소만을 체험 하더라도 전체가 주는 통일성을 고스란히 느낄 수 있기 때문입니다. 수트도 구조가 만들어내는 실루엣과 재질만으로 많은 부분을 설명할 수 있다고 생각합니다. 이 개념을 공간에 투영했다고 봐주시면 될 것 같아요.


공간의 가능성을 더 열어주고 싶었습니다. 이 공간을 사용하게 될 에스타도 친구들에게 상상력을 돋우고 싶기도 했고요. 사용자에게 새로운 사용법을 상상하게끔 열려 있는 공간이기를 바랐습니다. 쇼룸이 가장 우선적인 기능이긴 하지만 쇼룸이라는 명칭은 어디까지나 이 공간의 현재 사용법을 알려주는 용어일 뿐이죠. 영업 시간이 끝난 뒤 두런두런 둘러앉아 술을 마시면 그냥 바가 되어버리는 거고요. 혹은 런웨이에만 스포트라이트와 조명을 켜두고 전시나 갤러리 같은 용도로도 활용할 수 있는 식이에요. 쉽지 않은 일이지만 사용의 잠재적 가능성을 열어둔다면 현재 쇼룸으로 사용되고 있더라도 추후에 전혀 다른 사용법을 상상케 하고 실현하게 하는 일이 가능하다고 믿습니다.



아니나다를까, 영업 끝나고 술을 한잔하고 있는데 바가 아니냐며 찾는 손님들이 있다는 제보가 들어오고 있습니다. 밖에서 공간이 너무 멋지게 잘 보이니까요. 사실 저희는 이런 상황을 예상했는데 그 이유인즉슨,

Screen-Shot-2019-07-22-at-21.13.39.png


기존 매장에 첫 미팅 갔을 때 저런 것을 봐버렸기 때문이죠. 엄청난 와인병들... 그런데 새로 완성된 쇼룸에는 위스키를 갖다놓고 계십디다. 톤앤매너는 맞춰야한다고.. 이분들 정말 무서운 분들 아닙니까.


_KJW1789__r.jpg
_KJW2067__r.jpg
_KJW2080__r.jpg photo by 김재우 / 미팅에 저렇게 차려입고 오시는 분들

지금까지의 모든 것들은 클라이언트와의 생산적이고 건설적인 논의가 있었기에 순조롭게 올 수 있었고요, 가장 감사하고 동기부여가 되었던 부분은 에스타도측의 무한에 가까운 신뢰였던 것 같습니다. 뭐 한다고 하면 다 좋다고 해주시고 믿어 주셨거든요. 지금 돌이켜 생각해보니 이 전 프로젝트 디멘션 랩은 좀 그랬네요. 뭐 제안하면 비싸다 퇴짜놓고, 이거 안하면 안되냐 그러고. 박대푭ㅈ다ㅔㅈ배ㅏ애ㅔㅂ자엡!@#!@ㄹㅇㅣ이눔시끼야! 아.. 잠시 저도 모르게 흥분을..


Screen-Shot-2019-07-25-at-20.45.47.jpg

프로젝트 도중에 과분하고 영광스런 제안을 해 주셨습니다. 근데 아티팩트 아니고 아티펙트입니다. (뒤끝 작렬) 어쨌건 너무 기분 좋은 일이죠, 완성된 공간에 저희의 흔적을 남길 수 있다는 것이요. 별 생각 안하고 있었는데 먼저 말씀해주셔서 좋았던 부분입니다. 생각해보니 여운이 참 많이 남습니다.



완성된 쇼룸 어딘가에 수줍게 자리하고 있네요. 껄껄. 몇가지 포인트 타일이 더 있는데 에스타도의 역사와 관련해 각별한 의미들을 담고 있습니다.



저희를 신뢰해주시고 존중해주셔서 저희도 보답을 해야겠죠? 영국의 디자이너 Faye Toogood과 Driade의 콜라보레이션 의자를 개업 선물로 증정해 드렸습니다. 화룡점정 느낌으로다가, 훈훈하지 않습니까?


편- 안-


쇼룸도 옮기고, 오픈파티도 재밌게 잘 진행 마무리하고, 최근에는 프로젝트 마감 기념 회식도 즐겁게 했습니다. 얼마전에는 네이버 첫 화면에도 에스타도가 떴더라구요. 지금껏 잘해왔으니까 앞으로도 더 잘하실 걸로 믿습니다. 예경, 준기씨가 고생해주신 피팅룸 데코레이션 한 컷과 평면으로 마무리 합니다.



Screen-Shot-2019-07-25-at-22.07.17.png


완성된 공간 사진 보러 가기


- Project Management : 김형진 / ARTEFACT

- Spatial Designer : 강예경 / ARTEFACT

- 금속 : 한라메탈

- 조명 : 린노

- 잘 찍은 사진 : 여인우

- 대충 폰카로 찍은 사진 : 김형진

- 미팅 시 음료수 제공 : 김재우

- 샘플 마네킹 배달 : 박준호

- 피팅룸 데코레이션 : 강예경, 준기씨 (재단사님)


프로젝트 문의 : contact@artefact.co.kr

인스타그램 : @artefact.kr

웹사이트 : http://artefact.co.kr


keyword