brunch

시니어하우징의 설계적 특징

노인복지주택 사례들로 보는 평면 및 배치 방식


"시니어하우징,

소형 아파트랑 똑같이 지으면 되는 거 아니야?"


최근 많은 주택 건설사들과 시행사들이 노인복지주택 사업에 진출하고 있습니다. 시공사와 시행사 그리고 설계사무소는 다수의 공동주택 건설 경험을 기반으로 한국의 아파트 평면을 발전시켜 왔습니다. 그러나 이들이 그동안 쌓아온 공동주택에 관한 설계적 고민과 노하우가 노인복지주택이라는 새로운 영역에서 그대로 적용될 수 있을까요?


노인복지주택, 양로시설, 시니어레지던스 등으로 칭해지는 시니어하우징은 단순히 주택의 기능을 넘어서 입주민의 삶의 편의를 위해 다양한 서비스를 제공합니다. 린넨 서비스나 하우스키핑, 컨시어지 서비스 등이 대표적인 예시입니다. 이들의 효율적인 제공을 위해서는 설계 단계부터 종업원들의 동선 등을 신중하게 고려해야 합니다. 본 글에서는 국내외 여러 시니어하우징의 평면을 아래의 순서대로 비교, 분석하고, 그러한 구성이 발생하게 된 원인을 유추해 보고자 합니다.


글의 순서

01. 주거 공간의 구성

02. 세대 내 공간 배치

03. 단지 내 호실 배치



01. 주거 공간의 구성


아래의 사진 중 왼쪽의 사진은 일반적인 59 type 아파트의 (래미안 원베일리 공급 80㎡, 전용 59㎡) 평면이고, 오른쪽은 최근 분양을 한 시니어하우징인 VL 르웨스트의 79 type (전용 79㎡) 평면입니다. 아파트의 발코니는 확장이 가능한 점을 고려했을 때 59 type의 아파트와 79 type 시니어하우징의 실사용 면적은 유사합니다. 그러나 왼쪽 아파트는 한 방향으로 길게 펼쳐져 있는 반면, 오른쪽 시니어하우징은 좀 더 정방형에 가까운 형태를 보입니다. 왜 이런 차이가 발생할까요?

(좌) 래미안 원베일리 59 type 평면, (우) VL 르웨스트 79 type 평면


59 type 아파트(확장 시 약 25평 정도)에는 3~4인의 가족이 삽니다. 부부의 마스터베드룸과 자녀 2명 각각의 방이 필요한 것을 고려하면, 총 3개의 방이 필요합니다. 당연히 각각의 방은 채광을 필요로 할 것이고, 거실 도 배치해야 하니, 집에서 채광이 필요한 공간이 총 4개입니다. 이것이 흔히 말하는 4 bay 입니다.


이 각각의 방들은 최소한의 폭이 필요합니다. 침대와 옷장을 한 개씩 두고 외기도 면하려면 말이죠. 집의 중심에 배치되는 거실도 마찬가지로 필요한 폭이 있습니다. 그러면 4 bay의 집에서 모든 방이 외기에 면하는 남향이 되기 위해선, 최소 폭 (약 3.0m)을 고려해 동서 방향으로만 최소 12m를 필요로 합니다. 만약 전용 59㎡의 아파트를 완벽히 직사각형으로 구성한다면 너비 12m x 깊이 5m = 60㎡의 집이 만들어지게 됩니다. 공동주택은 베란다 1.5m를 확장 가능하니, 만약 양쪽 깊이 방향으로 베란다를 낸다고 하면 12m x 8m의 집이 만들어지게 됩니다.


그러나 노인복지주택에서는 세대 내 방의 구성에서 변화가 나타납니다. 부부 2인 기준 사용할 방 두 개만이 채광을 필요하기 때문에 같은 면적이어도 3 bay 평면으로 충분히 구성할 수 있습니다. 3 bay를 구성하기 위한 필요 너비는 대략 9m가 되며, 이는 위의 VL 르웨스트에서 볼 수 있듯이 전용 79㎡의 평면이 거의 정방형에 가까운 구성을 가질 수 있음을 의미합니다.


물론 대지의 너비와 면적 등의 여유가 있다면, 시니어하우징도 굳이 정방형에 가깝게 설계를 할 필요는 없습니다. 외기를 면하고 있는 변의 길이가 길어질수록 채광은 좋아지니까요. 그러다 국내에서 개발 가능한 대부분의 부지들이 여유롭지 못한 상황에서 단위 세대의 너비가 좁아질 수 있다는 것은 디벨로퍼 혹은 설계사에게 꽤나 괜찮은 장점이 될 수 있습니다.


이와 같은 단위 세대 평면의 차이는 각 세대들을 대지 위에 배치할 때도 차이를 만들어냅니다. 정방형 평면은 장방형 평면 대비 같은 폭의 대지에서 더 많은 세대를 남향으로 배치할 수 있는 이점이 있습니다. 타워형으로 배치할 경우에도 장방형 평면보다는 더 자유로운 평면 구획이 가능합니다. 시니어하우징의 세대 내 세대원 수가 평면의 형태, 나아가 단지 내 배치 구성도 변화시키게 되는 것입니다.



02. 세대 내 공간 배치


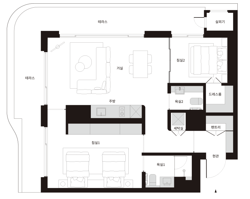
아파트 내에서 세탁기, 창고, 주방의 위치를 상기시켜 봅시다. 세탁기는 주로 어디에 있나요? 대부분 발코니 한쪽에 건조기와 함께 두고 있을 것입니다. 창고는 그 근처 어디쯤 있는 것이 일반적입니다. 주방은 거실과 함께 집의 중심에 위차 합니다. 그러나 시니어하우징에서 이 세 공간의 배치는 아파트와 차이를 보입니다. 이를 이해하기 위해서는 시니어하우징에서 제공하는 서비스를 이해해야 합니다. 아래는 공급 예정인 노인복지주택, 요양원 복합시설인 VL 라우어의 홈페이지입니다.

VL 라우어 제공 서비스 (Source: VL 라우어 홈페이지)

VL 라우어뿐 아니라 대부분의 시니어하우징은 하우스키핑 서비스를 제공합니다. 이 하우스키핑 서비스에는 주 1~2회 세탁, 청소, 설거지 등이 포함되며, 이 외에도 여러 호텔식 서비스를 포함하고 있습니다. 이런 서비스를 제공받기 위해서는, 타인을 자신의 집 안에 들여야 합니다. 아무리 서비스를 제공받기 위해서라도, 내 집 안쪽까지 모르는 사람이 들어오는 것은 꽤나 불쾌한 일입니다. 그렇기에 세대 내부에서 서비스 동선을 최소화하기 위해 세탁실과 주방이 현관문 근처로 옮겨집니다. 외부인이 들어오는 공간은 최대한 출입문 가까이, 그리고 내 방에서는 멀리 배치되는 것이 필요합니다. 아래의 VL 라우어의 사례에서도, 세탁실과 주방이 현관을 들어서자마자 위치하고 있는 모습을 볼 수 있습니다.

VL 라우어 평면도 (Source: VL 라우어 홈페이지)


이에 더해 일본의 사례에서는 창고를 세대 외부에 두는 경우도 있습니다. 미쓰이 부동산이 운영하는 파크웰스테이트 니시아자부도 아래 평면도와 같이 집에 붙어는 있지만, 집 내부가 아닌 외부에서 열 수 있는 트렁크룸을 배치했습니다. 창고를 외부에 두어 무거운 짐을 옮길 때, 혹은 골프백 등을 차량에 넣을 때와 같은 상황에서 직원이 집 안에 들어오지 않고도 운반 서비스를 제공받을 수 있습니다.


위의 사례들처럼 시니어하우징 안에서 세탁실, 주방 등의 가사 공간은 기존의 아파트의 공간 배치에서 벗어나, 현관 근처에 배치됩니다. 이는 시니어하우징이 갖고 있는 공동주택과의 차이점 중 하나이며, 서비스 측면에서는 오히려 호텔과 좀 더 유사해 보이기도 합니다. 각 시설별로 어떤 서비스를 제공하는지는 평면 구성에도 영향을 줍니다. 현재 공급되고 있는 노인복지주택 역시 건축 계획 단계부터 어떤 서비스를 제공할지에 대해 고민하고 서비스에 특성에 맞는 설계를 해야 할 것입니다.



03. 단지 내 호실 배치


근 10년, 아니 20년 동안 공급된 아파트 중에 복도식 아파트를 보신 적이 있으신가요? 거주공간 내 프라이버시 보호를 위해 최근에는 타워형으로 한 층에 2~3개 호실만 배치하는 경우가 대부분입니다. 심지어 몇몇 고급 주택의 사례는 한 호실 당 엘리베이터 한 대를 배치하는 경우도 있습니다. 그렇다면 시니어하우징도 타워형으로 각 호실을 배치하는 것이 적절할까요?


물론 시니어하우징도 타워형으로 계획하게 되면, 각 호실에서의 프라이버시를 더욱 높일 수 있을 것입니다. 그러나 대부분의 시니어하우징은 그럼에도 불구하고 복도형으로 배치된 경우가 대부분입니다. 이는 운영을 고려했을 때, 불가피한 선택입니다. 앞서 언급한 것처럼 시니어하우징은 다양한 서비스를 제공합니다. 이 모든 서비스를 비용이 과도하지 않은 선에서 제공하기 위해서는 인력의 구성도 최적화되어야 합니다. 만약 각 호실이 한 개의 엘리베이터를 쓴다면, 서비스를 제공할 종업원들은 다른 호실로 이동할 때마다 매번 엘리베이터를 타야 할 것이며, 심지어 다른 동으로 이동할 때는 로비층 (혹은 연결층)으로 내려가 엘리베이터를 갈아타야 할 것입니다. 이는 당연히 서비스 제공에 소요되는 시간을 늘리고, 더 많은 인력이 필요하게 합니다.

(좌) 더 클래식 500 배치도, (우) VL 르웨스트 배치도


또한 응급 상황에 대처하기 위해서는 다른 호실로의 이동이 편한 복도식이 선호됩니다. 그렇기에 높은 서비스 이용료를 내는 더 클래식 500, VL 르웨스트의 경우에도 복도식 구성을 하고 있는 것을 볼 수 있습니다. 그럼에도 불구하고 각 호실별로 프라이버시를 보장하는 것은 필수적입니다. 더클래식 500의 경우 각 호실별로 엘리베이터를 배치해 타워식 배치의 거주민 편의성을 최대화하고, 복도식 배치의 효율적인 서비스 동선을 확보했습니다.



마치며


이처럼 시니어하우징은 기존의 공동주택과 다른 설계적 구성을 요합니다. 공동주택 평면 구획이 입주민만을 고려한다면, 시니어하우징은 생활편의 서비스 제공자를 고려한 평면 구획이 필요합니다. 이런 면에서 어쩌면 시니어하우징은 공동주택보다는 호텔, 서비스드 레지던스에 좀 더 가까워야 할 필요가 있습니다. 그렇기 때문에 시니어하우징 프로젝트의 시행자는 단순히 집을 공급한다는 개념을 넘어 사용자와 운영의 측면에서 건물을 바라보고 계획할 필요가 있습니다.




저자 소개

FoRE는 상업용 부동산의 운용, 시행, 시공, 컨설팅 분야의 실무자들이 모여서 더 넓은 시야와 더 깊은 지식을 갖추기 위해 나아가고 있습니다. 최근 부동산 시장의 각 분야에서 시니어하우징에 대한 관심이 증대되고 있으나, 전통적인 부동산 자산과는 다른 관점에서의 접근이 필요합니다. 노인이라는 특수한 수요층, 의료와 주거를 포함하는 포괄적인 서비스, 그에 따른 운영방식을 고민할 필요가 있습니다. FoRE는 그런 고민들에 대해 유효한 질문들을 던지고 답하고자 합니다.

keyword
매거진의 이전글시니어하우징의 법적 구분(2)