6. 단독주택 설계 2

역시 전문가는 다르네.

by 흰둥가든

최종 미팅(OO건설 대표님 및 OO건축 이사님 참석)에서는 3가지를 가지고 큰 논의가 있었다. 하나는 지하공간이다. 우리는 건축비를 줄이고자 지하를 우리가 딱 필요한 공간만큼만 파자고 부탁을 드렸었고, 설계사에서는 이만큼 좋은 땅이 없는데 지하를 이렇게 작게 파는거는 너무 아깝다고 했다. 인테리어는 나중에 돈생기면 얼마든지 바꿀수가 있지만 건축구조는 바꿀 수가 없는 부분이라며 지하 공간은 인테리어를 아무것도 하지 않고 노출콘크리트로 두더라도 어느 정도 확보를 하는게 좋을거 같다고 하셨다.

< 3차 스케치 - 지하, 1층, 2층 >

다른 하나는 복도의 폭이다. 설계되어 있는 복도는 순수 폭이 1.4m에 지하에서 올라오는 계단을 합치면 2.5m의 공간이 생기게 되었다. 책에서 봤을 때 복도는 최소화해야되고 줄여야 한다고 봤고 그 공간을 좀 줄이면 화장실 샤워공간이라도 넣을 수 있을거 같은데 왜 이렇게 설계를 해주신건지 이해가 안갔다. OO건설 대표님은 직접 설계를 하시지는 않았지만 지금 이 복도공간 설계가 매우 좋아보인다고 하셨다. 집을 지을 때 공간을 잘 활용하고 알뜰하게 쓰겠다고 공간을 좁게 만들어서 이것저것 다 집어넣게 되면 집은 조잡해진다고 한다. 지금 설계상의 계단실과 복도를 유리난간으로 서재까지 연결하고 커다란 펜던트 등을 달아놓으면 호텔 로비처럼 웅장한 공간이 될 거 같다고 하셨다.

< 4차 스케치 - 지하, 1층, 2층 >

마지막으로 다락방에 대한 얘기가 있었다. 우리는 다락방을 2층 높은 곳에 배치하면 공간도 잘 쓸 수 있고 높은 곳에서 바깥을 바라보는 재미도 있을거 같다고 했다. 대표님은 복도공간과 똑같은 이유로 다락방은 추천을 하지 않으셨다. 현재 설계된 모든 공간들이 어느 공간하나 부족함없이 큼직큼직하고 멋스럽게 잘 뽑아져 있는데 다락을 넣게 되는 공간은 그 멋스러운 공간들이 깨지게 될거 같다고 하셨다. 넣는거야 얼마든지 넣을 수 있지만 건축비는 건축비대로 올라가고 높은 층고의 멋지고 넓은 공간이 사라지는게 아쉽다고 하셨다.

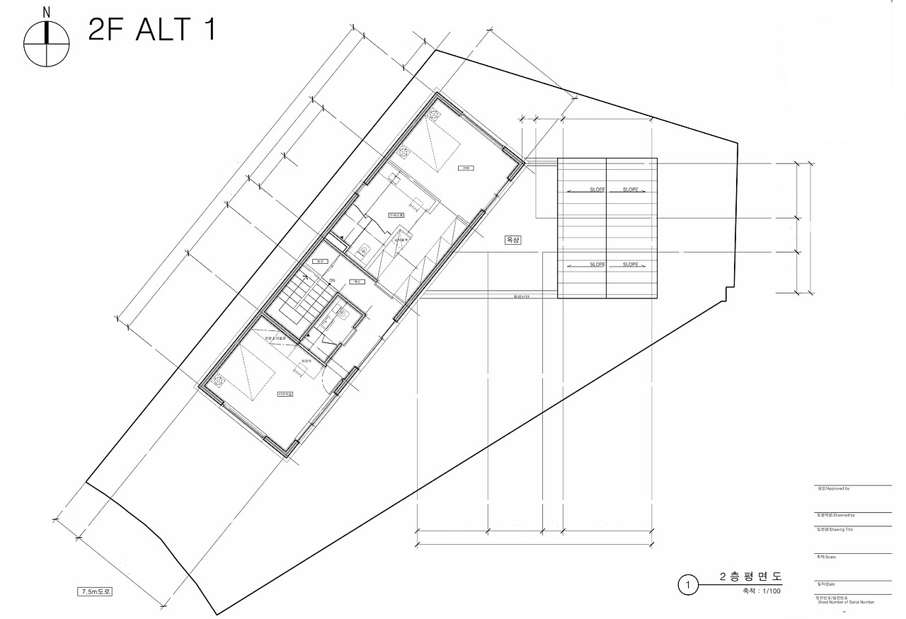
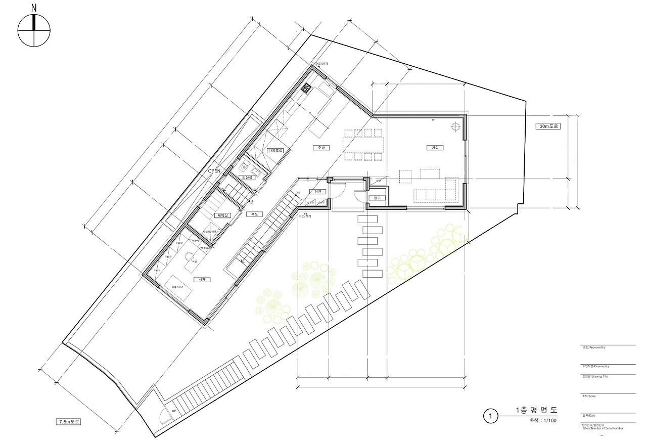
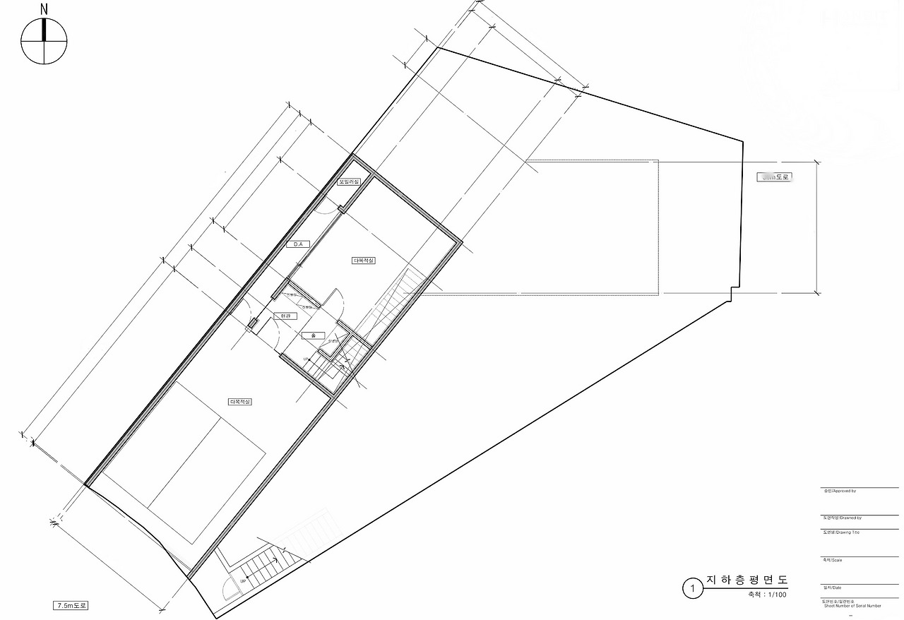
< 최종 설계도 - 지하층, 1층, 2층 >

세 가지 모두 듣고보니 대표님 말씀이 맞는거 같다. 예전에 가봤던 인테리어 구경하는 집이 떠올랐다. 현관은 아기자기한 유로풍 신발장, 복도와 거실은 도시느낌 물씬나는 모던한 유리장, 거실의 창문은 나무색상의 프렌치한 느낌을 주는 루버셔터, 안방은 편안함을 주는 동양 느낌의 편백나무 인테리어를 했던 집. 모든 걸 다 가지고자 했으나 이도저도 아닌 집이 되버렸다고 우리가 폄하했던 집. 생각해보니 정도의 차이는 있지만 우리도 이것 저것 다 가질려고 하는게 아닌가 싶기도 했다.


우리는 최종미팅시의 설계사 의견을 다 수용하고 집짓기 과정에서 가장 행복한 시간이었던 6개월간의 설계 여정이 끝이 났다.


* 6개월간의 설계 과정에서 우리의 마음은 계속 해서 바뀌었기 때문에 처음 우리가 요청했던 사항과 다른 사항들을 우리가 요청하고 있는 모습들을 보이고 있어 문맥 논리상 안맞을 수도 있다. 또한, 우리는 한 설계사에서 우리 집과 다른 집들의 설계를 함께 반영한 건축 변경심의를 진행하였기에 일반적인 설계기간보다는 조금 길어졌다.

< 출처 - 행복:한 채 - 행복도시 단독주택 정보지원시스템 >




설계 과정에 대하여...

예전에 업무상 영상을 제작하는 프로젝트를 진행한 적이 있다. 업계에 인지도도 있고 능력있으신 PD님과 함께 하였는데 나는 담당자 변경으로 영상이 어느 정도 제작된 이후에 합류하게 되었다. 나는 영상제작 담당자이지만 영상제작 전문가도 아니고 프로젝트에 뒤늦게 합류한 탓에 그간 진행되었던 경위를 정확하게 알지는 못하기에 기존 영상 제작 컨셉과 방향성을 존중하며 PD님과 의문사항 위주의 질문을 던져가며 프로젝트를 진행하였다. 어느 정도 영상 제작이 진행되어 상부에 제작되고 있는 내용을 보고하였고 보고 때마다 많은 지시사항을 받아오게 되었다. 지시사항이 지금까지 만들었던 내용을 싸글이 뒤엎는 사항들이 많아 매우 곤혹스러웠지만 나름 중심을 잘 잡아가며 영상제작을 마무리할 수 있었다. 다만, 그 과정에서 당초 기획했던 의도와는 다른 방향으로 많이 틀어진 부분은 조금 아쉬었다. 당초에 컨셉으로 하였던 인문학적인 부분을 강조하여 전문가인 PD님과 작가님께 조금 더 믿고 맡겨질 수 있으면 어땠을까 하는 아쉬움이 아직까지 있다.


설계도 비슷한거 같다. 당연히 건축주 입장에서는 내 집이니까 내 마음대로 짓는게 가장 좋겠지만 어찌됐든 건축주는 비전문가다. 우리는 기껏 살아본게 아파트나 구옥만 살아본 사람들이라 우리가 알고 있는 세계(아파트에 익숙한 구조)를 기준으로 얘기를 하게 된다. 건축가분께 왜 이렇게 설계를 했냐고 따지기(예를 들면 방문을 왜 힘들게 미닫이로 하는지?, 세탁실이 왜 2층에 있는지? 거실과 주방은 함께 있어야 집이 커보이지 않는지? 등등)보다는 열정과 실력이 있는 건축가분을 만났다면 어느 정도 최대한 맡기는 것도 좋은 방법 같다. 내가 보지 못했던 세계를 이미 수십차례 이상 겪어보고 직접 만들어 보셨던 분들의 생각과 세계는 비전문가의 식견보다는 월등히 높다고 본다. 나중에 들은 얘기지만 주민 한분은 정말 위와 같은 방식으로 건축사무소 소장님께 설계 관련 거의 대부분을 위임하셨다고 한다. 우리는 너무 많은 의견을 제시한 건 아닐까? 최초 스케치대로 갔어도 매우 재밌는 생활이 가능했을 거 같단 생각이다.

그렇다고 아무 생각을 하지 말라거나 모든 걸 건축가에 맡기라는 건 아니다. 설계자의 집이 아닌 나의 집이므로 나의 생활 습관을 100% 반영시키지는 못할 것이기에, 설계에 대한 시뮬레이션을 해보고 의문이 드는 사항은 전부 얘기를 나눠보고 설계 의도를 들어보는 과정은 반드시 필요하다고 본다.

많이 꿈꾸고, 많이 얘기나누고, 많이 의문을 가지고, 많이 물어보고, 많이 경청함이 좋은 집을 만드는 방법이라는 생각이다.



keyword
매거진의 이전글5. 단독주택 설계 1