brunch

한국식 바베큐(BBQ)의 재발견

브랜드와 전략 그리고 공간을 통합하는 컨셉

by No Stress Big Money
DSC_6769.jpg

모범갈빗살[Mobeom_GBS]

- 주소 : 서울 서초구 서초대로73길 40 강남오피스텔 1F

- 면적 : 230.00㎡

- 착공/준공 : 2017년 06월 착공 / 2017년 8월 준공

- 설계 : (주)엔에스비엠컴퍼니

- 시공 : (주)엔에스비엠컴퍼니

DSC_6748.jpg
DSC_6754.jpg

[한국식 바비큐(BBQ)의 재발견]

바비큐(BBQ) 문화는 대표적인 미국식 문화이다. 가족 모임을 하게 되면 으레 바비큐(BBQ)가 등장하기 마련이다. 고기나 해산물 등을 숯불에 푸짐하게 구워 온 가족이 풋볼이야기나 하면서 즐겁게 웃고 떠드는 모습을 영화에서 본적이 있을 것이다.

바비큐 전문요리사 셰릴 재미슨과 빌 재미슨의 공동저서인 ‘굽기 위해 태어난 : 미국식 축하의례(Born to Grill : An American Celebration)’에서 “미국인들은 여전히 바깥에서 요리하기를 고집하면서 이를 흥겨운 파티로 만들었다”라고 분석하고 있다.

[모범갈빗살]의 공간은 여러 사람들이 둘러 앉아 활기차게 웃고 떠드는 모습을 상상하면서 시작하게 됐다. 아무렇게나 배치되어 있는 테이블에 고기를 구우면서 웃음소리가 끊이질 않던 시절. 누가 생일파티라도 하면 서로 축하해주고 케잌도 나눠 먹던 시절을 생각하면서, 한국 바비큐(BBQ) 문화의 모습을 재발견 해봤다.

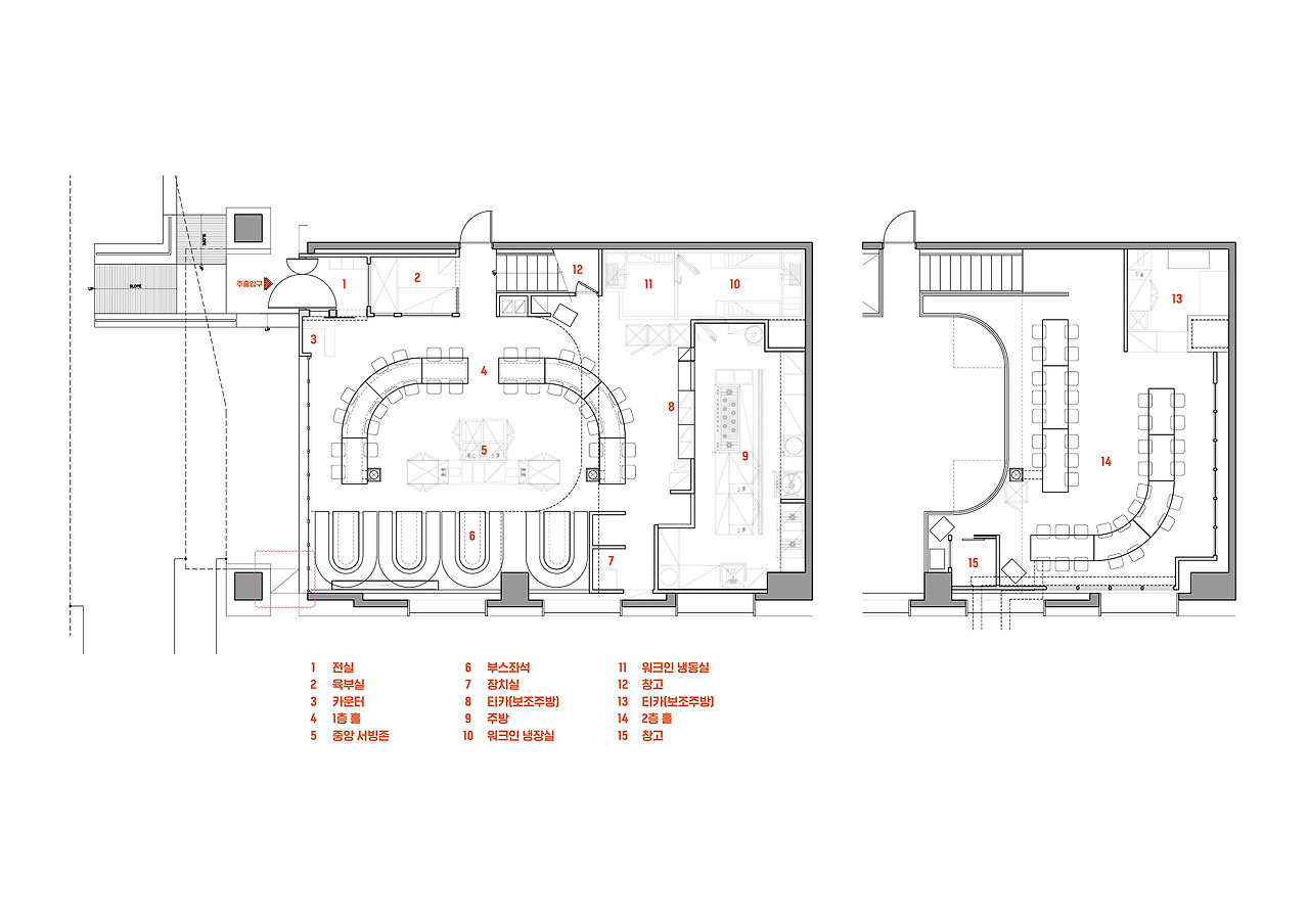
평면도_1.jpg
DSC_6703.jpg

[동선에 따른 시퀀스의 변화]

[모범갈빗살]은 강남역 번화거리 한 켜 뒤쪽에 위치해 있다. 1층에 위치하며 도로변에서 조금 뒤로 물러나 있다. 거리에서 누구나 찾을 수 있게 레트로한 네온 돌출 싸인이 걸려 있으며 출입구 역시 같은 무드로 디자인 되어 있다.

출입구와 홀 사이에 전실을 배치하고, 부분별로 환기 그릴을 설치해 내/외부 압력차를 최소화 했다. 전실로 들어서게 되면 전면에는 거대한 짝갈비가 걸려있는 쇼케이스를 볼 수 있다. 신선한 고기를 직접 정형해서 사용하기 때문이다. 홀 내부로 들어서면 둥그렇게 연결 되어 있는 테이블이 배치되어 있다. 마치 모두가 일행인듯한 분위기를 느낄 수 있으며 테이블 위로 같은 형태의 라인조명이 전체 구조를 더 잘 드러내게 한다.

출입구 바로 옆에는 고기를 정형하는 육부실이 위치해 있다. 고객들이 주문하는 고기들을 직접 발골하고, 정형해서 푸짐하게 접시에 얹어서 서빙이 된다. 고객들은 직접적으로 퍼포먼스를 보게 됨으로서 더욱 더 신뢰감을 갖게 된다.

2층으로 이동하는 계단을 오르면 좀 더 아늑한 무드의 다락방이 나타난다. 다락방이라고 하기엔 층고가 높은 편이지만 무늬목의 우드톤과 간접조명, 창문 등의 요소들이 공간을 압축해서 아늑한 분위기를 형성한다. 2층 테이블에서 유리난간 너머 1층의 모습을 내려다 보면 사람들이 줄지어 앉아 있는 모습을 볼 수 있다. 이 모습이 가장 한국적인 모습의 바비큐(BBQ) 문화라고 생각한다.

DSC_6718.jpg
DSC_6728.jpg
DSC_6780.jpg
DSC_6779.jpg

[효율적인 구조의 테이블 배치]

일반적인 식당에 가면 주방에서 서빙을 위해 테이블 사이의 복도를 지나 고객에게 접근하게 된다. 서비스 이후에는 주방 인근의 대기존(티카)에서 머물면서 호출벨이 울리면 다시 서비스를 시작하게 된다.

[모범갈빗살]의 홀 구조는 마치 포장마차의 바 테이블과 흡사하다. 홀 중앙에 서빙존을 형성해서 그 주위로 좌석을 배치했다. 서버들은 중앙 서빙존에 대기하면서 고객들을 관리한다. 아주 짧은 동선으로 다양한 방향의 좌석을 케어할 수 있다. 중앙 서빙존에는 빠르게 서비스를 할 수 있는 주류 냉장고 및 토핑 냉장고들이 배치되어 있으며 간단한 세척을 위한 싱크대도 배치되어 있다.

DSC_6824.jpg
DSC_6831.jpg

[브랜드와 전략 그리고 공간을 통합하는 컨셉]

공간을 계획하기 전에 브랜딩을 주관하던 팀(이지예 팀장)과 미팅을 하면서 “아! 겉모습만 표현하기 보다는 행태 자체를 구현해야겠구나!” 라는 느낌을 받았다. 한창 레트로 열풍이 불기 시작했던 대한민국. 그리고 짝고기를 발골하고, 정형해서 최고의 신선함을 보장하는 아주 [모범]적인 음식점. 이런 스토리텔링은 하나의 공통된 핵심을 가지고 있었다.

공간의 동선과 구조는 옛모습을 떠올릴 수 있게 계획하고, 시각적으로 보여지는 VMD 부분들도 레트로한 무드를 유지했다. [모범]이라는 컨셉에 맞게 무궁화 형태를 키 비주얼로 잡고, 다양하게 연출했다. 외부 출입문 우측에는 메뉴판을 만들면서 하부에 5성급 호텔의 별 5개 주물 현판을 차용해 무궁화 5개의 디자인도 적용했다.

내부 공간은 우드 테이블 상판과 화이트 모자이크 타일의 레트로한 조합을 구성했고, 벽면의 어두운 벽돌타일은 마치 외부에서 식사를 하는 느낌을 주려고 노력했다. 톤 다운된 블루컬러는 마감자재와 어우러지면서 레트로함을 한층 더 부각시켰다.

1층 벽면에는 좀 더 아늑한 좌석을 만들기 위해 라운드형 부스석을 배치했다. 직각의 선으로 좌석이 구분되는 것이 아니라 자연스럽게 모서리에도 앉을 수 있게 하려는 의도이다. 그리고 촘촘하게 미싱이 되어있는 등받이 쿠션과 스탠드 조명은 오래된 경양식집의 모습이 떠오르기도 한다.

DSC_6845.jpg
DSC_6849.jpg
DSC_6713.jpg
DSC_6795.jpg

[시간이 지난 지금의 모범갈빗살]

[모범갈빗살]은 오픈 이후, 지금까지 꾸준한 사랑을 받고 있다. 현 시점에서 바라보면 옛 모습을 표현하고 싶었고, 그렇게 사용되어진 마감자재들이 실제로 세월이 지나 더욱 그 가치를 가지게 됐다고 생각한다. 오래 쓰기 위해 니스칠을 한듯한 무늬목 마감재는 이제는 더욱 그 광을 발하고 있고, 사용감이 묻어 있는 테이블들 역시 더욱 자연스러워졌다. 그리고 가장 중요한 운영방법 역시 변하지 않고 직접 발골하고, 정형하며 그대로 유지해왔다. 공간이 가지는 힘은 시각적인 것만 것 아니라는 생각을 또 한번 하게된다.

DSC_6865.jpg


keyword
작가의 이전글청담동 이면도로에 장인의 작업실을 만들다.