brunch

목조로 짓는 아름다운 전원주택

by e분양캐스트

전원주택(단독주택)은 다양한 구조 재질에 의해 나뉩니다. 그중에서 나무가 주요 구조부를 가지는 집, 친환경 목조주택의 특장점에 대해 알려드립니다.


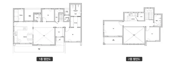
%EB%B3%80%ED%99%98_1%EC%A7%84%EC%A3%BC%EB%AA%A8%EB%8D%B8%ED%95%98%EC%9A%B0%EC%8A%A4.jpg?type=w1200 [경골목구조 사례-경남 진주 63py]




%EB%B3%80%ED%99%98_1%EC%A7%84%EC%A3%BCp.jpg?type=w1200


경골목구조(경량 목구조) 건축이란?


일반적으로 목조주택은 경골목구조(경량 목구조)로 주로 북미에서 수입되는 규격 각재를 사용하여 주요 구조(규격화된 목재와 o.s.b 합판으로 벽체를 제작하여 기둥. 보 구조가 아닌 벽체 구조로 된 구조부)를 형성하고 패럴 램이나 글루램, 아이 조이스트 등 공학목재를 이용하여 초과 하중을 보완하는 형식으로 지어집니다.

목조주택이 생소한 분들은 통나무나 한옥처럼 외부 사이딩이 나무로 노출되어 있는 집을 떠올리기 쉬운데요, 경골목구조의 주택의 경우 완공 후에 보수가 필요 없는 재질의 외장재(ex>세라믹 사이딩, 징크, 소성 벽돌, 스타코플렉스 등)를 사용하여 일반 콘크리트 주택과 비슷한 외관을 가집니다.


%EB%B3%80%ED%99%98_2%EA%B4%91%EC%96%91.jpg?type=w1200 [경골목구조 사례-전남 광양 46py]



%EB%B3%80%ED%99%98_2%EA%B4%91%EC%96%91plan.jpg?type=w1200


왜, 경골목구조 주택이 좋은가?


목조주택의 장점으로는 크게 ①경제성, ②안전성, ③친환경성을 들 수 있습니다.

①목재는 가공성이 뛰어나고 규격재의 사용으로 시공의 효율성이 있습니다. 상대적으로 낮은 시공비로 고품질의 주택을 지을 수 있으며 기초를 제외하고 콘크리트 양생 과정이 필요 없는 건식공법으로 공기(工期)가 짧습니다. 또한 목조주택은 벽체가 단열과 구조의 역할을 동시에 하므로 공간 활용도가 뛰어나며 우수한 단열 성능으로 에너지 비용을 절감시킵니다.

②목조주택은 지진의 응력에 잘 견디는 구조체이며 뛰어난 내화성능을 가지고 있습니다.

내진성: 압축력이 강하고 인장력이 약해 지진에 취약한 철근콘크리트조에 비해 목조주택은 탄성과 충격 흡수 성능이 뛰어나 건물의 파괴를 견디고 복원될 확률이 높습니다. 만약 건축물의 붕괴 사고가 생기더라고 목조주택은 구조상 생존공간이 많이 확보되고 또 낙하물의 무게가 가벼워 충격 시에 인체에 피해가 적습니다.

내화성: 표면에 불이 붙는 착화 온도가 매우 높으며 화재가 발생해도 표면만 탄화되고 내부는 탄화된 부분이 공기 유통을 차단하므로 타지 않습니다. 철근콘크리트 주택은 석유화학제품 원료인 내장재에서 발생하는 시안화수소, 에틸렌, 메탄 등의 치명적인 유해가스 발생으로 흡입 시 사망률이 높습니다. 하지만 목재는 연소 시, 소량의 일산화탄소와 1500㎎/g 정도의 이산화탄소가 배출되며 시공 단계에서부터 내측 구조재 위에 불연성 석고보드를 두 겹 설치하여 화재가 번지는 것을 미연에 방지합니다.

③콘크리트 속 유해 물질들은 인체를 공격해 질병을 유발합니다. 친환경 자재인 목조로 지은 주택은 스스로 실내 온∙습도를 조절하여 쾌적한 환경을 조성하고 피톤치드 같은 생리활성물질을 분비하여 아토피 피부염과 스트레스 등을 완화시킵니다. 지난 2018년 라돈 관련 이슈가 연달아 터지면서 건강한 친환경 목조주택에 대한 관심도는 더욱 높아지고 있습니다.


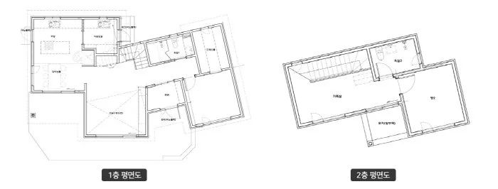
%EB%B3%80%ED%99%98_3%EA%B4%91%EC%96%91.jpg?type=w1200


99F73E4D5F855AA434034F [경골목구조 사례-전남 광양 38py]




%EB%B3%80%ED%99%98_3%EA%B4%91%EC%96%91g%ED%8F%89%EB%A9%B4%EB%8F%84.jpg?type=w1200


디자인과 기능까지 모두 잡은 목조주택, 시공사는 선정은 어떻게?


나와 내 가족이 살 집, 제대로 된 시공사를 만나야 후회 없이 좋은 집을 지을 수 있습니다.

목조주택을 전문으로 스틸하우스, RC상가주택까지. ㈜하우스톡(HT종합건설)은 100% 직영공사로 거품을 뺀 가격을 현실화하고 자재 선별과 품질관리시스템으로 건강한 집 짓기를 지향하는 브랜드인데요.

무엇보다 시공품질을 최우선으로 하는 엔지니어 출신 대표의 경영철학으로 2020년 KQSI한국품질만족도 3년 연속 1위를 수상하였고 고객에게 만족을 넘어 감동을 주는 집 짓기를 목표로 하고 있습니다.

체계적인 작업 진행에 대한 자부심으로 공사현장을 투명하게 공개하며, 하우스톡의 베테랑 건축 매니저들이 건축비는 물론 토지 매입 단계에서 부대비용까지 건축에 대한 전반적인 사항에 대해 꼼꼼하게 체크하며 건축주의 취향과 예산에 맞는 1:1 맞춤 컨설팅을 세워드립니다.

설계부터 시공까지, 지금 바로 하우스톡만의 차별화된 맞춤 설계와 시공 능력을 경험해보세요!


%ED%95%98%EB%8B%A8%EB%B0%B0%EB%84%88.jpg?type=w1200

http://www.house-talk.co.kr/


keyword
매거진의 이전글전원주택, 겨울을 따뜻하게 나기 위한 단열 방법!