경남 남해군 목조주택짓기 시공현장 살피기!

in 경남 남해군

by 공간제작소
20191213_목조주택짓기_공간제작소_01.jpg

안녕하세요-!

미래기술 프리패브 목조주택 공간제작소입니다.


점점 추워지는 날씨인데요, 겨울 공사는 목조주택짓기 현장 시공을 하신다면 여러 가지 변수가 있어 공사 기간이 길어지는 등 차질이 생길 수 있으나 프리패브 공법으로 짓는 공간제작소의 목조주택짓기 기술은 이런 기후의 영향을 받지 않으므로 공사 기간의 차질 없이 정상적으로 시공이 가능합니다. 그럼 오늘은 경남 남해군에 위치한 목조주택짓기 시공 현장을 살펴보실까요?


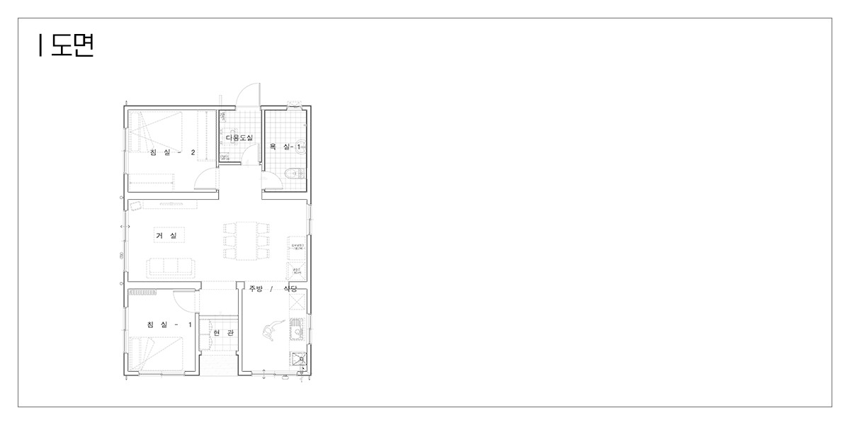
01. 건축설계.jpg
20191213_목조주택짓기_공간제작소_02.jpg ⓒ 공간제작소
설계개요

대지위치 경상남도 남해군

건축용도 단독주택

건축공법 경량목구조

건축규모 지상 1층


총 75.46㎡(22.82py)

1층 75.46㎡(22.82py)

02. 인허가.jpg
20191213_목조주택짓기_공간제작소_03.jpg ⓒ 공간제작소

대지의 형질과 모양, 위치에 맞게 침실 구조를 선택하고 현관을 들어서면 우측에는 주방/식당과 거실이 바로 연계되어 있기 때문에 가족 간의 소통이 활발히 이루어질 수 있도록 설계하였습니다. 창호 위치 또한 주택의 방향을 고려하여 설계하여 어느 방향에서든 조망이 들어설 수 있도록 시공하였습니다.

03. 골조공사.jpg
20191213_목조주택짓기_공간제작소_04.jpg ⓒ 공간제작소

목조주택짓기 시 가장 중요한 작업이 바로 골조공사입니다. 골조공사는 말 그대로 건물의 뼈대를 만들어주는 작업이기 때문에 여기서 틀어지면 나중에 큰 하자로 이어지기 마련인데요, 공간제작소는 자재를 자동화시스템으로 재단하기 때문에 오차 없는 시공을 자랑합니다. 더불어 빌더의 피로도를 덜어주어 주택의 품질 또한 향상했습니다.

04. 전기설비.jpg
20191213_목조주택짓기_공간제작소_05.jpg ⓒ 공간제작소

주택의 골조공사가 끝이 나면 해당 모듈을 레일 시스템으로 수평을 맞춘 후 옮겨 전기배관, 수도 연결 등 설비 공사가 이어집니다. 사전에 약속된 도면을 보며 각종 배관을 시공하며 진행합니다.

05. 내장공사.jpg
20191213_목조주택짓기_공간제작소_06.jpg ⓒ 공간제작소
20191213_목조주택짓기_공간제작소_07.jpg ⓒ 공간제작소

경량목구조의 주택의 경우 목조주택짓기 시 방수가 가장 중요합니다. 작은 틈새로 스며드는 습기가 오랫동안 머물면 목재가 썩기 때문에 바닥 방수 공사를 꼼꼼하게 시공합니다.

20191213_목조주택짓기_공간제작소_08.jpg ⓒ 공간제작소

방수공사가 이어지면 물을 사용하는 공간인 주방과 욕실 등에 타일 작업이 이루어집니다. 가구는 목조주택짓기 시 거의 마지막 공정에 시공되기 때문에 이때 타일 위치가 잘못 선정되면 타일이 보기 안 좋게 끊기는 위험이 있어 넉넉하게 시공이 이루어집니다.

06. 외장공사.jpg
20191213_목조주택짓기_공간제작소_10.jpg ⓒ 공간제작소

외장공사를 할 때에도 마찬가지로 투습 방수지를 통하여 꼼꼼히 방수 작업을 합니다. 실내에서 이루어지는 작업으로 물이 들어갈 위험은 없으나 모듈러 특성상 주택의 이동이 있으므로 그 사이 습기의 유입을 막기 위하여 타이벡으로 꼼꼼히 작업하여 상차 작업이 이루어집니다.

07. 현장설치.jpg
20191213_목조주택짓기_공간제작소_09.jpg ⓒ 공간제작소

현장으로 설치하여서도 지붕 방수 작업과 사이딩 마감 작업, 모듈 결속 등 다양한 작업들이 이어지고 나면 목조주택짓기가 마무리됩니다. 현장으로 이동하여 모듈을 설치하는 작업은 팀장급 전문 인력만이 하므로 하자의 위험을 더욱 덜어줍니다. 화이트하고 깔끔한 주택이 완공되었습니다.


오늘 경남 남해군 목조주택짓기 시공현장, 경남 남해군에 지어진 목조주택은 22평 목조주택으로 단란한 가족생활을 위하여 단층으로 계획되었습니다. 다음 시간에도 다른 현장을 보여드리며, 공간제작소의 프리패브 공법을 좀 더 세세하게 알려드리는 시간 가지도록 하겠습니다!


7초 건축상담 하러가기 ▶ https://c11.kr/ggbrunch

공간제작소 완공영상 보러가기 ▶ https://c11.kr/ggyoutube

공간제작소_배너_하단.jpg


keyword
매거진의 이전글경량목구조 전원주택짓기 시공현장 미리 보기!