경기도 용인 전원주택건축 비용 줄이는 법

in 경기도 용인시

by 공간제작소
20200313_전원주택건축_공간제작소_01.jpg

안녕하세요-!

미래기술 프리패브 목조주택 공간제작소입니다.


오늘 소개해드릴 전원주택건축 현장은 경기도 용인시에 위치한 현장입니다. 전원주택건축 시 비용을 아끼기 위한 방법은 어떤 것들이 있는 지 현장과 함께 알아보겠습니다!


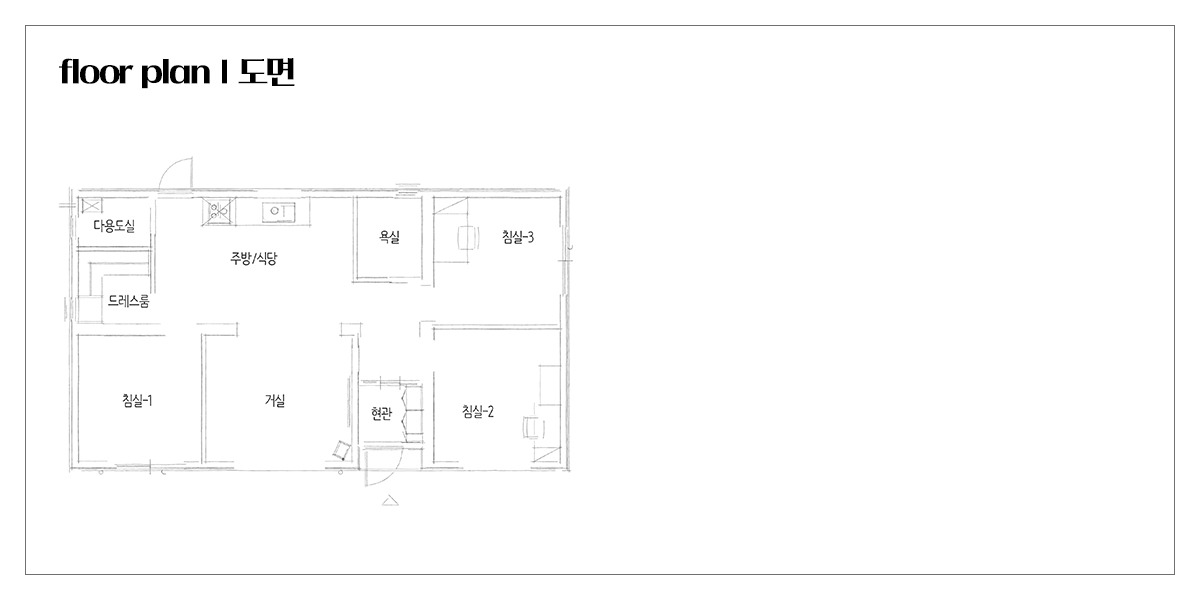
01.-건축설계.jpg
20200313_전원주택건축_공간제작소_02.jpg ⓒ 공간제작소

전원주택건축 시 비용을 아끼기 위해서는 설계가 단순해야 합니다. 벽이 많을 수록 공정이 복잡해질수록 그에 따른 비용이 추가되기 때문입니다. 더불어 공간제작소는 박스형 구조로 되어있기 때문에 가구를 배치함에도 용이하며, 직사각형 모듈러 공간의 효율도 뛰어나게 설계되고 있습니다.

02.-인허가.jpg
20200313_전원주택건축_공간제작소_03.jpg ⓒ 공간제작소
03.-골조공사.jpg
20200313_전원주택건축_공간제작소_04.jpg ⓒ 공간제작소

공간제작소는 전원주택건축 시 기계팀에서 자동화설비시스템을 이용하여 생산된 벽체(패널)을 출력되어 있는 조립도면을 통해 레이저레벨기를 이용하여 수평, 수직을 보고 조립하는 공정을 거칩니다. 이때 레일시스템으로 수평이 맞춰져있고 레이저레벨기를 통하여 한번 더 세심하게 조립하는 과정이 이어집니다.

04.-전기설비.jpg
20200313_전원주택건축_공간제작소_05.jpg ⓒ 공간제작소

이동식목조주택이기 때문에 전기배관과 배선이 한번에 연결 되지 않습니다. 모듈과 모듈의 전기를 연결할 때 건물 구조나 상황에 맞게 점검부를 만들어 서로 연결될 수 있게 전기 배관 및 배선을 연결하는 작업입니다.

05.-내장공사.jpg
20200313_전원주택건축_공간제작소_06.jpg ⓒ 공간제작소

전원주택건축 시 생산된 모듈에 전기, 설비 공정이 끝나면 내부 마감이 이어집니다. 내부 벽체 단열을 하고 내장합판(8T)를 한 뒤 석고보드(9.5T)를 시공하고 목문을 설치한 뒤 몰딩을 마감합니다. 몰딩 마감 때에는 천장, 창호, 목문, 걸레받이 등의 마감 작업이 이루어집니다.

06.-외장공사.jpg
20200313_전원주택건축_공간제작소_07.jpg ⓒ 공간제작소

외장공사는 생산된 모듈에 전기, 설비, 창호 공정이 끝나면 외부 마감을 합니다. 외부 벽체를 단열하고 외장합판(11T)를 시공하고 투습 방수지를 통하여 방수 작업을 거친 뒤 창호공사가 이어집니다. 창호공사가 끝난 뒤 외장재를 부착하고 후레싱 및 실리콘 마감을 거친 뒤 도면 참고하여 지붕 골조 재단과 지붕 단열, 합판시공(11T)를 거친 뒤 방수 시트 작업을 하고 지붕 후레싱 작업과 롤슁글을 마감하면 상차가 이루어집니다.

07.-현장설치.jpg
20200313_전원주택건축_공간제작소_08.jpg ⓒ 공간제작소

공간제작소는 위와 같은 과정을 공장 내에서 거치기 때문에 전원주택건축 비용을 절감시킬 수 있습니다. 더불어 모든 공정이 마무리 된 모듈을 크레인에 실어 현장으로 이동하게 됩니다.

08.-완공.jpg
20200313_전원주택건축_공간제작소_09.jpg ⓒ 공간제작소

현장에서는 롤슁글 마감과 모듈 결속 및 마감 작업을 거쳐 단 3일만에 시공이 완료됩니다. 이동비는 지역 별, 도로 상황 별로 조금씩 상이하니 자세한 건축상담은 아래 배너를 통해 이용해주세요!


오늘 소개해드린 경기도 용인 전원주택건축 현장! 외관만 화려하고 아름다운 집보다 누구에게나 합리적이고 깔끔한 전원주택을 원하신다면? 주저말고 바로 아래 배너를 통해 공간제작소에 문의하셔서 행복한 전원생활 하세요!


7초 건축상담 하러가기 ▶ https://c11.kr/brunch

공간제작소 완공영상 보러가기 ▶ https://c11.kr/ggyoutube

공간제작소_배너_하단.jpg


keyword
매거진의 이전글경북 문경시 단독주택시공, 바닥난방공사