예쁜 목조주택, 진행 현장 모습은 어떨까?

강원도 철원군

by 공간제작소
20190807_예쁜목조주택_공간제작소_01.jpg

안녕하세요-!

반값주택 공간제작소입니다.


오늘은 강원도 철원군에 위치한 예쁜목조주택, 진행 현장에 대해 소개해드리려고 합니다. 예쁜목조주택은 완공되었지만 앞 조경이라든지 가구는 들어오지 않은 상태인데요! 한 번 미리 맛보기 하러 가실까요?

20190807_예쁜목조주택_공간제작소_02.jpg
이평리_스케치업.gif ⓒ 공간제작소
Exterior :: 외관
DJI_0047.jpg
K71A2902-HDR.jpg
ⓒ 공간제작소

주위에 크고 작은 나무가 아늑하게 품어주는 하얀 집 한 채가 눈에 띄는 모습입니다. 건축주님께서는 그저 소박하면서 내구성이 좋은 집을 원하셨는데요, 가족의 생활 라이프에 맞춰진 예쁜목조주택입니다. 아직 앞마당에 조경이 완성되지 않았지만 조경이 완성된다면 푸르른 잔디들과 함께 더욱 예쁜목조주택이 완성되겠죠?

Interior :: 내부
K71A2815.jpg ⓒ 공간제작소

현관문을 열고 집 안으로 들어서면 가장 먼저 거실이 위치하고 있습니다. 거실의 우측에는 시원한 큰 창호를 배치하여 창을 통하여 한 폭의 그림 같은 산과 나무들을 감상할 수 있습니다. 더불어 빽빽이 둘러싸여 있는 아파트의 풍경이 아닌 자연 속에 자리 잡았음을 느끼게 해 주어 여유로움을 안겨주는 거실 공간입니다.

K71A2811-HDR.jpg ⓒ 공간제작소

그리고 거실과의 공간을 연계하여 시공한 주방입니다. 타일벽지 시공으로 포인트를 주었고 간접 조명을 통하여 은은한 분위기를 자아내었습니다. 벽면을 따라 'ㄱ'자의 조리대가 넉넉한 길이로 설치되었으며, 여기에 아일랜드 식탁을 연결해 'ㄷ'자 형태의 조리 공간 겸 식사 공간으로 완성시켰습니다. 주방을 전반적인 모노톤 인테리어에 걸맞게 블랙 앤 화이트의 펜던트 조명 세 개를 시공하여 모던함을 더욱 살렸습니다.

K71A2833.jpg
K71A2843-HDR_a.jpg
K71A2850-HDR_a.jpg
ⓒ 공간제작소
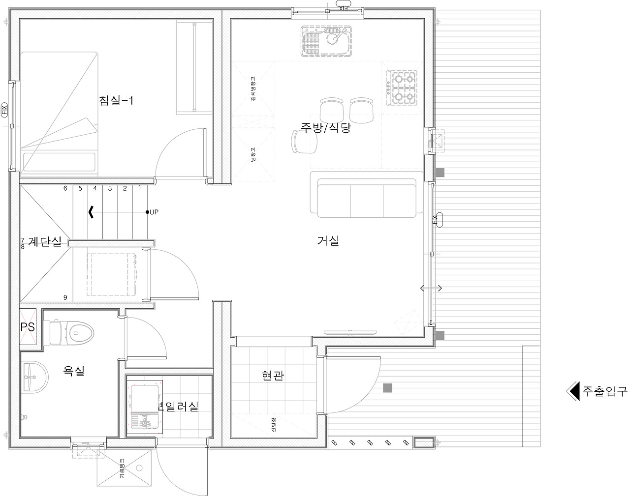
floor plan :: 도면
ⓒ 공간제작소 1층

■ 침실-1

■ 주방/식당

■ 계단실

■ 거실

■ 욕실

■ 보일러실

■ 현관

ⓒ 공간제작소 2층

■ 침실-2

■ 침실-3

■ 계단실

■ 가족실

■ 욕실









오늘 소개해드린 예쁜목조주택의 진행 현장은 재밌게 보셨나요? 아직 가구도 없고 조경도 안 된 상태지만 벌써 예쁜목조주택의 완성이 된 듯한 모습입니다. 앞으로 가구의 배치에 따라 주택의 분위기 또한 달라질 수 있습니다.


더불어 2018년 9월부터 [건축물의 에너지 절약 설계 기준]이 시행되어 열 관류율과 단열재 두께 기준뿐만 아니라 최신 KS 단열재에 대한 등급 기준을 추가로 반영하여 건축물의 단열기준이 패시브하우스의 건물 수준으로 향상되었습니다. 오늘 방문한 강원도 철원은 중부 1 지역에 속하므로, 단열에 더욱 신경 써야 하는 지역입니다. 그래서 내, 외벽 단열과 창호 등 단열의 기밀 성능에 더욱 집중하였습니다. 러시아보다 더 춥다는 강원도 철원의 겨울, 공간제작소 주택과 함께 따스하게 보낼 수 있겠죠?


7초 건축상담 하러가기 ▶ https://c11.kr/brunch

공간제작소 완공영상 보러가기 ▶ https://c11.kr/ggyoutube


keyword
매거진의 이전글단독주택시공, 볕이 잘 드는 주택을 원한다면?