묶어주기

공간이 만드는 공동체

by 박혜선

묶어주기란 무엇인가

커뮤니티 공간을 계획하는 목적은 단순히 물리적 장소를 제공하는 데 있지 않다. 궁극적으로는 사람들의 교류를 활성화하고, 지역 안에서 공동체가 형성되도록 돕는 데 있다. 그런 의미에서 ‘묶어주기(공동체 형성)’는 커뮤니티 공간 설계에서 가장 핵심적인 과제 중 하나다.


그러나 공동체는 의지만으로 만들어지지 않는다. 사람을 모아 놓는다고 해서 관계가 형성되는 것도 아니다. 서로 다른 세대와 생활 방식을 가진 사람들이 자연스럽게 마주치고, 반복적으로 접촉하며, 일상의 일부를 공유할 수 있는 구조가 필요하다. 묶어주기란 바로 이러한 조건을 공간적으로 설계하는 일이다.


묶어주는 공간은 사람을 ‘집합’시키는 공간이 아니라, 일상을 ‘겹치게’ 만드는 공간이다. 동선이 교차하고, 공유 영역이 생활의 중심에 놓이며, 머무름이 발생하는 지점이 설계될 때 관계는 강요되지 않으면서도 축적된다. 공동체는 프로그램의 결과라기보다, 공간 구조가 만들어내는 반복된 만남의 결과에 가깝다.


오늘날 도시는 세대와 기능이 분리된 채 작동한다. 노인은 노인 시설로, 아이는 아동 시설로, 성인은 각자의 직장과 주거로 흩어진다. 이러한 분절 속에서 커뮤니티 공간은 단순한 모임 장소가 아니라, 서로 다른 삶의 리듬이 다시 만나는 접점을 만들어내는 구조적 장치가 되어야 한다.


이 장에서는 노유복합센터, 마찌야 상점, 빈집 재생 사례를 통해, 공간이 어떻게 동선을 겹치게 하고, 머무름을 유도하며, 관계가 지속될 수 있는 구조를 만들어내는지를 살펴본다. 묶어주기는 선언이 아니라 설계의 문제이며, 배치와 동선, 공유 영역의 구성에서 시작된다.




세대 간 교류를 설계한 노유복합센터: 다케노코노 이에, 오카야마

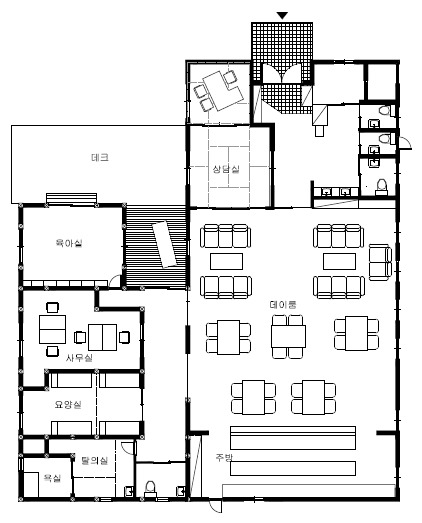
다케노코노 이에의 외관 및 평면도


공간의 태도에서 드러나는 운영 주체

2015년 1월, 다케노코노 이에(たけのこの家)를 방문하고 싶다는 이메일을 보냈을 때 돌아온 답장은 예상보다 훨씬 구체적이고 호의적이었다. 언제 오면 가장 아이와 어른의 교류를 잘 볼 수 있는지, 오카야마 시내에 머문다면 직접 차로 마중 나갈 수 있다는 제안까지 포함되어 있었다. 이어진 메일에는 홈페이지의 영상 자료를 참고해 달라는 안내와 함께, 아직 완성되지 않은 자신의 자서전 원고가 첨부되어 있었다. “아직 아내에게도 거의 보여주지 않은 글”이라며, 다케노코노 이에의 출발 배경이 담긴 부분을 읽고 오면 이야기가 더 깊어질 것이라는 설명이 덧붙여졌다. 짧은 이메일 교환만으로도, 이 공간이 어떤 태도로 사람을 맞이하는지 충분히 전달되었다.


현장에 도착해 가장 먼저 눈에 들어온 것은 건물 입구에 걸린 전 이사장이자 운영자인 사와 켄(澤健)의 얼굴 사진이었다. 시설 안내나 프로그램 설명보다 앞서, 이 공간을 만들어 온 개인의 개인의 존재가 드러나 있었다. 다케노코노 이에는 익명적인 공공시설이 아니라, 특정한 주체가 책임지고 운영해 온 공간임을 보여주고 있었다.


뉴타운의 단절 속에서 시작된 통합 케어

다케노코노 이에는 오카야마현 아카이와시 사쿠라가오카 뉴타운(岡山県 赤磐市 桜が丘 New Town)에 위치한 노유복합형 커뮤니티 공간이다. 사쿠라가오카는 약 35년 전 대규모로 조성된 단독주택 중심의 뉴타운으로, 급격한 고령화보다는 세대 간 관계 단절과 일상의 고립이 점차 문제로 드러난 지역이다. 이곳은 이러한 환경 속에서 고령자 데이서비스센터와 모자 데이서비스((親子デイサービス) 센터를 하나의 건물 안에 통합해, 통합케어로써 세대 간 일상의 접점을 회복하기 위한 시도로 출발했다.


분리하되 단절하지 않는 평면 구조

공간 구성의 핵심은 서로 다른 세대를 한 공간에 무작정 섞지 않으면서도, 완전히 분리하지 않는 데 있다. 노인과 아이는 각자의 리듬에 맞는 공간에서 생활하되, 하루 중 일정한 시간에는 반드시 마주치도록 공간과 동선, 프로그램의 사용 방식이 설계되어 있다.


현재 고령자 데이서비스의 주요 활동은 건물 중앙의 ‘데이룸’에서 이루어진다. 식사와 휴식, 소규모 프로그램이 이 공간을 중심으로 진행된다. 반면 아이와 보호자는 상대적으로 규모가 작은 ‘육아실’과 외부 데크를 중심으로 활동한다. 두 영역은 명확히 구분되어 있지만, 데이룸과 육아실 사이의 창을 통해 시선과 소리가 오간다. 교류 시간 외에도 노인들은 아이들의 존재를 인식할 수 있다.


시간으로 조절되는 교류

이 구조는 처음부터 완성된 것이 아니었다. 운영 초기에는 노인과 아이를 한 공간에 함께 두었으나, 아이들의 활동이 과도해지고 노인들이 쉽게 피로를 느끼는 문제가 드러났다. 이후 공간을 분리하고, 교류를 시간으로 조절하는 방식으로 전환하면서 현재의 구조가 정착되었다.


세대 간 교류는 매일 약 30~40분 동안 데이룸에서 이루어진다. 아이와 보호자가 이동해 노인들과 인사를 나누고 짧은 놀이와 대화를 나눈 뒤 다시 자신의 공간으로 돌아간다. 만남은 짧고 반복 가능하도록 설계되어 있으며, 노인에게 부담이 되지 않는 길이로 유지된다.


묶어주기의 공간 전략

이러한 평면과 운영 방식은 세대 간 관계를 밀착시키지 않으면서도 단절되지 않도록 조율한다. 중심 활동 공간은 분리하되, 특정 시간과 장소에 교류를 집중시키고, 개구부를 통해 느슨한 연결을 유지한다.


다케노코노 이에서의 ‘묶어주기’는 강한 결속을 만드는 일이 아니다. 서로 다른 세대가 각자의 생활을 유지하면서도 반복적으로 마주치도록 공간과 시간을 설계하는 일에 가깝다. 이 사례는 커뮤니티 공간에서 관계 형성이 프로그램의 양이 아니라, 평면 구성과 동선, 시간 설정에서 비롯될 수 있음을 보여준다.

고령자 데이서비스센터의 데이룸과 모자 데이서비스센터의 육아실
고령자 데이서비스센터의 데이룸에서 바라본 모자 데이서비스센터의 데크 공간




골목을 다시 엮는 마찌야 상가: 시마바라 이또노와, 교토


시마바라 이또노와의 위치도 및 1,2층 평면도


일본 교토 시마바라 이또노와

교토에는 마찌야(町家) 혹은 교마찌야(京町家)라 불리는 전통주택들이 지금도 곳곳에 남아 있다. 2층 규모의 목조 주택이 가로를 따라 어깨를 맞대고 늘어서 있고, 그 사이로 형성된 골목은 낯설면서도 익숙한 감각을 불러일으킨다. 아마 오래전 우리가 경험했을 법한 어린 시절의 골목 풍경을 떠올리게 하기 때문이다. 2014년 빈집활용 연구를 계기로 이 도시를 여러 차례 찾으면서, 관광지가 아닌 교토의 속살을 보게 되었고, 그 경험은 이후 2022년 연구학기에 한달살이를 할 만큼 애착으로 이어졌다.


교토를 걷다 보면 시조(四条), 고조(五条), 구조(九条)와 같은 도로 이름이 반복해서 등장한다. 숫자가 붙은 이 거리 이름들은 우연이 아니다. 격자형 가로망 위에 계획된 도시 구조의 흔적이 지금까지도 남아 있기 때문이다. 교토는 794년 천도 이후 천 년 이상 이어져 온 고도로, 중국 당나라의 수도 장안(長安)을 모델로 조성된 계획도시다. 일정한 크기의 가구(街區)를 기본 단위로 한 격자형 가로망은 오늘날까지도 도시의 골격을 이룬다. 이 가구 안에서 형성된 생활 단위가 바로 ‘마찌(町)’다. 마찌는 단순한 행정 구획이 아니라, 같은 골목을 공유하며 이웃으로 살아가는 사람들의 일상적 공동체였다.


마찌야(町家)는 이 도시 구조 속에서 발달한 주거 유형으로, 주거와 점포, 소규모 제작·생산 활동이 한 건물 안에서 함께 이루어지는 직주병존형 주택이다. 집은 곧 가게이자 작업장이었고, 골목은 이웃과 손님이 오가는 생활의 무대였다. 그래서 마찌야는 단순한 건물이 아니라, 골목을 매개로 사람들의 일과 일상이 교차하는 생활의 단위로 기능해 왔다.


그러나 고령화와 공실화가 진행되면서, 이 전통적 구조는 더 이상 자연스럽게 유지되지 않게 되었다. 특히 시마바라 지역은 과거 유곽지로 번성했던 역사를 지니고 있으나, 시간이 흐르며 점차 활력을 잃은 골목이 되었다. 이러한 상황 속에서 교토시는 2014년 「빈집활용 & 마을만들기」 모델 프로젝트를 추진하며, 방치된 마찌야를 지역 자산으로 전환하려는 시도를 시작했다. 시마바라 이또노와(島原 糸の輪)는 바로 이 흐름 속에서 탄생한 사례다. 빈 마찌야를 단순히 보존하거나 관광 자원으로 소비하는 대신, 골목에서 이어져 오던 주민 모임과 상점 간 네트워크를 다시 작동시키기 위한 실천으로 기획된 공간이다.


33m의 선형 시장

이또노와는 약 10년간 방치되어 있던 마찌야 두 채(각 약 100㎡)를 중정을 중심으로 연결해, 약 33m 길이의 선형 공간으로 재구성한 사례다. 남북으로 이어진 두 개의 골목에 접한 부지는 동쪽에 카페 출입구, 서쪽에 주출입구를 두어 하나의 대지 안에서 두 골목을 잇는다. 내부 프리 스페이스는 신발을 벗고 이용하도록 구성되어 있어, 완전한 통과형이라기보다 두 골목을 연결하는 매개 공간에 가깝다.


이 선형 공간의 중심에는 중정이 놓여 있다. 중정은 단순한 채광과 환기를 위한 장치가 아니라, 길처럼 이어진 동선의 흐름을 잠시 늦추는 지점이다. 상점 사이의 간격을 조절해 자연스럽게 발걸음을 멈추게 하고, 골목에서 걷다 잠시 서는 듯한 리듬을 건물 안쪽까지 이어지게 한다. 동쪽 카페가 자리한 처마상점(軒店, 노키미세)과, 북 갤러리(Book Gallery)로 사용되는 도마*상점(土間店, 도마미세)은 중정을 중심으로 배치되어, 골목과 내부 공간이 자연스럽게 이어지도록 한다. 이처럼 이또노와의 공간 구조는 단순히 두 채의 마찌야를 연결한 것이 아니라, 골목의 흐름을 대지 안으로 끌어들여 다시 엮는 방식으로 구성되어 있다.


테마로 엮인 상점 구성

1·2층에는 아틀리에와 상점으로 활용되는 임대공간과, 전시·모임·대관 등으로 사용되는 프리 스페이스가 함께 배치되어 있다. 상점 구성은 임의적인 것이 아니다. 카페를 중심으로 아동용 기모노 제작·판매점, 빈티지 웨딩드레스 렌탈숍, 섬유와 헝겊을 다루는 앤틱숍 등, ‘이또노와(糸の輪)’—실로 엮인 고리—라는 테마에 맞는 상점들을 선별해 입점시켰다. 이로써 이또노와는 단순한 상업시설의 집합이 아니라, 공통의 감각을 공유하는 작은 생태계를 이룬다. 상점은 개별 점포로 존재하지만, 33m의 선형 동선과 중정을 통해 하나의 시장처럼 읽힌다.


상점가 재생과 주민 관계망의 회복

이 사례의 중요한 특징은 ‘상점가 재생’과 ‘주민 관계망 회복’이라는 두 축이 동시에 작동한다는 점이다. 집주인이자 운영자는 선대부터 이 골목에 거주해 온 인접한 기모노 상점의 2세로, 공간을 개인 사업이 아니라 지역의 연장선으로 인식해 운영해 왔다. 이또노와는 월 1회 열리는 정내회** 모임 장소로 무료 제공되며, 지조봉***이나 여름 마쯔리****등 지역 행사가 열리는 골목 공동의 거점으로 활용되고 있다.


동시에 이또노와는 주변의 게스트하우스, 공방, 카페 등의 젊은 상점 주인들과의 협업하며 공동의 커피 브랜드를 개발하고, 전시·판매·이벤트를 연계함으로써, 골목 단위의 관계망을 확장해 왔다. 이는 대규모 프로그램으로 사람을 모으는 방식이 아니라, 카페에 들르는 일, 골목을 오가는 일, 전시를 준비하는 일 같은 일상적 동선과 활동을 겹치게 하여 자연스럽게 연결을 만들어내는 방식의 ‘묶어주기’다.


시간에 따른 변화와 지속성

2022년 다시 찾은 이또노와는 초기 기획과는 다른 양상을 보이고 있었다. 일부 상점은 교체되거나 예약제로 전환되었고, 오피스와 연구실이 입주하면서 공간의 성격도 다소 달라져 있었다. 공간을 사용하는 주체는 고정되지 않고 변화하고 있었다. 그러나 이는 쇠퇴가 아니라, 공간이 특정 프로그램이나 상점 구성에 묶이지 않고 새로운 관계를 받아들이는 구조임을 보여준다. 이또노와의 핵심은 개별 사용자에 있지 않고, 이를 지탱하는 공간 구조와 운영 방식에 있다.


2022년에는 「모두가 만드는 아트 광고(みんなでつくるアート広告)」 프로젝트를 진행했다. 이또노와와 관계를 맺고 있는 상점 주인과 지역 기업, 대학 연구자 등의 얼굴과 이름을 한 장의 일러스트에 담아, 공간을 둘러싼 인적 네트워크를 시각화한 작업이었다. 이는 공간 내부의 활동을 넘어, 이또노와를 매개로 형성된 관계를 밖으로 드러내는 시도였다.


운영 방식 역시 이러한 지속성을 뒷받침한다. 비교적 낮은 임대료와 짧은 계약 주기를 통해 젊은 창작자와 연구자들이 머물다 떠날 수 있는 여지를 남겨 두고 있으며, 정내회, 지조봉, 마쯔리와 같은 지역 행사는 규모를 조정하며 이어지고 있다. 공간은 완결된 구성으로 고정되기보다, 변화와 교체를 전제로 운영된다.


묶어주기의 공간 전략

이또노와에서 ‘묶어주기’는 사람을 모으는 일이 아니다. 두 골목을 잇는 선형 동선, 중정을 중심으로 한 완충 구조, 테마를 공유하는 상점 구성, 그리고 유연한 운영 방식이 겹쳐지며 관계가 이어질 수 있는 조건을 만든다. 골목과 내부가 단절되지 않고, 상점과 상점 사이가 열려 있으며, 지역 행사와 일상적 상업 활동이 겹치는 구조 속에서 사람들은 같은 흐름 안에서 마주친다.


이곳에서 공동체는 프로그램의 강도나 이벤트의 빈도로 만들어지지 않는다. 동선의 연속성과 중정이라는 완충 공간, 그리고 유연한 운영이 결합될 때 관계는 강요되지 않으면서도 반복된다. 이 사례는 ‘묶어주기(공동체 형성)’가 강한 결속을 만드는 일이 아니라, 서로 다른 사람들이 같은 공간의 흐름을 공유하도록 배치하는 일임을 보여준다.


* 도마(土間): 일본 전통주택에서 실내이지만 마루로 올리지 않고 흙 또는 낮은 바닥으로 마감한 공간. 신발을 신고 출입할 수 있어 외부와 내부를 완충하는 역할을 한다.

** 정내회(町內會): 일본의 동네 단위 주민자치 조직으로, 일정한 가구(街區) 또는 골목을 단위로 구성된다. 방재, 환경정비, 지역행사 운영 등 일상적 공동 활동을 담당하는 생활 공동체 조직이다.

***지조봉(地蔵盆): 교토를 비롯한 간사이 지역에서 골목 단위로 열리는 지역 의례. 지장보살을 모시고 어린이의 안전과 성장을 기원하는 행사로, 주민들이 함께 준비하고 참여하는 동네 공동체 행사이다.

****마쯔리(祭り): 일본의 지역 축제. 신사(神社)를 중심으로 한 종교적 행사에서 비롯되었으나, 오늘날에는 지역 주민들이 함께 준비하고 참여하는 공동체 행사로 이어진다. 골목과 광장, 상점가를 일시적으로 공동의 공간으로 전환하는 계기가 되기도 한다.

이또노와의 동쪽 출입구 및 내부의 카페 및 도마미세
이또노와의 중정및 프리 스페이스

2022년 이또노와의 카페 입구 및 「모두가 만드는 아트 광고」 프로젝트 그림




함께 살며 만들어가는 나가야 커뮤니티: 혼마찌 에스코라, 교토


혼마찌 에스코라의 위치도 및 배치도
에스코라로 들어가는 입구 및 대지 전체 전경


골목 안쪽의 나가야 커뮤니티

혼마치 에스코라(本町エスコーラ)라는 이름에는 이 공간의 성격이 담겨 있다. ‘혼마치(本町)’는 지역명이고, ‘에스코라(Escola)’는 포르투갈어로 ‘학교’를 뜻한다. 그러나 이는 제도적 교육기관이 아니라, 서로 다른 사람들이 함께 살며 관계 속에서 배우는 삶의 장으로 기획된 공간이다.


혼마치 에스코라(本町エスコーラ)를 찾아가는 길은 쉽지 않았다. 구글 맵을 따라 혼마치 도오리(本町通り)에 도착한 뒤에도 다시 방향을 틀어, 사람 한 명이 겨우 지나갈 만큼 좁은 골목으로 한참을 들어가야 했다. 관광지의 중심에서 조금만 벗어나도 교토의 골목은 급격히 조용해지고, 길은 점점 더 사적인 영역처럼 느껴진다. 에스코라는 바로 그런 골목의 깊숙한 곳에 자리 잡고 있었다.


첫 방문은 한여름, 기온이 35도를 오르내리던 8월의 어느 날이었다. 안내받은 커뮤니티 공간에는 에어컨이 없었고, 선풍기만 천천히 돌아가고 있을 뿐이었다. 인터뷰를 진행하는 동안 더위에 정신이 아득해질 만큼 버티기 쉽지 않은 시간이었다. 데크와 마당에는 풀이 무성했고, 생활 도구와 자재가 그대로 놓여 있었다. 이곳은 계획적으로 조성된 커뮤니티 시설이라기보다, 주거의 연장선에 놓인 생활공간에 가까웠다.


나가야 구조와 내부 배치

혼마치 에스코라는 1940년대에 지어진 교토 특유의 나가야*(長屋)가 연속된 필지의 안쪽에 자리 잡고 있다. 도로에서 바로 접근할 수 없고, 골목을 따라 들어온 뒤 한 번 더 안쪽으로 진입해야 공동의 마당과 커뮤니티 공간이 열린다. 이러한 진입 구조는 불특정 다수를 위한 장소라기보다 관계를 전제로 한 생활공간임을 암시한다.


공간 구성은 단순하다. 1층에는 공유 주방과 커뮤니티 공간, 마당이 배치되어 있고, 2층에는 주거와 작업을 위한 방이 놓여 있다. 중앙의 커뮤니티 공간과 데크는 주방, 정원, 각 방으로 이어지는 동선이 교차하는 지점에 위치한다. 세탁을 하거나 식사를 준비하고, 마당으로 나가는 과정에서 거주자들은 자연스럽게 서로 마주친다. 관계는 프로그램이 아니라 생활 동선의 반복 속에서 형성된다.


주방, 정원, 세탁 공간은 공용으로 사용되며, 거주자들은 정기적인 식사와 회의를 통해 공간 운영과 재정, 주요 의사결정을 논의한다. 개인의 방은 존재하지만, 생활의 대부분은 공유 공간을 경유하며 이루어진다. 공간 구조가 공동생활을 전제로 하고 있는 셈이다.


외부와의 긴장, 그리고 정착

초기에는 외부 예술가와 창작자들이 드나들며 전시와 소규모 이벤트가 열렸고, 이에 따른 소음 문제와 지역 주민과의 긴장이 발생하기도 했다. 기존 주민들에게는 외부인이 모이는 공간이라는 점 자체가 낯설게 받아들여졌다.


그러나 시간이 지나며 공간의 성격은 변화했다. 단기 이용 중심의 활동은 줄어들고, 실제 거주자의 비중이 높아졌다. 2022년 방문 당시에는 아이를 포함한 여러 가구가 일상적으로 생활하는 공간으로 자리 잡고 있었다. 아이의 존재는 이웃과의 관계를 완화하는 계기가 되었고, 혼마치 에스코라는 ‘외부인이 드나드는 장소’에서 ‘동네 안에서 함께 살아가는 집’으로 인식되기 시작했다.


이 프로젝트는 교토시의 빈집활용 정책을 계기로 시작되었으며, 운영 주체인 일반사단법인 에스코라가 중심이 되어 운영되고 있다. 누구나 가볍게 드나드는 열린 커뮤니티를 지향하기보다, 함께 살고 함께 관리하는 생활 구조를 전제로 한다.


묶어주기의 공간 전략

이 사례에서 ‘묶어주기’란 강한 결속이나 의도적인 결합을 뜻하지 않는다. 공유주방과 마당, 이어지는 생활 동선 속에서 거주자들이 반복적으로 마주치도록 만드는 일상의 접점을 설계하는 일에 가깝다.

공동체는 이벤트의 빈도나 프로그램의 강도로 만들어지는 것이 아니라, 일상이 자연스럽게 겹치는 공간 구조 속에서 형성된다. 결국 공동체는 운영의 결과라기보다, 배치와 동선, 공유 영역의 구성에서 비롯된다. 공간의 구조가 곧 사람들이 어떻게 만나고 관계를 맺는지를 결정한다.


* 나가야(長屋)는 하나의 지붕 아래 여러 세대가 벽을 공유하며 길게 이어진 일본의 전통적 연립주택 유형이다. 각 세대는 개별 출입구를 가지지만, 벽체나 지붕을 공유하며 밀집해 배치되는 것이 특징이다. 교토에서는 마찌야와 결합된 형태로 발달하였으며, 골목과 인접한 생활 구조 속에서 이웃 간의 마주침과 공동 관리가 자연스럽게 이루어지는 주거 문화의 기반이 되었다.

혼마치 에스코라의 커뮤니티 공간의 외부 및 내부
혼마치 에스코라의 모형 및 1층 평면도




사례를 통해 본 묶어주기

세 사례는 서로 다른 조건에서 출발했다. 다케노코노 이에는 세대 간 단절을 완화하기 위한 노유복합 공간이었고, 시마바라 이또노와는 골목과 상점가의 관계망을 회복하기 위한 마찌야 재생 사례였으며, 혼마치 에스코라는 공동생활을 전제로 한 주거 기반 커뮤니티였다. 출발점은 달랐지만, 이들이 공통적으로 보여준 것은 ‘묶어주기’가 프로그램의 문제가 아니라 공간의 배치와 동선에서 비롯된다는 점이다.


다케노코노 이에는 세대를 섞지 않고, 분리된 영역과 정해진 교류 시간으로 만남을 조율했다. 시마바라 이또노와는 두 골목을 잇는 선형 동선과 중정을 통해 상점과 활동이 겹치도록 만들었다. 혼마치 에스코라는 공유 주방과 마당, 교차하는 생활 동선을 중심에 두어 거주자들이 자연스럽게 마주치게 했다.


이 세 사례가 보여주는 묶어주기는 사람을 모으는 기술이 아니다. 가까운 거리, 완충 공간, 교차하는 동선, 공유 영역의 중심 배치가 만남을 반복하게 만드는 구조다. 즉 묶어주기란 관계를 직접 설계하는 일이 아니라, 서로 다른 삶이 같은 공간 안에서 자연스럽게 겹치도록 하는 공간 전략이다.

작가의 이전글대접하기