brunch

지친 당신에게 필요한, Liberty!

[인테리어] 위대한 개츠비가 열었던 파티처럼...

by 인테리어브라더스

열심히 일한 자
이제 놀아라, 즐겨라!

연초만 해도 절대 오지 않을 것 같은
연말이 돌아왔습니다.
오늘은 한 해 동안 스트레스받으며
열심히 일한 여러분에게 하루의
'일탈'을 느낄 수 있는 공간을
소개하려고 하는데요.

유명 브랜드 패션쇼를 시작으로 다양한 파티, 행사들이 열리는 '자유와 해방'의 공간,
'LIBERTY NIGHT & DAY CLUB'입니다.


DAZED KOREA 100TH PARTY with VEDI VERO x DJ KINGMCK (데이즈드코리아 100호 파티 with 베디베로 x DJ 킹맥)





# 자유와 해방을 담았다?

'LIBERTY NIGHT & DAY CLUB'은
압구정 로데오 거리를 자주 다녔던 사람이라면
한 번쯤은 보고 들었을 법한 무이 무이(mui mui)의 자리에 대대적인 공사를 거쳐
새롭게 태어났습니다.


%EB%A1%9C%EB%8D%B0%EC%98%A4.jpg?type=w966 압구정 로데오의 자유로운 모습


사실 '압구정 로데오 거리'라는 이름이
1990년 초에 자유를 찾는 젊은이들이
비벌리힐스의 로데오 거리를 표방하여
붙여진 이름인데요.

그 때문인지 로데오 거리가 주는 인식은
지금까지 '자유'와 '패션'으로 남아있습니다.

'LIBERTY NIGHT&DAY CLUB'을 의뢰한
클라이언트 또한 기존의 거리가 가지고 있던
'자유'라는 키워드를 바탕으로
피곤하고 각박한 일상에서 해방되어 자유롭게
즐길 수 있는 공간이 되길 바랐다고 합니다.


1-33.jpg?type=w966 LIBERTY NIGHT&DAY CLUB 1층 I ⓒ *KMGD


# 왜 건물에 창이 없을까?

총 3개 층으로 계획된 1,485㎡ 규모의
'리버티(LIBERTY NIGHT&DAY CLUB)'
프로젝트 문의를 받아 시작할 무렵에는 증축에
대한 건축 설계가 진행되고 있었는데요.

굉장히 특이한 점은 클라이언트의 요청에 의해
기존 무이 무이의 건물(외관이 모두 창호) 과는 굉장히 상반된 밀폐된(창이 없는)
공간으로 계획되고 있다는 점이었습니다.


%EB%A6%AC%EB%B2%84%ED%8B%B0-%EC%99%B8%EA%B4%80%28%EB%84%A4%EC%9D%B4%EB%B2%84-%EB%A7%B5%EC%8A%A42%29.jpg?type=w966 LIBERTY NIGHT&DAY CLUB의 외관 I ⓒ NAVER MAP


이러한 밀폐된 공간, 창이 없는 외관을 요구한
이유는 앞서 말했던 것처럼

'리버티'의 공간에 있는 그날만큼은 일상에서 해방되어
'자유'와 '해방감'을 극대화하려는 의도가
아니었을까 하는 생각이 듭니다.


%EB%A6%AC%EB%B2%84%ED%8B%B0.jpg?type=w966 LIBERTY NIGHT&DAY CLUB의 외관 I ⓒ *KMGD


# '자유의 여신상'과
'위대한 개츠비'?

'LIBERTY'의 의미를 떠올리다 보면
자연스럽게 자유의 여신상(statue of liberty)이 떠오르는데요.

이 자유의 여신상이 들고 있는 횃불에
영감을 받아 디자인된 것이 '리버티'의 메인 바
중앙에 있는 보틀 타워입니다.


1-13.jpg?type=w966 '리버티' 1층의 메인 바 보틀 타워 I ⓒ *KMGD
1-23.jpg?type=w966 '리버티' 1층의 메인 바 보틀 타워 I ⓒ *KMGD


보틀 타워는 '리버티'가 전달하려는
'자유'와 '해방'을 전달하는 전체 공간의 상징적인 의미를 나타내고 있다고 합니다.

자유의 여신상의 자유와 해방을 표현하는
보틀 타워와 함께 1층과 2층에 자리하고 있는
라운지 바는 영화 '위대한 개츠비'의 시대적
배경을 모티브로 삼았다고 하는데요.


1-22.jpg?type=w966 아르데코 양식을 볼 수 있는 '리버티' 1층 메인 바 I ⓒ *KMGD


LOGO를 비롯한 공간 전반에 아르데코
양식을 재해석한 반복적인 구조와 형태를
띄는 디자인이 적용하고 골드 컬러의 금속
소재를 활용해 고급스러움과 화려함까지
겸비한 공간이 되었죠.


1-30.jpg?type=w966 보틀 타워와 아르데코 양식을 보여주는 1층 I ⓒ *KMGD


1-28.jpg?type=w966 "위대한 개츠비" 시대적 배경을 연상케 하는 아르데코 양식의 1층 I ⓒ *KMGD


# 밀폐 공간 100% 활용법
_층마다 다른 개성을 갖다

'리버티'는 큰 규모인 만큼 1층과 2층, 3층에
각각 다른 성격의 공간을 계획하였는데요.

그 이유가 밀폐된 건물의 특성을 100%
활용하기 위한 아이디어였다고 합니다.


1-40.jpg?type=w966 1층 라운지 바 I ⓒ *KMGD
2-5.jpg?type=w966 2층 라운지 바 I ⓒ *KMGD
2-3.jpg?type=w966 2층 라운지 바 I ⓒ *KMGD


1층과 2층의 일부는 라운지 바, 2층 일부는
*스피크이지 바(Speak-easy Bar) 콘셉트의 프라이빗 바로 구성이 되었는데요.


1-12.jpg?type=w966 2층 프라이빗 바 출입구 I ⓒ *KMGD


2층에 진입하면 메인 인포데스크 한편에
*스피크이지 바 콘셉트의 프라이빗 바를
들어갈 수 있는 문이 하나 자리하고 있습니다.

프라이빗 바는 인포데스크의 직원의 통제에
따라 입장이 되며, 주목받는 것을
부담스러워하는 손님들이 조용하게 즐길 수
있는 공간으로 라운지 바와는 다른 클래식 한
디자인 요소의 공간 성격을 가지고 있습니다.

(*스피크이지 바, Speak-easy Bar: 미국 금주법 시대에 나타난 술집의 형태. 몰래 조용히 술만 마시는 바, 겉보기엔 술집인지 알 수 없어 아는 사람만 들어올 수 있는 술집)


3-26.jpg?type=w966 3층 루프탑에 있는 프라이빗 한 공간 I ⓒ *KMGD
3-21.jpg?type=w966 3층 루프탑에 있는 프라이빗 한 공간 I ⓒ *KMGD


3층은 루프탑 가든이 있는 레지던스 콘셉트의
프라이빗 한 공간으로 각 층의 콘셉트가
구성이 되었습니다.


3-6.jpg?type=w966 3층 루프탑에 있는 프라이빗 한 공간 I ⓒ *KMGD


3층은 1, 2층과는 대비되는 모던한 느낌의
공간 콘셉트로 거실 느낌의 메인 공간에서
폴딩 도어를 완전히 개방하면 실내의
버티컬 가든이 외부 가든과 자연스럽게
하나의 공간으로 느껴지도록 하는 역할을
해줄 수 있게 디자인이 되었습니다.

3-12.jpg?type=w966 3층 루프탑에 있는 프라이빗 한 공간 I ⓒ *KMGD


1~2층이 피곤하고 각박한 일상에서
해방되어 자유롭게 즐길 수 있는 공간이라면,
모던한 디자인에 자연적인 요소가 묻어있는
3층은 프라이빗 한 공간으로 사람들에게
도심의 휴양지 같은 느낌을 선사하는 것이죠!




# 밀폐 공간 100% 활용법
_특별한 동선 계획

앞서 말했던 각각의 다른 공간 콘셉트와
밀폐된 공간의 특성을 100% 활용하기 위한
두 번째 아이디어는 1층과 2층

그리고 3층의 출입구를 두 곳으로 달리하는

색다른 동선 계획이었습니다.

Circulation_diagram.png?type=w966 '리버티'의 동선 다이어그램 I ⓒ *KMGD


1층의 출입은 의도적으로 2층으로 올라간 후 1층으로 내려가는 구조를 택하였고
3층은 단독으로 이용할 수 있는 동선 계획을 하였는데요.


1-5.jpg?type=w966 메인 출입구에서 2층으로 올라가는 계단 I ⓒ *KMGD


그중 2층과 1층을 오갈 수 있는
그랜드 스테어(Grand Stair)가 앞서 말한

보틀 타워와 함께 '리버티' 라운지 바의

핵심 포인트라고 할 수 있습니다.

1-20.jpg?type=w966 2층에서 1층으로 내려가는 내부 계단 I ⓒ *KMGD


그랜드 스테어(Grand Stair)의 두 갈래로
벌어지는 계단의 형태는 자연스레
중앙 무대를 감싸며 공연자를 더욱 돋보이게 하는 역할을 하며


브랜드 론칭쇼, 패션쇼 및 다양한 파티 등 행사에
활용할 수 있게끔 디자인되었고

1-34.jpg?type=w966 주인공이 되는 순간, 그랜드 스테어 I ⓒ *KMGD


'리버티'의 라운지를 방문하는 손님들이
그랜드 스테어에서만큼은 스포트라이트를
받으며 주인공이 된 느낌을 받도록 한 것이죠!

1-15.jpg?type=w966 '리버티' 1층 라운지 I ⓒ *KMGD



1-37.jpg?type=w966 '리버티' 1층 화장실 I ⓒ *KMGD


1-38.jpg?type=w966 '리버티' 1층 화장실 I ⓒ *KMGD


3-14.jpg?type=w966 '리버티' 3층 루프탑 I ⓒ *KMGD


3-19.jpg?type=w966 '리버티' 3층 루프탑 I ⓒ *KMGD


1-6.jpg?type=w966 엘리베이터에 인피니티 라이트를 설치한 모습 I ⓒ *KMGD


2017년 한 해를 열심히 살아온
여러분에게 '자유'와 '해방'을 느낄 수 있는
'LIBERTY NIGHT & DAY CLUB' 공간을 통해
한 해의 보상을 해보는 것은 어떨까요?

"오늘 밤의 주인공은 나야 나!"를
'LIBERTY NIGHT & DAY CLUB'에서
외쳐보세요!


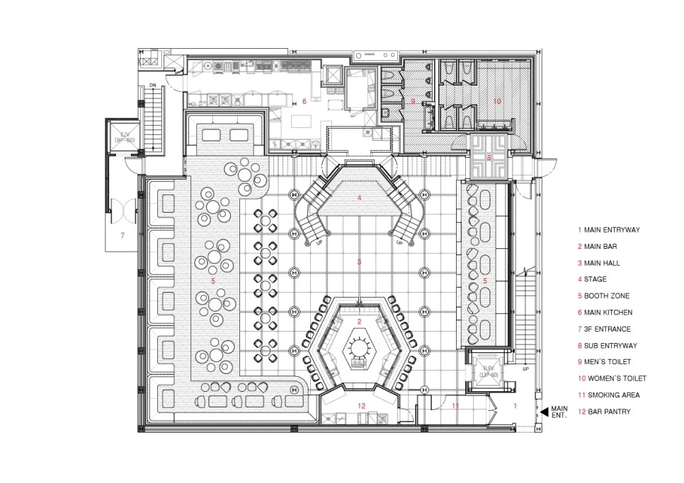
# FLOOR PLAN


LIBERTY_1F.jpg?type=w966 1F FLOOR PLAN I ⓒ *KMGD


LIBERTY_2F.jpg?type=w966 2F FLOOR PLAN I ⓒ *KMGD


LIBERTY_3F.jpg?type=w966 3F FLOOR PLAN I ⓒ *KMGD



# 포트폴리오 정보


인테리어 디자이너 *KMGD
위치 서울시 강남구 도산대로 51길 19
분류 기준 인테리어
공간 상업공간 / BAR/CLUB
프로젝트 시기 2016년 08월
작업 범위 디자인(설계) / 공간 브랜딩
스타일 기타
크기 809.00㎡ (244.72평)
상호명 LIBERTY NIGHT&DAY
사진 저작권 김영(IndiPhos)


*KMGDㅡ의

포트폴리오가ㅡ더

궁금하다면?


인테리어브라더스와 친구할래요?

(여기 클릭)


2,500개 이상의 인테리어 기업이 모여 있는 중계 플랫폼 "인테리어 브라더스"가 직접 검수한 제품을 재고 소진 시까지 '달콤한' 가격에 판매하는 특가 플랫폼 "달콤한 자재 마켓" 쇼룸도 함께 운영 중이니 언제든지 방문해 주세요!


달콤한 자재마켓 - 합리적인 인테리어/건축 마감 자재

https://magam.kr


달콤한 자재마켓을 네이버 스마트 스토어에서도 만나볼 수 있습니다.

https://smartstore.naver.com/magam_sale

keyword
매거진의 이전글보이지 않는 것을 공간에 담다 by 바이석비석