brunch

'소녀'의 변신은 무죄 - 효율성과 아이덴티티를 잡다

[비포&애프터] 10대 쇼핑몰 오피스의 핑크빛 인테리어

by 인테리어브라더스

10대의 '소녀소녀'한
감성을 어떻게 공간으로
표현할 수 있을까?

요즘 10대들의 유행과 패션 스타일은
수시로 바뀌고 개인의 개성까지도 잘 드러내는 것 같습니다.

이런 10대에게 스타일을 제시하고 유행을
선도하는 대표적인 국내 쇼핑몰은 과연
어떤 곳일까 궁금하지 않을 수 없는데요.

오늘 소개할 '소녀나라'라는 곳은
10대가 선호하는 의류 쇼핑몰 중 3위 안에
드는 유명한 곳입니다.

하지만 최근 성장을 거듭하며 150평인
공간에서 업무를 이루어지지만 비효율적인
공간 구성 때문에 많은 불편을 겪고 있었다고 합니다.

어떠한 공간 구성으로 인해 불편함을 겪고
있었고 어떠한 방법으로 해결하였는지
지금 바로 알아볼까요?



Before
# 오피스의 핵심은 뭘까?


오피스는 '효율성'이 집약된 공간입니다.

효율적인 업무가 가능하려면 가장 먼저
직원들을 위한 효율적인 동선(Traffic line)이
설계되어야 합니다.

만약 다른 팀원과 상의를 하거나 상사에게
업무 보고를 하는데 미로 같은 동선을 거쳐야
한다면, 그 공간은 '효율성'을 기대하긴
어려울 것입니다.

기존 '소녀나라' 사무실이 이러한 문제를
가지고 있었는데요. 미로 같은 동선은 아니었지만, 효율적인 동선 또한 아니었죠.


KakaoTalk_20170728_104656441.jpg?type=w966 기존 사무실의 복도형 출입구 모습 I ⓒ 아우딘 스페이스


%EC%86%8C%EB%85%80%EB%82%98%EB%9D%BC_%EA%B8%B0%EC%A1%B4%ED%8F%89%EB%A9%B4_%EA%B3%B5%EC%82%AC%EC%A0%84%28%EB%8F%99%EC%84%A0%29.jpg?type=w966 도면 사진 1. 불필요하게 긴 출입 동선을 가지고 있던 기존 사무실 출입구 I ⓒ 아우딘 스페이스


기존 사무실의 출입 도면(도면 사진 1)을 보면
유난히 동선이 길다는 것을 볼 수 있습니다.


KakaoTalk_20170728_104731406.jpg?type=w966 기존 '소녀나라' 사무실의 업무 공간 I ⓒ 아우딘 스페이스
KakaoTalk_20170728_104904811.jpg?type=w966 기존 '소녀나라' 사무실의 업무 공간 I ⓒ 아우딘 스페이스
%EC%86%8C%EB%85%80%EB%82%98%EB%9D%BC_%EA%B8%B0%EC%A1%B4%ED%8F%89%EB%A9%B4_%EA%B3%B5%EC%82%AC%EC%A0%84%28%EB%8F%99%EC%84%A02%29.jpg?type=w966 도면 사진 2. 불필요하게 복잡한 사무실 내에 이동 동선 I ⓒ 아우딘 스페이스


출입 동선만 문제가 아니었습니다.
사무실 내에 이동 동선 또한 불필요한 부분이 많았는데요. (도면 사진 2 참고)

기준이 없고 일관되지 않은 가로, 세로 자리
배치에 동선을 막는 파티션에 일방통행일 수
밖에 없는 부분까지 보입니다.

효율적인 업무 공간을 위해 동선 계획을
새롭게 해야 할 필요가 있었죠.




# 쇼핑몰에 꼭 필요한 공간?


쇼핑몰을 운영하는 회사에는 기본적으로
필요한 공간들이 있습니다. 하지만 기존
'소녀나라' 사무실은 필요한 공간이 아예
없거나 있어도 사용하기 불편했다고 합니다.


KakaoTalk_20170728_104730760.jpg?type=w966 다른 사무실의 공간을 샘플 실로 활용하고 있는 기존 사무실 I ⓒ 아우딘 스페이스


첫 번째 이슈는 샘플실입니다.
쇼핑몰의 특성상, 신제품 디자인과 검토를
위한 샘플실이 중요한데,

기존 '소녀나라' 사무실에는 독립된 샘플실
공간이 확보되어있지 않아서 다른 사무실과
샘플실을 함께 사용하는 불편함을 겪고 있었습니다.


KakaoTalk_20170728_104731700.jpg?type=w966 기존의 하나뿐이었던 회의 공간 I ⓒ 아우딘 스페이스


두 번째 이슈는 회의 공간입니다.
업무 특성상 자주 회의를 해야 하는데
회의 실이 하나밖에 없다 보니 늘 회의 공간이
부족한 상황이었고 위치마저도 사무실 안쪽에
있다 보니 외부 손님이 방문한 경우에 촬영 스튜디오를 지나 안쪽까지 들어가야 하는 불편함이 있었습니다.



# '소녀나라'만의 감성이란?


본래 사무실이라고 한다면, 기능적으로 업무를
'효율적'으로 할 수 있는 공간이기도 하지만
회사의 아이덴티티가 공간 자체에 표현되어
회사의 철학과 문화가 녹아 있는 것이 가장
이상적인 업무 공간이라고 할 수 있을 것입니다.

하지만 기존 '소녀나라'의 사무실은
10대의 감성을 연상시키는 공간이 아닌,
어디에서나 볼 수 있는 평범한 사무실에 가까웠습니다.


KakaoTalk_20170728_104656850.jpg?type=w966 기존의 사무실 출입구의 모습 I ⓒ 아우딘 스페이스


사무실로 들어가는 메인 복도는 전체적으로
분홍빛을 띄고 있고, 검정색과 매치되어 있었습니다.

입구에 분홍색을 사용하여 '소녀나라'의
아이덴티티를 나타내려 한 것 같았으나
사무실 내부의 분위기와는 거리가 있었고
작위적인 느낌이 강하게 들었습니다.


KakaoTalk_20170728_104733209.jpg?type=w966 기존의 사무실 출입구의 모습 I ⓒ 아우딘 스페이스


이런 평범한 사무실 내부 공간에서
'소녀나라' 의 아이덴티티를 찾기는 어려웠습니다.

전체적으로 새롭게 만들어야 했습니다.
10대 소녀의 앳됨이 표현되도록 말이죠.





After
# '소녀스러움'을 상징하는 공간


"지금 사무실이 '소녀나라'의 아이덴티티를 전혀 못 보여주고 있어요."

인테리어 스튜디오 '아우딘 스페이스'가
클라이언트인 '소녀나라'와 첫 미팅에서
들었던 현재 공간의 가장 큰 문제점 입니다.

공간의 전체적인 느낌이 실제 '소녀나라'
홈페이지와 제품들이 가지고 있는 10대의
발랄함과 상큼함을 전혀 드러내지 못하고
있었던 것이죠.


%EC%86%8C%EB%85%80%EB%82%98%EB%9D%BC.png?type=w966 '소녀나라' 홈페이지의 '소녀스러움' I ⓒ 소녀나라


그래서 '아우딘 스페이스'에서는 핑크를 중심으로

10대 소녀의 앳됨을 표현함과 동시에
사무실의 평균 연령 20대의 '젊음'을 함께
표현할 수 있게 되었습니다.


%EC%8B%9C%EC%95%887.jpg?type=w966 '소녀나라'의 핵심 칼라인 핑크를 사용한 3D 기획안 I ⓒ 아우딘 스페이스
2017102312f790cf2e633dfd2ef208725c4efb9e.jpg?type=w966 입구부터 아이덴티티를 전달해줄 수 있는 네온 조명 I ⓒ 아우딘 스페이스


첫 번째로 사무실로 입구를 들어갈 때 가장
먼저 시선이 닿는 입구 부분에 핑크 네온
조명을 설치하여 포인트를 주었고,

매 시즌 변경되는 '소녀나라'의 포스터를
전시할 수 있는 공간을 마련함으로써 입구부터
회사의 아이덴티티를 느낄 수 있도록 하였습니다.


20171023bc104028937a8eb86d042c727fd462e3.jpg?type=w966 '소녀나라'의 밝고 어린 느낌을 위한 그린 칼라 (회의실 1) I ⓒ 아우딘 스페이스


또한 밝고 어린 느낌을 줄 수 있는
그린 컬러를 함께 사용하여 동화 같은
'소녀나라'의 '소녀스러움'과 '러브리'함을
공간에 연출하여 아이덴티티를 강화하였습니다.


201710238120a0a4efe38d05797a1f79eb250d23.jpg?type=w966 '소녀나라'의 핵심 칼라인 핑크를 사용해 완성된 공간(휴게실) I ⓒ 아우딘 스페이스
20171023b7b16f497ba0cf5d2b6e45fa43d52f2f.jpg?type=w966 '소녀나라'의 핵심 칼라인 핑크를 사용해 완성된 공간(휴게실) I ⓒ 아우딘 스페이스
20171023c0e7bef49d447e47023f0e5c893536e3.jpg?type=w966 '소녀나라'의 핵심 칼라인 핑크를 사용해 완성된 공간(휴게실) I ⓒ 아우딘 스페이스




#동선과 공간의 불편함을
함께 해결하다


'소녀스러움'과 '러블리'한 아이덴티티를

핑크와 그린 컬러를 통해 연출했다면
이제는 비효율적인 동선을 해결해야 했습니다.

효율적인 업무 흐름과 동선, 부족한 샘플 실과
회의실 문제를 동시에 해결 할 수 있는
아이디어가 필요한 상황이었죠.


%EC%B6%9C%EC%9E%85-%EB%8F%99%EC%84%A0%EA%B3%BC-%EC%83%98%ED%94%8C%EC%8B%A4.jpg?type=w966 복잡했던 기존 동선과 샘플실의 부재를 보여주는 'Before Floor Plan'과 이를 함께 해결한 'After Floor Plan'


%EC%8B%9C%EC%95%883.jpg?type=w966 동선과 샘플실의 문제를 함께 해결하기 위한 3D 기획안 I ⓒ 아우딘 스페이스
201710231f07e70368191cd43b20b9a7f30bfe58.jpg?type=w966 밝은 그레이로 통일하여 의류의 다채로운 컬러가 섞이는 것을 보완한 샘플실 I ⓒ 아우딘 스페이스


'아우딘 스페이스'는 3D 시안을 통해 다양한 배치와 접근 방법을 시험해 볼 수 있었습니다.
그 결과 좋은 아이디어를 발견할 수 있었죠.

기존의 불필요한 동선을 유발하던 입구의
핑크빛 메인 복도를 철거하고 그 공간을
사무실 공간에 포함시키는 것이었는데요.

입구의 메인 복도가 사라지면서 기존의
불필요한 동선이 단순해지고 복도로 낭비되던
공간이 샘플 실을 위한 공간으로 확보되는
일석이조의 효과를 볼 수 있게 된 것입니다.


201710235131cfa138c42054dcb369c89a2f9e25.jpg?type=w966 새로운 회의실 모습(conference room) I ⓒ 아우딘 스페이스


또한 기존에 가지고 있던 회의실 문제 역시
새로운 아이디어로 해결이 되었는데요.

우선 회의실을 3개로 늘리고 외부 손님을 위한
회의실은 사무실 입구 쪽에 배치하였습니다.

외부 손님용 회의실은 노출 천장과
그린 컬러의 카펫 타일을 사용하여
야외 잔디밭처럼 시원하고 자유로움이
느껴질 수 있는 공간으로 연출하였습니다.

더 나아가 모든 회의실의 문을 투명 유리로
계획하여 개방감이 더 느껴질 수 있도록 하였습니다.


201710231e66270c6417b260fc54e133eb9898b8.jpg?type=w966 새로운 미팅실의 모습 I ⓒ 아우딘 스페이스


201710234b638c879a2286ef10354367a28404f8.jpg?type=w966 새로운 미팅실의 모습 I ⓒ 아우딘 스페이스


사무 공간은 각 업무별 성격에 맞는 공간 분할로 계획되었습니다.

오픈마켓 / 상품기획 / 포토 제작 /
마케팅 / 웹 개발 / 콘텐츠의 업무 별 성격에
맞춰 효율적인 배치가 이루어졌고


20171023c12697340665616aa69dc1ce0eaf54ed.jpg?type=w966 업무 영역 별 효율적인 배치로 나누어진 사무 공간 I ⓒ 아우딘 스페이스
2017102373fd21644f2fbd097c13187a9d5ae23e.jpg?type=w966 업무 영역 별 효율적인 배치로 나누어진 사무 공간 I ⓒ 아우딘 스페이스

대부분 웹 작업을 하는 공통적인 특성을
고려하여 선스크린을 설치하였습니다.

외부에서 직접 들어오는 빛만 차단하는
선스크린을 통해 모니터 화면을 보기 힘든
업무상의 문제를 해결했을 뿐만 아니라,
청계천을 한눈에 내려다볼 수 있는 위치적
장점을 계속 유지하였습니다.

오랜 시간 동안 사무실에서 모니터를 보며
근무하는 직원들의 업무 환경을 개선한
'신의 한 수'였습니다.


20171023a075e13567761a5e32ac5f438dcad37a.jpg?type=w966 단순화된 사무실 내 동선 I ⓒ 아우딘 스페이스
2017102300b7724a20081b6aed7eef104d5e65a4.jpg?type=w966 재미있는 sign의 공간 I ⓒ 아우딘 스페이스
20171023c44d4d40bf2098c6d4bbe04d51079a25.jpg?type=w966 직원들이 쉴 수 있는 카페테리아 공간 I ⓒ 아우딘 스페이스


'소녀나라' 사무실은 완전히 새로운 공간
디자인을 통해 업무 효율성을 높이는 구조와
동선을 갖게 되었을 뿐만 아니라 브랜드의
아이덴티티에 맞는 디자인과 환경을 갖게 되었습니다.

모든 사무실이 '소녀나라' 사무실처럼
회사와 브랜드의 아이덴티티, 문화 등을 모두
담기에는 어려움이 있을 수도 있을 겁니다.
(첫째도 비용, 둘째도 비용, 셋째도 비용..)

하지만 최소한 효율적인 업무 흐름과 동선
그리고 그에 맞는 성과를 기대하는 회사라면
그 회사만의 '맞춤형 공간 디자인'은 반드시
고려해 보어야 할 부분일 것은 확실합니다.



#Before / After
FLOOR PLAN


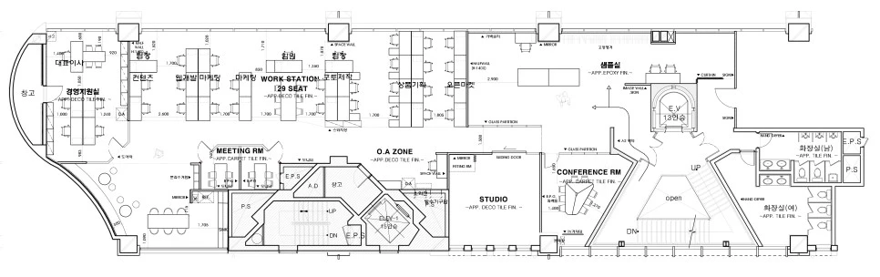
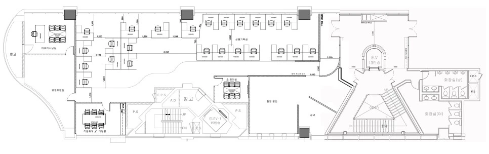
%EC%86%8C%EB%85%80%EB%82%98%EB%9D%BC_%ED%8F%89%EB%A9%B4_%EA%B3%B5%EC%82%AC%EC%A0%84-%ED%8F%89%EB%A9%B4.jpg?type=w966 '소녀나라' 오피스 Before 평면 I ⓒ 아우딘 스페이스
%EC%86%8C%EB%85%80%EB%82%98%EB%9D%BC_%ED%8F%89%EB%A9%B4_%EA%B3%B5%EC%82%AC%ED%9B%84-%ED%8F%89%EB%A9%B4.jpg?type=w966 '소녀나라' 오피스 After 평면 I ⓒ 아우딘 스페이스

# 포트폴리오 정보

인테리어 디자이너 아우딘 스페이스
위치 서울시 성동구 청계천로 474
분류 기준 인테리어
공간 업무공간 / 일반 사무실
프로젝트 시기 2017년 09월
작업 범위 디자인(설계) / 시공 / 스타일링
스타일 모던
크기 380.00㎡ (114.95평)
상호명 소녀나라 오피스
사진저작권 아우딘 스페이스


아우딘 스페이스ㅡ의

포트폴리오ㅡ가

궁금해졌다면?

(여기 클릭)


인테리어브라더스와 친구할래요?

(여기 클릭)


2,500개 이상의 인테리어 기업이 모여 있는 중계 플랫폼 "인테리어 브라더스"가 직접 검수한 제품을 재고 소진 시까지 '달콤한' 가격에 판매하는 특가 플랫폼 "달콤한 자재 마켓" 쇼룸도 함께 운영 중이니 언제든지 방문해 주세요!


달콤한 자재마켓 - 합리적인 인테리어/건축 마감 자재

https://magam.kr


달콤한 자재마켓을 네이버 스마트 스토어에서도 만나볼 수 있습니다.

https://smartstore.naver.com/magam_sale

keyword
매거진의 이전글지친 당신에게 필요한, Liberty!