brunch

단독주택-晳涇帥軒석경수헌, 건축주께서는 백 점이라네요

일흔에 짓는 '우리집', 백 평 저택이 부럽지 않답니다

by 김정관

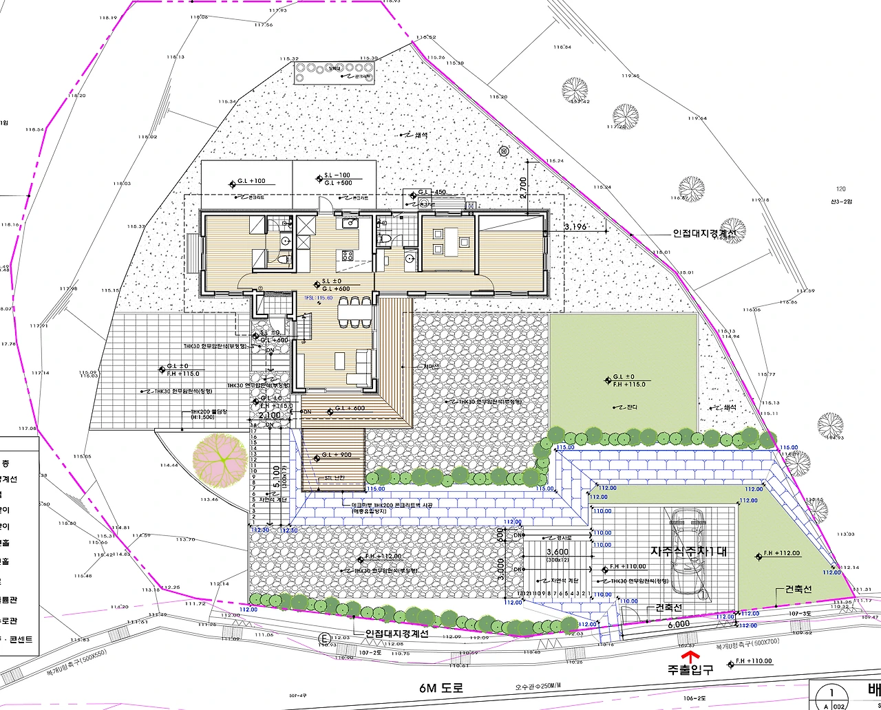
晳涇帥軒석경수헌, 작년 12월 17일에 기공식을 했으니 벌써 반년이 지났다. 평지에 집만 지었으면 길어도 3 개월이면 마쳤을 것이다. 도로에서 5 미터 정도 높은 곳에 있는 밭을 집터로 삼았으니 마당이 접한 주변 정리에 공사기간이 많이 소요되었다.


설계도 그렇지만 집을 짓는 과정에 건축주가 참여하게 되면 현장 분위기가 어떻게 될까? 결론부터 얘기하자면 배가 산으로 가게 된다. 건축주가 이 이야기를 들으면 기분이 상할 수 있겠지만 사실이 그렇다.

석경수헌은 건축주께서 하루도 빠짐없이 현장에 나와서 사실상 공사를 진두지휘했다. 건축은 도급계약을 했지만 실내는 부분 변경을 해가면서 설계자의 의도도 적잖게 훼손이 되었다. 공사를 시작하면서 설계자와 협의 없이 변경이 이루어지면 그날부터 감리 업무를 하지 않을 것이라 엄포를 놓았지만 소용이 없었다.


준공을 앞두고 있는 석경수헌 전경

하루에 백만 원


토목공사에는 포클레인이 꼭 현장에 투입된다. 돌 쌓기 공사에 무거운 돌을 제 위치에 놓아야 하기 때문이다. 그런데 돌 하나를 놓을 때마다 기술자와 건축주의 의견이 다르다 보니 결정할 때까지 포클레인이 대기해야 한다. 보름이면 끝날 수 있는 일이 한 달이 더 지체되었다.


포클레인 장비대와 기사 인건비, 돌 쌓는 기술자 인건비가 하루에 백만 원씩 늘어나니 이를 어쩌나. 공사 기간 지체로 공사비가 늘어나는 것만 문제가 되는 게 아니라 현장 분위기도 수동적으로 돌아간다. 기술자의 역량을 무시하는 건축주의 의지는 능동적인 작업 분위기를 가라앉혀 버리기 때문이다.


공사기간이 늘어나게 되면 비용도 불어나므로 건축주도 그렇지만 시공자도 부담을 안게 된다. 대지가 넓으니 돌 쌓기와 포장, 조경 등 토목 공사가 많아지는 건 당연한데 건축주는 공사비가 많이 들어간다는 푸념을 자신도 모르게 하게 된다. 이래저래 지연된 工期공기는 현장 분위기를 나쁘게 한다.


그래도 일흔 연세의 건축주는 열정이 꺾이지 않았다. 다 내 탓이라시며 마무리되어가는 현장에 마지막 정리를 서두르며 준공검사를 받는 준비 점검에 임하고 있다.


돌쌓기에 공을 들이느라 공사기간이 늘어난 원인이 되었다


다락 계단이 왜?


토목 공사비가 늘면서 전체 공사비에 부담이 가다 보니 건축주는 창호 공사비를 줄여야겠다는 결심을 하신다. 거실만이라도 이건창호 급으로 쓰는 걸 추천했지만 절반 이하로 쓸 수 있는 B급 창호로 결정했단다. 내가 집을 설계하면서 비용을 아끼면 후회할 거라며 반 강제로 권하지만 어쩔 수 없는 상황에 이르렀다.

인테리어 작업이 거의 다 되었다는 얘기를 듣고 현장에 들렀더니 다락으로 올라가는 계단 위치가 바뀌어져 있었다. 거실과 주방 사이에 있어야 할 계단이 주방의 3/1을 점유하며 냉장고와 주방기구 수납장 자리에 시공되어 있었다.


“어... 왜 이 자리에 계단이?”


건축주께 다그치다시피 이렇게 바꾼 이유가 뭐냐고 여쭸더니 이 자리가 나을 것 같아서 그렇게 했다고 한다. 그럼 냉장고와 수납장은 어디에 둘 것이냐고 물으니 말이 없으시다. 건축주께서 집에서 요리를 하지 않는다는 걸 알게 된다.


다락으로 올라가는 계단이 주방의 냉장고와 수납공간 자리로 변경 시공되어 설계자가 안타까워하고 있다. 저 냉장고는 어디로 가게 될까?


왜 설계자에게 의논을 하지 않고 그러셨느냐는 나의 채근에 못하라고 할 것 같아서 그랬다고 하신다. 설계자인 내가 살 집이 아니지만 이 집에 오는 손님들은 설계를 잘못해서 그럴 것이라 말하지 않겠는가? 속으로는 부아가 치밀어 올랐지만 이미 공사는 끝났고 건축주의 의지로 된 결과를 바꿀 수는 없었다.


또 객실에 욕실을 대변기, 세면대, 샤워실을 구분해 놓은 걸 하나로 합쳐 공사가 되어 있었다. 객실에 부부와 아이들로 3~4인이 묵어간다면 샤워, 양치질, 대변기 사용으로 세 사람이 동시에 쓸 수 있게 배려한 설계이다. 그런데 공사비를 절감해야 한다는 명분으로 설계자의 노력을 허사로 만들어 버렸다.


석경수헌이 마무리되고 있다, 집의 내부는 설계자의 의도가 많이 훼손되어 사진으로 소개하기가 마뜩 잖다.


그래도 시공 결과를 점수로 매긴다면 80점


공사가 지연되면서 지켜보는 입장에서는 안타까워할 수밖에 다른 방도가 없었다. 겨울 공사로 출발했었지만 큰 추위도 없었고 봄에도 비가 잦지 않아서 여름이 오기 전에 끝날 일이었다. 하늘도 도와주던 공사를 사람이 나서서 지연을 시켰으니 안타까운 일이다.

건축주께서 공기를 늘이긴 했지만 구석구석 꼼꼼하게 챙기다 보니 전체적으로는 집 분위기가 좋다. 집터 가장자리의 노송, 잘 자란 잔디와 돌 쌓기가 어우러져서 건축주 부부께서 노후를 보내는 집으로 손색이 없어 보인다. 거실에서 보이는 주변의 풍광은 동쪽으로 그림 같은 노송이 눈에 들어오고, 남향으로 열린 전원과 아스라하게 보이는 산이 마음을 편안하게 한다.

주차장과 대문에서 낮은 계단을 오르면 집 안으로 이어지는 과정적 공간이 펼쳐진다. 이 공간은 살아가면서 가꾸기에 따라 다른 집에서는 흉내 낼 수 없는 이색적인 영역이 될 것이다. 길을 따라 꽃을 심으면 꽃길이 될 것이고, 괴석이나 조각을 놓아도 좋고 모양이 좋은 나무를 심어 가꾸면 그만한 운치도 없을 터이다.

현관으로는 계단과 경사로로 올라갈 수 있다. 어떤 길을 선택해도 좋은 경로인데 첫 번째 만나는 작은 마당, 달빛 마당이다. 이 마당은 객실과 하나 되는 공간인데 바깥으로 향하는 시선을 막는 담을 두었다. 큰 마당인 햇살 마당은 밖으로 온전하게 열려 있고, 뒤뜰은 닫힌 공간이라면 달빛 마당은 그 중간으로 닫힌 영역이라 하겠다.


거실과 안채가 하나 되는 큰 마당은 동쪽으로는 노송이 함께 하고 남향으로는 아스라이 먼 산에 시선이 머문다. 길에서는 넘어다 볼 수 없지만 마당에서는 길을 내려다볼 수 있다. 길을 지나는 사람들은 석경수헌의 지붕 아래 일부를 보면서 누가 살고 있는지 궁금해할 것이다,


뒤뜰은 석경수헌의 대지 조건이 만들어낸 생활공간의 백미라고 할 수 있다. 노송과 대나무가 둘러싼 뒤뜰은 주방과 이어진 장독대와 한실에 불을 넣는 아궁이, 한실에서 나올 수 있는 문으로 쓰임새가 짐작이 된다. 여름철에는 노송이 드리우는 그늘 아래 한낮에도 바깥 활동도 무리가 없을 것이다.


글을 마무리하면서 전통구들을 들인 한실 자랑을 하지 않을 수 없다. 부부침실 옆에 자리한 한실은 뒤뜰의 아궁이에 불을 들여 구들장을 데우는 전통 구들방이다. 늦가을부터 초봄까지 이 방에서 주무시면 일년내내 건강하게 지낼 수 있는 몸을 얻을 수 있을 것이다. 나이든 몸은 체온이 떨어질 수밖에 없는데 저항력을 잃지 않도록 해 줄 구들방은 ‘석경수헌’의 자랑이 되지 않을까 싶다.


석경수헌의 야경

건축주가 집 짓는 일에 지나치게 개입하면 좋은 결과에 이르기 어렵다는 글을 쓰려다 집 자랑하는 얘기로 글이 마무리되었다. 30 평으로 소박하게 작은 집을 짓겠다고 찾아온 칠순의 건축주, 짓고 나니 백 평 저택이 부럽지 않은 집이 되었다며 고마워하신다. 큰 형님 연배의 건축주께 나무라기도 하고 부탁처럼 당부도 드렸지만 우여곡절까지는 아니라도 힘들게 반년이 지나 집이 완성되었다.


객실은 늘 열려 있으니 놀러 와서 자고 가도 좋다며 사람 좋은 호탕한 웃음을 아끼기 않으신다. 이제 남은 건 준공을 위한 행정 처리이니 여름이 가기 전에 석경수헌에 드실 수 있겠다. 일흔의 적지 않은 연세에 하루도 빠짐없이 현장을 챙기셨던 열정을 오래 간직하시길 빌어 마지않는다.



도반건축사사무소-대표 건축사 김정관은

집이 행복의 원천이라는 주거의 인문학적 접근을 통해

부산, 양산, 김해, 울산의 단독주택, 상가주택 및 공동주택을 주로 설계하고 있습니다.

keyword