brunch

에코델타시티상가주택 WHITE HOUSE, 착공에 부쳐

에코델타시티 상가주택, WHITE HOUSE 착공

by 김정관

WHITE HOUSE는 2021년 12월 말에 설계 계약을 하고 2022년 7월 말에 착공했으니 설계에서 착공까지 7 개월이 걸렸다. 설계는 3월 초에 마무리되었지만 에코델타시티 토지조성 준공이 되지 않아서 행정 처리에 긴 시간이 소요되었다. 건축주께서 보내주신 설계자에 대한 신뢰를 바탕으로 진행된 설계가 시공으로 잘 마무리될 수 있는 시공사가 선정되어 좋은 결과로 마무리되길 기대한다.


설계 : 도반건축사사무소 건축사 김정관, 설계담당 김풍부

시공 : 단단한종합건설주식회사 대표 이재남


에코델타 상가주택-WHITE HOUSE 3-D MODELING IMEGE


건축주가 상가주택을 지으려는 목적

지구단위계획을 통해 택지조성이 되어있는 단지는 지침이 명확하게 나와 있다. 일층에 근린생활시설, 이층은 임대수익용 다가구주택 3세대 이하, 삼층은 단독주택으로 용도와 규모가 한정되어 있다. 일층과 이층에서 임대수익을 확보하고 건축주는 삼층에 사는 건축물의 얼개를 가지게 된다.


지가와 함께 설계비, 공사비, 금융비용을 투자하여 수익을 최대한 만들어내고자 하는 것이 상가주택을 짓는 목적이 된다. 최소 투자와 최대 수익이라는 시행 목표는 자칫 어울릴 수 없는 조건과 결과로 나올 수 있다. 최소한의 투자는 설계비와 공사비를 아끼면 될지 모르지만 최대 수익은 이 조건으로 성취될 수 있다는 보장이 없기 때문이다.


수익이 나와야 하는 일층 근린생활시설은 수익성이 높은 용도가 들어와야만 높은 임대료를 기대할 수 있을 것이다. 또 이층 다가구주택도 가구당 임대료가 주변보다 높이 책정될 수 있고 장기계약이 가능해야만 공실이 없을 것이며 수선료를 줄일 수 있다. 장사가 잘 되는 근린생활시설, 장기계약으로 집이 비지 않는 다가구주택을 어떻게 만들 수 있을까?


건축주는 투자를 줄이기 위해 최저가로 설계를 해 줄 건축사를 찾는다. 또 설계 과정에서 공사비가 많이 들어갈 소지가 있는 부분은 다 없애고 규모는 최대한 많이 나오도록 한다. 시공자도 최저가로 견적을 넣은 업체를 선정한다. 이렇게 하면 투자가 최소화된 집을 지을 수 있을 것이다.


건축주가 상가주택을 짓는 목적이 최소 투자가 아니라 최대 수익이 되어야 한다. 최소 투자를 전제로 최대 수익만 바란다면 그야말로 과한 욕심만 채우려는 것이니 小貪大失소탐대실의 결과로 이어질 뿐이지 않겠는가? 집은 지어지고나면 다시 회복할 수 없으니 최대 수익을 얻기 위한 과정을 거쳐야 할 것이다.


WHITE HOUSE는 적정한 투자를 통해 수익을 극대화하는 마인드로 설계 작업을 시작했다.


건축사가 설계를 하는 목적


건축사를 찾는 건축주는 설계를 의뢰하는 목적을 분명하게 밝혀야 한다. 설계를 의뢰할 건축물의 용도가 상가주택이라면 그 목적을 이렇게 제시하면 어떨까? 만약 이 조건에 맞출 수 있는 설계를 해 줄 수 있다면 건축사가 제시하는 설계비를 수락하겠다는 약속이 전제되어야 한다.


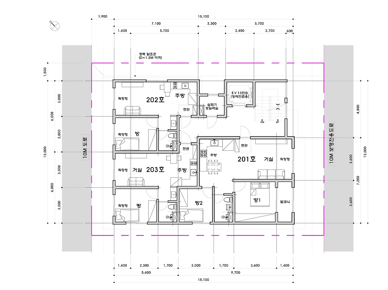
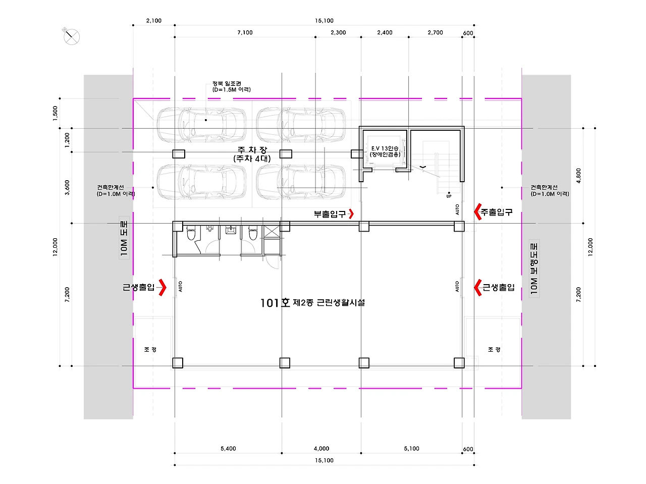
1. 장사가 잘 되는 근린생활시설

2. 임대료가 주변보다 비싸도 공실이 없는 다가구주택

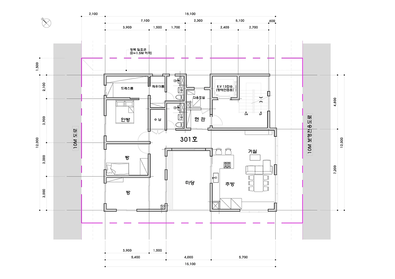
3. 우리 식구가 행복하게 살 수 있는 단독주택


평면도를 읽어보면 건축주가 상가주택을 지으려는 새 가지 목적에 부합하는지 살필 수 있다

건축주가 제시하는 이 조건이 어떻게 보면 설계자 입장에서는 받아들이기에 큰 부담이 되지 않을 수 없을 것이다. 그런데 이런 조건이 충족되지 않는 설계로 건축주는 집을 지을 수 있을까? 물론 집을 짓는 과정에 건축사가 책임질 수 없는 다양한 변수가 있으므로 법적인 책임까지 감당할 수는 없을 것이다.


그렇지만 상가주택은 이 세 가지의 목적을 놓고 건축주와 건축사가 머리를 맞대고 고민을 해야 할 것이다. 풀기가 쉽지 않은 집 짓기의 목표에 도달하려면 설계 기간도 여유를 가져야 할 것이다. 설계기간이 건축사 작업의 원가가 되므로 설계비도 그만큼 책정되어야 하는 건 당연하다.


WHITE HOUSE는 상가주택을 짓는 세 가지의 목표에 도달할 수 있다는 확신에 이르러 실시설계를 시작했다.


시공자가 공사를 하는 목적


설계와 달리 공사는 이윤을 극대화하려는 목표가 우선될 수밖에 없다. 건축사는 프로젝트에 따라 작품을 남기려는 목표로 원가를 넘어서는 투자를 할 때가 있다. 그렇지만 시공사는 공사의 관리를 책임질 뿐 각 공정별로 전문 시공자와 협력해서 집을 완성하게 된다. 저가로 공사를 수주하게 되면 준공 후 하자만 떠맡는 결과에 이를 수 있어서 이윤 창출에 집중할 수밖에 없을 것이다.


건축주가 적정한 공사비를 책정했다고 해도 Builder라는 전문가로서 자부심이 없는 시공사를 만나면 질 높은 공사를 장담하기 어렵다. 이윤이 보장되는 공사비를 예정하고 있어도 제대로 지어낼 수 있는 시공사를 만나는 건 배우자를 만나는 만큼 어렵다고 한다. 지금 짓고 있는 집이 다음 일을 맡을 수 있는 바탕이 될 수 있다는 마인드를 가진 시공사를 찾아야 한다.


특히 규모가 크지 않는 건축공사는 시공자 입장에서는 이윤이 많지 않으므로 기술력이 갖추어진 시공사를 찾기가 쉽지 않다. 하지만 건축주의 입장에서 보면 평생 한 번 지을 수도 있는 집을 “싸게 잘 지어준다”는 말만 믿고 공사를 맡길 수 있겠는가? 추천받은 시공사가 앞서 지었던 집을 찾아가서 검증을 해보는 것도 좋을 것이다.


WHITE HOUSE의 시공자로 선정된 시공사는 이윤도 남기고 작품으로도 남겨서 다음 일을 준비할 수 있는 마인드를 가졌다고 확신할 수 있었다.



2022년 7월 24일, WHITE HOUSE를 짓는 첫 삽을 떴다. 감리자도 있고 설계자도 가끔 현장을 살피겠지만 이제 현장은 오롯이 시공사의 몫이다. 설계보다 공사에 신경이 더 쓰이는지 착공에 앞서 처음 건축주와 저녁 자리를 가졌다. 내 집을 짓는 마음으로 건축사의 작품으로도 남을 수 있도록 최선을 다하겠다는 시공사 대표의 다짐을 들으면서 초지일관 좋은 집으로 지어지길 빌어 마지않는다.



도반건축사사무소-대표 건축사 김정관은

집이 행복의 원천이라는 주거의 인문학적 접근을 통해

부산, 양산, 김해, 울산의 단독주택, 상가주택 및 공동주택을 주로 설계하고 있습니다.


keyword