brunch

단독주택 晳涇帥軒, 손님이 자주 와 외롭지 않게 살 집

전원주택은 외로움을 견디기 어렵다는데

by 김정관

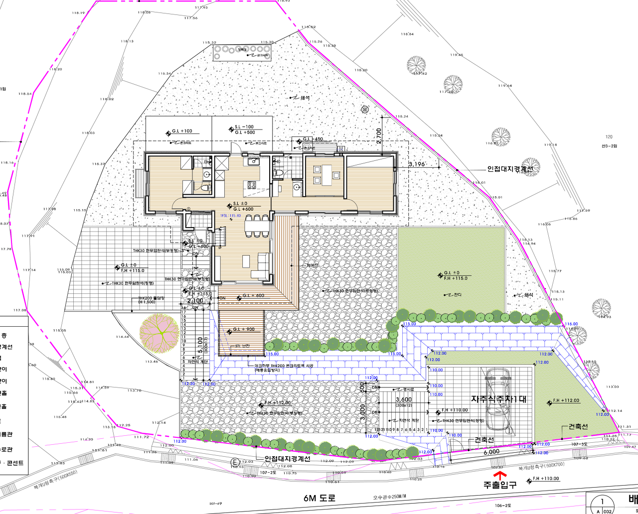
晳涇帥軒석경수헌, 작년 12월 17일에 기공식을 하고 지난한 과정을 거쳐 입주를 마쳤다. 평지에 집만 지었으면 고민할 일이 없을 너른 집터를 집으로 만드는 일이 무척 힘들었다. 도로에서 5 미터 정도 높은 곳에 있는 밭을 집터로 삼았으니 마당이 접한 주변 정리에 공사기간이 많이 소요되었다.

설계도 그렇지만 집을 짓는 과정에 건축주가 참여하는 건 당연한 일이라 하겠다. 내가 살 집이니 설계부터 집이 완공되어 입주할 때까지 빠진 게 없도록 살펴야 한다. 내가 살 집을 지어서 살 수 있다는 게 축복이 될 수 있도록 살피고 또 살펴야 한다.


석경수헌은 건축주께서 하루도 빠짐없이 현장에 나와서 공사를 맡은 분과 대화를 하고 일에 조금이라도 보탬이 되게 애를 쓰셨다. 연세가 적지 않은데도 불구하고 노심초사 현장을 돌보고 일이 없는 날에도 혼자 나와서 집이 지어지고 난 뒤의 생활할 프로그램을 적용하여 빈틈이 없도록 살피셨다. 유난히 더웠던 올 여름이었지만 즐겁게 살아갈 집이 될 것이라는 기대는 더위도 장애가 되지 않았을 것이다.


석경수헌 전경

집짓기보다 더 힘들었던 토목 공사


대지 면적이 넓다보니 경사진 땅을 집의 영역으로 꾸미는 게 보통 힘든 일이 아니었다. 특히 돌쌓기는 공이 이만저만 들어가는 일이 아니라서 공사에 임하는 작업자와 의논해가면서 돌 하나 놓는데 얼마나 고심을 하셨을까? 작업 기간은 예정보다 늘어났지만 나중에 보면서 흐뭇한 미소를 짓지 않을까 싶다.


도로와 접하는 주차장에는 미려하게 돌을 쌓고 현관까지 이어지는 외부 계단은 통석을 놓아 깔끔하고 하자가 없도록 시공이 되었다. 진입 정원은 돌디딤판과 잔디를 깔아 어떤 집에도 볼 수 없는 멋진 공간으로 연출했다. 살아가면서 길을 따라 정원수와 꽃으로 꾸민다면 손님들이 혀를 내두르는 공간이 될 것이다.


현관을 중심으로 왼쪽에는 손님공간, 오른쪽으로는 주인공간이 되는데 특별한 외부공간은 석경수헌만의 자랑이 될 것이다. 손님 공간은 화산석으로 포장을 하고 눈높이 정도의 장식 담장을 쌓아 내밀한 분위기를 연출했다. 거실 앞에는 지붕 없는 정자라고 이름 붙인 데크가 석경수헌에서 볼 수 있는 전원 풍경을 집으로 끌어들이는 자리이다.


집의 뒷마당은 주인만 알 수 있는 비밀스런 공간이다. 너른 집터라서 얻을 수 있는 넓직한 뒷마당은 이 터를 잡은 혜택이다. 석경수헌에서는 못할 일이 없다는 얘기는 이 뒷마당이 있기 때문이다.


돌쌓기에 공을 들이느라 공사기간이 늘어난 원인이 되었다


거실에서 밖을 내다보니


거실에서 밖을 바라본다. 왼쪽으로 난 큰 창으로는 잔디가 깔린 마당과 그림 같은 노송이 보인다. 우리집 안에는 소나무가 한 그루도 없는데 수백 년 된 노송이 집터를 에워싸고 있다. 건축주께서 이 터에 집을 짓고 살아야겠다는 결심을 이 소나무를 보고 하게되지 않았을까?


거실 앞을 바라보니 소나무 숲은 온데간데 없고 먼 산이 눈에 들어오면서 탁 트인 전망이 기가 찬다. 아침이든, 한낮이든 석양이 고운 저녁 나절이든 멀리 산을 바라보며 앉아 있으면 여기가 산 중턱이 아닌가 싶을 것이다.


다락으로 올라가는 계단이 주방의 냉장고와 수납공간 자리로 변경 시공되어 설계자는 안타깝지만 집을 쓰게 될 건축주의 생각이 더 중요할지 모른다.


집 안에서 볼 수 있는 경관은 어쩌면 손님의 시선일지 모르지만 집을 찾아온 분들이 탄복하는 모습에 함께 기뻐할 집 주인의 미소를 떠올려 본다. 설계를 하면서 전원에서 살게 되는 건축주의 입장에 서는 건 무척 중요하다. 손님이 들지 않는 집에노후를 보내는 건 얼마나 쓸쓸할까?


아무리 좋은 집이라도 얼마가지 않아서 익숙해지고 만다. 불편하면 불편한대로, 큰 집이든 작은 집이든 주어진 상황에 익숙해지는 것이 사람의 본성이기 때문이다. 그렇지만 손님은 불편하거나 볼품이 없는 집이라면 다시 찾아올 마음을 내지 않는다.


석경수헌은 손님을 배려한 설계가 되어 있기 때문에 와보지 못한 사람은 있어도 한번 오고 말 사람은 없을 것이다. 석경수헌에서 하룻밤을 묵어가면서 내 집보다 좋다는 부러움을 가질 건 틀림없을 것인데 사람을 좋아하는 건축주의 환대에 몇 번이고 찾아올 마음을 표현하지 않을까 싶다. 그 손님 중에 손주가 제일일 터 노후에 가질 복을 석경수헌에서 누리게 될 것이다.








석경수헌은 연면적이 서른 평이니 건물로 보면 작은 집이다. 그렇지만 집터는 300 평이 넘으니 너른 집인데 크게 네 구역의 외부공간을 쓰는 게 이 집에 사는 재미라고 할 수 있다.


건축주께서 심혈을 기우려 지은 석경수헌을 돌아보니


공사가 지연되면서 지켜보는 입장에서는 안타까워할 수밖에 다른 방도가 없었다. 겨울 공사로 출발했었지만 큰 추위도 없었고 봄에도 비가 잦지 않아서 여름이 오기 전에 끝날 일이었다. 그렇지만 평생을 살 집인데 공기만 줄이는 건 능사가 아니다.


공사 기간이 좀 늘긴 했지만 구석구석 꼼꼼하게 챙기다 보니 전체적으로는 집 분위기가 좋다. 집터 가장자리의 노송, 잘 자란 잔디와 돌 쌓기가 어우러져서 건축주 부부께서 노후를 보내는 집으로 손색이 없어 보인다. 거실에서 보이는 주변의 풍광은 동쪽으로 그림 같은 노송이 눈에 들어오고, 남향으로 열린 전원과 아스라하게 보이는 산이 마음을 편안하게 한다.


주차장과 대문에서 낮은 계단을 오르면 집 안으로 이어지는 과정적 공간이 펼쳐진다. 이 공간은 살아가면서 가꾸기에 따라 다른 집에서는 흉내 낼 수 없는 이색적인 영역이 될 것이다. 길을 따라 꽃을 심으면 꽃길이 될 것이고, 괴석이나 조각을 놓아도 좋고 모양이 좋은 나무를 심어 가꾸면 그만한 운치도 없을 터이다.


현관으로는 계단과 경사로로 올라갈 수 있다. 어떤 길을 선택해도 좋은 경로인데 첫 번째 만나는 작은 마당, 달빛 마당이다. 이 마당은 객실과 하나 되는 공간인데 바깥으로 향하는 시선을 막는 담을 두었다. 큰 마당인 햇살 마당은 밖으로 온전하게 열려 있고, 뒤뜰은 닫힌 공간이라면 달빛 마당은 그 중간으로 닫힌 영역이라 하겠다.


거실에서 동쪽 큰 마당으로 보면 그림같은 노송이 눈에 들어온다


거실과 안채가 하나 되는 큰 마당은 동쪽으로는 노송이 함께 하고 남향으로는 아스라이 먼 산에 시선이 머문다. 길에서는 넘어다 볼 수 없지만 마당에서는 길을 내려다볼 수 있다. 길을 지나는 사람들은 석경수헌의 지붕 아래 일부를 보면서 누가 살고 있는지 궁금해할 것이다,


뒤뜰은 석경수헌의 대지 조건이 만들어낸 생활공간의 백미라고 할 수 있다. 노송과 대나무가 둘러싼 뒤뜰은 주방과 이어진 장독대와 한실에 불을 넣는 아궁이, 한실에서 나올 수 있는 문으로 쓰임새가 짐작이 된다. 여름철에는 노송이 드리우는 그늘 아래 한낮에도 바깥 활동도 무리가 없을 것이다.


글을 마무리하면서 전통구들을 들인 한실 자랑을 하지 않을 수 없다. 부부침실 옆에 자리한 한실은 뒤뜰의 아궁이에 불을 들여 구들장을 데우는 전통 구들방이다. 늦가을부터 초봄까지 이 방에서 주무시면 일년내내 건강하게 지낼 수 있는 몸을 얻을 수 있을 것이다. 나이든 몸은 체온이 떨어질 수밖에 없는데 저항력을 잃지 않도록 해 줄 구들방은 ‘석경수헌’의 자랑이 되지 않을까 싶다.


석경수헌의 야경


건축주께서 집 짓는 일에 너무 애쓰다보니 공사기간이 늘어 힘들어하는 마음을 달래드릴 글을 쓰려다 집 자랑하는 얘기로 글이 마무리되었다. 30 평으로 소박하게 작은 집을 짓겠다고 찾아온 칠순의 건축주, 짓고 나니 백 평 저택이 부럽지 않은 집이 되었다며 고마워하신다. 큰 형님 연배의 건축주께 나무라기도 하고 부탁처럼 당부도 드렸지만 우여곡절까지는 아니라도 힘들게 반년이 지나 집이 완성되었다.


객실은 늘 열려 있으니 놀러 와서 자고 가도 좋다며 사람 좋은 호탕한 웃음을 아끼기 않으신다. 이제 입주해 사시면서 소소하게 손 볼 일은 있겠지만 꽃도 심고 나무도 키우면서 전원에서 사는 즐거움을 누리시면 좋겠다. 일흔의 적지 않은 연세에 하루도 빠짐없이 현장을 챙기셨던 열정을 오래 간직하시길 빌어 마지않는다.



도반건축사사무소-대표 건축사 김정관은

집이 행복의 원천이라는 주거의 인문학적 접근을 통해

부산, 양산, 김해, 울산의 단독주택, 상가주택 및 공동주택을 주로 설계하고 있습니다.


keyword