brunch

서향으로 앉은 대지에 남향 햇살이 가득 드는 집-陽明齋

건축주와 건축사, 시공자가 한 마음이 되어 믿음으로 지어낸 집

by 김정관

건축물명 : 陽明齋양명재

대지위치 : 부산 남구 진남로 188번길 46

설 계 자 : 도반건축사사무소 건축사 김정관, 설계담당 김풍부

시 공 자 : 단단한종합건설 대표이사 이재남, 현장대리인 조흥필



건축물이 그림이라면 대지는 캔버스


건축물에 있어서 대지는 그림을 그리는 캔버스와 같다. 캔버스가 아니더라도 그림을 그리는 화가는 바탕이 되는 재질과 형태에 맞춰 그림의 구도를 잡는다. 캔버스라면 그 크기나 재질, 나무판이 될 수도 있고 도자기나 부채, 심지어 이중섭 화가는 은박지에 그림을 그렸다. 그림을 그릴 바탕면의 여건은 화가는 그림을 어떻게 그릴지 구상을 하는 중요한 시작점이 된다.


집을 지을 대지의 여건을 터무늬라고 한다. 터무늬는 대지가 가지고 있는 주변 상황인 물리적 상태와 장소성이 가지는 인문학적 상황을 이른다. 대지의 형태와 크기, 경사도와 向향, 집에서 내다 보이는 경관이나 주변에서 바라다보는 시선 등을 잘 읽어내면 지어야 할 집의 얼개가 보인다.


흔히 대지의 조건으로 대지의 주변 여건은 배산임수로 앞이 열리는 쪽으로 경관이 수려하면 좋다. 대지의 형태는 정방형에 가까운 장방형, 도로보다 집터가 높아야 좋고 향은 남향이 주가 되고 동이나 서향으로 약간 기울어지면 좋다. 그렇지만 이런 여건을 다 충족시키는 대지를 구하기는 물 좋고 정자 좋은 땅이 어디에 있느냐는 얘기처럼 사실상 어렵다.


서향대지에 집을 앉힌 배치도


최악의 대지 여건인 陽明齋양명재


이 집의 당호는 햇살 밝은 집이라는 뜻인 ‘陽明齋양명재’로 지었다. 양명한 빛이란 陽氣양기가 충만해서 집 안에 瑞氣서기를 채워 넣을 수 있다. 양명재는 당호의 느낌대로라면 남향의 밝은 빛이 잘 드는 집이 되어야 할 것이다.


집 안을 남향의 밝은 빛으로 채우려면 남향 대지가 되어야 할 터인데 양명재의 대지 조건은 서향이 長邊장변으로 길게 앉아 있다. 서향으로 앉을 수밖에 없는 배치 여건을 가졌으니 남향의 햇살을 어떻게 들일 수 있었을까? 마술을 부리지 않았다면 설계자의 능력으로 남향 햇살을 집 안으로 들였을 것이다.


양명재는 집터로 본다면 그야말로 최악의 여건을 가졌다고 할 수 있다. 남북으로 긴 데다 대지 형태도 북쪽으로 칼처럼 뾰족하고 대지에 면한 도로도 경사길이다. 대지 폭마저 평면을 정리할 여유를 가지지 못한 여건이라 맘에 드는 집으로 설계할 좋은 여건이 보이지 않았다.


물 좋고 정자 좋은 터가 없다면 어느 한쪽을 취하고 부실한 부분을 보완하면 된다. 그렇지만 물도 좋지 않고 정자도 좋은 여건이 되기 어렵다면 어떻게 해야 할까? 발상의 전환이라는 말은 쉽게 쓰지만 실제로 적용해서 만족한 결과를 만들어내느라 수많은 대안이 검토되었다.


이층 평면도
삼층 평면도


남향의 밝은 빛이 집 안에 충만한 양명재


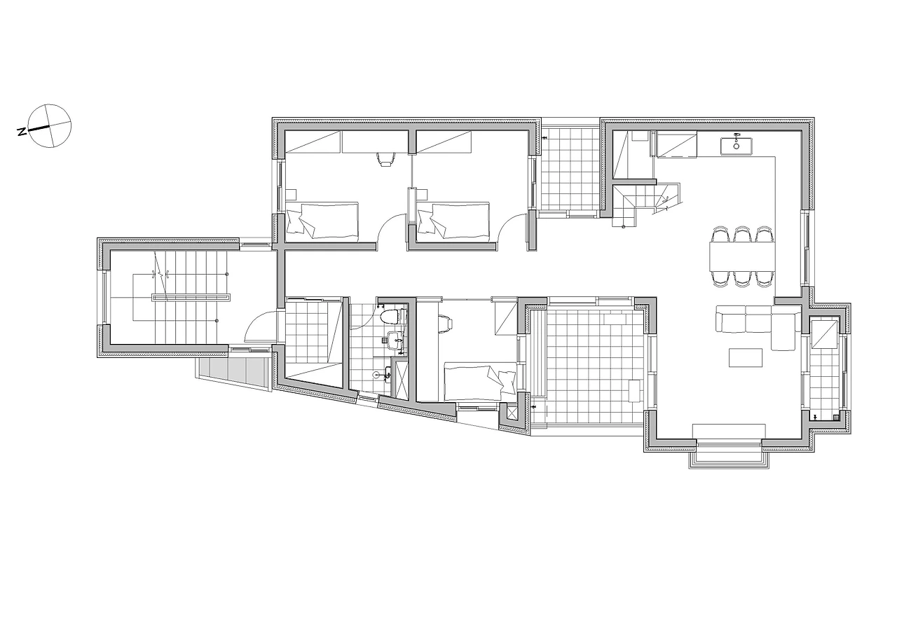
대지의 남쪽에 낮에 쓰는 공간인 거실 영역이 앉아야 남향의 햇살이 집 안에 든다. 대지의 북쪽에 계단실과 현관이 있는 자리다 보니 방은 긴 복도의 양옆에 위치하게 된다. 방에도 남향의 햇살을 들여야 당호에 걸맞을 것이라 중정과 마당을 넣어서 해결했다. 작은 마당이지만 그 역할은 결코 적지 않다. 현관에서 거실까지 이어지는 거리는 좀 길지만 마당과 만나면서 기분 좋은 공간감을 가지게 되었다.


방에 면하는 복도와 거실 사이의 공간에서 다락으로 올라가는 계단과 작은방에 햇살을 들이는 중정과 마당이 보인다. 방 하나를 제외한 모든 방은 남향의 밝은 햇살이 든다. 건축주의 방으로 쓰는 3층은 윗 마당에 면해 방 전체가 남향의 햇살이 든다. 양명재라는 당호에 걸맞게 온 집 안에 남향의 햇살로 가득하니 서향 대지의 조건은 오간 데 없는 집이 되었다.


거실은 남향으로는 밝은 햇살을 받고, 북향은 마당으로 나갈 수 있으며, 집의 정면이 되는 서쪽으로는 큰 창으로 먼 산이 액자의 그림처럼 풍경으로 담긴다. 거실은 경사지붕 아래 높은 공간감을 가지고 다락으로 계단을 통해 올라가면 윗 마당으로 바로 이어진다. 작은 집이지만 올망졸망 엮인 내외부의 공간 체계는 양명재에서 살 건축주 식구들 일상의 다양한 삶을 담아 행복으로 이끌 준비를 마쳤다.





양명재 공사를 맡은 단단한종합건설, 계속 이어지는 민원과 어려운 기초공사 등의 난제로 공사기간이 7 개월이나 걸리면서 내색은 하지 않았지만 얼마나 힘이 들었을지 어찌 모를 수 있을까? 작은 공사임에도 불구하고 열정을 식히지 않고 설계의도가 구현되도록 시공 결과를 만들어낸 현장 대리인과 대표께 지면을 빌어 고마운 마음을 전한다. 건축주 부부께서도 설계 과정부터 시공까지 전문가를 믿고 맡겨주신 배려에도 감사의 말씀을 전한다.


집은 행복이 솟아나는 샘과 같다. 집에서 행복하지 않다면 어디에서 몸과 마음을 쉬게 할 수 있을까? 양명재에서는 집 안에 드는 밝은 햇살처럼 행복이 넘쳐나게 될 것이라 믿어 의심치 않는다. 건축사는 설계를 시작할 때의 기대가 완공된 결과물로 온전하게 드러날 때 보람과 함께 이 일의 자부심으로 충만해진다. 최악의 조건을 가진 대지에 이보다 더 좋을 수 없다는 확신이 드는 집이 양명재라는 당호의 의미에 꽉 차도록 지어졌다. 참 좋다.



도반건축사사무소-대표 건축사 김정관은

집이 행복의 원천이라는 주거의 인문학적 접근을 통해

부산, 양산, 김해, 울산의 단독주택, 상가주택 및 공동주택을 주로 설계하고 있습니다.

keyword