brunch

단독주택 석경수헌,이 시대의 한옥으로 마무리하면서

깊은 진입 경로, 다양한 외부공간, 손님 영역까지 갖춘 '우리집'

by 김정관

석경수헌의 집터는 그림 같은 노송이 병풍처럼 둘러싸고 남향으로 열려 있다. 서른 평 규모로 짓는 집에 300 평이 넘는 적지 않은 대지 면적이 부담스러운 작업이었다. 도로에서 4미터 정도 높이에 평지가 조성되어 있어 올라오는 경로를 결정하는데 난관을 거쳐야 했다.


300 평의 대지에 서른 평으로 짓는 집, 대지는 넓고 집을 너무 작게 짓는 건 아닐까? 큰 집은 필요치 않다고 하면서 너무 넓은 대지를 구한 건 아닐까? 집을 서른 평으로 지으면 너무 좁은 게 아닐까?


단독주택을 지어서 살아보려고 대지를 찾아보면 마음에 꼭 드는 땅이 쉽사리 구해지지 않아 애를 먹는다. 집터를 구하는데 어떤 분은 십 년이 걸렸다고 하고 그나마 빨리 구했다고 하면 사오 년이다. 소위 물 좋고 정자 좋은 땅에 내 집을 짓는 건 삼대 적선을 한 공덕이면 모를까 싶지 않은 일이다.


건축주는 조상께서 지었던 공덕이 있었는지 누구나 탐낼만한 집터를 얻었다. 땅의 모양새는 부채꼴로 남향으로 열려 있고 도로에서 5미터가량 올라앉아 있으니 앞이 가로막힐 일이 없다. 정면으로 보이는 안산案山도 형국이 좋아서 가히 길지吉地라 할만하다.


img.jpg


대문에서 집으로 들어가는 경로의 결정


건축주는 거실에서 앞으로 바라보는 정면에 전신주가 맘에 걸렸던 모양이다. 거실에서 바로 보이는 전신주, 설계자는 신경 쓰지 않았으니 입장 차이가 분명하다. 대문을 그곳에 두어야만 전선주 이설이 가능하다니 집으로 들어가는 경로를 그곳으로 잡을 수밖에 없다.


설계자의 기획설계안을 포기하고 대지의 서측으로 대문을 설치하고 계획 설계가 마무리되었다. 대문 위치의 결정에서 도로와 집이 앉혀지는 자리 중간 단에 대한 쓰임새가 달라진다. 기획안처럼 대문이 동측에 있으면 중간 단은 대문에서 현관까지의 과정적 공간이 된다. 변경안으로 대문에서 현관에 이르는 진입이 짧아지면서 남은 땅은 텃밭으로 쓸 수 있다.


1628222101012-2.jpg


1628665887199 (1) (1).png 주차장을 진입 경로를 두지 않고 현관으로 바로 연결하는 초기 2차 계획안


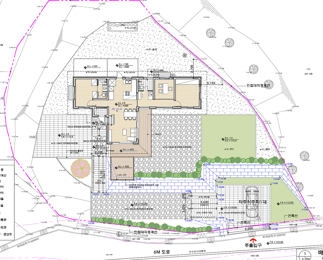
석경수헌 배치 평면도.png 최종 배치 및 평면도-설계의 마무리는 주차장을 계획 설계 초기안으로 결정되면서 깊은 진입공간을 가질 수 있게 되었다


대문이 있는 주차장에서 계단으로 중간 단에 올라 현관까지 이동하는 경로는 두 안에서 큰 차이가 있다. 기획안은 20 미터 정도 길이로 조경이 된 길을 따라 걸어서 들어가는 이 집만의 특별한 공간이 조성된다. 반면에 변경안은 주차장에서 계단으로 현관까지 바로 진입하게 된다.


기획안은 도로에서 현관까지 이르는 과정은 설계자가 의도한 석경수헌만의 건축적 공간이라 할 수 있다. 그렇지만 전신주를 옮겨야겠다는 건축주의 강한 의지를 감안해야 하니 아깝지만 포기할 수밖에 없었다. 그런데 허가과정에서 돌출된 일로 인해 기획안으로 되돌아갈 수 있었다. 설계자 입장에서는 천만다행이 아닐 수 없다.


작은 집이지만 손님 영역을 갖춘 집


부부 위주로 얼개가 짜진 아파트는 외롭게 살아야 하는 집이다. 자식들도 출가하게 되면 며느리나 사위는 손님이 된다. 손님이 편히 머물 수 없게끔 얼개를 짠 단독주택은 아파트보다 더 외롭게 살아야 한다. 아파트가 군중 속의 고독이라면 단독주택은 온전히 절대 고독이 될 수 있다.


노후를 보내야 할 전원주택이라면 손님이 심심치 않게 찾아와야 하는 건 살아보면 알 수 있다. 나이가 들어갈수록 밖으로 나가는 일이 줄게 되고 집에서 일상을 보낼 수밖에 없다. 그러니 자연히 손님이 찾아오기를 기다리게 되는데 자식마저 자주 찾아주지 않으면 단독주택은 孤立無援고립무원의 신세가 되어 버린다.


1628665879489-1.jpg 서른 평의 작은 집에 손님 영역이 이보다 더 좋을 수 있을까? 손님방은 온 식구가 한 방에서 묵어갈 수 있고 툇마루로 바깥 마당으로 드나들 수 있다


석경수헌은 이보다 더 괜찮게 만들기 쉽지 않은 객실로 설계되었다. 거실을 가운데 두고 주인 부부의 영역-Master Zone을 오른편에, 손님의 영역-Guest Zone은 왼편에 두었다. 손님방에 작은 마당을 따로 두어 툇마루를 통해 바로 드나들 수 있으니 얼마나 좋을까?


손님을 청하면서 하루 묵어가도록 일정을 잡아 오라 할 수 있으니 석경수헌에 오는 손님은 누구나 VVIP가 된다. 손주를 동행하는 자식이야 귀하고 귀한 손님이지만 특별한 객실에서 묵어갈 수 있으니 초대해 주길 기다릴까? 밤 시간을 함께 보낼 손님과 선걸음에 금방 일어나야 할 손님은 크게 다를 것이다.


객실은 네 명이 함께 잘 수 있는 방으로 만들었다. 그래서 욕실 영역도 샤워 공간, 변기와 세면 공간을 나누어 쓰도록 되어있다. 휘영청 보름달이 뜬 밤에 객실에 든 손님은 노송 그림자가 드리운 뜰을 거니는 장면을 상상해 본다.


앞마당보다 더 좋은 뒤뜰, 그리고 지붕 없는 정자


우리나라의 단독주택은 건물만 해당되는 게 아니라 마당을 포함하는 담장 안까지 포함해야 한다. 마당은 우리나라에서만 쓰는 독특한 외부 공간이다. 마당은 지붕만 없을 뿐 내부 공간과 이어지는 기능을 수행한다.


우리나라의 단독주택은 조선시대 한옥을 끝으로 그 맥락이 단절되고 말았다. 오히려 일제강점기를 거치면서 왜색주거문화가 섞여 우리 주택의 정체성이 사라져 버렸다고 해도 과언이 아니다. 이 시대의 단독주택은 한옥에 뿌리를 두고 있음을 잊지 말고 맥락을 이어서 지어야 한다.


한옥의 맥락을 잇는 가장 중요한 요소가 바로 마당이다. 거실은 큰 마당, 주방과는 뒤뜰, 객실은 사랑마당, 서재와는 안뜰과 같은 내부 공간과 이어지도록 외부 공간을 하나로 묶어낸다. 한옥은 방을 작게 쓰지만 마당과 하나의 공간 체계를 가지면서 더 풍성한 주거 생활을 영위할 수 있었다.




다운로드.jpg
1627287821384-1.jpg 석경수헌 설계 작업은 초기 단계에서 건축주께 제안한 계획안이 일관성 있게 진행되었다. 주차장 위치가 수정되었다가 원래 안으로 다시 돌아오게 되어 다행이었다.


석경수헌은 거실과 부부 영역은 햇살마당, 주방과 한실은 뒤뜰, 손님방은 달빛마당과 하나 되게 공간을 구성했다. 햇살마당은 외부로 열린 동적 공간, 달빛마당은 담장과 노송이 둘러싼 정적 공간이다. 뒤뜰은 산자락과 이어지면서 노송과 대숲이 에워싼 아늑한 분위기에 감탄이 절로 나온다.


석경수헌에는 정자도 있다. 거실 앞 데크에 붙여 전원을 내다볼 수 있도록 지붕 없는 정자를 마련했다. 그늘이 필요하면 파라솔을 놓거나 천막을 치면 될 것이다. 거실이나 데크에서도 먼 풍경이 잘 보이지만 정자에 앉아서 솔바람소리. 새소리를 들으면서 세상을 내려다보는 운치는 석경수헌만의 백미라 할 것이다.




300 평의 너른 대지를 구했지만 집은 작게 지어 살고 싶었던 건축주, 그 마음을 잘 읽으려 애써서 설계 작업을 마무리했다. 서른 평의 집을 숫자로만 보면 작은 집이지만 실내와 마당이 어우러지면서 풍성한 공간으로 만들어졌다. 우리나라 사람이 사는 단독주택인 한옥韓屋, 석경수헌은 이 시대의 한옥으로 조상으로부터 물려받은 유전자가 받아들이는 편안한 집이 될 것이다.




keyword
매거진의 이전글단독주택 석경수헌, 손님이 묵어가는 집으로