brunch

단독주택 석경수헌-넘치지도 모자라지도 않게 짓는 집

단독주택은 건축사의 작품이라고 디자인을 우선해서 지으면 안 되는데

by 김정관

지금은 쓰임새가 불편해도 모양새만 예쁘면 다 용서된다는 디자인 만능인 시대에 살고 있다. 그런데 그 말이 한번 지으면 평생 살아야 하는 우리집을 짓는 데도 통할 수 있을까? 톡톡 튀는 디자인을 선호하는 추세에 맞추어 패셔너블한 외관을 자랑하는 집이 잡지나 인터넷 포털로 소개된다.


정보검색을 통해 최근 지어지는 집을 보노라면 레고 같은 육면체나 삼각지붕으로 된 박스풍이 유행하고 있다. 집의 지붕을 삼각으로 처마 없이 얹으면 지붕에 쏟아지는 비는 벽을 타고 흘러내린다. 벽을 적시는 비는 창문으로 흘러들어 누수의 위험을 증대시킨다. 그뿐이 아니라 북측 벽은 햇볕이 들지 않아 잘 마르지 않는다. 따라서 장마철에는 곰팡이로 벽면이 오염되는 건 물론이고 나무 재질을 썼다가는 썩어 들어가게 될 것이다.


건축주가 식구들과 살 집을 작품이라며 그림처럼 디자인하는 건 설계자지만 그 집에 사는 사람은 유지관리에서 얼마나 애를 먹는지 모른다. 집이 막 준공되었을 때 찍어 두었던 사진이 온갖 매체에 도배하듯 오랫동안 디자인을 뽐내고 있다. 한두 해를 지나 오 년 정도 지난 뒤에 디자인을 뽐내는 집을 찾아가 보라. 그 사진에서 보았던 집인 채 그대로 잘 있는지.

사람처럼 집의 팔자도 외관만 번지르르하면 미가박명美家薄命이라
오래 살지 못하고 소박을 맞게 될지도 모른다

수납공간 이야기를 시작해야 하는데 집의 외관에 대해 너무 민감하게 언급한 것 같다. 설계자가 자신의 임무를 망각하고 작업해서 지은 집은 세상에 태어나면서 평생 사용자와 다투는 팔자를 타고나게 된다. 사람처럼 집의 팔자도 외관만 번지르르하면 미가박명美家薄命이라 소박을 맞게 될지도 모른다.


설계자로서 건축사의 임무는 건축주가 집을 지으려는 목적에 충실하게 소소한 것까지 담아내야 한다. 건축주는 설계를 의뢰하면서 ‘배우자’ 같이 속이 꽉 찬 집을 원할 것이다. 그런데 설계자가 ‘애인’처럼 외모만 화려한 집을 그리듯 지어 버렸다면 평생 같이 살기는 애당초 틀린 일이 되고 마는 게 아닐까?


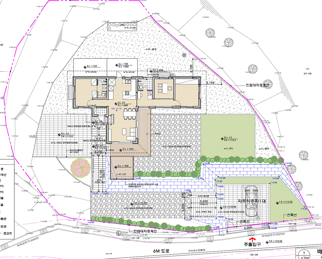
석경수헌 배치 평면도.png 석경수헌 배치 및 평면도-주방 상부에 수납 공간으로 쓸 다락이 설치되어 있다, 객실에도 침구와 손님의 옷을 수납할 수 있도록 장이 설치되어 있다
20190905_232358.jpg
20191011_172103.jpg 필자 설계 경남 양산 심한재의 주방 상부 다락 공간-수납 공간으로도 쓰지만 다목적실로도 쓰임새가 많다


창작과 창조는 다르다

창작하는 일을 하는 사람을 디자이너라고 한다. Interior Designer, Landscape Designer, Hair Designer 등 그 일을 하는 사람은 다 디자이너라고 부른다. 그런데 건축 설계를 하는 사람은 Architect라고 쓰며 Architectural Designer라고 부르지 않는다. 왜 건축사(가)만 하는 일의 끝에 Designer를 붙이지 않는 것일까?


창작, 즉 Design은 작업의 결과마다 달라야 한다. 이 세상에 없는 독특한 무엇이 나와야 뛰어난 Design이라고 평가를 받는다. 건축물도 외관으로만 본다면 Design이라고 볼 수 있다. 그래서 오래된 건축물을 리모델링하는 작업은 Architect보다 Interior Designer가 참여하는 경우가 많다. 그들의 작업은 차별된 Design에 익숙해져 있기 때문이다.


건축물의 외관만 작업하는 직업이 있다면 아마도 Exterior Designer라고 부를 것이다. 그렇지만 그 일이 따로 있을 수 없기 때문에 그런 직업은 아직 없지 않나 싶다. 하지만 그 일을 전문으로 하는 직업이 없지는 않아서 환경디자인이라는 분야로 독립된 일을 하고 있다. 주로 아파트에서 설계는 건축사가 하고 외관 작업만 따로 이들이 맡아서 하기도 한다.

건축물을 지을 때 관여하는 사람은 건축주, 설계자, 시공자가 되지만
지어지고 나면 나이, 성별을 불문하고 장애를 가진 사람까지
불특정 다수가 쓰게 되므로
건축 작업은 차별보다 보편성이 우선 되어야 한다

그럼 건축 설계도 창작이라고 하는데 왜 건축사(가)를 왜 건축 디자이너라고 부르지 않았을까? 건축은 외관은 차별된 디자인을 내세우지만 쓰임새를 담는 얼개를 짜는 일은 차별보다 보편성을 가져야 하기 때문이다. 건축물을 지을 때 관여하는 사람은 건축주, 설계자, 시공자가 되지만 지어지고 나면 나이, 성별을 불문하고 장애를 가진 사람까지 불특정 다수가 쓰게 된다. 건축 작업은 차별보다 보편성이 우선 되어야 하는 이유가 여기에 있다.


건축설계는 創作창작, 즉 Design이 아니면 어떤 일이라고 해야 할까? 건축은 創造창조라고 해야 할 것이다. 창작은 다르게 만드는 일이라 어떻게 작업을 하더라도 오답은 없지만, 창조는 없던 것을 새로이 만드는 일이라 있어야 할 것을 빠뜨리거나 사용 목적에 맞지 않게 되면 오답이 된다. 그래서 창작은 작업 행위가 비교적 자유롭지만 창조는 전제 조건에 맞아야만 한다는 규칙에 얽매이게 된다. 창조는 有유에서 有유로의 변형이지만 창작은 無무에서 有유를 만들어내는 작업인 것이다.



건축물은 창작이 아닌 창조물


창조라는 말을 끄집어내면 바로 천지창조가 이어서 연상된다. 조물주가 이 세상을 만들었다고 하는데 여기서 창조의 의미를 생각해 볼 수 있다. 조물주는 이 세상을 창조하면서 부족하거나 넘치지 않도록 만물을 만들었다는 점이다.


얼마나 면밀하게 짜서 만들었는지 인간의 탐욕으로 자연을 훼손시키니 균형이 무너져 자연재해가 일어난다. 빙하가 녹으니 해수면이 높아지고, 열대 우림의 나무를 베어내고 연기를 내뿜으니 산소가 부족해져 생존의 위협이 닥친다. 그뿐 아니라 지진, 홍수, 해일 등등 재앙이라고 하는 지구 전체가 불안에 싸이고 있다.


집을 지으면서 꼭 있어야 하는 것을 빠뜨리고 무시하며 설계하면
그 집에서 사는 삶이 편하지 않으니 행복과 멀어질 수도 있을 것이다

건축물을 짓기 위해 설계를 하면서 가장 중요하게 여겨야 하는 건 삶에서 불편하지 않도록 갖추어야 할 것을 빠짐없이 챙기는 일이다. 건축 작업은 창조의 관점에서 임해야 한다는 걸 명심해야 한다. 꼭 있어야 할 것을 챙겨 넣고, 무시하면 문제가 생길 수 있는 것을 빠뜨리지 않아야 한다. 빠뜨리고 무시하며 설계를 하게 되면 그 집은 편하지 않는 삶을 살게 되니 행복과 멀어질 수도 있을 것이다.


아파트는 외부 공간, 수납공간이 없다시피 하고 손님이 들기 어려운 데다 식구들의 개인 생활이 보장되지 않는 집이다. 그러다 보니 식구들은 밖으로 돌게 되고 아이들은 대학생만 되면 독립하면서 부부만 남아 외롭게 살 수밖에 없다. 아이들이 독립해서 비어 있는 방이 하나는 수납공간이 되고 다른 방은 부부가 각방을 쓰면서 채워지게 된다. 아이들이 집에 와도 자고 갈 방이 없으니 자주 오지 않아서 쓸쓸한 노후를 보내게 된다. 아파트에서 사는 이 시대의 사람들이 행복하게 지내지 못하는 건 바로 제대로 창조되지 않은 집이기 때문이다.


집에 수납공간이 없다는 나비 효과


사람도 그렇지만 물건도 제 위치가 있어야 한다. 일상에서 쓰는 물건을 잘 살펴보면 계절 별로 쓰이는 게 있고, 자주 쓰지 않아서 가끔 나와야 하는 것도 있다. 덩치가 큰 물건인데 쓸 때만 밖으로 나와야 하는데 둘 데가 없어서 쓰지 못하면 일상생활에 제한을 받게 된다.


집의 얼개를 짤 때 소요 공간의 면적을 비율로 나누어보면 수납공간은 전체 면적의 20% 정도가 있어야 한다. 중간 크기의 방 하나 정도가 물건을 둘 장소로 있어야 한다는 것이다. 게다가 발코니라는 외부 공간도 불편한 마음을 둘 수 있는 장소로 꼭 필요한 곳인데 새 아파트는 다 없애고 분양된다.


수납공간과 발코니가 없는 집이라고 행복이 깃들 여지가 없다는 게
그냥 하는 말일까?

둘 데가 없는 물건은 아무 데고 두다 보면 집 안을 번잡하게 만들고 풀 곳이 없는 마음은 울화가 생기게 된 밖으로 나돌게 된다. 그러다 아이들이 독립해서 빈방이 생겼다고 수납공간으로 만들어 버리니 집에 다니러 온 아이가 잘 데가 없으니 우리집이 아니라며 발걸음을 끊게 한다. 방 하나 정도 비워두는 건 빈 방이 아니라 비워두어야 할 방인데...


이렇게 얘기를 이어가다 보니 수납공간과 발코니가 없는 집에 행복이 깃들 여지가 없다는 게 그냥 하는 말이 아니라는 것에 공감이 되지 않을까 싶다. 집에 꼭 있어야 할 공간을 마음대로 없애고 사는 아파트라는 집이 주는 건 바로 외로움이다. 수납공간이 없어서 행복해질 수 없다니 그게 말이 되냐고 반문할 수 없다면 어떤 집에서 살아야 행복할 수 있는지 깊이 생각해 보아야 할 것이다.


20220322_112537.jpg
img.jpg 서른 평으로 짓고 있는 경남 양산시 삼수리의 석경수헌, 거실의 높은 공간 일부에 다락을 두어 넉넉한 수납공간을 확보하고 비어있는 방인 객실은 늘 손님을 기다린다
20220322_093558.jpg
img.jpg 거실 지붕 하부의 일부에 다락을 두어 넉넉하게 수납공간을 두고, 거실 왼편에 늘 비어있는 객실은 손님을 기다리는 집인 석경수헌이 공정율 70%를 넘기며 마무리 공사중이다




외관이 특별해서 보기에 좋은 집, 창밖으로 보이는 경치가 좋다는 전망 좋은 집은 넘치는 집이다. 수납공간이 부족하고 비어있는 방이 없는 집은 일상생활을 담아내는 데 모자라는 집이다. 모름지기 좋은 집이란 넘치거나 모자라지 않아 일상생활을 편하게 담아낼 수 있어야 한다. 큰 집이나 화려한 집이 아니라 집에 있을 때 만족함을 느낄 수 있어야만 행복을 담아낼 수 있다.


빈 방이 아니라 비워 놓은 방이 있어야 자식들이 자주 와서 잠을 자고 가니 외롭지 않게 살 수 있다. 자식들은 손주와 오게 되니 노년의 행복은 이보다 더 좋을 수 없다고 한다. 행복은 결코 집 밖에서 누릴 수 없으니 웃음소리가 담장을 넘는 집이 우리집인지 돌아볼 일이다.

keyword
매거진의 이전글단독주택 석경수헌-내 나이 일흔에 집을 지어도 될까요?