brunch

수납공간이 없는 집에서 일어나는 나비 효과

여성경제신문 '더봄' 연재 - 단독주택 인문학 6

by 김정관

-단독주택의 다락과 손님방에서 머무는 행복에 대하여


지금은 무엇이든지 눈길을 사로잡지 못하면 소용없는 세상에 살고 있다. 그러다 보니 눈을 현혹하는 모양새에 팔리지 않을 수 없다. 그러다 보니 쓰임새를 도외시하고 선택해 쓰지도 버리지도 못하는 물건이 얼마나 많은가? 아무리 디자인 만능 시대라 하더라도 예쁘다고 해서 다 용서되는 건 아닐 것이다.


눈길을 끄는 외관을 가진 집을 보면서 나도 저런 집에 살고 싶다는 마음을 낼 수 있다. 그렇지만 한번 지으면 평생 살아야 하는 우리집이라면 겉만 번지르하게 짓지는 않을 것이다. 인터넷 포털사이트를 검색해 보면 톡톡 튀는 디자인을 선호하는 추세에 맞추어 패셔너블한 외관을 자랑하는 집만 나오고 있다. 만약 우리집을 짓는다면 어떻게 지어야 좋을까?


우리집이 건축사의 작품이면 좋을까?


정보검색을 통해 최신작 집을 보노라면 레고 같은 육면체나 삼각지붕이 얹힌 박스풍이 유행하고 있다. 집의 지붕을 삼각으로 처마 없이 얹으면 지붕에 쏟아지는 비는 벽을 타고 마구 흘러내릴 것이다. 빗물은 벽을 적시고 창문으로 흘러내려 누수의 위험을 가증시킨다. 장마철에는 늘 젖어 있는 북쪽 벽은 햇볕이 들지 않으니 이끼가 피어 시간이 지나면 시커멓게 변하고 만다.


건축주가 살 집을 설계해 달라고 의뢰했는데 건축사는 자신의 작품이라며 그림처럼 디자인하고 있다. 그런데 그 건축사는 그 작품에서 살아야 할 건축주가 집을 유지관리하는데 얼마나 애를 먹는지 알까 모르겠다. 건축사는 집이 준공되자마자 찍어 두었던 사진을 온갖 매체에 도배하듯 올려 자신의 작품이라며 뽐내고 있다. 한 오 년, 십 년 정도 지나 디자인을 뽐내는 작품을 찾아가 보라. 사진에서 보았던 그 집이 그대로 잘 있는지.


초읍013.jpg 필자가 작품으로 삼는 부산 초읍동 소재 이입재, 건축상을 수상했던 작품이지만 소소한 부분까지 놓치지 않고 설계했던 단독주택이다


수납공간 이야기를 하려고 시작한 글인데 집의 외관으로 너무 민감하게 침을 튀긴 것 같다. 설계자가 자신의 임무를 망각하고 설계한 집은 세상에 태어나면서 평생 사용자와 다투는 팔자를 타고나게 된다. 사람처럼 집의 팔자도 외관만 번지르르하면 미가박명美家薄命이라 소박을 맞게 될지도 모른다.


설계자로서 건축사의 임무는 건축주가 집을 지으려는 목적에 충실해서 소소한 부분까지 잘 챙기는 게 우선이다. 건축주는 설계를 의뢰하면서 ‘배우자’ 같이 속이 꽉 찬 집을 원하지 않는 사람은 없을 것이다. 그런데 설계자가 ‘애인’처럼 외모만 화려한 집으로 그리듯 지어 버렸다면 평생 같이 살기는 애당초 틀린 일이 되고 마는 게 아닐까?


창작과 창조는 다르다


창작하는 일을 하는 사람을 디자이너라고 한다. Interior Designer, Landscape Designer, Hair Designer 등 그 일을 하는 사람은 다 디자이너라고 부른다. 그런데 건축 설계를 하는 사람은 Architect라고 쓰며 Architectural Designer라고 부르지 않는다. 왜 건축사(가)만 하는 일의 끝에 Designer를 붙이지 않는 것일까?


창작, 즉 Design은 작업의 결과마다 달라야 한다. 이 세상에 없는 독특한 무엇이 나와야 뛰어난 Design이라고 평가를 받는다. 건축물도 외관으로만 본다면 Design이라고 볼 수 있다. 그래서 오래된 건축물을 리모델링하는 작업은 Architect보다 Interior Designer가 참여하는 경우가 많다. 그들의 작업은 차별된 Design에 익숙해져 있기 때문이다.


건축물의 외관만 작업하는 직업이 있다면 아마도 Exterior Designer라고 부를 것이다. 그렇지만 그런 직업군은 아직 없어서 디자인 일을 하는 Interior Designer가 주로 하게 되는가 보다. 기존 건축물을 리모델링하는 일은 상업성이 강한 업종을 유치하는데 마치 영화촬영 세트장의 건물처럼 보인다. 아파트에서 설계는 건축사가 하지만 외관 디자인은 따로 전담하는 업종이 따로 맡아서 하기도 한다.


건축물을 지을 때 관여하는 사람은 건축주, 설계자, 시공자가 되지만
지어지고 나면 나이, 성별을 불문하고
장애를 가진 사람까지 불특정 다수가 쓰게 되므로
건축 작업은 차별보다 보편성이 우선 되어야 한다


그럼 건축 설계를 창작이라고 하는데 왜 건축사(가)를 왜 건축 디자이너라고 부르지 않았을까? 건축믈은 백 년을 기약하고 지어야 하며 쓰임새를 담는 전체 얼개는 차별보다 보편성을 가져야 하기 때문이다. 건축물을 지을 때 관여하는 사람은 건축주, 설계자, 시공자가 되지만 지어지고 나면 나이, 성별을 불문하고 장애를 가진 사람까지 불특정 다수가 쓰게 된다. 건축물을 설계하면서 디자인에 집착한 나머지 조금 불편해도 상관 없다며 보편성을 무시하게 되면 사용자는 집을 쓰는 내내 힘든 상황을 감수해야 한다.


20191011_172103.jpg
20191015_142754.jpg 필자 설계 단독주택 심한재, 우리 단독주택의 뿌리라고 할 한옥의 얼개를 접목해서 설계가 이루어졌다. 거실채에는 수납공간으로 다락, 침실채의 이층은 손님 영역이다


건축설계가 創作창작, 즉 Design이 아니라면 어떤 일이라고 해야 할까? 건축은 創造창조라고 하는 게 옳은 표현이 아닐까 싶다. 창작은 작업 결과마다 다르게 만드는 일이라서 어떻게 만든다고 해도 오답이 없다. 그렇지만 창조는 없던 것을 새로이 만드는 일이라 있어야 할 것을 빠뜨리거나 사용 목적에 맞지 않게 지으면 오답이 된다.


창작은 작업 행위가 비교적 자유롭지만 창조는 사용자의 편의성이라는 전제 조건에 맞아야 한다는 엄정한 규칙에 얽매이게 된다. 창조는 有유에서 有유로의 변형이지만 창작은 無무에서 有유를 만들어내는 작업인 것이다. 그렇다고 보면 건축 작업은 창작이어야 할까? 창조라고 해야 할까?


건축물은 창작품이 아닌 창조물


창조라는 말을 끄집어내면 바로 천지창조가 이어서 연상된다. 조물주가 이 세상을 만들었다고 하는데 여기서 창조의 의미를 생각해 볼 수 있다. 조물주는 이 세상을 창조하면서 부족하거나 넘치지 않도록 만물을 만들었다는 점이다.


조물주가 세상을 얼마나 면밀하게 짜서 만들었는지 인간의 탐욕으로 자연을 훼손시키면 균형이 깨진 만큼 자연재해가 일어난다. 빙하가 녹으니 해수면이 높아지고, 열대 우림의 나무를 베어내고 연기를 내뿜으니 산소가 부족해져 생존의 위협이 닥친다. 그뿐 아니라 지진, 홍수, 해일 등등 재앙이 지구촌 곳곳에서 일어나 온 세계가 불안에 휩싸이고 있지 않은가?


집을 지으면서 꼭 있어야 하는 것을 빠뜨리고 무시하며 설계하면
그 집에서 사는 삶이 편하지 않으니 행복과 멀어질 수도 있을 것이다


단독주택 설계를 하면서 가장 중요하게 여겨야 하는 건 일상생활에서 불편하지 않도록 갖추어야 할 것을 빠짐없이 챙기는 일이다. 꼭 있어야 할 것을 챙겨 넣고, 무시하면 문제가 생길 수 있는 것을 빠뜨리지 않아야 한다. 빠뜨리고 무시하며 설계를 하게 되면 그 집은 부족한 만큼 불편하게 살아야 되니 행복과 멀어질 수도 있을 것이다. 건축 작업은 창조의 관점에서 임해야 한다고 생각한다.


20220307_132618.jpg


20220307_132649.jpg
KakaoTalk_20240812_162103351.jpg 다락이 넉넉한 필자 설계 경남 양산 소재 단독주택 지산심한, 경사지붕 아래 공간은 수납공간과 객실로 쓰고 있다


아파트는 외부 공간, 수납공간이 없다시피 하고, 손님이 들기 어려운 데다 식구들의 개인 생활도 제대로 보장되지 않는 집이다. 그러다 보니 식구들은 밖으로 나돌게 되고, 아이들은 대학생만 되면 독립하는 게 요즘이다. 그러다 보니 부부만 남는데 각방을 쓰는 집은 외롭게 살 수밖에 없다.


아이들이 독립해서 비어 있는 방이 하나는 수납공간이 되고 다른 방은 부부가 따로 방을 쓰면서 채워지게 된다. 아이들이 집에 와도 자고 갈 방이 없어 자주 오지 않게 되니 쓸쓸한 노후를 보내게 된다. 아파트에서 사는 이 시대의 사람들이 행복하게 지내지 못하는 건 바로 제대로 ‘창조되지 않은 집’이기 때문이다.


수납공간과 비워두는 방에 담기는 행복


이제 사소하다고 여겨 빠뜨리고 마는 수납공간에 대해 이야기를 해보자. 물건이 있어야 할 곳이 없으면 발이 달리지도 않았는데 이곳저곳으로 돌아다닌다. 일상에서 쓰는 물건을 잘 살펴보면 계절 별로 쓰는 게 있고, 잘 쓰지 않아서 가끔 나와야 하는 것도 있다. 덩치가 큰 물건이 집 안 곳곳에 자리를 차지하다 보면 일상생활이 번잡해지고 만다.


집의 얼개를 짤 때 소요 공간의 면적을 비율로 나누어보면 수납공간은 전체 면적의 20% 정도가 필요하다고 본다. 중간 크기의 방 하나 정도는 물건을 보관할 장소로 확보되어야 한다는 것이다. 게다가 발코니라는 외부 공간도 불편한 마음을 둘 수 있는 장소로 꼭 필요한 곳인데 새 아파트는 다 없애고 분양된다.


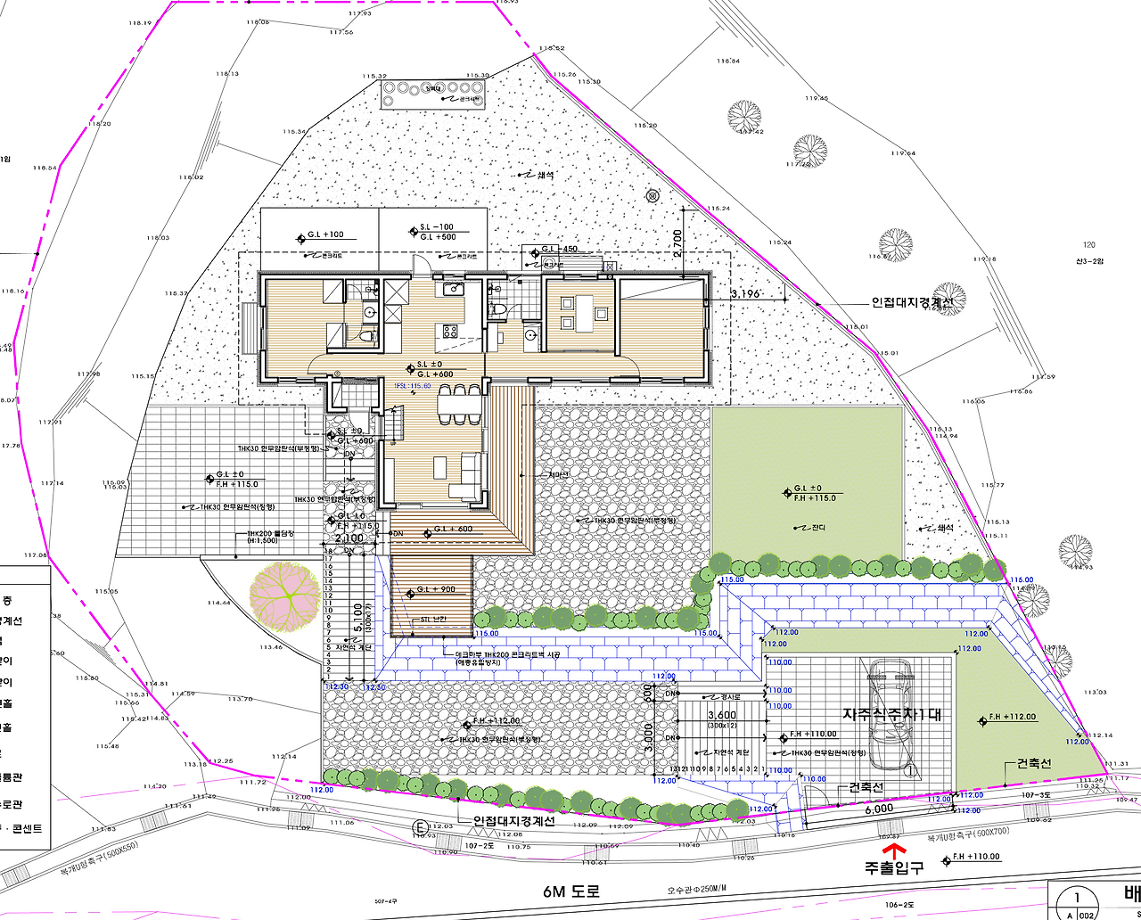
석경수헌 배치 평면도.png


20220706_110202.jpg 필자 설계 경남 양산 석경수헌-서른 평으로 지은 단독주택이지만 객실과 다락을 갖추어 더 필요한 게 없이 살 수 있는 넉넉한 집이다
수납공간과 비워두는 방이 없는 집에는
행복이 깃들 여지가 없다는 게
그냥 하는 말일까?


이곳에서 저곳으로 나돌아 다니는 물건 때문에 집 안이 번잡하니 알게 모르게 마음에 울화가 생겨 사람들이 밖으로 나돌게 되는 게 아닐까? 그러다가 아이들이 대학생이 되어 독립해 나가 빈방이 생기면 물건들이 그 방은 제 차지라며 들어앉는다. 방학이라며 집에 다니러 온 아이는 제 방이 없어져 발걸음이 뜸해진다. 방 하나 정도 비워두는 건 '빈 방'이 아니라 '비워두어야 할 방'이다.


이렇게 얘기를 이어가다 보니 수납공간과 비워두어야 할 방이 없는 집은 행복이 깃들 여지가 없어져 버린다. 비워놓아야 할 방, 비어있어야 할 발코니는 행복이 있을 자리이다. 집에 꼭 있어야 할 공간이 없는 아파트에는 외로움만 머물고 있다. 수납공간과 손님방이 행복이 담기는 자리라니 그게 말이 되냐고 반문한다면 어떤 집에서 살아야 행복할 수 있을지 깊이 생각해 보라고 되묻고 싶다.




외관이 유별나서 보기에 좋은 집, 창밖으로 보이는 경치에 눈이 팔린 전망 좋은 집은 '넘치는 집'이다. 수납공간이 부족하고 비어있는 방이 없는 집은 일상생활을 담아내는 데 '모자라는 집'이다. 모름지기 좋은 집이란 넘치거나 모자라지 않아 일상생활을 편하게 담아낼 수 있어야 한다. 우리집은 큰 집이나 화려한 집이기보다 작은 집이라도 식구들이 편안하게 살 수 있어야만 행복을 담아낼 수 있다.


'빈 방이 아니라 비워 놓은 방'이 있어야 자식들이 자주 와서 잠을 자고 가니 외롭지 않게 살 수 있다. 결혼한 자식이라면 손주와 함께 오게 되니 노년의 행복은 이보다 더 좋을 수 없지 않은가? 집을 행복의 원천이라고 하는데 우리집이 웃음소리가 창밖을 넘는 집인지 살펴볼 일이다.


keyword
매거진의 이전글길택吉宅은 사람을 불러들이는 집