brunch

일인 세대의 Home-Sweet Home, 원룸 투룸

세상에 하나밖에 없는 다가구주택 짓는 이야기 5

by 김정관

오피스텔이라는 용도에 들어있는 집은 참 애매한 주거 공간이다. 소위 원룸으로 부르는 소형 공동주택인데 그야말로 방도 집도 아닌 주택이다. 오피스텔은 건축법 상 용도는 사무실인 offise + hotel의 합성어인 officetel로 잠을 잘 수 있도록 방을 둘 수 있다. 그런데 잠을 잘 수 있도록 허용된 용도인데 주택으로 전용해서 쓰면서 주택이 되어 버렸다.

주상복합으로 부르는 공동주택과 상업시설이 복합된 건물은 100% 공동주택 평면으로 짓는 경우가 대부분이다. 오피스텔이 이젠 아파트와 다르지 않은 평면을 가졌는데 용도만 다르게 분류될 뿐이다. 오피스텔과 함께 도시형 생활주택이 등장하면서 일인 세대를 위한 소형 공동주택이 봇물 터지듯 공급되게 되었다.


원룸, 투룸 - 일인 세대를 위한 공동주택


소형 공동주택에서 세대 구성이 방 하나면 원룸, 방이 따로 독립되어 있으면 투룸이다. 원룸은 방 하나에 침대와 주방, 욕실로 이루어지고 투룸은 방이 따로 있고 리빙키친으로 구성된다. 일인 세대가 급속도로 늘어나면서 오피스텔에 원룸, 투룸으로 공급되던 유사 소형 공동주택이 도시형 생활주택으로 법적으로 양성화되었다.


원룸, 투룸은 주로 중복도로 공급되다 보니 잠만 자는 숙소 정도로 거주 성능은 많이 떨어진다. 좋은 집으로 지어지는 게 아니라 좋은 사업성에 맞춰 공급되는 셈이다. 세대에 한 면만 외기에 면하게 되고 인접대지에 접한 세대는 채광마저 제대로 되지 않는다.


처음 계약해서 설계가 진행되었던 원룸, 투룸, 스리룸의 평면은 집이라는 주거 성능으로 보면 Home, Swwet Home은 아니건 확실하다


혼자 사는 사람들을 위한 공동주택이 집이 아니고 방 하나만 있으면 그만이라는 셈이다. 그래서 원룸이나 투룸에 살면 집이라는 거주성은 아예 포기해야 할 지경이다. 집은 더 이상 갈 곳이 없는 곳이라는 정의가 무색하다. 투룸도 방이 따로 있을 뿐이지 원룸과 다를 바 없다.

원룸과 투룸이 임시 주거가 아니라 일인 세대로 혼자 사는 사람에게는 집이다. 혼자 사는 사람이라고 해도 일상에서 누려야 하는 주거 성능은 보장받을 수 있어야 한다. 경제적 여건이 어려운 사람들이라고 하더라도 좀 더 나은 일상을 누릴 수 있도록 좋은 집으로 공급되었으면 좋겠다.

원룸이나 투룸도 '더 이상 갈 곳이 없는 곳'인 집으로


방과 집의 차이를 어떻게 구분할 수 있을까? 쓰임새에서 방은 머무는 곳이고 집은 생활하는 곳이다. 방에 주방과 욕실이 부설되어 있다고 해서 집에서 누릴 수 있는 일상이 보장되지 않는다.

방과 집의 차이는 머무는 시간이 다르다고 하면 어떨까 싶다. 집은 밖에서 할 일이 끝나면 돌아오는 곳이고 방은 머물러야 할 목적-잠자는 일이 마치면 떠나게 된다. 그래서 원룸이나 투룸은 주로 잠자는 시간에 들어와서 아침이면 나간다.

필자 설계 상가주택 이안정의 다가구주택 공용공간-임대 주택에 산다고 해도 이 분위기라면 내 집에 대한 자부심을 가지지 않을까 싶다
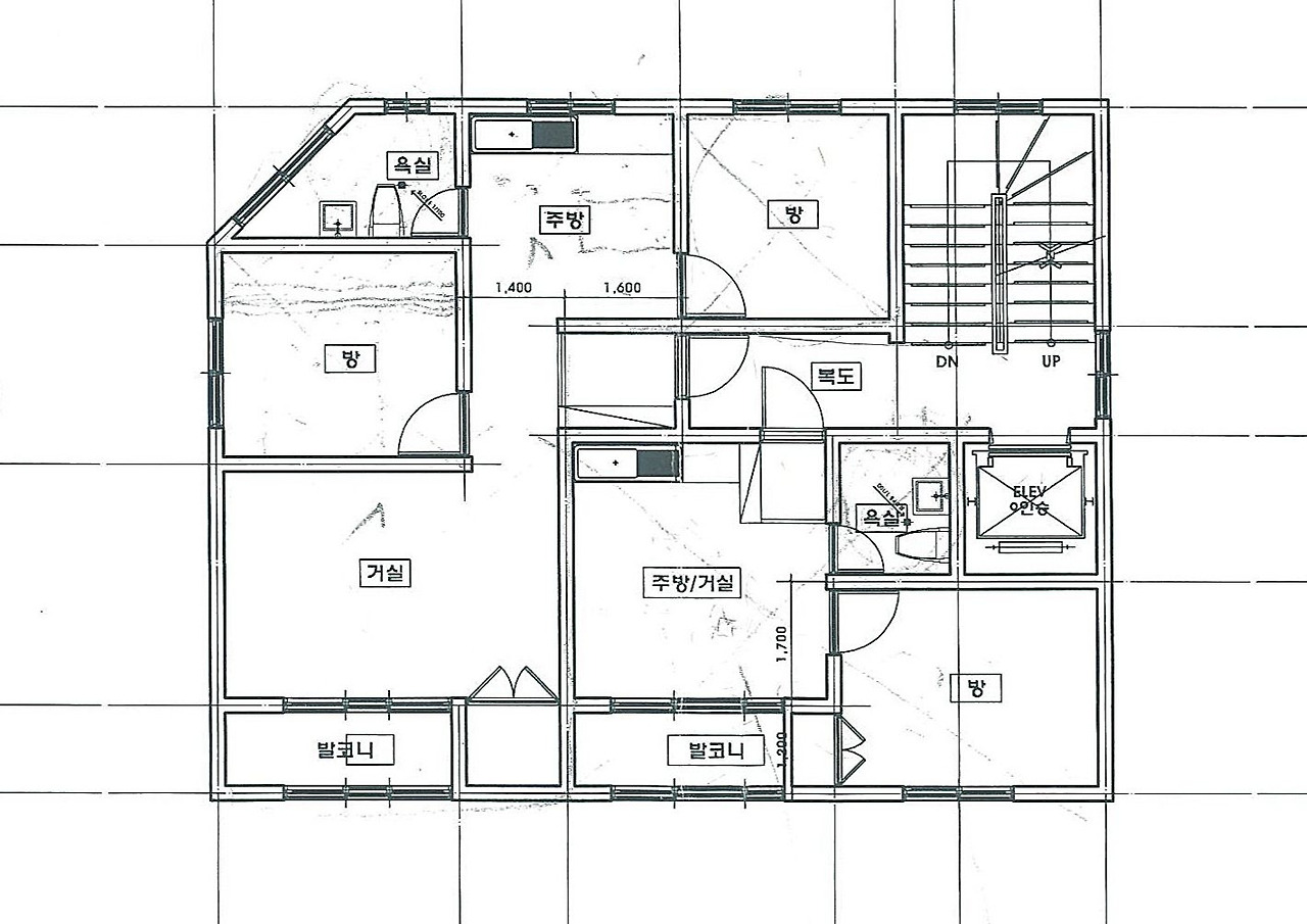
필자 설계 이안정 다가구주택 평면도, 투룸 세대도 부족함 없는 집의 쓰임새가 보인다

일인 세대, 혼자 사는 사람도 방이 아닌 집에서 지내는 일상의 여유를 누리고 싶은 건 당연한 일이다. 소형 주택이라고 해도 집이 가져야 할 주거 성능이 보장되어야만 돌아와 쉴 수 있다. 일이 마치는 대로 집으로 돌아가야 하는데 잠을 자기 위해 숙소로 가야 하는 건 불행하다.


다우가 지을 다가구 주택의 원룸과 투룸은 방이 아니라 집이 되어야 한다. 집의 크기만 작을 뿐 그 집에 사는 사람에게는 Home-Sweet Home으로 설계될 것이다. 세상에 우리집보다 더 좋은 집을 부러워하지 않아도 되는 그런 집 말이다.

원명재의 원룸과 투룸-Home-Sweet Home

원명재의 일층에 원룸, 이층에는 투룸과 스리룸이 들어간다. 원룸과 투룸은 일인 세대가 사는 걸로 전제하고 스리룸은 방이 두 개가 들어가므로 가족 구성원이 생활할 수 있는 집으로 보았다. 일인 세대가 내 집으로 부족함이 없다며 살 수 있는 평면 설계가 완성되었다.


원룸이지만 없는 게 없는 집이다. 남향 일층이라서 데크까지 갖춘 집이다. 더블베드와 책상, 식탁과 수납장까지 갖추었다. 일반 아파트에 있는 욕실과 다용도실로 쓸 수 있는 외부공간도 있다. 내 집 어떠냐며 손님도 두어 명 데리고 와도 함께 시간을 보낼 공간 여유가 있다.


이층에 있는 투룸은 침실 영역과 주방 영역이 분리되어 있다. 거실 공간까지 따로 둘 여유는 없지만 침실 공간이 넉넉해서 가구 배치만 고민하면 소파도 둘 수 있겠다. 아이가 생길 때까지 신혼부부가 살아도 될 만하니 내 집과 우리 집이 겹치는 분위기이다.

원명재의 원룸과 투룸은 일인 세대로 사는 사람에게는 더없이 좋은 집이라 자신할만하다. 건축주인 다우에게 수익성을 높이는 집이 되어야 하지만 그보다 이 집에 사는 사람이 행복할 수 있어야 한다. 집을 설계하는 건축사는 도면을 그리는 게 아니라 그 집에 사는 사람의 행복을 그리는 일을 해야 하지 않겠는가?



원, 투, 스리 룸이라는 소형주택이 다 들어 있는 원명재에 원, 투 룸의 작업이 만족하게 마무리되었다. 원룸이나 투룸 세대가 모두 신혼부부가 살아도 좋을 만큼 방이 아닌 집이다. 아무리 큰 아파트라도 '더 이상 갈 곳이 없는 곳'이라는 집이 아니면 무슨 소용일까?




설계 상담 : 도반건축사사무소 (T 051-626-6261)

keyword