brunch

설계자를 바꾼 건 신의 한 수?

세상에 하나밖에 없는 다가구주택 짓는 이야기 4

by 김정관

다가구주택은 “여러 가구가 살 수 있도록 건축된 주택으로서 각 구획마다 방, 부엌, 출입구, 화장실이 갖춰져, 한 가구씩 독립하여 생활할 수 있으나 각 구획을 분리하여 소유하거나 매매하기가 불가능한 주택”으로 정의하고 있다. 그러나 통상의 다가구주택은 건축법 시행령(제3조의 4. 별표 1)에 의거하여, 주택으로 쓰는 층수가 3개 층 이하로서 지하 주차장을 제외한 1개 동의 연면적이 660제곱미터 이하이고, 19세대 이하가 거주할 수 있는 주택을 말한다. 다만, 1층 바닥면적의 2분의 1 이상을 필로티 구조로 하여 주차장으로 사용하고 나머지 부분을 주택 외의 용도로 쓰는 경우에는 해당 층을 주택의 층수에서 제외한다. -한국민족문화대백과사전


다가구주택은 건축법의 용도는 단독주택이다. 다세대주택은 공동주택이므로 세대 별로 구분 등기가 되어야 하며 세금도 세대 별로 부과된다. 임대 소득을 얻기 위해서 여러 세대를 소유한다면 세금 면에서 다가구주택이 유리하다고 볼 수 있다. 다우는 이런 취지에서 다세대주택이 아닌 다가구주택으로 용도를 선택했다고 볼 수 있겠다.


임대 세대는 최고의 수익, 거주 세대는 최고의 행복


이미 진행되고 있었던 설계를 파기하고 다시 나와 계약한 다우의 결단은 결코 쉬운 일이 아니다. 계약금으로 지불된 액수가 얼마였는지 묻지 않았지만 적은 돈이 아니었을 것이다. 그렇지만 건축주의 의견을 받아들이지 않고 건축사가 일방적으로 진행하는 건 있을 수 없는 일이다.


기존 설계의 배치 및 일층 평면도
이층 평면도
삼, 사층 평면도


다우의 자문 차원에서는 삼층만 지적을 했었지만 사실은 각 층 평면이 다 온전하게 보이지 않았다. 일층 원룸은 한 사람이 거주한다고 해도 불편한 생활을 할 수밖에 없는 평면이다. 이층은 투룸과 스리룸이지만 개별 공간이 제대로 기능을 수행할 수 없어서 계약 기간이 만료되면 옮겨갈 수밖에 없을 것이다.


삼사층은 아파트 평면으로 같은 안으로 되어 있어 지적했던 내용은 필히 수정이 되었어야 했다. 아마도 삼층은 전세로 공사비에 보태야 할 입장으로 보인다. 그러니 신축 아파트 평면보다 좋지 않으면 전세금을 제대로 받을 수 없지 않겠는가? 원룸, 투룸, 스리룸, 아파트로 모든 형식의 임대 주택을 최고의 수익이 나오도록 설계를 해야 한다.


다우가 살아야 할 사 층은 어떻게 설계해야 할까? 사무소 운영이라는 입장에서는 삼사층을 같은 평면으로 작업하면 설계 작업이 수월해진다. 설계 원가는 시간을 줄이는 그만큼 적게 들어가기 때문이다. 그렇지만 나를 믿고 앞서했던 계약까지 파기했던 다우를 생각하면 단독주택 못지않은 집이 되어야 한다는 목표를 성취해야 했다.


원룸, 투룸, 스리룸이라는 도시형 주택


흔히 원룸이라고 부르는 방 하나로 이루어진 소형 주택을 집이라 할 수 있을까? 대부분의 소형주택은 말 그대로 집이 아니라 방이라 하는 게 맞을지도 모른다. 집과 방-룸은 어떤 차이가 있을까?


집은 손님을 들여도 괜찮은 데 방은 그럴 수 없는 게 다르다고 본다. 아파트가 그렇다. 집이라면 식구 모두가 우리집이라 여길 수 있고 손님이 와도 편히 함께 시간을 보낼 수 있어야 한다. 손님을 들일 수 없으면 집의 運氣운기가 원활하지 못해 답답해진다.


설계가 진행되어 안으로 확정된 일층 원룸 평면도, 일인 가구로 이보다 더 큰 집이 필요할까 싶다. 손님이 찾아와도 될만큼 안락한 공간이 되었다


도시형 소형주택이라도 우리집이 될 수 있도록 하면 임대 수익은 안정적으로 유지될 수 있을 것이다. 다우의 다가구주택은 우리집이 될 수 있도록 설계가 이루어질 것이다. 원룸에 손님이 와서 함께 시간을 보낼 수 있다면 다른 곳으로 옮겨갈 수 없지 않겠는가?


원룸에서 살아도 만족할 수 있다면 투룸과 스리룸은 얼마나 더 좋은 집이 될까? 투룸은 신혼부부가 살아도 좋고, 스리룸은 소형 아파트가 부럽지 않을 만큼... 설계에 들어가지 않고 너무 서론을 장황하게 푸는 게 아닌지 모르겠다.


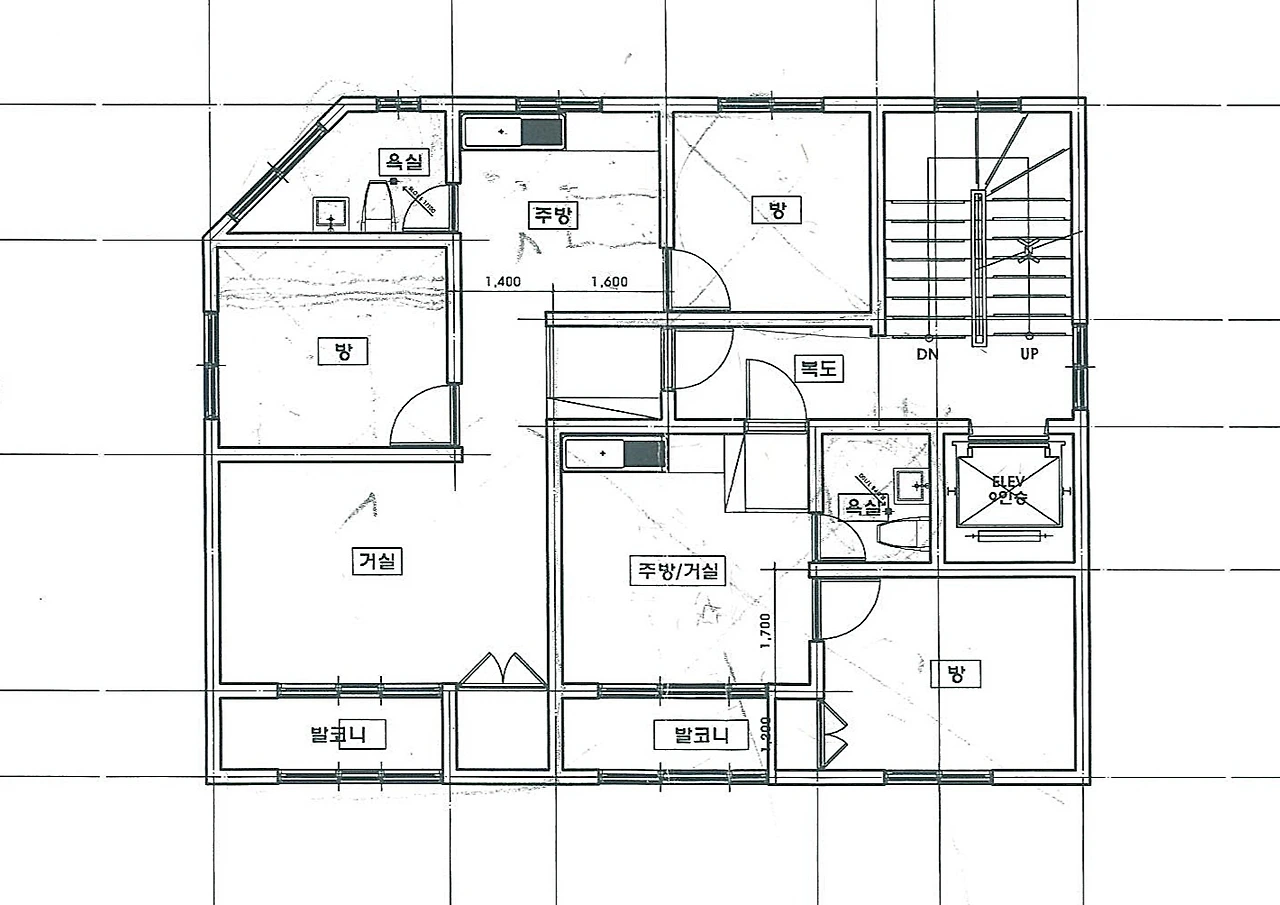
삼층은 아파트, 사 층은 단독주택


삼층은 한 층을 모두 써서 아파트 한 세대만큼 면적이 확보된다. 대지 여건이 정남향이며 지대가 높아서 시내가 한눈에 내려다 보인다. 이 정도 조건이라면 평면 구성만 좋다면 좋은 가격으로 전세 입주자를 들이는 건 어렵지 않을 것이다.



사층에는 다우가 살 집이 들어간다. 다가구 주택을 지을 터에 있던 단독주택에서 살았으니 아파트는 편치 않을 것이라 생각했다. 비록 아래층의 사각형 틀 안이라는 한정된 영역이지만 단독주택 분위기로 집을 설계할 것이다. 다가구주택을 지어서 안정된 수익을 얻어서 살려는 목적은 행복하게 사는 게 아닌가?


집은 창작이 아니라 창조라는 마음으로 설계 작업에 임하고 있다. 창작은 작가의 개성을 드러내는 일이지만 창조는 사용자가 부족하거나 넘치지 않게 쓸 수 있도록 결과를 만들어내는 일이다. 창작의 결과물은 작품이지만 창조는 전지적 관점의 결과물이 나올 뿐이다.


20170304_142115.jpg


다우는 식탁을 놓을 자리도 없고, 필요 없이 큰 방에 샤워도 못할 화장실이 있는 이상한 아파트 평면에서 살 뻔했었다. 온갖 꽃과 나무를 기르며 살았었는데 발코니도 없는 집에서 살아야 된다는 사실을 미리 알아서 얼마나 다행인지 모른다고 했다. 과연 다우는 내가 설계를 한 집에서 얼마나 만족할 수 있을까?




앞으로 설계 작업이 어떻게 진행되어야 하는지 지침을 글로 옮겨 보았다. 임대 주택은 임차인이 다른 곳으로 옮겨갈 수 없는 만족한 주거 생활이 보장되어야 한다. 이보다 더 안락한 집, 원룸, 투룸이라도 방이 아니라 집으로 설계가 될 것이다. 맨 위층에 들어가는 다우의 집은 먼저 살았던 마당 있는 집보다 더 좋은 집에서 살게 될 것이다.




설계 상담 : 도반건축사사무소 (T 051-626-6261)




keyword
매거진의 이전글진행 중인 설계 계약을 해지했습니다