brunch

아파트에 살면서 잃어버린 손님이 자고 갈 방을 들인 집

여성경제신문 '더봄' 연재 - '김정관의 단독주택 인문학' 32

by 김정관

일인가구가 늘어나는 추세가 점점 가속화되고 있다. 전체 가구 수에서 일인가구는 2030년에는 35%를 넘어서고 2050년이 되면 40%에 이를 것이라고 한다. 혼자 사는 사람들이 많아지는 건 우리네 삶이 행복에서 멀어지는 정황이 아닐까 싶다. 개인적인 인간관계가 옅어지고 있는 건 어쩔 수 없지만 가족과 살지 못하고 혼자 지내야 하는 건 익숙해지기 어려운 일이다.


부부끼리 살아도 외로운 건 마찬가지가 아닐까 싶다. 아이들이 대학생이 되어 독립해 나가면 부부는 각방을 쓰는 게 요즘의 추세가 되고 있다. 남편과 아내가 방을 따로 쓰게 되면 아무래도 대화가 줄고 각자의 시간을 가지게 된다. 한집에 살면서도 밥도 함께 먹지 않으면 일인가구에서 사는 사람과 다를 게 없지 않은가?


단독주택을 지어서 살아야 하는 이유는 외로움 때문이지


집을 짓는다는 게 누구나 할 수 있는 일은 아닐 것이다. 그렇지만 단독주택을 짓고 살려는 사람들이 적지 않은지 전문시공업체가 많이 생기는 것 같다. 하지만 단독주택을 지어 살다가 꿈을 이룬 게 아니라 생각하지 못했던 힘든 일상을 견디지 못해 다시 아파트로 돌아가는 사람들이 많다고 한다. 그 이유 중에 가장 큰 게 외로움이라고 했다. 시공업체와 상담하면서 외롭지 않게 살 수 있는 집을 지을 수 있는지도 알아보았을까?


수백 세대가 모여 사는 아파트에서도 사는 게 외롭고, 단독주택에 살아도 외로운 데 왜 다시 돌아가는 것일까? 아파트에 살면서 겪는 외로움은 어쩌면 할 일이 없다는 것일 터이다. 그렇지만 단독주택에서는 사람이 그리워서 아파트로 돌아오게 될지도 모른다. 사실 아파트와 단독주택을 비교해서 어느 쪽에서 사는 게 낫다고 얘기하는 건 무의미하다.


밤이 이슥한 시간인데도 불이 켜지지 않은 세대가 더 많은 아파트, 가족들이 아무도 들어오지 않고 밖으로 나도는 이유는 우멋일까?


사람과 사람 사이가 멀어지고 사람의 관계가 옅어진 지금은 혼자 살아도 좋고, 부부가 살아도 좋은 일상을 만들어야 할 것이다. 단독주택은 그 집에 사는 사람이나 사람들의 일상을 외롭지 않도록 도와주는 데 가치가 있다. 사람이 집을 짓지만 나중에는 그 집이 사람의 삶을 만들어간다는 처칠의 말에 귀를 기울여 보아야 한다. 나는 집에서 무엇을 하며 내가 보내는 일상이 어제와 다르고 다음 날에 다른 삶이 있는가 생각해 보자.


아파트는 나와 가족들의 행복한 일상을 만들어 줄 아무런 장치가 없다. 상품으로 나온 집을 샀으니 아파트가 우리네 삶을 행복하게 만들어줄 아무런 기대를 할 수 없는 건 당연하지 않은가? 혼자 살아도 외롭고 부부가 한 집에 살아도 외로운 건 당연한 일이니 단독주택을 지어 살아보려고 하면 어떤 집으로 지어야 할 것이다. 외롭지 않게 살 수 있는 집은 어떻게 지을 수 있을까?


일흔에 집을 지어 일일시호일(日日是好日)로 지낼 석경수헌


손주와 할아버지 할머니가 한 집에 산다는 건 꿈에도 생각할 수 없는 세상에 살고 있다. 부모와 자식으로 이대(二代)가 사는 것도 아이들이 대학에 들어갈 때까지이다. 거의 반평생을 부부가 함께 살다가 한쪽이 먼저 세상을 떠나면 혼자 살아야 한다. 부부가 행복한 노후를 보내기 위해 일흔의 나이에 단독주택을 지으려고 설계를 의뢰했다. 일흔은 집 짓기에 딱 좋은 나이라면서 찾아온 건축주는 주로 집에서 지내고 있으니 이번에 단독주택을 지어서 보낼 소중한 일상에 기대에 부풀어 있다고 했다.


건축주는 집은 스무 평만 지으면 된다 하시는데 집터는 300평이 넘는 큰 땅을 준비했다. 스무 평이면 된다는 건축주께 단독주택은 부부만 사는 집이 되어서는 안 된다고 했다. 손님이 와서 하룻밤을 지낼 수 있어야 외롭지 않게 살 수 한다는 설계자의 제안에 스무 평에 열 평을 더해 서른 평 집이 되었다. 집이 서른 평이나 스무 평이나 어떻게 지어도 300평이 넘는 집터에 남아 있는 땅이 너무 넓지 않은가?


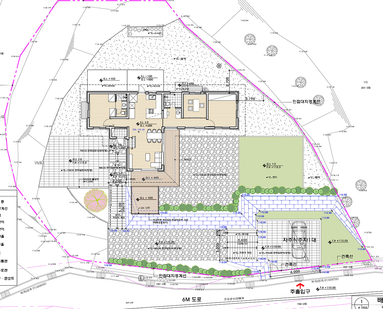
필자 설계 경남 양산 소재 단독주택 석경수헌 배치 및 평면도, 주인 영역이 나누어진 손님 영역은 손님이 하룻밤 편히 자고 갈 수 있도록 배려되어 있다.


석경수헌 야경, 손님을 배웅하며 손을 흔드는 집주인, 다시 찾아오라는 정을 듬뿍 느끼게 한다
거실과 안채에 면한 안마당, 300 평이 넘는 집터지만 잔디는 관리에 부담 없게 깔았다. 손님 마당과 뒤뜰은 풀이 자라지 않게 포장하고 쇄석을 깔았다.
손님 방과 손님 마당, 주인 영역과 구분되어 하룻밤 편히 묵어갈 수 있도록 구분되어 다시 찾아올 마음이 생기도록 의도했다.


한옥을 잘 살피면 건물만 집이 아니라 담장이 둘러진 마당까지 집으로 쓰고 있다는 걸 알 수 있다. 300평은 너무 넓은 땅이지만 건물을 집터의 가운데 앉히고 내부 공간과 외부 공간을 연계하면 일상에서 할 수 있는 일이 보인다. 석경수헌이라 당호를 붙인 이 집은 매일 할 일이 생기게 될 터이니 외롭다거나 심심할 틈이 없게 설계가 이루어졌다.


마당은 손님방-손님마당과 거실-안마당, 주방 서재-뒤뜰과 연계되어 역할이 부여된 외부 공간이 집 안의 각 실과 관계 맺기가 이루어져 있다. 거실 앞 데크에 덧붙인 ‘지붕 없는 정자’는 테이블을 놓고 앉아서 멀리 경치를 관망하는 석경수헌의 으뜸자리이다. 석경수헌에서 하룻밤을 묵는 손님은 깊은 밤에 툇마루로 나와 손님 마당을 거닐며 노송에 걸친 달과 대밭을 스치는 바람 소리는 오래 기억하게 될 것이다.


작은 땅에 집을 지은 지산심한에는 다락에 둔 손님방


경남 양산 통도사 인근에는 오래된 마을이 많이 있어 건축주는 오랫동안 집 지을 땅을 구했다. 후보지가 나오면 건축사와 함께 답사를 하면서 땅을 찾았는데 마침내 마땅한 땅을 정할 수 있었다. 대지면적이 150평이라 30평으로 지을 땅으로는 맞춤이었는데 옥에 티는 쓰지 못할 부분이 50평 정도가 있었다. 집터가 가진 조건에서 불리한 부분은 설계자가 잘 살피면 집의 특징으로 삼을 수 있다.


작은 땅에 작은 집을 지으면 설계자가 할 일이 적겠다고 생각할 수 있겠지만 반대로 빈틈없는 설계를 해야 하니 더 어렵다. 더구나 쓸모없는 50여 평의 땅을 집에 어울리도록 쓰임새를 찾아내는 게 쉬운 일이 아니었다. 집터는 3면이 도로에 면해 있으며 대문을 설치할 수 있는 자리는 집의 배면이었다. 쓸모없어 보이는 땅은 경사져 있고 집의 정면 쪽으로 자리하고 있다.


필자 설계 경남 양산 소재 단독주택 지산심한-넓지 않은 대지에 내부 공간과 외부 공간을 연계하여 집에서 넉넉한 일상을 보낼 수 있도록 설계했다.
대지 전면에 경사진 부분을 계단식 정원을 만들어 집 안으로 들어오는 과정적 공간의 깊이감이 지산심한의 백미가 되게 했다.
다락에 마련된 손님 방은 지산심한에 하룻밤 묵는 특별한 추억이 될 것이다.
천정고가 높은 거실 영역은 풍부한 공간감으로 단독주택에서만 누릴 수 있는 우리집의 소속감과 집부심을 가지게 해 줄 것이다.

작은 땅에 쓸모없어 보이는 경사지가 집의 특성을 만들어내는 묘책이 나왔다. 경사지를 계단식 정원으로 삼아 가운데로 길을 내서 집 안으로 들어오는 안이었다. 작은 땅인데 과정적 공간을 통해 집 안으로 들어오게 되니 보기 드문 특별한 집이 되었다. 계단식 정원에는 어떤 나무와 초화류를 심느냐에 따라 계절 따라 변화무쌍한 분위기를 만들어낼 것이다.


작은 땅에 짓는 집이라 펼친 평면은 구상할 수 있으니 홑집이 아닌 겹집이 되었다. 홑집은 한옥, 겹집은 아파트를 생각하면 이해가 될 것이다. 심한재는 겹집 평면이지만 아파트와는 완전히 다른 평면을 가지고 있다. 현관과 계단을 가운데 두고 거실영역과 침실영역이 나누어진 채 나눔 개념이 적용되었다. 다락에는 손님방이 있으며 한실 서재까지 갖추어진 나의 단독주택 얼개가 온전히 적용되었다. 세상에 하나밖에 없는 우리집, 전원생활을 누릴 수 있는 지산심한(芝山心閑)를 짓게 되었다.




너무 넓은 땅을 가진 석경수헌(晳涇帥軒), 작은 땅에 쓸모없는 경사지까지 있었던 지산심한(芝山心閑)였지만 서른 평의 집이 여유롭게 지어졌다. 집터가 넓은 석경수헌은 외부 공간의 쓰임새를 내부 공간과 관계 맺기를 조화롭게 해내며 노후의 일상이 외로움과 지루함 없이 지낼 수 있게 되었다. 작은 땅에 지은 집이지만 계단식 정원 사이로 난 과정적 공간 개념의 길은 심한재가 가지는 특별함이 되었다.


집이란 규모를 따져 크고 작음으로 위세를 드러내는 것으로 일상의 행복을 보장할 수 없다. 아무리 생각해 봐도 행복이란 집 밖에서는 찾기 어렵고, 집이 더 이상 갈 곳이 없어지는 곳이어서 단독주택을 지어 사는 게 아닐까 싶다. 서른 평이라는 규모로 짓는 집인데 석경수헌과 지산심한에는 손님이 자고 갈 방을 꼭 둔 이유는 외롭게 살고 싶지 않기 때문이다. 설계 과정에서 오래 고민해야 하는 건 외관이 빼어난 ‘어떤 집’이 아니라 손주와 손님이 기꺼이 찾아오는 ‘어떻게 살 수 있는 집’이 아닐까?



여성경제신문 '더봄' 연재 - '김정관의 단독주택 인문학' 32

원문 읽기 : https://www.womaneconomy.co.kr/news/articleView.html?idxno=242897

keyword
매거진의 이전글‘우리집에서 누릴 행복’이라는 프로그램을 담은 단독주택