여주 주택 (2018)

5. 상세 모델링

by JSH

여주 주택은 처음엔 철근 콘크리트조로 설계 되었다가 경량 목구조로 변경되어 시공되었다. 집의 규모와 예산, 의뢰인의 의견 등을 종합하여 내린 판단이었다. 설계가 마무리 되어가면서 예상 시공견적이 의뢰인의 예산에 부합하는지를 확인하기 위해 적산(공사비 산출을 위한 공사원가계산)의 과정을 거쳤다. 적산은 일반적으로 설계사무소의 영역이 아니며 대게 규모가 큰 프로젝트의 경우 적산을 전문적으로 하는 회사에 의뢰를 맡기게 되나, 이 프로젝트의 경우 주택이고 우리 회사에서 시공까지 맡아서 할 수 있는 수준이라 적산도 자체적으로 하게 되었다. (우리 회사는 설계부터 시공까지 모두 맡아 건물 전체의 퀄리티를 높은 수준으로 컨트롤 하는 디자인빌드(Design-Build) 설계사무소이다.)


적산을 위해서는 그 설계에 포함된 모든 재료들의 종류와 양, 각 공정의 인건비 등을 정확히 알아야 하는데, 이를 위해서는 체계적인 구조 모델링이 선행되어야 한다. 가장 정확하게 모든 공정의 비용을 알 수 있는 방법이다.




구조 상세 모델링

1.jpg 1. 건물이 들어설 땅의 모양 - 콘크리트 매트 기초
2.jpg 2. 기초 콘크리트 위 목재 기초(이 과정은 실제 시공에서 생략되는데 이유는 추후 설명)
3.jpg 3. 목재 위 18.3T T&G OSB 실내 바닥면 형성 (이 과정은 실제 시공에서 생략되는데 이유는 추후 설명)
4.jpg 4. 1층 벽체 구조
5.jpg 5. 2층 바닥구조
6.jpg 6. 계단 형성
7.jpg 7. 2층 바닥구조 위 18.3T T&G OSB 실내 바닥면 형성
8.jpg 8. 2층 벽체구조
9.jpg 9. 지붕구조
10.jpg 10. 2X2 각재를 이용한 지붕면 통기층 형성(기술적 내용은 추후 설명)
11.jpg 11. 벽 구조 위 11.1T OSB 벽면 형성
12.jpg 12. 지붕 통기층 위 11.1T OSB로 벽면 형성
13.jpg 13. 반대편 이미지




구조 모델링을 매우 상세하게 하는 이유는 아래와 같다.


구조에 들어가는 자재와 인건비에 대한 적산을 정확할 수 있다.

대부분의 재료는 시공면적으로 치환하여 적산된다. 즉, 모델링을 정확하게 하면 특정 재료가 사용되는 면적을 매우 세세하게 알수 있게 되고 그에 따라 적산의 오차가 확연히 줄어들게 된다.

결과적으로는 일종의 이미지 트레이닝으로, 건물을 처음부터 끝까지 한 번 지어봄으로써 2D일 때 차마 예측하지 못했던 일들을 다시 한 번 가늠해보고 미리 상황에 대처할 방법을 생각해보게 된다.

요즘엔 모델링한 것을 스마트폰으로 옮겨높으면 현장에서 폰으로 모델링을 돌려가며 치수까지 볼 수 있기 때문에 사실상 모델링을 정확하게 해놓으면 현장에서 모델링을 보며 그대로 만들면 된다. (세상 참 좋아졌다.)




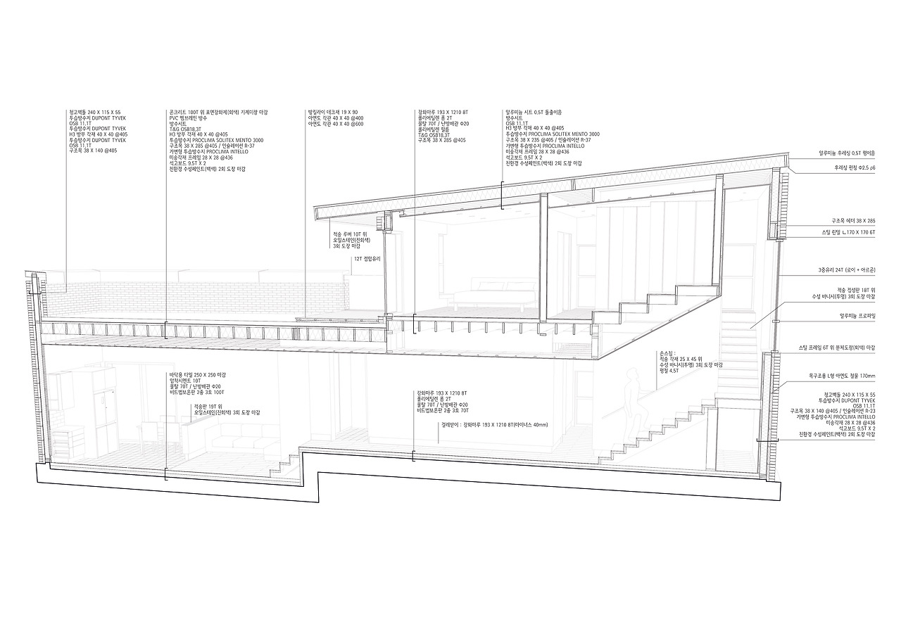
3D 단면도 - 시방내역상세

3D SECTION DETAIL-Model-01.jpg 3D Section Detail


1.jpg 위 이미지를 확대한 내용


이 단계가 본격적으로 시공에 들어가기 전의 최종적 단계라 할 수 있다. 시공과 똑같은 수준의 정밀한 모델링을 통해 재료들의 사용과 실제 공간의 느낌을 가늠해 보는 것이다. 이제 다음글부터는 본격적으로 시공 과정에 들어가 시공에서의 디테일한 내용들을 알아보도록 하자.

keyword