이것만 하면 반을 한 것이다:주차장과 코어계획

상가주택의 코어, 주차장 계획에 대해서

by 글쓰는 건축가
© bernardhermant, 출처 Unsplash


안녕하세요. 글쓰는 건축가 김선동입니다. 오늘부터 상가주택 계획에 대해서 좀 더 디테일하게 알려드릴 수 있는 글을 써보고자 합니다.

예전에 상가주택 계획에서 중요한 점을 5가지 정도 추려서 글을 써보았는데요. 그것만으로는 조금 부족하다고 느껴졌습니다.

건축주 여러분들이 상가주택을 계획하시고 건축가, 건축사와 협의를 하실 때 도움이 될 만한 내용들을 다시 한번 항목별로 정리해보려고 합니다.





먼저 코어와 주차장 계획입니다. 상가주택에서 코어, 주차장 계획은 아무리 강조해도 지나치지 않습니다. 절반 이상이 여기서 결정된다고 해도 좋을 정도인데요. 1층에서 결정된 코어의 위치가 상부층까지 매우 큰 영향을 미치기 때문입니다. 거기다 강화된 주차법규로 인해 상가주택(다가구, 다세대)에서 확보해야 하는 주차대수는 꽤 많습니다. 거의 5~6대가 기본이라고 할 수 있는데요. 이렇게 주차장을 넣다보면 1층에 남은 면적이 거의 없기 때문에 주차장 계획도 굉장히 중요합니다. 오늘 글에서는 몇 가지 사례를 통해 이 두 가지를 중점적으로 살펴보려고 합니다.


사실 상가주택의 설계에는 굉장히 많은 변수가 있습니다. 이 글에서는 그 조건들을 다소 단순화해서 약 15 x 17 미터 : 255제곱미터, 약 77평 대지에 계획한다고 가정하고 말씀드리도록 하겠습니다. 일반적인 택지 지구의 한 필지의 크기가 대략 이 정도 되기 때문입니다. 여기에 건폐율 60%, 용적률 180% 정도가 가장 일반적입니다. 필지가 255제곱미터라면 건폐율 60% - 건축면적 153제곱미터 ( 약46평) / 용적률 180% - 지상층 연면적 459제곱미터 (약 139 평) 정도 됩니다.


1종 일반주거지역으로 4개층을 지을 수 있어 가장 일반적인 상가주택(다가구 주택) 형식을 강요하는 경우가 많습니다. 세대 역시 5세대로 제한하는 법규를 자주 보았고요. 예전 글에서 설명드렸듯이 다가구 주택은 주택으로 3개층, 다세대 주택은 주택으로 4개층을 짓는 것이 가능합니다. 1층은 소규모 근린생활시설 + 필로티 주차장 / 2~3층 임대세대 원룸 혹은 투룸 (4세대) . / 4층~다락 주인세대 (1세대) 이렇게 구성하는 것이 일반적인 공식입니다. 이런 구성은 역시 지구단위계획, 법규가 강제하는 측면이 많습니다.


먼저 코어 구성에 대해서, 다음 챕터에서는 주차 구성에 대해서 설명드리고자 합니다.




코어(CORE) 계획


g3520625ddb689b5b3933df273702d5d8b9c625b7a0a06da0922a3049a45b1b84d8b3c726014.jpg?type=w966

© nakataza02, 출처 Pixabay



코어(CORE)는 계단, 엘리베이터, ps(파이프 등 설비가 모여있는 공간) 등 핵심적인 기능이 모여있는 부분을 지칭하는 것입니다. 상가주택 규모의 건물에서는 주로 엘리베이터, 계단 두 가지 시설을 통칭해서 코어라고 부릅니다. 여기에 남는 공간이 있다면 PS를 넣는 정도입니다. 이 PS에는 화장실, 싱크대, 보일러실 등에서 발생하는 배관이나 에어컨 설비관 등이 들어갑니다. 이것들을 지표면, 기초 부근까지 옮기는 역할을 하는 것입니다. 만약 이 PS를 낼 자리가 정말 없다면 콘크리트 벽체 등에 묻기도 하는데요. 당연히 유지관리 면에서 그다지 좋은 방법은 아닙니다.


최근 엘리베이터를 설치하는 상가주택이 늘고 있습니다. 엘리베이터 유무에 따라 거주자들의 편의성에서 큰 차이가 나고, 그로 인한 임대 가능성도 달라지기 때문인데요. 엘리베이터도 없는 건물에서 4~5층까지 짐을 나르는 것이 보통 일이 아니죠. 그래서 최근에 지어지는 거의 대부분의 상가주택에 엘리베이터가 설치되는 추세입니다.


그런데 이 엘리베이터가 일정 사이즈를 넘어가면 '장애인 엘리베이터'로 인정되어 건축면적과 연면적에서 둘 다 제외됩니다. 건축면적에서 제외되면 전체 건물 크기가 커지는 격인 데다가, 매 층 바닥면적에서 면적이 제외되면 이걸 다 합쳤을 때 결코 무시할 수 없는 수준이 됩니다. 이런 큰 이점 덕분에 많은 건축주분들이 장애인 엘리베이터를 설치하고자 하십니다. 하지만 이 장애인 엘리베이터는 외부에서 1층 엘리베이터를 탈 때까지 복도폭 (1.2미터 이상 ) 경사 기울기 제한 (1/18 이하) 턱 높이 (2센티 이하 ) 문 전후 점자 블럭 설치 등 관련 규정을 모두 지켜야 합니다. 매 층 엘리베이터를 내린 후에는 장애인 규정을 지키지 않아도 됩니다만, 이러한 조건을 지키는 것이 마냥 되는 일이 아니니 계획을 진행하실 때 잘 따져보셔야 합니다.


우선 엘리베이터를 설치하고, 이 엘리베이터는 장애인 기준을 만족한다고 가정하겠습니다. 장애인 엘리베이터는 엘리베이터 내부 공간의 크기가 1600 X 1350 MM 이상이어야 하는 등 복잡한 규정이 있습니다만 이것은 엘리베이터 업체에서 제조할 때 신경써야 하는 것이고, 건축 계획에서 중요한 것은 엘리베이터를 둘러싸는 콘크리트 골조 벽의 크기입니다. 제가 주로 쓰는 티센크루프 엘리베이터를 기준으로, 골조벽 내경은 가로 2.2미터 X 세로 1.7 미터 이상이어야 합니다. 골조 벽이 주로 0.2미터 정도 되기 때문에 골조 중심선 기준으로는 2.4미터 X 1.9 미터가 되는 것입니다.


엘리베이터를 정했으니 이제 계단에 대해 생각해보겠습니다. 상가주택의 한 층 층고는 대략 3미터 정도 됩니다. 사실 이것보다 조금은 낮아져야 하는데, 일조사선이 9미터에서 꺾이는데 이 안에 3개층을 밀어넣어야 하기 때문이죠(올해 7월 정도에 10미터로 완화될 예정입니다). 그럼 현실적으로 2.9미터 정도로 산정해보겠습니다. 계단 1단의 높이는 약 180MM 정도 되어야 합니다. 2900 / 180= 16.11 이니 적어도 16개 정도의 계단은 있어야 한다는 뜻입니다. 계단 단높이는 장애인 시설이 아닌 이상 사실 법에서 규정은 없습니다(다세대, 다가구는 10세대 미만이면 장애인 시설 제외). 그렇다고 마냥 높아질 순 없는 일이죠. 190MM만 넘어가도 이용할 때 불편한 것이 느껴지는 수준이기 때문에 적어도 180MM 안팎을 유지할 필요가 있습니다. 그럼 계단 단수는 16개는 필요하다는 결론입니다.


계단 법규에 의해 계단의 폭, 난간 등을 제외한 순수 내경이 1.2미터 이상 나와야 합니다. 이 계단이 오르락 내리락하여 두개 붙는다고 하면 순수 내경이 2.4미터이고, 기타 난간, 최소한의 미장마감, 콘크리트 골조 벽 등이 붙는다고 가정하면 골조 중심선을 기준으로 최소한 2.8미터가 필요합니다. 그리고 3미터 이하일 경우 계단 참이 필요하진 않지만, 사용상 편의를 위해 계단참 1개를 놓는다고 가정하겠습니다. 이렇게 구성된 계단에 아까 산정한 엘리베이터를 붙이면 최소한 아래 그림과 같은 코어 구성이 필요하다는 결ㅇ 론입니다. 이 때 장애인 엘리베이터 전면에 1.4미터 X 1.4 미터의 휠체어 활동공간이 필요하다는 것을 고려해야 합니다. 제가 볼 때 이것이 상가주택 평면을 구성할 때 가장 콤팩트하고 기본적이라고 할 만한 코어 평면 구성입니다. 약 2.8미터 X 6.6 미터의 크기입니다. 이것을 A타입 코어라고 하겠습니다.



TYPE A 의 코어 구성
















아래는 이 코어 형식이 적용된 디자인밴드 요앞의 구름집 사례입니다.

https://magazine.brique.co/project/%EC%9E%A0%EC%9B%90%EB%8F%99-%EB%8B%A4%EC%84%B8%EB%8C%80%EC%A3%BC%ED%83%9D-%EA%B5%AC%EB%A6%84%EC%A7%91-jamwon-cloud/
















이것이 몇 개의 변형이 가능합니다. 위의 구성이 면적의 손해가 가장 적긴 하지만, 각 세대로 들어가는 문이 엘리베이터 홀의 작은 홀에서 모두 접근 가능해야 한다는 단점이 있죠. 그러면 각 층 평면 구성이 무척 힘들어지는 단점이 있습니다. 코어는 가장 콤팩트하게 풀었는데, 각 층의 복도가 길게 나서 효율이 떨어질 수 있죠. 그래서 계단을 일자로 한번에 올라가도록 길게 빼고, 계단 측면에 복도를 붙이는 형식의 코어 구성도 자주 사용됩니다. 아래와 같은 구성입니다. 약 2.8미터 X 8.5 미터의 크기입니다. 이것을 B타입 코어라고 하겠습니다.




TYPE B 의 코어 구성
























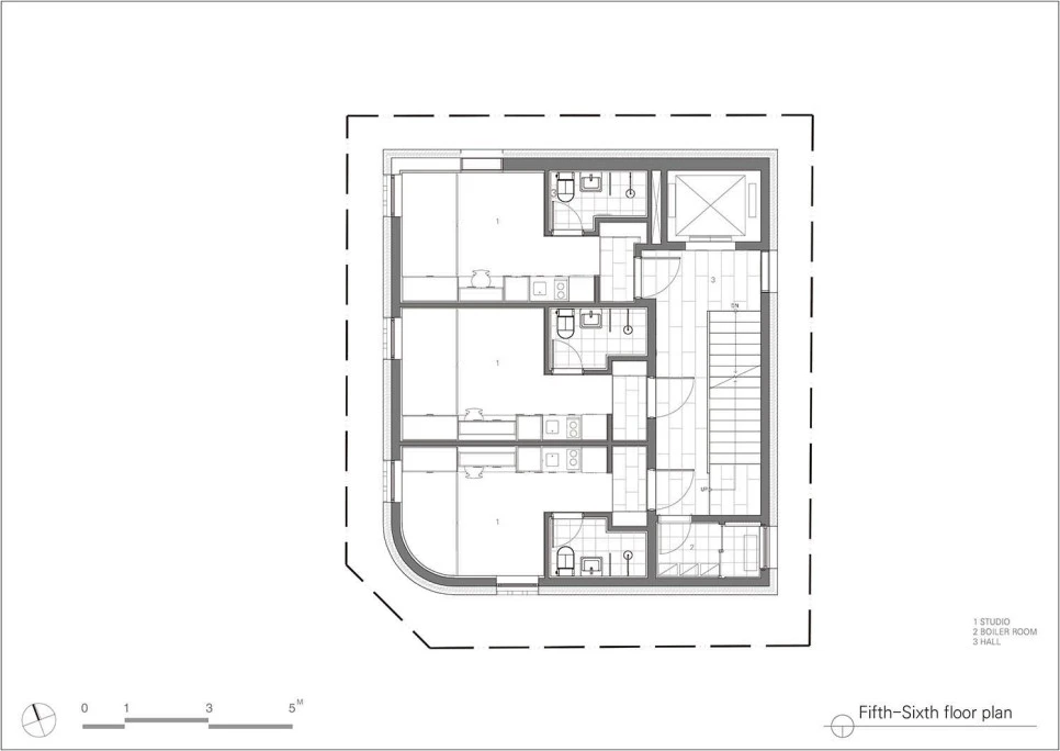
아래는 이런 코어 형식이 적용된 소수건축의 일삶 빌딩 사례입니다.

https://magazine.brique.co/project/3-1%EC%9D%BC%EC%82%B6-%EB%B9%8C%EB%94%A9-3-1-building/


%EC%9D%BC%EC%82%B6%EB%B9%8C%EB%94%A9_%EB%8F%84%EB%A9%B45,6%EC%B8%B5.jpg?type=w966


마지막으로 아래와 같이 코어를 계단으로 감싸거나, 계단 측면에 엘리베이터를 붙이는 아래와 같은 구성도 가끔 쓰입니다. 하지만 코어에 부속된 복도나 계단 참 등에 면적이 많이 할당되어 비효율적으로 생각될 수 있죠. 그래서 아주 자주 쓰이는 구성은 아닙니다. 하지만 평면 구성에 따라 이런 코어 형식이 쓰일 수 있기 때문에 한번쯤 봐두셔도 좋을 듯 합니다.

































아래는 이런 코어 형식이 적용된 봄 건축연구소의 의왕시 다가구주택 사례입니다.

https://magazine.brique.co/project/%EC%9D%98%EC%99%95-%EB%8B%A4%EA%B0%80%EA%B5%AC%EC%A3%BC%ED%83%9D-%EA%B7%BC%EB%A6%B0%EC%83%9D%ED%99%9C%EC%8B%9C%EC%84%A4/



%EC%9D%98%EC%99%95_%EB%8F%84%EB%A9%B42.jpg?type=w966





코어 및 주차장 배치 계획



이렇게 정해진 코어를 땅에 배치해보도록 하겠습니다. 여러가지 경우를 다 따지면 경우의 수가 너무 많아지니, 일단 가장 많이 쓰이고 효율성이 좋은 코어 타입인 타입 A를 기준으로 생각해보도록 하겠습니다.


아래는 제가 가정한 땅의 입지입니다. 가로 15미터 세로 17 미터의 직사각형 필지가 정북을 향해 똑바로 놓여 있다고 가정하겠습니다. 보통 택지지구의 필지는 이 정도 크기로 나뉘어져 있습니다. 남쪽으로는 10미터의 도로(인도와 차로의 구분이 없는)가 있고 나머지 방향으로는 인접대지를 접하고 있고, 주차는 6대가 필요한 것으로 가정하겠습니다. 이럴 경우 일반적으로 직각주차로 4대, 2대를 설치하고 그 사이를 2.5미터 이상 띄워야 합니다.


사실 향과 도로가 접하는 상황, 주변 건물 및 필지 상황은 경우에 따라 천차만별이고 그에 따라 검토과정도 여러가지 방향으로 나뉩니다. 이 글에서는 그 과정을 간략히 소개해드리기 위해 위의 경우로 단순화시켜 설명드리겠습니다.


코어가 건물 여기 저기 아무데나 위치할 수 있을 것 같지만 사실 갈 수 있는 곳은 한정되어 있습니다. 우선 북쪽으로는 갈 수 없습니다. 일조사선이 날아오기 때문에 이쪽에 코어를 위치시키면 4층에 접근할 수 없게 됩니다. 그러니까 먼저 북쪽 코어는 대안에서 제외합니다. 그리고 가로로 길게 남측에 오는 코어도 곤란합니다. 주차의 접근을 막기 때문에 6대 확보가 불가능해지기 때문입니다. 그리고 같은 조건이라면 동향 코어보다는 서향 코어가 유리합니다. 보통 집들은 서향을 기피합니다. 해가 질 때 서쪽에서 오는 깊은 빛이 생활하기에 좋지 않기 때문입니다. 이런 이유로 동쪽 부분을 주거를 주기 위해 동향 코어도 제외합니다.


1층에 어떤 방식으로든 근생을 놓으려고 하시는 분들이 많습니다. 주로 도로쪽에 위치하도록 해서 접근성을 높이려고 하시는데요. 이 글에서 근생 위치까지 따지다 보면 복잡해지기 때문에 그것 역시 논의에서 제외하도록 하겠습니다.



1. 먼저 첫 번째 대안입니다. 세로형태 코어가 가운데 아래, 센터로 오는 것입니다.
















이 대안이 가장 상식적이고 전형적인 이유는 코어를 중심으로 좌우 대칭의 완전히 동일한 면적, 환경을 만들어줄 수 있기 때문입니다. 물론 서향주거보다는 동향주거가 낫지만, 창은 주로 남쪽과 북쪽 위주로 나기 때문에 그런 차이를 최소화시킬 수 있습니다. 그리고 엘리베이터 전면 공간을 통해 좌우 주거세대에 바로 접근할 수 있기 때문에 별도의 복도 공간을 내줄 필요가 없습니다. 그래서 공간 효율이 좀 더 좋다고 생각할 수 있습니다.











단점으로는 각 주거 세대가 위아래로 길쭉할 모양이 될 수 밖에 없다는 것입니다. 그래서 각 세대의 평면을 구성하기가 힘듭니다. 거실을 가운데 두고 위 아래로 방을 위치시켜야 하는데, 가장 빛을 많이 받아들여야 하는 거실이 동서향을 바라봐야 하니 답답해집니다. 아마 동쪽과 서쪽에는 다른 집들이 바로 보이게 될텐데 프라이버시도 문제가 되구요.


아래는 센터 코어에 좌우 대칭으로 계획된 AOA 건축사사무소의 망원동 쌓은 집 사례입니다.


https://www.aoaarchitects.com/villamangwon

















2. 두 번째 대안은 서측에 세로형태 코어를 두는 것입니다.



















서측에 코어를 둔다면 (만약 서향 집을 감수한다면 동측코어도 좌우 대칭으로 같은 경우입니다) 주거를 위 아래로 둘 수 밖에 없습니다. 한쪽 집이 북향이 되니 아래쪽 집보다 상대적으로 불리합니다. 하지만 1번 대안보다 주거의 형태가 네모반듯하여 평면을 짜기에 좋습니다. 상대적으로 좀 더 평면이 잘 짜여질 가능성이 높습니다.


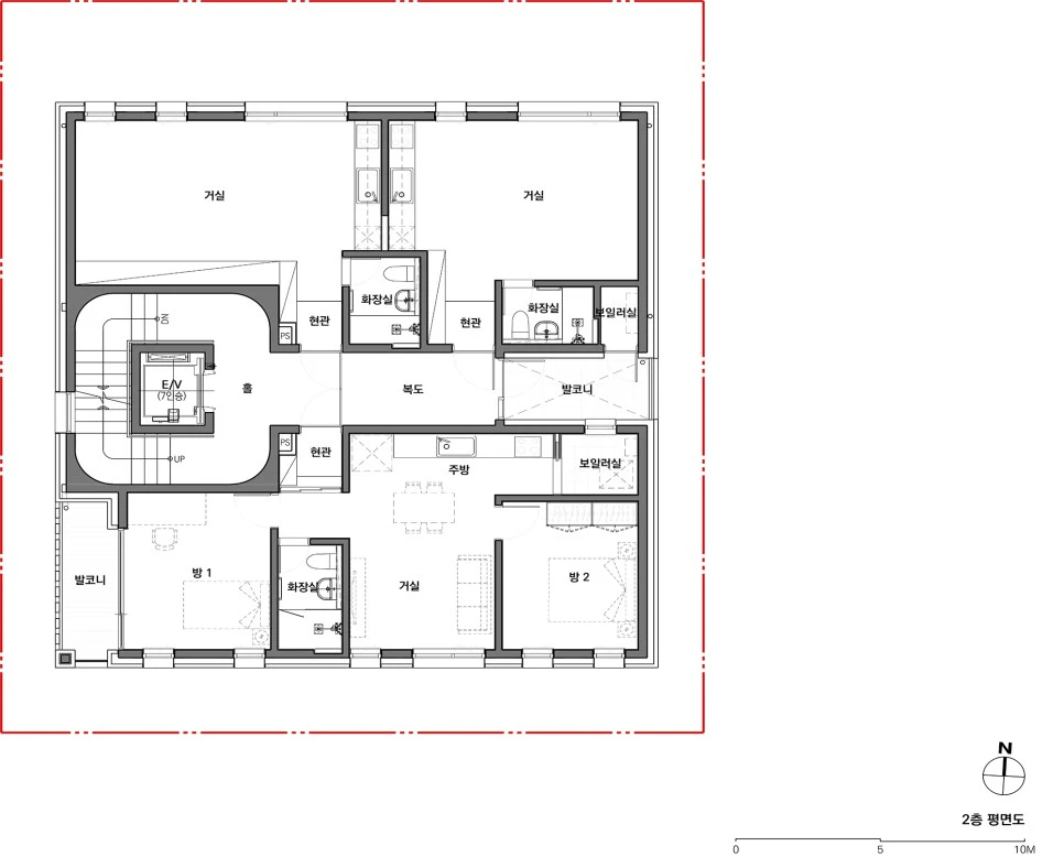
또 하나 언급하고 싶은 것은 이 대안에서는 A타입 코어를 쓸 수 없다는 것입니다. 위아래로 주거 세대가 들어가야 하니 A타입의 좁은 홀 공간으로는 접근이 불가능해서 별도의 길쭉한 복도를 놔야 합니다. 이럴 경우 공간 효율이 떨어지기 때문에 복도가 긴 B타입 코어를 쓰는 것이 낫죠.















이 대안의 경우 세로로 긴 건물 형상을 최대한 활용할 수 있기 때문에 평면을 잘 짜면 원룸 3세대까지 수용도 가능합니다. 아까 말씀드렸듯이 2세대만 넣는다면 평면을 짜기가 수월하고요. 각 세대의 평면구성은 역시 중요하기 때문에 다음 글에서 자세히 설명드리도록 하겠습니다.


아래는 이와 비슷하게 계획된 소수건축의 일삶 빌딩 사례입니다.


%EC%9D%BC%EC%82%B6%EB%B9%8C%EB%94%A9_%EB%8F%84%EB%A9%B45,6%EC%B8%B5.jpg?type=w966


3. 마지막 대안은 가로형태 코어를 중앙 서측에 두는 것입니다.















먼저 설명드렸듯이, 코어를 가로로 길게 두면 북쪽과 남쪽에 두는 것이 어렵습니다. 그러니 남은 대안은 가운데입니다. 가운데 두면 건물을 위 아래로 갈라서 대칭으로 만들 수 있습니다. 그러면 위 아래 주거 세대가 면적을 포함해서 동일한 환경으로 만들 수 있습니다. 다만 북측 세대가 전체 북향이 되어 채광 조건이 많이 나빠집니다. 이런 점은 단점이라고 할 수 있습니다. 현재 건물 전체 모양이 가로보다는 세로가 긴 형상이라 위아래로 분절하면 첫번째 대안보다는 주거 세대가 덜 길쭉해집니다. 상대적으로 평면 구성이 쉽다고 할 수 있겠습니다. 복도 공간 역시 최소화되어 면적 효율성도 높다고 볼 수 있습니다.
















조금 단순화시켜 말씀드렸습니다만, 상가주택 설계의 초기 대안 검토는 대략 이런 과정을 거쳐서 정해집니다. 위의 사례를 놓고 본다면, 1~3번 대안의 장단점을 따져보고 무엇이 더 나을지 결정하는 것이죠. 각 임대세대가 공평한 환경을 가지도록 하는 것이 중요하다면 1번 대안을, 각 세대의 평면 구성이 중요하다면 2번 또는 3번 대안을 선택하는 식입니다. 여기에 4층 주인세대의 평면 구성, 1층 근생의 면적이나 환경 등 정말 많은 요소들을 함께 고려해서 결정해야 합니다.


이렇게 한번 결정된 코어와 주차 방식은 쉽게 바꾸기가 힘듭니다. 계획이 많이 진행되면 되돌이키기가 힘들죠. 그러하니 처음에 코어와 주차 형식을 신중하게, 많은 검토를 거쳐 결정해야 합니다. 이 글에서는 각 층 주거 세대의 평면을 대략적으로만 설명드렸지만, 그 평면들이 잘 나오는지를 보고 결정하는 것이 좋습니다. 보셔서 알겠지만 코어와 주차장 계획이 각 세대의 평면을 굉장히 많이 제약하기 때문에 처음의 결정을 잘 하는 것이 무엇보다 중요합니다.


이렇게 상가주택의 코어와 주차방식에 대해서 간략하게 설명드려 보았습니다. 현실 설계에서는 향과 도로, 주변 상황 등이 복잡하게 맞물려들어가기 때문에 훨씬 복잡한 과정을 거칩니다. 오늘 글은 그것을 간략화해서 소개드린 것으로 생각하시면 좋을 것 같습니다. 다음 글에서는 2~3층 임대세대의 평면 구성에 대해서 설명드려보려고 합니다.


이 글과 관련해서 제가 진행했던 개포동 상가주택의 주차장, 코어 위치 검토와 관련된 포스팅을 같이 읽어보시면 도움이 되실 듯 합니다.




https://blog.naver.com/ratm820309/222868012375




https://blog.naver.com/ratm820309/222878319830



이 글을 보시고 궁금하시거나 문의하고 싶은 사항이 있으시면 언제든지 편하게 아래 연락처로 문의 주시기 바랍니다. 감사합니다.







열린 설계와 소통으로 건축주, 시공사와 함께하는 건축을 만들어갑니다.


OPEN STUDIO ARCHITECTURE

글 쓰는 건축가 김선동의 오픈 스튜디오 건축사사무소


김선동

Kim Seondong

대표 소장 / 건축사

'건축가의 습관' 저자

Architect (KIRA)

M.010-2051-4980

EMAIL ratm820309@gmail.com

www.openstudioarchi.com






keyword
매거진의 이전글상가주택 설계의 5가지 포인트는 어떤 것일까?