'고향집 선물' 36평 이천 백사면 전원주택 완공

#18 홈트리오 시공사례 - 건축비 : 197,800,000만 원

by 이동혁 건축가

*구독 버튼은 필수인 것 다들 아시죠^^

HC019-3144r.jpg


제목 : '고향집 선물' 36평 이천시 백사면 전원주택 완공

소제목 : #18 홈트리오 시공사례 - 건축비 : 197,800,000원


STORY

: 부모님을 위한 고향집을 선물하다.

이천시 백사면에 단층 36평 주택을 짓는 프로젝트. 많은 비용이 아닌 정해진 예산 안에서 너무 화려하지도 초라하지도 않은, 무던하면서도 매력적인 고향집을 짓는 일. 이번 프로젝트를 진행하면서 집이라는 것이 무엇인지에 대한 본질적인 부분을 다시 검토하게 된 계기였습니다.

집을 설계하고 시공하면서 참 많은 생각을 하게 됩니다. 어떻게 해야 돈 덜 들이고 높은 품질의 집을 지을 수 있을까? 솔직히 돈 들인 만큼 더 좋은 자재를 사용할 수 있으니 당연히 돈 더 들인 만큼 좋은 집이 나오긴 합니다.

하지만 '적정선'이라는 단어가 있듯이 너무 예산을 오버하면서까지 비싼 자재들을 선정할 이유는 없습니다.

상담을 하면서 참 안타까운 것이 가성비 좋은 중소기업의 제품을 사용해도 충분한데, 굳이 고가의 브랜드 자재를 무조건 사용해야 한다고 우길 때입니다. 상담 시 정확한 금액을 산정하기는 어려워도 대략적인 어바웃 견적은 저희 머릿속에 그려집니다. 예를 들면 예산은 2억으로 잡아놓은 뒤 꼭 이 예산안에서 집을 지어야 한다고 이야기해 놓고 자재들은 최고급만 고르는 말도 안 되는 현상. 원하는 대로 해드리면 예산 분명히 말했는데 왜 오버되게 설계했냐고 뭐라고 하시고, 말리면 왜 하고 싶은데로 못하게 하냐고 혼내시고. 참 어렵죠.

저는 이렇게 이야기드리고 싶어요. 특히 고향집. 부모님 집을 지어드리는 분들은 무조건 '가성비'라는 단어를 끝까지 유지하면서 집을 지으세요. 분명히 설계하다 보면 좋은 브랜드와 비싼 자재들이 눈에 들어오기 마련이에요. 하지만 가성비 높은 제품들이 품질이 절대로 떨어지는 것이 아니에요. 디자인적이나 손잡이 부분 등이 조금 덜 예쁠 뿐. 모두 시험성적서가 있는 제품들이기 때문에 사용상 불편함은 없습니다.

"예산이 충분한가요?"

"돈 걱정 없이 설계해도 상관없나요?"

절대 그렇지 않겠죠?(웃음)

현실적으로 그리고 내 마음에 드는 집이 아닌 부모님이 마음에 드는 집으로 짓길 바라겠습니다.


SPEC

공법 : 경량 목구조

지붕마감재 : 아스팔트 슁글 / 외벽 마감재 : 스타코플렉스 / 포인트 자재 : 파벽돌

실내 벽 마감재 : 실크벽지 / 실내 바닥마감재 : 강마루

창호재 : 미국식 3중 시스템창호

건축면적 : 118.08㎡(1층 : 118.08㎡)

예상 총 건축비 : 197,800,000원(부가세 포함, 산재보험료 포함 / 설계비, 인허가비, 구조계산 설계비 별도)

설계비 : 5,400,000원(부가세 포함) / 인허가비 : 3,600,000원(부가세 포함)

구조계산 설계비 : 3,600,000원(부가세 포함) / 인테리어 설계비 : 3,600,000원(부가세 포함)

*건축비 외 부대비용 : 대지구입비, 가구(싱크대, 신발장, 붙박이장), 기반시설 인입(수도, 전기, 가스 등), 토목공사, 조경비 등


HC019-3231r.jpg (좌측부터) 이동혁 건축가, 임성재 건축가, 정다운 건축가


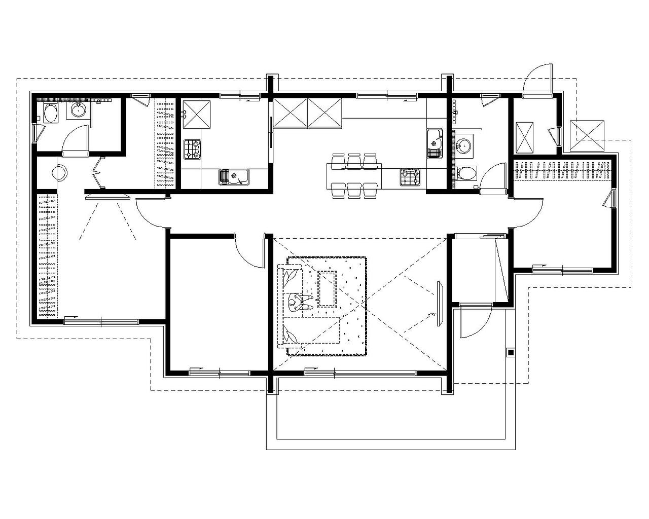
Floor Plan

1층 평면도.jpg 1층 평면도


HC019-3138r.jpg
HC019-3141r.jpg
HC019-3150r.jpg
HC019-0207r.jpg
HC019-3153r.jpg
HC019-3154r.jpg
HC019-3156r.jpg
HC019-3157r.jpg
HC019-3158r.jpg
HC019-3159r.jpg
HC019-3161r.jpg
HC019-3163r.jpg
HC019-3164r.jpg
HC019-3168r.jpg
HC019-3170r.jpg
HC019-3171r.jpg
HC019-3172r.jpg
HC019-3175r.jpg
HC019-3176r.jpg
HC019-3177r.jpg
HC019-3179r.jpg
HC019-3181r.jpg
HC019-3182r.jpg
HC019-3183r.jpg
HC019-3185r.jpg
HC019-3186r.jpg
HC019-3191r.jpg
HC019-3192r.jpg
HC019-3194r.jpg
HC019-3196r.jpg
HC019-3198r.jpg
HC019-3199r.jpg
HC019-3201r.jpg
HC019-3203r.jpg
HC019-3204r.jpg
HC019-3205r.jpg
HC019-3207r.jpg
HC019-3214r.jpg
HC019-3216r.jpg
HC019-3217r.jpg
HC019-3218r.jpg
HC019-3219r.jpg
HC019-3247r.jpg


HC019-3231r.jpg (좌측부터) 이동혁 건축가, 임성재 건축가, 정다운 건축가


"집이라는 본질적인 가치를 추구합니다." Design by 홈트리오(주)

상담문의 : 1522-4279

강연문의 : sunsutu@hanmail.net

홈페이지 : http://hometrio.kr/


'젊은 전원주택 트렌드'

http://www.yes24.com/Cooperate/Naver/welcomeNaver.aspx?pageNo=1&goodsNo=73072083

20190517_161259.jpg


keyword