'엄마를 위한 선물' 35평 괴산 연풍면 전원주택 완공

#17 홈트리오 시공사례 - 건축비 : 203,500,000만 원

by 이동혁 건축가

*구독 버튼은 필수인 것 다들 아시죠^^

HC018-3094r.jpg


제목 : '엄마를 위한 선물' 35평 괴산군 연풍면 적석리 전원주택 완공

소제목 : #17 홈트리오 시공사례 - 건축비 : 203,500,000원


STORY

: "전원주택 하면 무엇이 떠오르세요?"

다양한 이미지가 떠오르실 텐데, 음... 저는 고향집이 가장 먼저 떠오르는 것 같습니다.

명절이 되면 부모님 고향으로 차를 타고 가는 추억. 그리고 할머니가 웃으면서 반겨주시는 그 모습. 가족 친지들과 웃고 떠들며 재미나게 놀았던 기억들. 그 모든 기억들 때문인지 전원주택이라는 단어는 항상 저에게 있어 고향 같은 느낌으로 다가왔던 것 같습니다.

이번 주택모델을 설계하고 기획 방향을 잡으면서 많은 고민도 있었지만 어릴 적 느꼈던 고향집, 그리고 부모님에 대한 기억을 녹여내고자 많은 노력을 기울였습니다.

이번 주택의 디자인은 모던함을 많이 넣어주고자 노력했습니다. 단조로움의 미학과 목조주택이지만 철근콘크리트 주택처럼 보이도록 외관을 디자인했습니다.

목조던 철근콘크리트던 구조적으로 안전한 것은 문제가 없지만 어르신들의 경우 아무래도 철근콘크리트에 대한 맹목적 믿음이 있으셔서 목조에 대한 불안감을 호소하시는 분들이 계시거든요.

또한 집을 짓고 나서도 주변의 잡음이 계속 들린다는 이야기들이 있어 이번 주택을 설계할 때 아예 외관 자체를 "철근콘크리트처럼 보일 수 있게 하자!"가 저희들의 목표였습니다.

외장재에 대해 고민하시는 분들도 많죠. 처음에는 욕심이 없었지만 인터넷을 뒤지다 보면 하나씩 업그레이드되면서 이것도 좋고 저것도 좋고. 결국에는 제일 비싼 외장재를 골라오시는 건축주님들.

저는 솔직히 이해를 합니다. 일생에 한번 짓는 집. 제일 좋게 짓고 싶으셨겠죠. 하지만 문제는 항상 돈이라는 점. 배보다 배꼽이 크면 안 되겠죠. 항상 이야기드리지만 외장재는 외장재일 뿐. 단열과 방수하고는 상관없습니다. 디자인적으로 마감하는 것이므로 내가 가진 예산안에서 가성비 높은 자재를 선정하시기 바랍니다.

이번 주택도 외장재를 기본 스타코플렉스로 마감한 뒤 루나 우드로 포인트만 주었습니다. 그리고 포치 안쪽으로는 스타코플렉스를 톤 조절만 해서 나름대로의 입체감을 살려주었다는 점.

모던한 주택을 원하시나요? 그렇다면 이번 주택처럼 비워내는 디자인을 적용하셔야 어지럽지 않고 깔끔하고 트렌디한 단층 전원주택을 가질 수 있을 것입니다.


SPEC

공법 : 경량 목구조

지붕마감재 : 아스팔트슁글 / 외벽 마감재 : 스타코플렉스 / 포인트자재 : 파벽돌, 루나우드

실내벽마감재 : 실크벽지/ 실내바닥마감재 : 강마루

창호재 : 미국식 3중 시스템창호

건축면적 : 129.10㎡(1층 : 100.06㎡, 포치 : 29.04㎡)

예상 총 건축비 : 203,500,000원(부가세 포함, 산재보험료 포함 / 설계비, 인허가비, 구조계산 설계비 별도)

설계비 : 5,850,000원(부가세 포함) / 인허가비 : 3,900,000원(부가세 포함)

구조계산 설계비 : 3,900,000원(부가세 포함) / 인테리어 설계비 : 3,900,000원(부가세 포함)

*건축비 외 부대비용 : 대지구입비, 가구(싱크대, 신발장, 붙박이장), 기반시설 인입(수도, 전기, 가스 등), 토목공사, 조경비 등

HC018-3015r.jpg (좌측부터) 정다운 건축가, 임성재 건축가, 이동혁 건축가


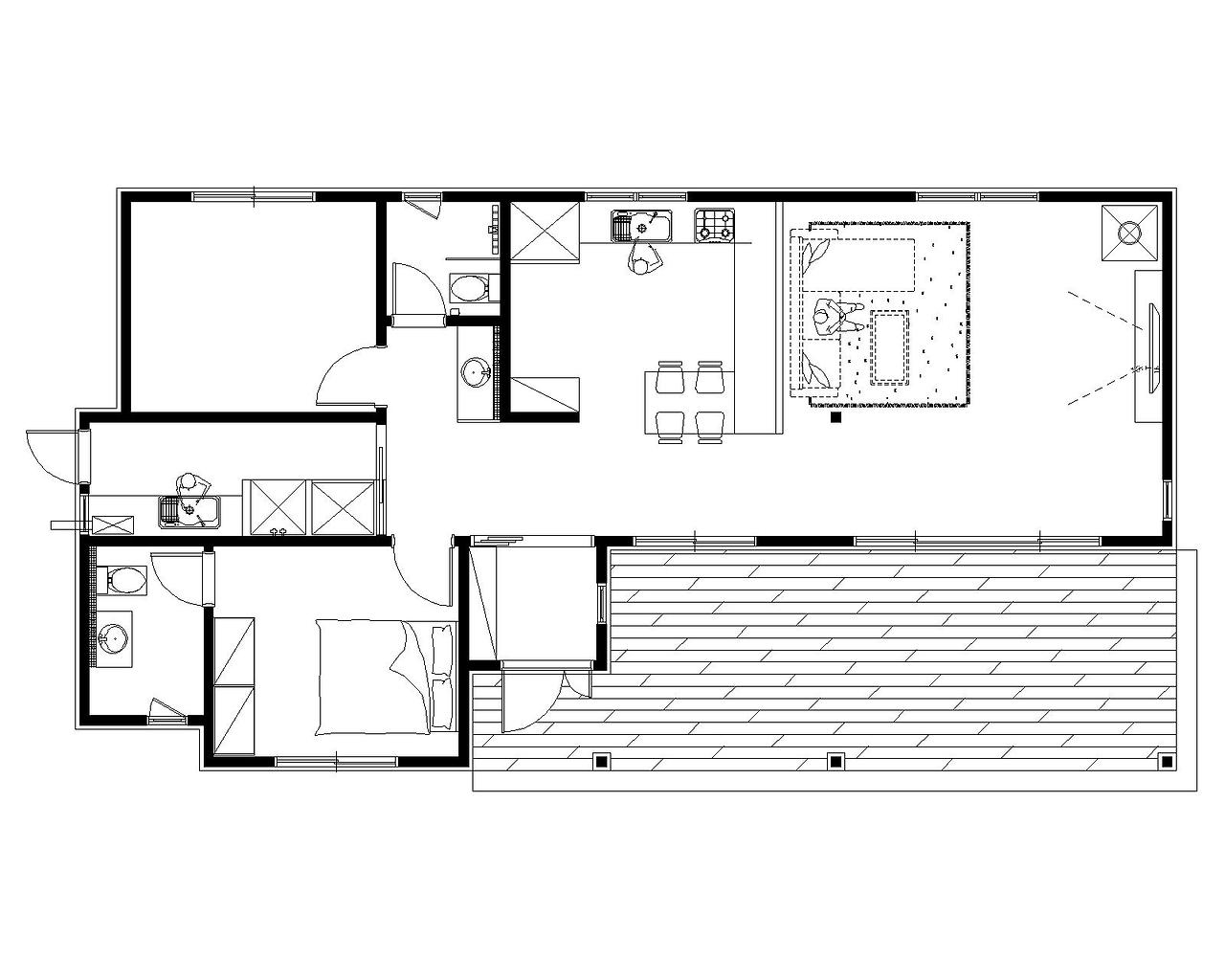
Floor Plan

1층 평면도.jpg 1층 평면도


HC018-3101r.jpg
HC018-0190r.jpg
HC018-3004r.jpg
HC018-3016r.jpg
HC018-3022r.jpg
HC018-3023r.jpg
HC018-3034r.jpg
HC018-3035r.jpg
HC018-3037r.jpg
HC018-3039r.jpg
HC018-3046r.jpg
HC018-3048r.jpg
HC018-3049r.jpg
HC018-3050r.jpg
HC018-3052r.jpg
HC018-3056r.jpg
HC018-3057r.jpg
HC018-3058r.jpg
HC018-3061r.jpg
HC018-3064r.jpg
HC018-3065r.jpg
HC018-3068r.jpg
HC018-3071r.jpg
HC018-3072r.jpg
HC018-3074r.jpg
HC018-3079r.jpg
HC018-3080r.jpg
HC018-3082r.jpg
HC018-3086r.jpg
HC018-3087r.jpg
HC018-3091r.jpg
HC018-3094r.jpg
HC018-3100r.jpg
HC018-3101r.jpg


HC018-3015r.jpg (좌측부터) 정다운 건축가, 임성재 건축가, 이동혁 건축가


"집이라는 본질적인 가치를 추구합니다." Design by 홈트리오(주)

상담문의 : 1522-4279

강연문의 : sunsutu@hanmail.net

홈페이지 : http://hometrio.kr/


'젊은 전원주택 트렌드'

http://www.yes24.com/Cooperate/Naver/welcomeNaver.aspx?pageNo=1&goodsNo=73072083

20190517_161259.jpg


keyword