'양양의 랜드마크를 그리다' 45평 양양 전원주택 완공

#16 홈트리오 시공사례 - 건축비 : 298,000,000만 원

by 이동혁 건축가

*구독 버튼은 필수인 것 다들 아시죠^^

HC015-2284r.jpg

제목 : '양양의 랜드마크를 그리다' 45평 양양군 강현면 전원주택 완공

소제목 : #16 홈트리오 시공사례 - 건축비 : 298,000,000원


STORY

: 클래식한 느낌을 지우고 젊고 트렌디한 느낌의 주택을 완성시키겠다는 목표. 그 목표를 위해 7개월이라는 시간을 들여 드디어 완공을 시켰습니다.

양양에서 가장 크다고 할 수 있는 전원주택 단지에서 타 주택과는 다른 이미지로 집을 탄생시켜야 한다는 것. 하지만 가성비라는 단어와 함께 가야 하는 프로젝트. 그 프로젝트를 시작함에 있어 저희 세 건축가는 참 많은 고민을 하게 되었습니다.

"어떻게 설계하고 지어야 다른 주택들과 차별성이 느껴지게 완성시킬 수 있을까?"

너무 화려하고 매스 분절을 많이 시키기에는 너무 부담되는 건축비가 문제였고, 독특한 외장재를 사용하자고 하니 이 역시 건축비 상승을 불러일으키는 요소들이었습니다.

건축주님과 여러 협의를 거친 후 처음 고려되었던 리얼징크 및 세라믹 사이딩은 전부 제외시키고 투톤의 스타코플렉스와 테라코트 플렉시텍스를 혼합 사용하여 입체감과 볼륨감을 살려주기로 했습니다.

실재 이 집에 사용된 외장재는 스타코플렉스와 테라코트 렉래시텍스, 그리고 루나 우드, 기초 부분의 파벽돌. 이것이 전부입니다. 설계 단계에서부터 매스 분절을 일으켜주기 위해 배면부는 일자로, 전면부는 엇갈리는 박스형 구성으로 설계를 진행했습니다. 배면부를 일자로 맞추고 전면부의 면적을 각각 다르게 배치함으로써 볼륨감을 자연스럽게 살리되 이동 공간으로서 소모되는 데드 스페이스를 최소화할 수 있었습니다.

네모난 박스가 엇갈리며 쌓인듯한 이미지를 원하시는 분들은 꼭 설계에서부터 이 부분을 반영시켜야 합니다. 많이들 평면 구성한 후 디자인을 얼마든지 바꿀 수 있을 거라 생각하시는데 절대로 그렇지 않습니다. 입면이란 내가 설계한 평면에서 벽을 올리면 그 자체가 벽이 되고 입면이 됩니다. 평면 설계 후 입면 이미지를 억지로 바꾸려고 한다면 그동안 설계했던 내부 평면도가 또다시 다 바뀌게 되는 상황이 되는 것이지요.

각 공간별 면적은 다를 수밖에 없기 때문에 전면부 쪽으로 이 공간들을 각기 배치해주면 이번 주택처럼 큰 힘을 들이지 않더라고 입체감과 볼륨감이 가미된 전면부 디자인을 얻어낼 수 있습니다.

45평이라는 공간. 작자면 작고 크다면 큰 공간이 이 공간에서 저희들은 개방감을 극대화시키기 위한 설계적 요소를 공간 공간 넣어주었습니다. 현관을 들어왔을 때 거실과 주방이 원 스페이스처럼 보일 수 있도록 오픈된 설계 구성을 계획하고 오픈 천장이라는 옵션을 집어넣어 거실의 개방감이 극대화될 수 있도록 하였습니다. 다용도실을 배면 쪽으로 숨기면서 생겨난 식탁공간은 현관에서의 시각적 차단을 자연스럽게 이루어질 수 있도록 하였으며, 냉장고 2대와 세탁기 1대가 들어갈 수 있는 넓은 다용도실을 별도로 구성해주어 어지럽지 않은 주방 공간을 확보할 수 있도록 설계하였습니다. 깔끔한 주방 공간을 원한다면 가급적 다용도실을 크게 만들어 그 공간 안에 다 밀어 넣어주는 것이 현명합니다. 아무리 잘 정리한다고 해도 외부에 나와있으면 시야에 걸리적거릴 수밖에 없답니다.

너무 많은 이야기를 풀었네요. 지금부터는 글이 아닌 사진으로 같이 둘러보시죠.


SPEC

공법 : 경량 목구조

지붕마감재 : 아스팔트슁글 / 외벽 마감재 : 스타코플렉스+테라코트 / 포인트자재 : 파벽돌, 적삼목

실내벽마감재 : 실크벽지/ 실내바닥마감재 : 강마루

창호재 : 미국식+독일식 3중 시스템창호

건축면적 : 147.92㎡(지상1층 : 94.89㎡, 지상2층 : 53.03㎡)

예상 총 건축비 : 298,000,000원(부가세 포함, 산재보험료 포함 / 설계비, 인허가비, 구조계산 설계비 별도)

설계비 : 6,750,000원(부가세 포함) / 인허가비 : 4,500,000원(부가세 포함)

구조계산 설계비 : 4,500,000원(부가세 포함) / 인테리어 설계비 : 4,500,000원(부가세 포함)

*건축비 외 부대비용 : 대지구입비, 가구(싱크대, 신발장, 붙박이장), 기반시설 인입(수도, 전기, 가스 등), 토목공사, 조경비 등

HC015-2264r.jpg (좌측부터) 정다운 대표, 임성재 대표, 이동혁 대표


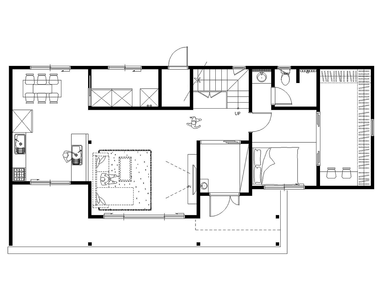
1층.jpg 1층 평면도
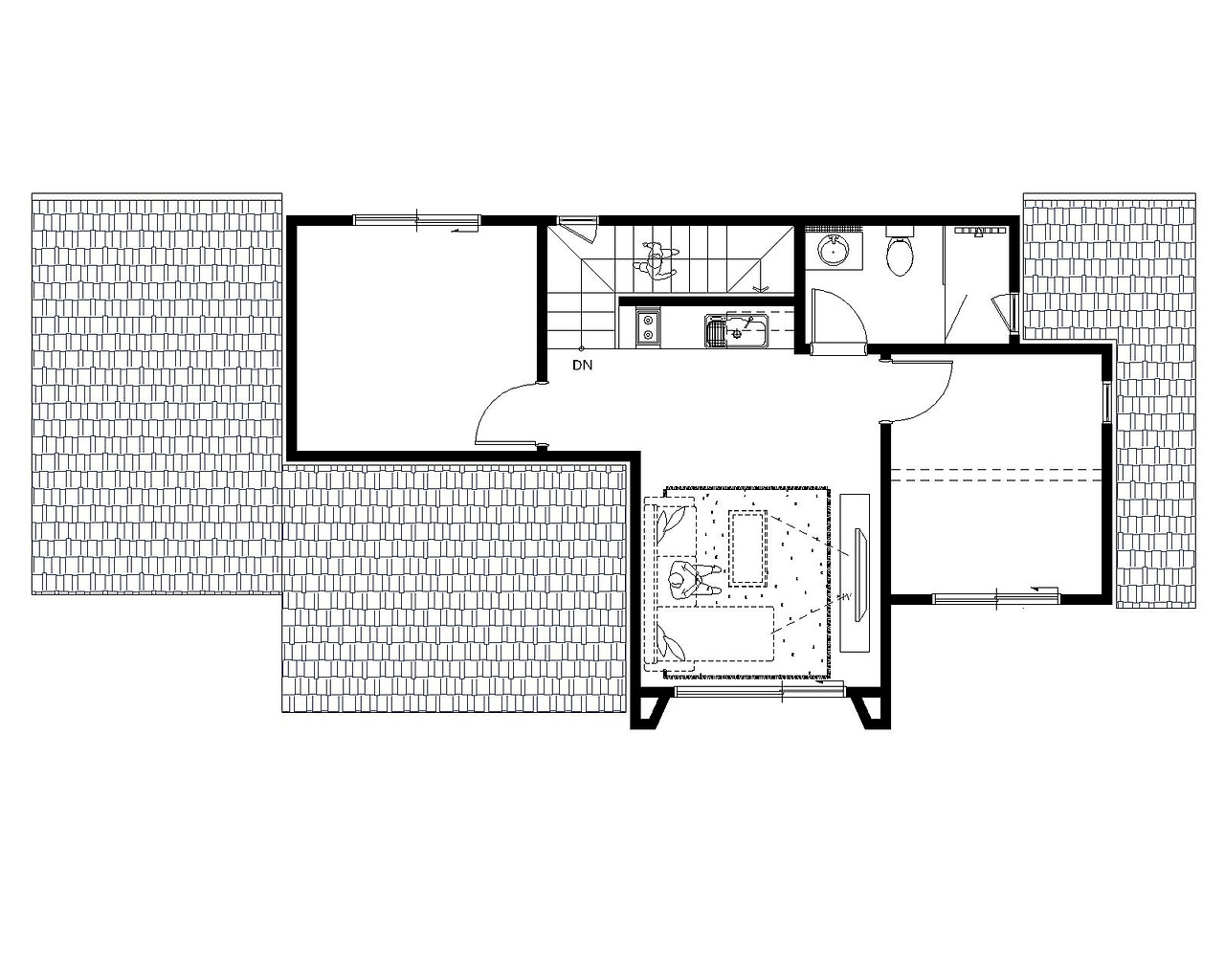
2층.jpg 2층 평면도


HC015-2157r.jpg
HC015-2169r.jpg
HC015-2174r.jpg
HC015-2132r.jpg

1층

HC015-2221r.jpg

HC015-2241r.jpg
HC015-2242r.jpg
HC015-2246r.jpg
HC015-2247r.jpg
HC015-2248r.jpg
HC015-2244r.jpg
HC015-2245r.jpg
HC015-2224r.jpg
HC015-2225r.jpg
HC015-2227r.jpg
HC015-2204r.jpg
HC015-2228r.jpg
HC015-2229r.jpg
HC015-2230r.jpg
HC015-2232r.jpg
HC015-2233r.jpg
HC015-2234r.jpg
HC015-2235r.jpg
HC015-2236r.jpg
HC015-2237r.jpg
HC015-2238r.jpg
HC015-2239r.jpg
HC015-2240r.jpg


HC015-2205r.jpg
HC015-2207r.jpg
HC015-2208r.jpg
HC015-2209r.jpg
HC015-2210r.jpg
HC015-2212r.jpg
HC015-2213r.jpg
HC015-2214r.jpg
HC015-2215r.jpg
HC015-2218r.jpg



2층


HC015-2200r.jpg
HC015-2201r.jpg
HC015-2202r.jpg
HC015-2203r.jpg


HC015-2176r.jpg
HC015-2177r.jpg
HC015-2178r.jpg
HC015-2179r.jpg
HC015-2180r.jpg
HC015-2181r.jpg
HC015-2183r.jpg
HC015-2184r.jpg
HC015-2185r.jpg
HC015-2186r.jpg
HC015-2187r.jpg
HC015-2188r.jpg
HC015-2189r.jpg
HC015-2190r.jpg
HC015-2191r.jpg
HC015-2192r.jpg
HC015-2193r.jpg
HC015-2194r.jpg
HC015-2195r.jpg
HC015-2197r.jpg
HC015-2198r.jpg


HC015-2274r.jpg
HC015-2277r.jpg
HC015-2283r.jpg
HC015-2284r.jpg
HC015-2289r.jpg
HC015-2261r.jpg (좌측부터) 정다운 건축가, 임성재 건축가, 이동혁 건축가


"집이라는 본질적인 가치를 추구합니다." Design by 홈트리오(주)

상담문의 : 1522-4279

강연문의 : sunsutu@hanmail.net

홈페이지 : http://hometrio.kr/


'젊은 전원주택 트렌드'

http://www.yes24.com/Cooperate/Naver/welcomeNaver.aspx?pageNo=1&goodsNo=73072083

20190517_161259.jpg


keyword