brunch

133평 사옥 짓기 프로젝트:홈트리오 FINAL

2020 월간 홈트리오 히든페이지 ③

by 이동혁 건축가

2020 월간 홈트리오 히든페이지 ③ - 133평 사옥 짓기 프로젝트 : 홈트리오 FINAL(젊은 전원주택 트렌드Ⅲ)


※모든 저작권은 홈트리오(주)에게 있습니다. 최근 무단으로 디자인과 설계 평면도를 복제해 마치 본인들이 한 것인 듯 홍보하는 업체들이 있는데 법적 책임을 물을 수 있다는 점 고지드립니다.


STORY

: 우리 회사만의 사옥을 짓는 꿈.

그 꿈을 이루는 시작점의 모델입니다.

모던하면서 홈트리오만의 브랜드 이미지를 건축으로서 잘 담아낼 수 있도록 디자인하였습니다. 단순히 박스형의 평면을 벗어나 스킵플로어 설계기법을 적용해 각 공간이 더 재미있는 구성을 진행될 수 있도록 방향을 잡았으며, 꺾인 ‘ㄱ’ 형 배치를 적용하여 배치 자체만으로도 유니크한 형태를 만들어 낼 수 있도록 하였습니다.

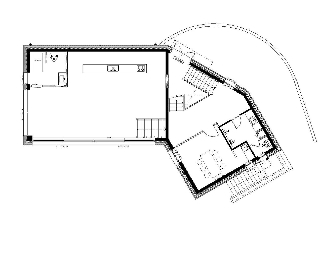
지하 1층과 지상 1층은 임대를 줄 수 있는 공간으로 동선을 분리하였으며, 2~3층은 사무실 및 전시 공간으로 활용될 수 있도록 설계하였습니다.

200평 대지에 최적화된 공간으로 설계된 이번 근린생활시설 모델은 소규모 사옥 및 빌딩을 건축하고자 하시는 분들의 디자인적 갈증을 해소시켜 줄 수 있는 그러한 모델이라 평하고 싶습니다.


다른 사람의 집은 정말 많이 설계하고 시공하고, 경험치로만 한다면 엄청 많은 경험치를 쌓았는데 정작 저희 사옥을 설계하려고 하니 더 많은 스트레스를 받았습니다.

설계안만 4개가 나오고 완전히 뒤집는 과정을 통해 최종 완성본이 나오기까지 4개월. 정말 우여곡절도 많았네요.

사옥이라는 건물이 저희 홈트리오라는 젊고 트렌디 한 느낌을 담아내는 공간이다 보니 실 하나하나에 영역성과 목적성을 분명히 하고, 코어 부분과 진입 라인 부분도 일반 획일적인 건물들과는 완전히 다른 양상으로 방향을 정해 설계를 진행했습니다.


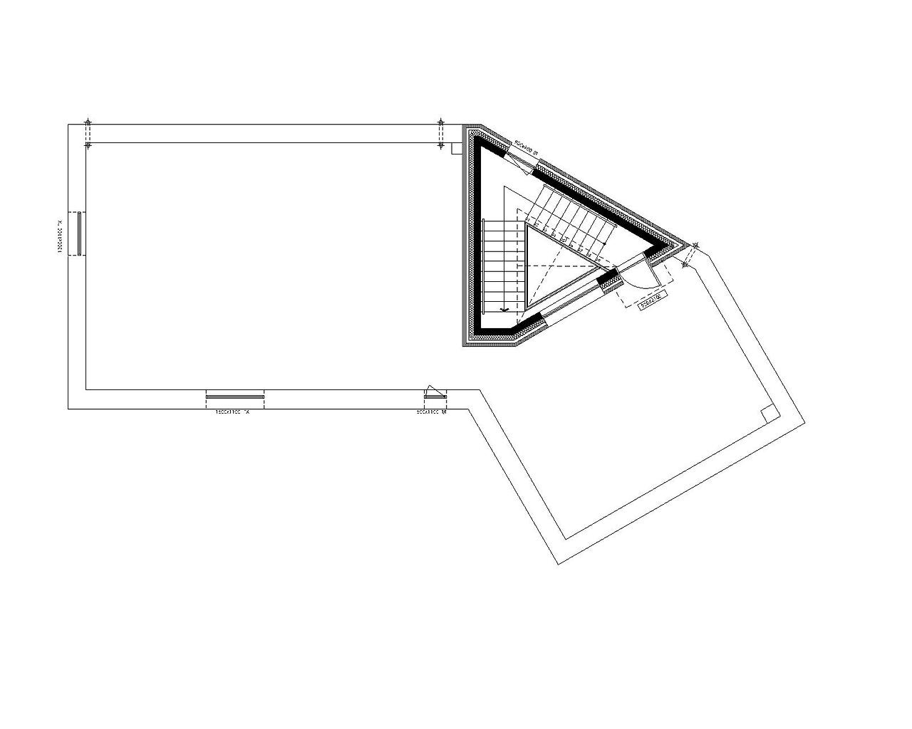
아마 사옥에 삼각형 계단과 스킵플로어를 적용한 건물은 저희밖에 없지 않을까 싶네요.

일반적인 사옥 건물에 이렇게 하기 힘든 이유는 설계 디테일 도면이 많이 들어갈 뿐만 아니라 건축비 상승 요인 중 하나가 되거든요. 남의 건물에서는 시도하기 힘든 그러한 건물이라 생각하시면 될 것 같습니다.


2020년 6월 드디어 저희 홈트리오 사옥이 첫 삽을 뜨게 되었습니다. 2021년부터는 저희 브랜드의 아이덴티티를 담은 건물에서 새롭게 인사드리도록 하겠습니다.


많은 응원과 격려 보내주신 건축주님들께 감사인사를 전합니다.


#홈트리오사옥 #사옥프로젝트 #사옥짓기 #소형빌딩 #브랜드사옥

KakaoTalk_20200707_171734383.jpg

공법 : 철근콘크리트(RC)

설계, 시공 : 홈트리오(주) / 상담문의 : 1522-4279

지붕마감재 : 평지붕마감 / 외벽 마감재 : 화이트 모노롱 벽돌(영롱쌓기) / 포인트자재 : 스틸프레임

실내벽마감재 : 콘크리트노출마감, 파벽돌, 도장마감 / 실내바닥마감재 : 포세린타일, 에폭시마감

창호재 : 이건 알루미늄 3중 시스템창호

건축면적 : 438.32㎡(지하1층 : 46.01㎡, 지상1층 : 130.77㎡, 지상2층 : 130.77㎡, 지상3층 : 130.77㎡, 옥탑 : 14.54㎡ )

예상 총 건축비 : 1,275,000,000원(부가세 포함, 산재보험료 포함 / 설계비, 인허가비, 구조계산 설계비 별도)

설계비 : 26,600,000원(부가세 포함) / 인허가비 : 13,300,000원(부가세 포함)

구조계산 설계비 : 13,300,000원(부가세 포함) / 인테리어 설계비 : 13,300,000원(부가세 포함)

*건축비 외 부대비용 : 대지구입비, 가구(싱크대, 신발장, 붙박이장), 기반시설 인입(수도, 전기, 가스 등), 토목공사, 조경비 등


지하 1층 평면도.jpg 지하 1층 평면도
1층 평면도.jpg 지상 1층~1.5층 평면도
2층 평면도.jpg 지상 2층~2.5층 평면도
3층 평면도.jpg 지상 3층~3.5층 평면도
옥상 평면도.jpg 옥탑 평면도

이동혁 건축가 : 홈트리오의 젊고 역동적인 느낌을 사옥에 담아내고 싶었어요. 획일적인 느낌보다는 좀 더 입체적이고 눈길이 가는 역동적인 느낌의 건물. 홈트리오라는 브랜드를 건물로서 표현해 내는 것이 어려웠지만 4개월간의 설계기간을 통해 완성된 홈트리오 최종 사옥은 저희 대표 셋이 모두 만족할만한 결과물로 탄생하게 된 것 같습니다.

정다운 건축가 : 스킵플로어라는 설계적 기법을 사용하였습니다. 반층씩 올라가면서 두 개의 매스를 번갈아가면서 공간을 활용할 수 있도록 하였는데요. 아무래도 건폐율이 적은 대지다 보니 40평이라는 면적을 제일 효율적으로 사용할 수 있는 설계 방법을 찾았던 것 같습니다.

임성재 건축가 : 삼각형 계단을 최종적으로 고려했을 때 저희 셋도 많은 고민에 빠져있는 상황이었습니다. 중이 제 머리 못 깎는다고 했던가요. 너무 많이 알고 있으니 정작 저희 건물을 설계할 때 더 많은 시간이 필요했습니다. 삼각형 계단에 스킵플로어, 그리고 계단실 천장 오픈까지 시켜 일반적인 건물에서는 적용조차 힘들었던 코어 부분을 강제로 만들어 내었습니다. 저희 건물이니까 이렇게 할 수 있었던 것 같아요. 다른 건축주님 건물이었으면 시도조차 못 했을 듯합니다.


메스1.jpg
메스2.jpg
메스3.jpg
메스4.jpg
사옥투시도.JPG
사옥투시도-야경.JPG
KakaoTalk_20200707_171734383.jpg


HC029-4969r.jpg (좌측부터)정다운 건축가, 이동혁 건축가, 임성재 건축가

[집이라는 본질적인 가치에 집중하다.]

Architecture Team : 홈트리오(주)

대표번호 : 1522-4279

홈페이지 : http://hometrio.kr/

KakaoTalk_20191210_164551850.jpg


KakaoTalk_20200521_090546896.jpg


keyword