brunch

240평 근린생활시설 : ANS240(상가건축)

2020 월간 홈트리오 히든페이지 ④

by 이동혁 건축가
KakaoTalk_20200521_090546896.jpg


2020 월간 홈트리오 히든페이지 ④ - 240평 근린생활시설 : 화이트 에디션 ANS240(상가건축)


※모든 저작권은 홈트리오(주)에게 있습니다. 최근 무단으로 디자인과 설계 평면도를 복제해 마치 본인들이 한 것인 듯 홍보하는 업체들이 있는데 법적 책임을 물을 수 있다는 점 고지드립니다.


STORY

: 화이트 모노롱타일을 기본 외장 마감재로 선정하여 모던한 느낌과 묵직한 웅장함을 건물 이미지에 부여하고자 하였습니다. 수익성 근린생활시설이기 때문에 주차장을 확보한 후 최대한의 공간을 임대공간으로 확보할 수 있도록 설계하였습니다.

리얼징크와의 디자인 조합으로 좀 더 유니크함을 더해 줄 수 있도록 방향 설정하였으며, 칙칙함을 벗어나 깨끗하고 밝은 이미지를 건물 전체에 넣어주고자 하였습니다.

근린생활시설을 설계하고 기획할 때 주목적에 대한 부분을 명확히 정해 놓으셔야 합니다. 단순히 다 지어놓고 각 공간을 임대해야지라고 생각한다면 공실률이 커질 수밖에 없습니다.

1층에는 무엇을 놓을지, 2층에는 어떠한 시설들을 배치하고 어떠한 느낌으로 전체를 통일하여 인테리어 할지 등을 결정해야 이 건물이 오래 살아남을 수 있고 깨끗하게 유지될 수 있습니다.

생각보다 많은 분들이 근린생활시설, 다시 말하면 상가건물을 지을 때 지어놓고 보는 경우가 많습니다. 결국에 임대가 안 나가면 다시 공간을 공사해서 실을 나누는데 공사비가 또 드는 부분이므로 꼭 계획하고 설계할 당시에 어떻게 건물을 운영할지 깊이 고민하시길 바랍니다.

저희들도 설계를 진행할 때 각 공간에 어떠한 목적의 시설을 들어오는지 물어봅니다. 카페가 들어오는지, 아니면 식당이 들어오는지 등 각 공간에 동선과 창문 등을 고려하고 전체 배치와 설계를 진행합니다.

쉬운 것 같지만 그만큼 많은 고민을 하게 만드는 것이 상가 건축입니다. 수익성 건물이기 때문에 잘못 판단하게 되면 바로 금전적 피해가 닥치기 때문입니다.

멋지고 랜드마크적인 건물로 기억되길 원하시나요? 그렇다면 오늘 제가 드린 이야기들을 잘 기억해 놓으셨다가 여러분들의 건물에 적용해 보시길 바랍니다.


#안성상가 #안성근린생활시설 #근린생활시설 #상가건축 #화이트에디션

안성-투시도.JPG


공법 : H빔 구조

설계, 시공 : 홈트리오(주) / 상담문의 : 1522-4279

지붕마감재 : 평지붕마감+리얼징크 / 외벽 마감재 : 모노롱벽돌 / 포인트자재 : 리얼징크

실내벽마감재 : 도장마감 / 실내바닥마감재 : 에폭시마감, 포세린타일

창호재 : 이건 알루미늄 3중 시스템창호

건축면적 : 793.31㎡(지상1층 : 316.07㎡, 지상2층 : 316.07㎡, 지상3층 : 161.17㎡)

예상 총 건축비 : 1,370,000,000원(부가세 포함, 산재보험료 포함 / 설계비, 인허가비, 구조계산 설계비 별도)

설계비 : 36,000,000원(부가세 포함) / 인허가비 : 24,000,000원(부가세 포함)

구조계산 설계비 : 24,000,000원(부가세 포함) / 인테리어 설계비 : 24,000,000원(부가세 포함)

*건축비 외 부대비용 : 대지구입비, 가구(싱크대, 신발장, 붙박이장), 기반시설 인입(수도, 전기, 가스 등), 토목공사, 조경비 등


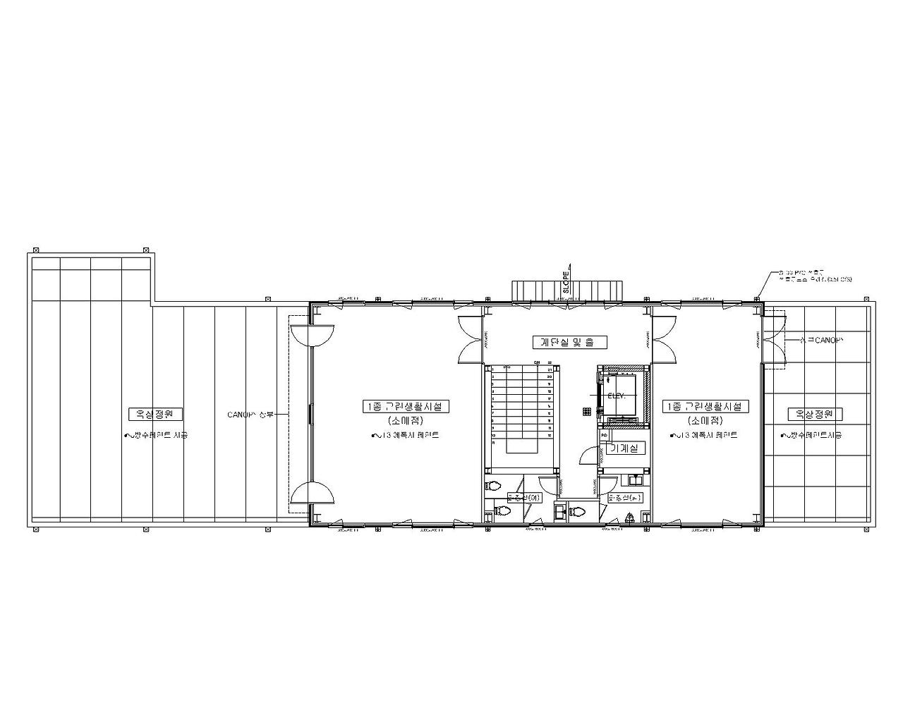
1층.jpg 1층 평면도
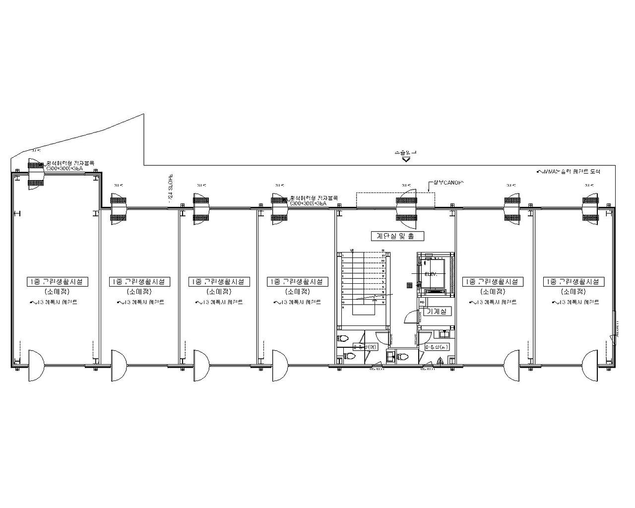
2층.jpg 2층 평면도
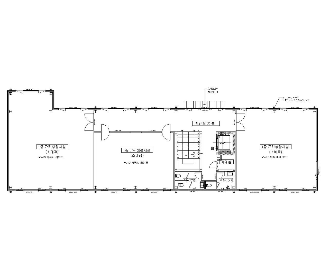
3층.jpg 3층 평면도
옥상.jpg 옥상 평면도


이동혁 건축가 : H빔 공법의 경우 패널 방식의 마감만이 존재한다고 생각하시는데 충분히 다양한 외장재를 선정하여 시공할 수 있습니다. 창고 같은 느낌을 꺼려하시는 분들이라면 패널 방식을 피하고 벽돌이나 징크 등을 활용하여 외관 디자인을 적용해 보는 것도 나쁘지 않습니다.

정다운 건축가 : 근린생활시설의 경우 단열이 우선이 아닌 건폐율과 용적률을 최대한 꽉 채워 낭비되는 공간 없이 모든 면적을 찾아먹는 것에 그 시작점이 있습니다. 비싼 땅에 수익성 건물을 짓는 것이기 때문에 정해진 법적 면적보다 덜 지어야 할 이유가 없는 것이죠. 그래서 주택과는 다르게 설계 방향이 정해지며, 각 공간별 구획도 언제든지 가변성이 존재할 수 있도록 설계를 진행합니다.

임성재 건축가 : 각 공법별로 장담점의 차이는 분명하게 발생합니다. H빔 구조의 경우 가장 큰 장점은 공사기간이 RC공법에 비해 짧고 건축비가 저렴하다는 것에 있습니다. 다만 마감재의 선정이 한정적이고, 디자인적으로 제약이 존재하기 때문에 이러한 장단점을 잘 파악하신 뒤 근린생활시설을 짓길 바라겠습니다.


메스1.jpg
메스2.jpg
메스3.jpg
메스4.jpg
안성-투시도.JPG



Gn23z2Z-JmTU33ctrO7CrTAfm8s.jpg (좌측부터)정다운 건축가, 이동혁 건축가, 임성재 건축가

[집이라는 본질적인 가치에 집중하다.]

Architecture Team : 홈트리오(주)

대표번호 : 1522-4279

홈페이지 : http://hometrio.kr/

KakaoTalk_20191210_164551850.jpg


KakaoTalk_20200521_090546896.jpg


keyword