brunch

'햇살 따스한 집' 47평 양산시 전원주택 완공

#26 홈트리오 시공사례 - 건축비 : 27,100만 원

by 이동혁 건축가

*구독 버튼은 필수인 것 다들 아시죠^^

HC029-4767r.jpg


제목 : '햇살 따스한 집' 47평 양산시 전원주택 완공

소제목 : #26 홈트리오 시공사례 - 건축비 : 27,100만원


STORY

: 햇살이 창에 다다를 때 그 따스함이 온전히 집 안에 전해지는 집.

2층의 안정감 있는 디자인에 2면의 외쪽지붕을 적용해 모던하면서도 클래식함이 공존하는 집으로 태어났습니다.

하나로 오픈된 거실과 주방. 그리고 4인 가족이 머무르기에 충분한 3개의 방. 좁지 않고 넓은 방으로 구성해 자녀들이 성장해 어른이 되더라도 불편함 없이 사용할 수 있도록 설계하였으며, 2개의 화장실을 배치해 출근 및 등교에도 무리 없는 사용이 가능하도록 했습니다. 2층에 별도의 드레스룸을 구성해 주었으며, 이는 부족한 수납공간을 대체할 수 있도록 배려한 것입니다.

이번 주택 외부 디자인을 계획할 때 어느 한쪽으로 치우친 스타일이 아닌 한국에 맞는 가장 최적화된 이미지를 갖고자 하였습니다. 아무래도 디자인이라고 하는 것이 취향적인 부분에 많이 치우치는 부분이다 보니 저희들이 디자인한 안들이 마음에 안 드실 수도 있을 거라 생각합니다. 하지만 방향성이라고 하죠.

항상 이야기하는 '가성비' 주택. 그리고 4인 가족이 생활하기에 불편함이 없는 주택. 마지막으로 특별하지는 않지만 눈길이 가는 예쁜 주택. 저희들이 생각하는 이 방향성으로 설계를 진행하며, 이번 주택도 그 방향성의 결에 따라 만들어진 주택이라고 생각해 주셨으면 좋겠습니다.

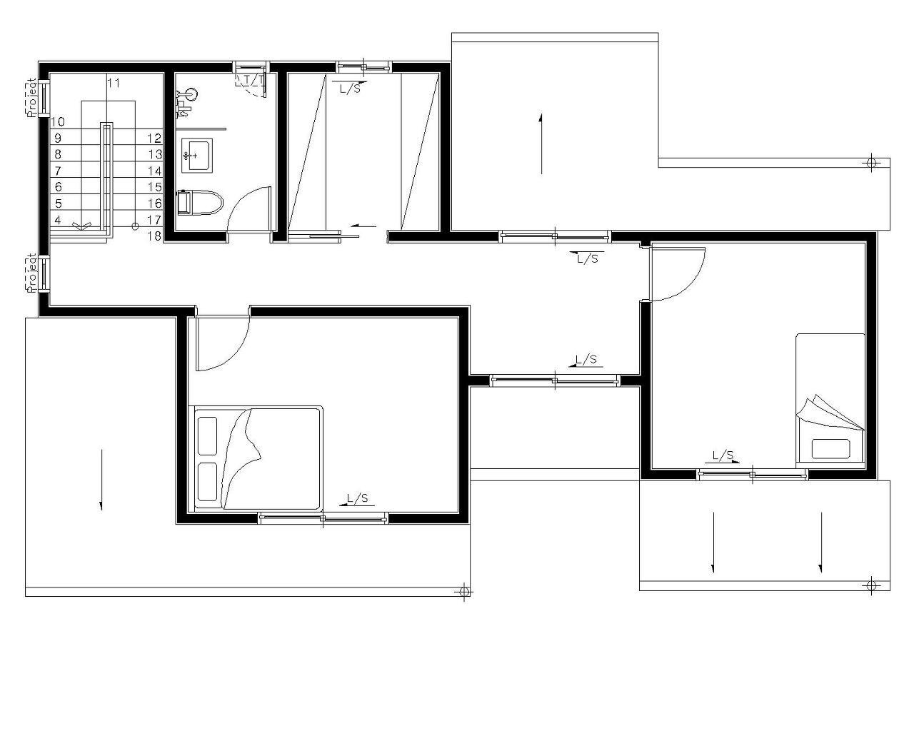
이번 주택의 특이한 점을 꼽자면 코어 부분이라 할 수 있습니다. 일반적으로 가운데에 위치하는 현관 및 계단실이 좌측으로 치우쳐 계획이 되었습니다.

특별히 문제가 있었던 것은 아니고 코어를 통해 공용공간과 프라이빗 공간을 나누어 줄 것이냐, 아니면 현관을 들어왔을 때 탁 트인 개방감을 극대화할 것이냐에 대한 옵션적인 부분이라 설명드리고 싶습니다.

이번 주택처럼 코어 부분을 한쪽으로 계획했을 경우 현관을 진입했을 때 거실과 주방, 안방 라인까지 이어지는 압도적인 개방감 라인은 같은 평형대에서는 느낄 수 없는 공간감일 것입니다.

집을 설계하는 기법 중 '중정'이라는 부분이 있습니다. 여러분들이 아시고 계신 중정은 아마도 집 안쪽에 4면이 감싸고 있는 모습일 텐데요. 꼭 4면이 다 감싸져 있어야 그 느낌이 나는 것은 아닙니다. 이번 주택처럼 3면이 벽이고 앞 데크 쪽은 뚫려있어도 충분히 중정의 아늑한 느낌은 가져갈 수 있습니다.

테이블을 놓고 가든파티하기 딱 좋은 장소이며, 남의 이목을 신경 쓰지 않도록 시각적 차단이 자연스럽게 이루어지니 이보다 더 좋을 순 없을 것입니다.

특별하지는 않지만 눈길이 가는 집. 튼튼하고 따뜻한 집. 이번 주택은 그러한 집이라고 설명드리고 싶습니다.


SPEC

공법 : 경량 목구조

설계, 시공 : 홈트리오(주) / 상담문의 : 1522-4279

지붕마감재 : 아스팔트 슁글 / 외벽 마감재 : 스타코플렉스 / 포인트 자재 : 파벽돌

실내 벽 마감재 : 실크벽지/ 실내 바닥마감재 : 강마루

창호재 : 이건 알루미늄 3중 시스템창호

건축면적 : 154.63㎡(1층 : 89.76㎡, 2층 : 64.87㎡)

예상 총 건축비 : 271,000,000원(부가세 포함, 산재보험료 포함 / 설계비, 인허가비, 구조계산 설계비 별도)

설계비 : 7,050,000원(부가세 포함) / 인허가비 : 4,700,000원(부가세 포함)

구조계산 설계비 : 4,700,000원(부가세 포함) / 인테리어 설계비 : 4,700,000원(부가세 포함)

*건축비 외 부대비용 : 대지구입비, 가구(싱크대, 신발장, 붙박이장), 기반시설 인입(수도, 전기, 가스 등), 토목공사, 조경비 등


HC029-5053r.jpg (좌측부터) 이동혁 건축가, 임성재 건축가, 정다운 건축가

Floor Plan

다운로드.jpg 1층 평면도
다운로드 (1).jpg 2층 평면도

이동혁 건축가 : 4인 가족이 생활하기에 최적화된 평면으로 구성하였습니다. 전원주택 택지 및 도심형 단독주택 필지에도 모두 어울릴만한 느낌으로 디자인을 완료하였습니다. 스타코플렉스 베이스에 파벽돌 포인트. 하단부에 조금만 포인트를 주는 것이 아닌 1층 전체를 포인트로 가져가면서 외벽에 대한 오염방지 및 디자인적 무게감을 동시에 가져갈 수 있도록 하였습니다.

정다운 건축가 : 모던한 느낌과 클래식한 느낌을 공존할 수 있도록 설계하였습니다. 한쪽의 스타일로 치우치는 것이 아니라 현 트렌드에 맞게, 또한 각 스타일의 장점만 조합할 수 있도록 디자인을 잡았습니다. 지붕이 집 디자인에 주는 영향력은 상당히 큽니다. 사람도 머리스타일에 따라 분위기가 바뀌듯 집도 똑같습니다. 다른 집들과 조금 다른 느낌을 가져가고 싶다면 외장재가 아닌 지붕 디자인에 노력을 기울이시는 것이 어찌 보면 투자 대비 많은 이득을 얻을 수 있는 방법이기도 합니다.

임성재 건축가 : 현관과 계단실의 코어 부분을 중심이 아닌 좌측으로 몰아 동선의 꼬임을 방지하고, 현관을 진입했을 때 거실, 주방, 안방 라인까지 탁 트인 오픈형 공간을 만들어 줄 수 있도록 평면 구성을 진행했습니다. 많은 분들이 현관은 무조건 가운데에 들어가야 한다고 생각하지만 생각보다 많은 주택들의 현관은 한쪽으로 치우치는 경우가 많습니다. 주차장의 문제일 수도 있으며, 도로 또는 대문과의 연계 때문일 수도 있습니다. 항상 말하듯 설계를 하실 때 고정관념은 버리실 것. 그리고 그동안 살아왔던 아파트의 평면은 잊어버리실 것.


HC029-0118r.jpg
HC029-0119r.jpg
HC029-0120r.jpg
HC029-0121r.jpg
HC029-4742r.jpg
HC029-4746r.jpg
HC029-4752r.jpg
HC029-4755r.jpg
HC029-4758r.jpg
HC029-4760r.jpg
HC029-4763r.jpg
HC029-4764r.jpg
HC029-4766r.jpg
HC029-4767r.jpg
HC029-4775r.jpg
HC029-4779r.jpg
HC029-4781r.jpg
HC029-4784r.jpg
HC029-4785r.jpg
HC029-4786r.jpg
HC029-4792r.jpg
HC029-4795r.jpg
HC029-4797r.jpg
HC029-4798r.jpg
HC029-4799r.jpg
HC029-4802r.jpg
HC029-4807r.jpg
HC029-4808r.jpg
HC029-4810r.jpg
HC029-4817r.jpg
HC029-4819r.jpg
HC029-4821r.jpg
HC029-4824r.jpg
HC029-4826r.jpg
HC029-4830r.jpg
HC029-4832r.jpg
HC029-4836r.jpg
HC029-4837r.jpg
HC029-4840r.jpg
HC029-4842r.jpg
HC029-4845r.jpg
HC029-4848r.jpg
HC029-4854r.jpg
HC029-4857r.jpg
HC029-4858r.jpg
HC029-4860r.jpg
HC029-4861r.jpg
HC029-4862r.jpg
HC029-4864r.jpg
HC029-4865r.jpg
HC029-4868r.jpg
HC029-4869r.jpg
HC029-4872r.jpg
HC029-4875r.jpg
HC029-4877r.jpg
HC029-4879r.jpg
HC029-4880r.jpg
HC029-4883r.jpg
HC029-4886r.jpg
HC029-4887r.jpg
HC029-4888r.jpg
HC029-4891r.jpg
HC029-4894r.jpg
HC029-4896r.jpg
HC029-4898r.jpg
HC029-4899r.jpg
HC029-4902r.jpg
HC029-4903r.jpg
HC029-4905r.jpg
HC029-4906r.jpg
HC029-4910r.jpg
HC029-4913r.jpg
HC029-4914r.jpg
HC029-4922r.jpg
HC029-4926r.jpg
HC029-4930r.jpg
HC029-4933r.jpg
HC029-4936r.jpg
HC029-4938r.jpg
HC029-4946r.jpg
HC029-DJI0115-0524824r.png
HC029-DJI0116-0031031r.png
HC029-4969r.jpg (좌측부터) 정다운 건축가, 이동혁 건축가, 임성재 건축가

집이라는 본질적인 가치를 추구합니다." Design by 홈트리오(주)

홈트리오 로고(화이트).jpg

상담문의 : 1522-4279

강연문의 : sunsutu@hanmail.net

홈페이지 : http://hometrio.kr/



keyword