brunch

70평 홈트리오프리미엄:RC-HT70(전원주택 트렌드)

2020 월간 홈트리오 11월호②

by 이동혁 건축가
KakaoTalk_20200521_090546896.jpg


2020 월간 홈트리오 11월호② - 70평 홈트리오 프리미엄 : RC-HT70(젊은 전원주택 트렌드Ⅲ)


※모든 저작권은 홈트리오(주)에게 있습니다. 최근 무단으로 디자인과 설계 평면도를 복제해 마치 본인들이 한 것인 듯 홍보하는 업체들이 있는데 법적 책임을 물을 수 있다는 점 고지드립니다.


STORY

: 70평이라는 넓고 넉넉한 면적으로 설계한 프리미엄 라인의 고급 주택 사례입니다.

좁은 대지에 오밀조밀하게 공간을 나눈 것이 아닌 각 공간별로 넉넉한 공간을 확보하고 단순히 잠만 자고 나오는 방의 공간이 아닌 그 공간 안에서 다양한 활동을 영위할 수 있는 그러한 공간으로 집을 설계하였습니다.

각 공간별로 막힘없는 느낌의 개방감을 중심으로 설계를 하였으며, 철근콘크리트조의 웅장한 느낌과 묵직한 느낌을 기반으로 ‘ㄷ’ 자형 평면배치가 더욱 빛날 수 있게 계획한 주택입니다.

답답함이 싫고 넓은 공간과 탁 트인 개방감을 중요시하게 생각하시는 건축주님들을 위한 프리미엄 주택이며, 그동안 타 주택에서 느껴보지 못했던 고급스러움을 느낄 수 있는 모델이라 생각합니다.


벽돌이 아닌 타일을 외장재로 선정했을 때 가장 크게 부각되는 부분은 고급스러움입니다. 벽돌은 옛스러운 느낌과 단단한 느낌을 위한 외장재라면, 포세린 타일 등의 무광 타일 외장재는 깔끔하면서 세련된 도시적인 고급스러운 느낌을 주는 외장재라 생각하시면 편합니다. 다만 두께와 생산지, 재질감에 따라 가격이 천차만별 차이나며, 벽돌보다는 비싼 외장재 분류군에 속하기 때문에 예산에 대한 검토 뒤 적용하시는 것이 좋습니다.


철근콘크리트 공법을 적용한 만큼 각 공간 스펜에 대한 제약이 거의 없습니다. 넓고 크고 웅장한 느낌이 들 수 있는 공간설계를 진행하였으며, 오밀조밀한 느낌이 아닌 직선적이고 시원한 느낌의 개방된 공간을 각 영역별로 계획해 주었습니다.


모던 스타일 단독주택을 설계함에 있어서 마감 디테일이 생명이라 할 수 있습니다. 어설프게 조금 튀어나오거나 선과 선이 만나는 면이 부자연스러우면 모던 스타일의 장점을 반감시킬 수밖에 없습니다. 저희들도 설계 때뿐만 아니라 시공 때도 접합되는 면과 선 부분에 많은 디테일을 신경 쓰며, 외부의 이미지가 내부에도 자연스럽게 하나의 느낌처럼 이어질 수 있도록 고려하여 계획합니다.


창문에 대한 문의가 많은데 영구적인 구조체인 알루미늄 바디에 이건창호 브랜드를 기본 적용하고 있습니다. 맞다 틀렸다를 논하기 전에 건축가 입장에서는 가장 확실한 품질이 보장되는 제품을 써야 한다는 것이 저의 지론입니다. 가격이 비싸니까 못쓴다고 하지만 이 부분도 상대성인 것 같습니다.

억 단위의 집을 짓는데 3~4천만 원의 창문 비용이 아까워 저렴한 창문으로 시공한다는 것은 오히려 난방비와 하자를 불러일으키는 일일 뿐입니다. 단열, 창호, 방수 이 세 부분에는 제가 말려도 더 좋고 확실한 브랜드의 자재를 사용하는 것이 추후 10년을 내다보았을 때 미래지향적인 선택일 것이라 생각하실 것입니다.


도심형 프리미엄 단독주택. 디자인 계획에서부터 입면과 내부 공간 구성까지 모두 프리미엄 주택을 위한 방향성을 기준으로 진행한 설계안입니다. 넓고 큰 공간 구성을 원하신다면 이번 주택 사례를 꼼꼼히 살펴보고 여러분들이 지을 집에 요소별로 적용할 수 있는 계기가 되었으면 좋겠습니다.


#프리미엄주택 #70평단독주택 #고급단독주택 #웅장함 #대형단독주택

기획모델..jpg


공법 : 철근콘크리트조

설계, 시공 : 홈트리오(주) / 상담문의 : 1522-4279

지붕마감재 : 평지붕마감 / 외벽 마감재 : 포세린타일 / 포인트자재 : 포세린타일

실내벽마감재 : 도장 마감 / 실내바닥마감재 : 강마루, 폴리싱타일, 포세린타일

창호재 : 이건 알루미늄 3중 시스템창호

건축면적 : 229.88㎡(1층 : 129.72㎡, 2층 : 100.16㎡)

예상 총 건축비 : 525,000,000원(부가세 포함, 산재보험료 포함 / 설계비, 인허가비, 구조계산 설계비 별도)

설계비 : 14,000,000원(부가세 포함) / 인허가비 : 7,000,000원(부가세 포함)

구조계산 설계비 : 7,000,000원(부가세 포함) / 인테리어 설계비 : 7,000,000원(부가세 포함)

*건축비 외 부대비용 : 대지구입비, 가구(싱크대, 신발장, 붙박이장), 기반시설 인입(수도, 전기, 가스 등), 토목공사, 조경비 등


1층.jpg 1층 평면도
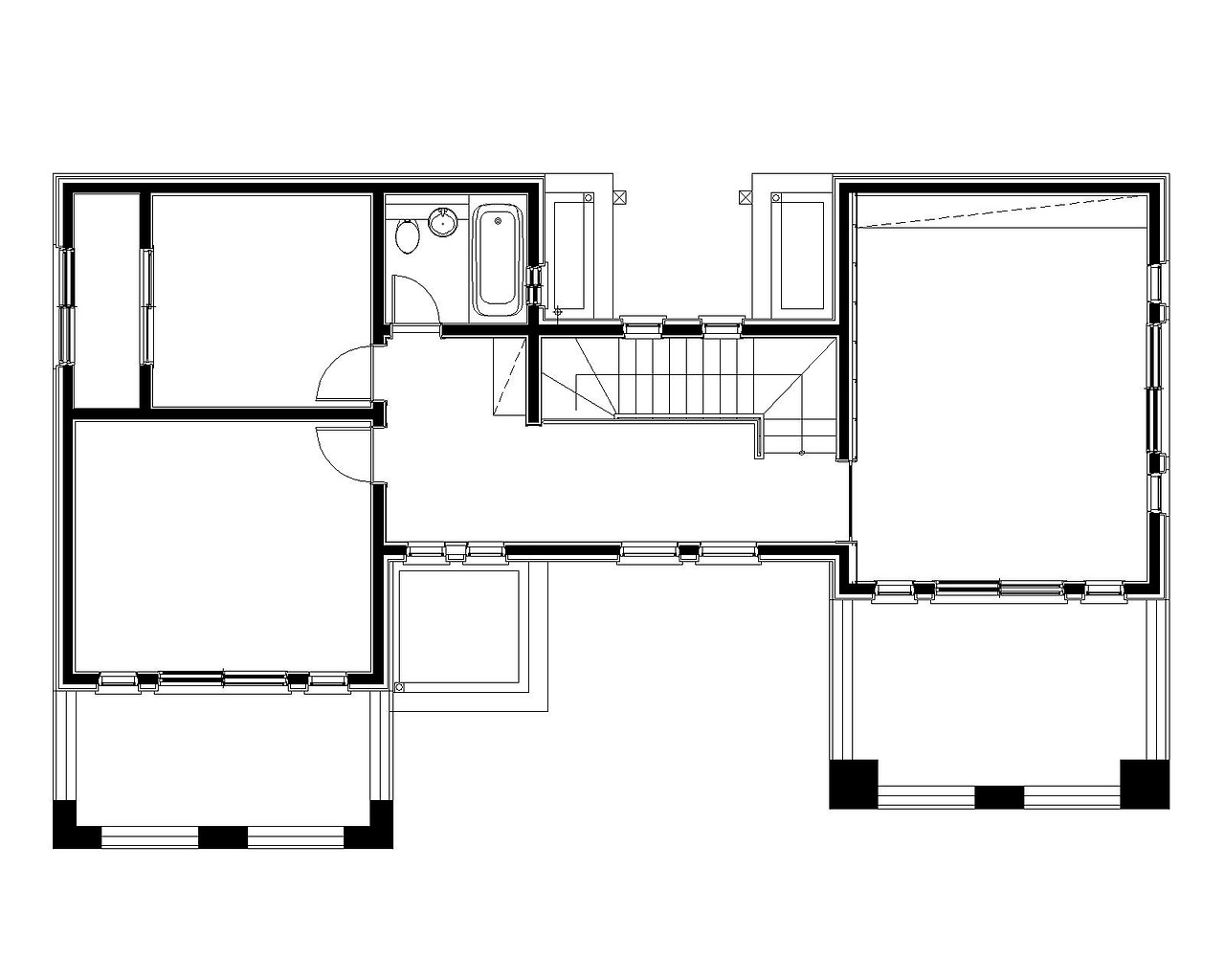
2층.jpg 2층 평면도


이동혁 건축가 : 땅의 크기와 법적기준인 건폐율에 따라 설계 방향도 달라집니다. 도심의 작은 대지에서 설계하는 공간 구성과 100평이 넘어가는 대지에서의 공간 구성은 다를 수밖에 없겠지요. 여러분들도 설계를 하실 때 무조건 이게 좋다고 한쪽으로만 결정할 것이 아니라 내 땅에 맞게 다양한 사례들을 검토해 보시는 것이 좋습니다. 가장 아쉬움이 남는 건축주님들이 누구시냐면 아파트가 편하니까 아파트 설계와 똑같이 해 달라는 분들입니다. 내 땅이 어떻게 생겼는지 상관없이 무조건 평면만을 주장하시는데, 결국에는 원하시는 대로 해 드릴수는 있지만 전문가적 입장에서 봤을 때에는 땅도 많이 낭비되고, 어정쩡한 느낌의 집이 완성될 수밖에 없기 때문입니다.

정다운 건축가 : 프리미엄 고급 주택 라인업 단독주택을 기획하고 설계할 때에는 좁게 공간들을 구성하는 것이 아니라 큼직큼직하게 그리고 답답함이 존재하지 않는 개방적인 공간으로 설계합니다. 60평 이상의 단독주택을 의뢰하시는 분들의 라이프스타일을 살펴보면 좁은 아파트에서 사시는 분들은 거의 없습니다. 이미 대형 평수의 아파트에 살다가 오시는 분들이 많기 때문에 일반적인 공간의 방 사이즈가 아니라 그동안 살아오셨던 환경의 사이즈에 맞게 설계를 진행합니다.

임성재 건축가 : 외장에 대한 부분의 문의가 많으세요. 객관적인 입장에서 설명드리면 정답은 존재하지 않습니다. 그리고 오염되지 않는 자재도 존재하지 않습니다. 어떠한 자재든 오염도는 존재할 수밖에 없고, 다만 눈에 덜 띄느냐 안 띄느냐 정도의 차이일 뿐입니다. 남의 시선을 너무 생각하지 마세요. 여러분이 살고 싶은 집. 그리고 원하는 느낌을 담아내면 그것이 아마 최고의 디자인이고 집일 것이라 생각합니다.


메스1.jpg
메스2.jpg
메스3.jpg
메스4.jpg
기획모델..jpg

eFD--Ti5M7DvyVXHXruNd0cvet4.jpg (좌측부터)정다운 건축가, 이동혁 건축가, 임성재 건축가

[집이라는 본질적인 가치에 집중하다.]

Architecture Team : 홈트리오(주)

대표번호 : 1522-4279

홈페이지 : http://hometrio.kr/

KakaoTalk_20191210_164551850.jpg


KakaoTalk_20200521_090546896.jpg


keyword