5월호①-39평 심플함에 젊음을 더하다

젊은 전원주택 트렌드 3 - 5월호 ①

by 이동혁 건축가
KakaoTalk_20200521_090546896.jpg

스타 건축가 3인방의 집짓기 제안

제목 : 젊은 전원주택 트렌드

-전원주택 3D 투시도, 평면도 34개 사례 수록-


저자 : 이동혁, 임성재, 정다운


5월호 ① - 39평 심플함에 젊음을 더하다


※모든 저작권은 홈트리오(주)에게 있습니다. 최근 무단으로 디자인과 설계 평면도를 복제해 마치 본인들이 한 것인 듯 홍보하는 업체들이 있는데 법적 책임을 물을 수 있다는 점 고지드립니다.


STORY

: 젊은 건축주님의 집. 화려한 느낌보다는 수수한 느낌의 집을 원하셨던 건축주님을 위한 맞춤형 주택이 완성되었습니다. 정갈한 느낌의 외관 디자인에 블랙 도장된 창을 넣어주어 창 자체가 포인트로 인식될 수 있도록 설계하였습니다.


거실 오픈 천장 옵션 적용으로 외관에서 커 보이는 효과를 얻을 수 있었으며, 내부도 39평의 면적이지만 층고를 높여 더욱 개방감 있는 내부 공간을 만들어 주었습니다.


이 집을 설계하면서 첫인상을 무언가 군더더기 없고 심플한 깨끗한 이미지의 집으로 완성시키고 싶다는 생각이 있었습니다. 무언가를 붙이거나 복잡하게 매스를 구성하기보다는 그 자체로서 빛날 수 있는 그러한 집을 떠올리고 설계를 진행했습니다.


요즘 집을 지을 때 가장 많이 듣는 이야기는 단열에 대한 이야기입니다.

"저희 가족은 추위를 많이 타니 따뜻한 집으로 지어주셔야 해요"

"무조건 단열재 두껍게 넣어서 지어주세요"


물론 따뜻한 집 가능합니다. 다만 사람마다 따뜻함의 기준이 다를 뿐입니다.

요즘 건축법의 단열기준은 거의 준패시브급으로 엄청 고단열을 하도록 권장하고 있습니다. 솔직한 말로 벽 때문에 춥지는 않을 거라는 이야기를 종종 합니다. 특히 목조주택의 경우 골조 사이사이에 단열재가 들어가고 실내 벽 부분에도 단열재가 모두 들어가기 때문에 일반 철근콘크리트 주택보다는 단열적인 부분이 높습니다.


그럼에도 불구하고 춥다고 하시는 분들은 단열재가 아닌 창호에 돈을 들이시는 것이 낫습니다. 한 겨울에도 벽에 손을 대고 있으면 엄청 차갑다는 느낌은 존재하지 않습니다. 하지만 창 유리에 손을 대면 엄청 차갑죠. 아무리 시스템 3중 창호라고 해도 결국 유리이기 때문에 열 손실은 발생할 수밖에 없습니다. 그렇다고 창을 작게 하면 전원주택의 매력이 떨어지니 그렇게도 할 수 없고, 결국에는 비싸더라도 좋은 창을 선택하고 로이코팅 한번 할거 두 번 하고, 최고의 경우에는 진공유리까지 사용해서 열 손실을 막아주는 방법밖에는 없는데 문제는 가격이 엄청 비싸다는 것.


너무 이야기를 많이 드렸는데 항상 이야기드리는 것은 내 예산 안에서 정리해 줄 것!!


이 세상에 좋은 자재들이 너무 많고, 예쁜 것도 많고 인터넷만 검색해도 1년에 정말 많은 신제품들이 쏟아지고... 항상 이야기하듯 문제는 싸지 않다는 것.


어떤 분이 그러더라고요. 박람회 갔더니 엄청 좋은 제품이 있는데 이거 왜 안 쓰고 있냐고. 보통 신제품이 현장에 도입되어 검증 단계를 거칠려고 하면 최소 3년이 소요됩니다. 지금 나온 제품이 좋을 수는 있지만 까딱했다가는 건축주님의 집이 그 제품의 테스터가 될 수 있기 때문에 절대로 바로 적용하지 않습니다. 너무 눈에 띄는 제품이 있다고 하더라도 검증이 된 제품, 그리고 시험성적서가 있는 제품을 사용하시길 권해드립니다.


#젊은부부의집 #아름답다 #청초함 #가성비 #눈길가는집

안동-투시도.JPG


공법 : 경량 목구조

설계, 시공 : 홈트리오(주) / 상담문의 : 1522-4279

지붕마감재 : 아스팔트슁글 / 외벽 마감재 : 스타코플렉스 / 포인트자재 : 합성목재

실내벽마감재 : 실크벽지/ 실내바닥마감재 : 강마루

창호재 : 이건 알루미늄 3중 시스템창호

건축면적 : 128.09㎡(1층 : 95.70㎡, 2층 : 32.39㎡)

예상 총 건축비 : 249,700,000원(부가세 포함, 산재보험료 포함 / 설계비, 인허가비, 구조계산 설계비 별도)

설계비 : 5,850,000원(부가세 포함) / 인허가비 : 3,900,000원(부가세 포함)

구조계산 설계비 : 3,900,000원(부가세 포함) / 인테리어 설계비 : 3,900,000원(부가세 포함)

*건축비 외 부대비용 : 대지구입비, 가구(싱크대, 신발장, 붙박이장), 기반시설 인입(수도, 전기, 가스 등), 토목공사, 조경비 등


1층.jpg 1층 평면도
2층.jpg 2층 평면도

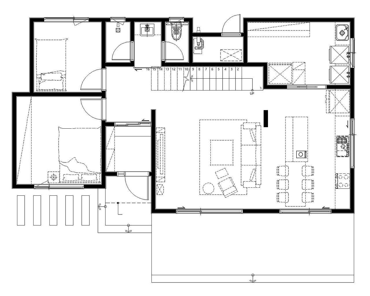
이동혁 건축가 : 이번 주택의 1층 화장실을 보면 독특한 구조로 되어있는 것을 볼 수 있습니다. 샤워장, 세면대, 화장실이 모두 분리된 구조로 공간을 만들어 놓았는데요. 보통 이 구조는 주택에서는 잘 사용하지 않고 호텔이나 리조트 등의 숙박시설에서 많이 사용되던 방식이었습니다. 이 공간배치가 그동안 많이 사용되지 않았던 가장 큰 이유는 면적에 있습니다. 보통 주택 화장실은 콤펙트 하게 구성해서 공간을 줄이는 방식이 많이 적용되는데 이렇게 공간을 구획해서 분할하게 되면 공간이 넓어질 수밖에 없거든요. 하지만 면적이 늘어나는 만큼 장점도 존재하겠지요. 가장 큰 장점은 각 공간을 따로 관리할 수 있다는 점이 있으며, 한 사람만이 점유하는 것이 아닌 각 공간별로 각자의 사람이 동시에 사용할 수 있다는 장점이 존재합니다.

정다운 건축가 : 1층에 방이 두 개 배치된 주택을 오랜만에 보셨을 거예요. 대지의 건폐율 부분 때문에 대부분 주방과 거실 등의 공용공간을 1층에 배치하고 방을 2층에 올리는 것이 일반적인데, 이번 주택은 거의 30평 정도의 공간을 1층에 배치할 수 있어 방을 두 개 넣을 수 있는 공간이 나왔습니다. 이 집은 드레스룸 등의 서브 공간 등은 모두 없애주고 방과 공용공간에 면적을 집중한 집이라고 할 수 있습니다. 맞다 틀렸다를 구분하기보다는 이 집은 건축주님의 라이프스타일에 맞춘 집이라고 생각해주셨으면 좋겠습니다.

임성재 건축가 : 주방 부분의 공간이 압도적으로 넓습니다. 아마 이 평수대의 집 중에 가장 큰 주방 면적을 가졌다고 해도 무방합니다. 주방과 아일랜드 식탁, 그리고 다용도실까지. 일반적인 주방의 면적은 아니고요 정말로 건축주님의 라이프스타일에 맞춘 공간 구성이라고 할 수 있습니다. 몇 개의 냉장고가 들어갈지, 식탁은 몇 인용이 들어갈지, 세탁기는 어떠한 제품을 쓸지 등을 설계 미팅 때 협의하여 그에 맞는 평면을 구성했다고 보시면 될 것 같습니다.

메스1.jpg
메스2.jpg
메스3.jpg
메스4.jpg
안동-투시도.JPG
안동-투시도-야경.JPG

eFD--Ti5M7DvyVXHXruNd0cvet4.jpg (좌측부터)정다운 건축가, 이동혁 건축가, 임성재 건축가

[집이라는 본질적인 가치에 집중하다.]

Architecture Team : 홈트리오(주)

대표번호 : 1522-4279

홈페이지 : http://hometrio.kr/

KakaoTalk_20191210_164551850.jpg


KakaoTalk_20200521_090546896.jpg