5월호②-40평 건강함이 꽃피는 집

젊은 전원주택 트렌드 3 - 5월호 ②

by 이동혁 건축가
KakaoTalk_20200521_090546896.jpg

스타 건축가 3인방의 집짓기 제안

제목 : 젊은 전원주택 트렌드

-전원주택 3D 투시도, 평면도 34개 사례 수록-


저자 : 이동혁, 임성재, 정다운


5월호 ② - 40평 건강함이 꽃피는 집


※모든 저작권은 홈트리오(주)에게 있습니다. 최근 무단으로 디자인과 설계 평면도를 복제해 마치 본인들이 한 것인 듯 홍보하는 업체들이 있는데 법적 책임을 물을 수 있다는 점 고지드립니다.


STORY

: 클래식한 멋이 살아있는 주택. 화려하기보다는 수수한 멋을 자랑하고, 보고만 있어도 마음을 차분하게 가라앉혀주는 집. 오늘 이야기 드릴 집은 그러한 매력을 지닌 집으로서 설계가 되었습니다.


40평의 넉넉한 면적으로 설계한 이번 주택은 안정감 있는 박공지붕에 스타코플렉스의 화이트 마감으로 디자인이 완성되었습니다.

아마 이 집을 처음 보신 분들의 생각은 '친숙하다'일 것입니다. 그동안 홈트리오 사례들을 쭉 검토하셨던 분들이라면 저희들이 가장 좋아하는 스타일이라는 것을 알고 계실 것입니다.


특별하지는 않지만 무덤덤한 느낌의 디자인. 그리고 가성비 최고의 집. 쉽게 말해 단열과 방수는 챙겨가면서 외장재 및 디자인 비용을 최소화 해 정말로 필요한 것만 넣어서 지은 집.

실용주의를 기반으로 설계를 진행하는 저희로서는 저희들에게 맞는 취향저격 집이라고 할 수 있습니다.


화려하게 설계할 수도 있고, 정말로 건축상을 받을 수 있는 집으로도 설계하고 디자인할 수 있습니다. 오히려 화려하게 만들어내는 것이 더 쉽다고 할 수 있습니다.

"왜냐고요?"

"돈 생각하지 않아도 되니까요."


말 그대로 작품을 만들어 내는 것은 돈 적인 제약이 없기 때문에 하고 싶은 것. 좋다고 하는 것을 다 넣을 수가 있거든요. 오히려 한정된 예산안에서 원하는 요소들을 모두 넣어 짜임새 있게 짓는 것이 더 어렵다고 할 수 있습니다.


"여러분들은 어떻게 집을 지어야 할까요?"

답은 이미 정해져 있습니다.

"가진 예산안에서 지으세요!"


집을 지을 때 금액이 올라가는 부위는 정해져 있습니다. 생각보다 인테리어 부분에서는 크게 올라가지 않습니다. 올려봐야 감당할 수 있는 수준 범위에서만 올라갑니다. 세면대나 욕조 등을 좋은 것으로 한다고 해도 100만 원 안쪽이거든요.


문제는 창과 외장재입니다. 창도 기성 제품 사이즈로 설계하면 그나마 괜찮습니다. 하지만 디자인을 한다고 기성 제품 사이즈를 벗어나 주문제작으로 들어가면 장담하는데 2배 이상 무조건 비쌉니다. 그리고 외장재인데요. 외장재는 물론 각 외장재 별로 가진 느낌과 장점은 다릅니다. 확실한 건 붙이면 붙일수록 돈은 들어간다는 것입니다.

정해진 예산안에서 평면은 바꾸기 싫고, 무언가 빼야지만 하는 상황이 놓이시면 전 이렇게 이야기합니다.

"외장재 다 날리시죠"

어쩔 수 없어요. 답은 나와있는데 고민만 할 뿐입니다. 그렇다고 실내면적을 줄인다?

아니죠. 이미 각 공간별로 내가 필요한 면적을 넣어놨는데 면적을 줄이는 것은 제일 최악의 상황에 놓였다는 것이죠.


항상 말하지만 정갈하고 깨끗하게 지으세요.

충분합니다. 단열과 창문만 잘 신경 쓰세요. 그러면 생각보다 만족스러운 집으로 생활 가능하실 것입니다.


#담양전원주택 #40평전원주택 #클래식함 #서재가있어요 #노후를위한집

담양-투시도.JPG

공법 : 경량 목구조

설계, 시공 : 홈트리오(주) / 상담문의 : 1522-4279

지붕마감재 : 아스팔트슁글 / 외벽 마감재 : 스타코플렉스 / 포인트자재 : 파벽돌

실내벽마감재 : 실크벽지/ 실내바닥마감재 : 강마루

창호재 : 이건 알루미늄 3중 시스템창호

건축면적 : 132.76㎡(1층 : 100.69㎡, 2층 : 32.07㎡)

예상 총 건축비 : 245,100,000원(부가세 포함, 산재보험료 포함 / 설계비, 인허가비, 구조계산 설계비 별도)

설계비 : 6,000,000원(부가세 포함) / 인허가비 : 4,000,000원(부가세 포함)

구조계산 설계비 : 4,000,000원(부가세 포함) / 인테리어 설계비 : 4,000,000원(부가세 포함)

*건축비 외 부대비용 : 대지구입비, 가구(싱크대, 신발장, 붙박이장), 기반시설 인입(수도, 전기, 가스 등), 토목공사, 조경비 등


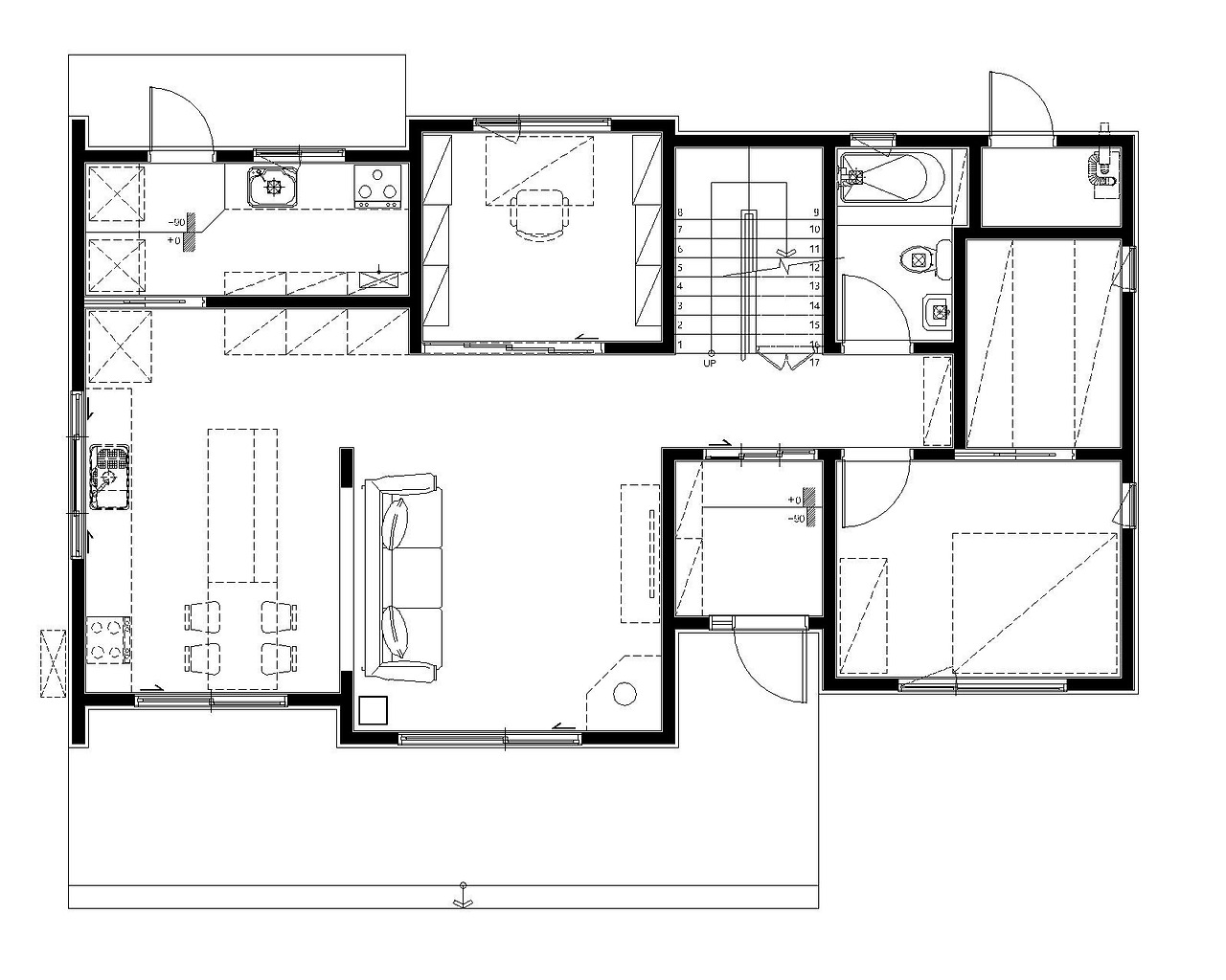
1층.jpg 1층 평면도
2층.jpg 2층 평면도

이동혁 건축가 : 은퇴 후 건축주님 내외분만 지내실 주택을 설계하였습니다. 방은 2개만 만들되, 대신 서재 공간을 별도로 마련하여 책이 많으신 건축주님께 맞춘 1층 공간을 만들어 냈습니다. 대부분의 생활은 1층에서 이루어질 수 있도록 계획하였으며, 2층은 자녀들이 놀러 왔을 때 편히 쉬다 갈 수 있는 공간으로 최소한의 면적으로 구성해 놓았습니다.

정다운 건축가 : 2층의 발코니는 생각보다 관리가 잘 안 되는 부분 중의 하나입니다. 지붕이 덮여있으니 괜찮을 것이라 생각하지만 낙엽부터 시작해서 먼지가 정말 많이 쌓이는 자리이거든요. 또한 생각보다 활용할 수 있는 시간이 그렇게 길지 않습니다. 그래서 봄, 여름, 가을, 겨울 4계절을 모두 활용하실 분들이라면 발코니에 폴딩도어를 설치해 비가 오거나 눈이 올 때는 완전히 차단해 실내 공간처럼 만드는 방법을 고민해 놓으셔야 합니다.

임성재 건축가 : 1층 거실과 주방 사이에 기둥이 하나 박혀 있는 것을 볼 수 있습니다. 많은 분들이 저 기둥 없어도 되지 않느냐라고 물어보시는데 없으면 기둥과 기둥 사이의 보가 쳐질 수밖에 없습니다. 철근콘크리트의 경우에는 기둥 없이 10m 이상을 뻗어나갈 수 있지만 목조의 경우 아무리 길게 뻗어나가도 5m 안쪽입니다. 다시 말해 마감선을 제외하고 4.8m가 최장 길이라고 보시면 되십니다. 그 안쪽으로 무조건 기둥이 박혀야 하며, 없으면 처지기 때문에 이번 주택처럼 거실과 주방의 장스펜 길이가 5미터를 넘어갈 경우 중간에 기둥은 필수로 설치되어야 함을 알려드립니다.


메스1.jpg
메스2.jpg
메스3.jpg
메스4.jpg
담양-투시도.JPG
담양-투시도-야경.jpg

eFD--Ti5M7DvyVXHXruNd0cvet4.jpg (좌측부터)정다운 건축가, 이동혁 건축가, 임성재 건축가

[집이라는 본질적인 가치에 집중하다.]

Architecture Team : 홈트리오(주)

대표번호 : 1522-4279

홈페이지 : http://hometrio.kr/

KakaoTalk_20191210_164551850.jpg


KakaoTalk_20200521_090546896.jpg