5월호③-47평 바닷바람 길 숲길 따라

젊은 전원주택 트렌드 3 - 5월호 ③

by 이동혁 건축가
KakaoTalk_20200521_090546896.jpg

스타 건축가 3인방의 집짓기 제안

제목 : 젊은 전원주택 트렌드

-전원주택 3D 투시도, 평면도 34개 사례 수록-


저자 : 이동혁, 임성재, 정다운


5월호 ③ - 47평 바닷바람 길 숲길 따라


※모든 저작권은 홈트리오(주)에게 있습니다. 최근 무단으로 디자인과 설계 평면도를 복제해 마치 본인들이 한 것인 듯 홍보하는 업체들이 있는데 법적 책임을 물을 수 있다는 점 고지드립니다.


STORY

: 최근 소형 카페 설계 문의가 많이 들어오고 있습니다. 주택이나 상가의 경우 인터넷에 정보들이 그나마 많은데, 카페 건축의 경우 거의 정보가 없죠. 어떻게 시작을 해야 하는지, 어떤 식으로 지어야 하는지, 마지막으로 어떤 식의 느낌으로 완성시킬지 등 하나부터 열까지 모두 궁금한 것 투성입니다.


저희들은 주택만 주로 설계를 했는데요. 이번 강화도 카페 설계를 의뢰받으면서 정말 많은 스터디를 새롭게 한 것 같습니다.

대형 카페 설계의 경우 큰 덩어리의 매스에서 분할하며 공간을 만들어 나가면 되는데, 소형 카페의 경우 오히려 좁은 공간에서 원하는 느낌을 최대한 담아내야 하다 보니 했다가 지우고 그렸다고 버리고... 정말 몇 번을 수정했는지 모르겠습니다.


월간 홈트리오에서 카페 설계를 제안받는 것이 아마 처음이실 거예요. 근린생활시설이라고 하죠. 상가주택의 경우 몇 번 제안을 했었지만 오롯이 카페 설계라니. 어찌 보면 좀 더 새로운 재미있는 제안이지 않을까 싶습니다.


저희에게 문의 들어오는 카페 설계의뢰의 경우 대형 평수보다는 소형평수인 40~60평 사이가 많습니다. 이 평수 대가 대부분이라고 할 수도 있습니다.

문득 소형 카페 건축 및 설계는 인터넷으로 검토가 가능할까(?)라는 물음이 들어 검색을 해 봤는데요. 생각보다 자료가 없더라고요. 전원주택의 경우에도 건축비를 오픈한 회사가 거의 저희가 유일한데 카페의 경우 전원주택보다 더 자료가 없는 상황이었습니다.

이번 카페 설계 사례를 기반으로 카페 건축도 더 투명하게 오픈되는 시장이 형성되길 바라봅니다.


이번 카페 설계는 강화도에 실제로 지어질 건축물입니다. 강화도의 탁 트인 바다 풍경과 시원하게 불어오는 상쾌한 바람을 맞을 수 있는 곳. 그곳에서 향긋한 커피 한잔과 함께하는 힐링 라이프. 생각만으로도 기분이 좋아지네요.


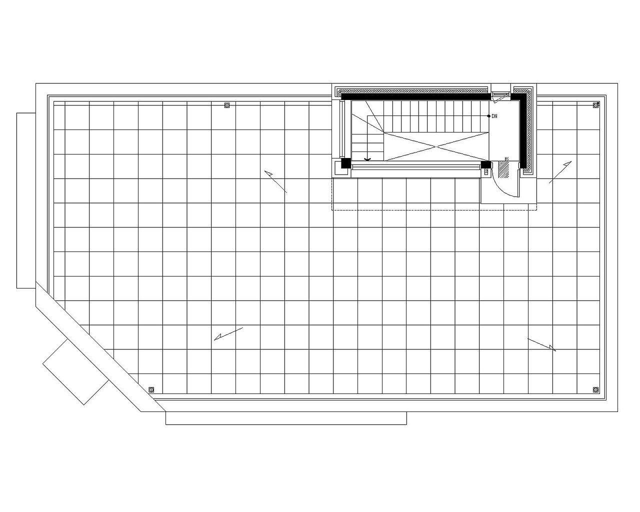
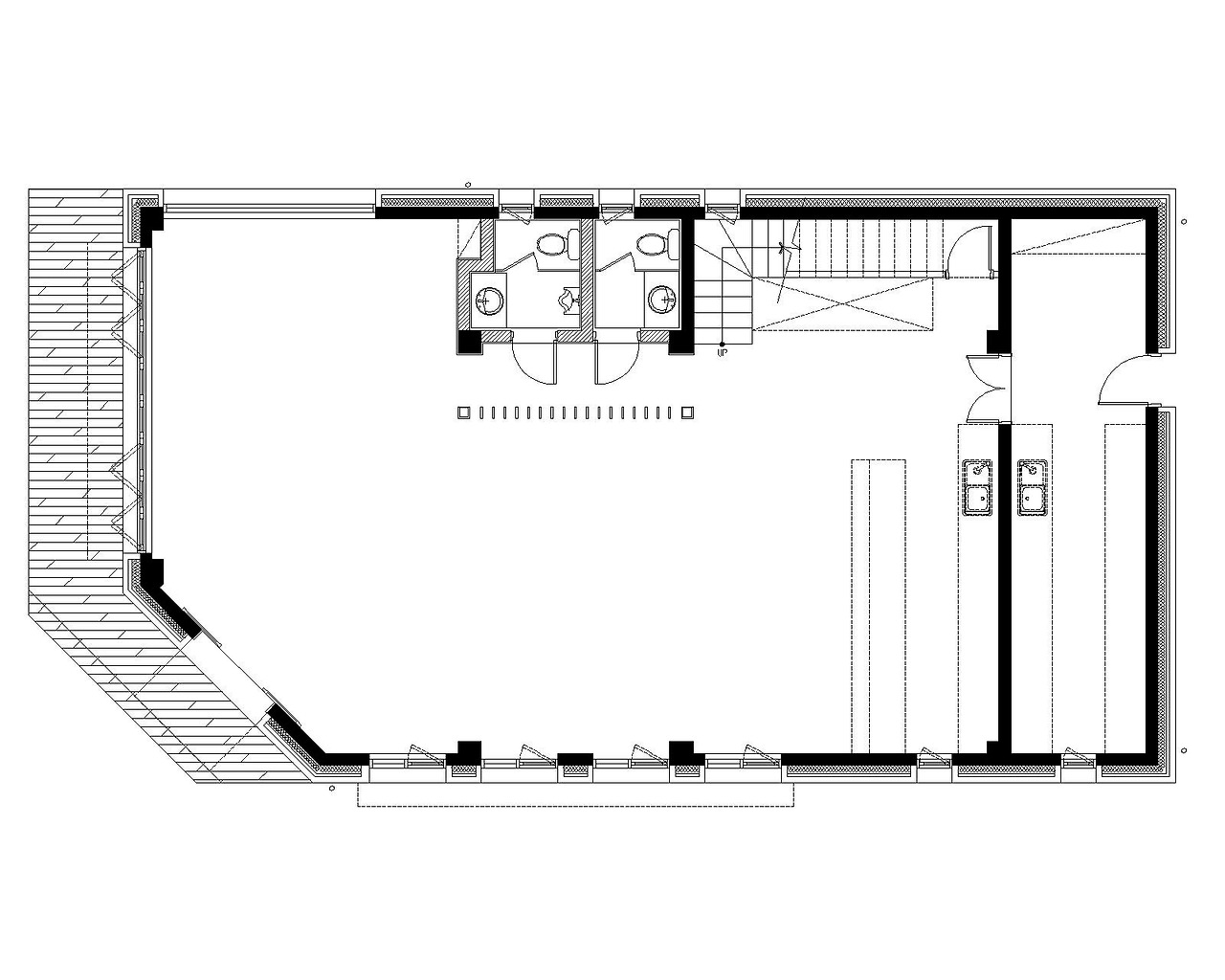
단층 카페로 설계를 진행했으며, 1층 47평의 면적으로 단층 카페로 계획했습니다. 소형 카페 면적에 들어가며, 부족한 면적을 채우기 위해 옥상 루프탑을 이용할 수 있도록 동선계획을 진행했습니다.

고벽돌을 치장 쌓기로 마감하여 전체적인 느낌을 잡아주었으며, 징크를 포인트로 적용해 클래식함과 젊은 느낌의 트렌디함이 공존할 수 있도록 하였습니다.


공간 구성은 간단합니다. 많은 벽을 세우기보다는 주방과 카운터를 제외하고는 모두 오픈된 공간으로 만들고자 했으며, 추후 인테리어에서 원하는 방향성대로 꾸밀 수 있도록 그 자리를 비워두었습니다.

실내는 배관과 배선 라인까지만 시공에 포함되어 있으며, 바닥, 천장, 조명 등의 내부 마감은 모두 제외되어있음을 알려드립니다.


#강화도카페 #바닷가풍경 #아름다운카페 #카페건축 #카페는이렇게지으세요

강화덕화리-근생.jpg

공법 : 철근콘크리트(RC)

설계, 시공 : 홈트리오(주) / 상담문의 : 1522-4279

지붕마감재 : 평지붕 마감, 리얼징크 / 외벽 마감재 : 고벽돌(치장 쌓기) / 포인트 자재 : 리얼징크(0.7T)

실내 벽 마감재 , 실내 바닥마감재 : 미포함 / *인테리어 비용의 경우 미포함되어있습니다.

창호재 : 이건 알루미늄 3중 시스템창호

건축면적 : 154.53㎡(1층 : 154.53㎡)

예상 총 건축비 : 266,000,000원(부가세 포함, 산재보험료 포함 / 설계비, 인허가비, 구조계산 설계비 별도)

*인테리어 비용이 빠진 순수 건축비용입니다.

설계비 : 9,400,000원(부가세 포함) / 인허가비 : 4,700,000원(부가세 포함)

구조계산 설계비 : 4,700,000원(부가세 포함) / 인테리어 설계비 : 0

*건축비 외 부대비용 : 대지구입비, 가구(싱크대, 신발장, 붙박이장), 기반시설 인입(수도, 전기, 가스 등), 토목공사, 조경비 등

*카페 건축의 경우 인테리어 부분이 차지하는 디자인적 영향이 크므로 설계 진행 시 순수 건축만 우선 진행하며, 인테리어는 별도의 미팅을 통해 디자인 설계를 진행하여 비용을 산정합니다.

1층 평면도.jpg 1층 평면도
옥상 평면도.jpg 옥상 평면도


이동혁 건축가 : 대형 카페 설계는 많이 보셨을 거예요. 하지만 이번 사례처럼 40평형대의 소형 카페의 경우 인터넷 사례로 보기 힘들으셨을 거예요. 집도 소형화되고 있는 만큼 카페 건축도 소형화가 트렌드로 자리 잡고 있는데요. 그 트렌드에 맞는 카페 설계를 제안했다고 생각해주셨으면 좋겠습니다. 카페 설계는 복잡하게 구성하는 것이 아닌 주방을 제외하고는 최대한 오픈된 공간을 만들어 내는 것이 주요합니다. 수익성 건물인 만큼 너무 낭비되는 데드 스페이스를 만들지 않고 오롯이 모든 공간을 활용할 수 있도록 설계하는 것이 좋습니다.

정다운 건축가 : 단층 카페를 설계하면서 옥상에 대한 활용성을 처음부터 고려하였습니다. 주택의 경우 유지관리 측면과 누수 때문에 무조건 지붕을 덮으라고 하는데요. 카페 설계의 경우 더 많은 손님을 받아야 하는 건축물이고 수익성 건물이기 때문에 공법을 철근콘크리트조로 한 후 옥상방수를 통해 최대한 옥상의 모든 공간을 사용할 수 있도록 설계합니다. 옥상이 경우 단순히 방수만 하고 끝나는 것이 아닌 사람이 밟고 다니는 부위인 만큼 방수 위에 타일 등의 별도 추가 마감을 진행하시는 것이 좋습니다.

임성재 건축가 : 카페 설계는 평면, 골조, 창문, 외장재 까지는 선 진행하며, 인테리어 부분의 경우 건축설계에서 잡는 것이 아닌 별도의 인테리어 미팅을 통해 진행합니다. 그 이유는 간단합니다. 카페의 경우 인테리어가 주는 느낌과 그 콘셉트에 따라 카페의 마케팅 방향성이 정해지는 만큼 대충 하는 것이 아닌 엄청 디테일하게 인테리어를 진행해야 하기 때문입니다. 오늘 제시하는 설계안도 건축 부분까지만 제안드리는 것이며, 인테리어 부분은 제외되어 있습니다.

메스1.jpg
메스2.jpg
메스3.jpg
메스4.jpg
강화덕화리-근생.jpg

eFD--Ti5M7DvyVXHXruNd0cvet4.jpg (좌측부터)정다운 건축가, 이동혁 건축가, 임성재 건축가

[집이라는 본질적인 가치에 집중하다.]

Architecture Team : 홈트리오(주)

대표번호 : 1522-4279

홈페이지 : http://hometrio.kr/

KakaoTalk_20191210_164551850.jpg


KakaoTalk_20200521_090546896.jpg