12월호①-196평 의왕백운밸리 다가구주택 프로젝트

젊은 전원주택 트렌드 3 - 12월호 ①

by 이동혁 건축가
KakaoTalk_20200521_090546896.jpg

스타 건축가 3인방의 집짓기 제안

제목 : 젊은 전원주택 트렌드

-전원주택 3D 투시도, 평면도 34개 사례 수록-


저자 : 이동혁, 임성재, 정다운


12월호 ① - 196평 의왕백운밸리 다가구주택 프로젝트 ver.1


※모든 저작권은 홈트리오(주)에게 있습니다. 최근 무단으로 디자인과 설계 평면도를 복제해 마치 본인들이 한 것인 듯 홍보하는 업체들이 있는데 법적 책임을 물을 수 있다는 점 고지드립니다.


STORY

: 월간 홈트리오 12월호 첫 번째 모델은 전원주택이 아닌 다가구 주택입니다. 그동안 보아왔던 단층 및 2층의 주택 구성이 아니라 총 5가구가 거주할 수 있는 모델로 설계가 진행되었습니다.


홈트리오에서 진행한 첫 다가구 주택 설계라는 것에 의미가 있으며, 단순 수익성 모델을 벗어나 유니크한 디자인이 돋보이는 주택으로 설계가 진행되었습니다. 이 자리를 빌려 끝까지 저희를 믿고 주택을 맡겨주신 건축주님께 감사인사를 전합니다.


이번 주택 설계는 경기도 의왕시 학의동 의왕백운밸리 단독주택 필지에 지어질 다가구주택 설계 프로젝트입니다. 일반적인 느낌의 다가구주택이 아닌 모던하면서 이 지역의 랜드마크적인 존재로서 빛날 수 있게 설계가 진행되었습니다.

그레이톤 모노롱타일을 베이스 외장재로 선정하여 깔끔하면서 모던한 느낌의 젊은 감각을 넣어주고자 노력했으며, 다양한 창문 디자인을 통해 획일적인 건물 이미지가 아닌 유니크한 입면을 탄생시키고자 노력하였습니다.

총 5가구가 들어가는 설계 사례로 2, 3층은 세를 주는 4가구로 구성하였으며, 4층은 온전히 건축주님이 거주할 수 있는 공간으로 설계하였습니다.

유니크한 입면과 개성 강한 평면구성으로 의왕백운밸리 단독주택 필지 내에서 독보적인 존재감을 뽐낼 것이라 기대합니다.


다가구주택을 우리들은 흔희 '집장사들이 짓는 빌라'라고들 합니다. 그래서 설계비를 들이는 것에 야박하며, 왜 그 돈을 들여 설계해서 지어야 하는지 이해를 못 하십니다. 건축가들인 저희들은 다가구 주택의 현재 시장과 어떻게 구성이 되어있는지 등을 너무 잘 알고 있기 때문에 건축주님들이 하는 이야기들을 너무 잘 이해하고 있습니다.


다만 다가구 주택이라고 해서 다 같은 설계와 시공이라고 생각 안 하셨으면 좋겠습니다. 획일적인 설계도로 집을 지어 분양하는 것이 아닌 건축주 본인이 직접 거주하며 가꾸어 나갈 수 있는 집으로서, 그리고 이 지역을 대표하는 랜드마크적인 주택 모델로서 탄생시키고자 합니다.


집은 거주하는 사람으로 하여금 삶의 질을 높여주는 매개체라고 생각합니다. 단순한 집, 그 이상을 넘어 밝은 느낌을 항시 줄 수 있는 포근하면서 멋진 공간으로 인식되고자 합니다. 창문을 열면 앞 집의 벽이 보이는 것이 아닌 모든 세대에서 남향의 햇볕을 받을 수 있으며, 남과 북으로 환기 통로를 복도라는 공간으로 연결시켜주어 맑은 공기가 집안을 감싸 안을 수 있도록 계획하였습니다.


이 집은 모든 창을 이건창호 브랜드의 알루미늄 3중 시스템창호로 적용하였습니다. 단열적인 면에서는 최고 수준으로 창호를 맞추었으며, 외단열도 '가' 등급 단열재로 법적기준보다 높게 구성하여 설계하였습니다. 여름에는 시원하고 겨울에는 따뜻한 집. 이번 다가구 주택은 다방면에서 매력을 듬뿍 품고 태어난, 의왕백운밸리 내에서 랜드마크적인 건물로 빛날 수 있는 그러한 건물로 탄생할 것이라 의심치 않습니다.


#의왕백운밸리 #의왕시다가구주택 #고급빌라 #고급타운하우스 #모던스타일

의왕-투시도.JPG

공법 : 철근콘크리트

설계, 시공 : 홈트리오(주) / 상담문의 : 1522-4279

지붕마감재 : 리얼징크, 평지붕마감(옥상활용) / 외벽 마감재 : 모노롱타일, 노출콘크리트마감 / 포인트자재 : 모노롱타일

실내벽마감재 : 실크벽지, 도장마감 / 실내바닥마감재 : 이건 강마루

창호재 : 이건 알루미늄 3중 시스템창호

건축면적 : 647.31㎡(1층 : 19.73㎡, 2층 : 198.81㎡, 3층 : 198.81㎡, 4층 : 188.56㎡, 옥상 : 41.4㎡)

예상 총 건축비 : 1,392,000,000원(부가세 포함, 산재보험료 포함 / 설계비, 인허가비, 구조계산 설계비 별도)

설계비 : 39,200,000원(부가세 포함) / 인허가비 : 19,600,000원(부가세 포함)

구조계산 설계비 : 19,600,000원(부가세 포함) / 인테리어 설계비 : 19,600,000원(부가세 포함)

*건축비 외 부대비용 : 대지구입비, 가구(싱크대, 신발장, 붙박이장), 기반시설 인입(수도, 전기, 가스 등), 토목공사, 조경비 등

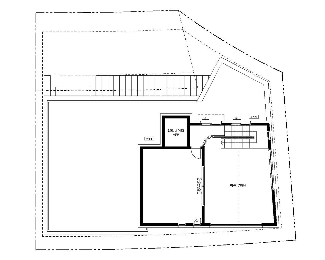
1층.jpg 1층 평면도
2층.jpg 2층 평면도
3층.jpg 3층 평면도
4층.jpg 4층 평면도
옥상.jpg 옥상 평면도

이동혁 건축가 : 홈트리오에서 첫 설계한 프리미엄 디자인 다가구 주택 설계 안입니다. 최종 입면은 조금 변경되었지만 의왕백운밸리 내 최고의 랜드마크가 될 것임을 의심치 않습니다. 일반적인 다가구 주택의 이미지를 벗어나 유니크하면서 모던한 젊은 트렌디한 느낌을 입면에 입혀주고자 노력하였습니다. 최대한의 공간을 세대 공간으로 확보하면서도 창문 디자인과 매스 디자인을 통해 일반적이지 않은 주택을 탄생시켰습니다.

정다운 건축가 : 총 5가구가 입주할 수 있는 평면을 설계하였습니다. 2층과 3층은 각 층별로 2가구씩 총 4가구가 세를 들어갈 수 있으며, 4층과 옥상층에 넓은 면적으로 건축주님 세대가 거주할 수 있도록 계획하였습니다. 마당이 없는 관계로 옥상을 루프탑 정원처럼 활용할 수 있도록 공간을 만들어 놓았습니다.

임성재 건축가 : 입면 창문 디자인을 진행할 때 너무 어지럽지 않으면서 밸런스 있는 느낌을 입혀주고자 고민을 많이 했습니다. 정면분의 창문을 일정한 패턴 형식으로 구성을 잡아준 뒤 나머지 3면은 각 실에 맞는 사이즈와 외부에서 보았을 때 너무 이질적인 느낌이 들지 않도록 세심하게 계획을 진행하였습니다. 아마 다가구 주택 사례 중 가장 밝고 개방감 있는 주택 설계 사례가 되지 않을까 생각합니다.

메스1.jpg
메스2.jpg
메스3.jpg
메스4.jpg
의왕-투시도.JPG
의왕-투시도-야경.jpg

eFD--Ti5M7DvyVXHXruNd0cvet4.jpg (좌측부터)정다운 건축가, 이동혁 건축가, 임성재 건축가

[집이라는 본질적인 가치에 집중하다.]

Architecture Team : 홈트리오(주)

대표번호 : 1522-4279

홈페이지 : http://hometrio.kr/

KakaoTalk_20191210_164551850.jpg


KakaoTalk_20200521_090546896.jpg