12월호②-42평 행복하우스 : 세종시 고운동 전원주택

젊은 전원주택 트렌드 3 - 12월호 ②

by 이동혁 건축가
KakaoTalk_20200521_090546896.jpg

스타 건축가 3인방의 집짓기 제안

제목 : 젊은 전원주택 트렌드

-전원주택 3D 투시도, 평면도 34개 사례 수록-


저자 : 이동혁, 임성재, 정다운


12월호 ② - 42평 행복하우스 : 세종시 고운동 전원주택 프로젝트


※모든 저작권은 홈트리오(주)에게 있습니다. 최근 무단으로 디자인과 설계 평면도를 복제해 마치 본인들이 한 것인 듯 홍보하는 업체들이 있는데 법적 책임을 물을 수 있다는 점 고지드립니다.


STORY

: 세종시 고운동에 지어질 이번 주택 모델은 행복하우스라는 프로젝트 명을 가지고 태어난 단독주택입니다.

단열과 방수는 최고로, 그리고 아낄 수 있는 디자인적 부분에서는 최대한으로 가성비 있게 입면 디자인하면서 실용주의와 가성비라는 키워드를 상징할 수 있는 주택으로 완성되었습니다.


가등급 단열재와 이건 알루미늄 3중 시스템 창호를 모든 창에 적용하여 단열적인 면에서는 양보하지 않는 주택이며, 스타코플렉스 베이스에 안정감 있는 박공 주택 설계로 팔방미인의 얼굴을 가진 주택으로 탄생되었습니다.


건축가들마다 설계를 하면서 추구하는 방향들이 뚜렷합니다. 저희들은 가성비와 실용주의 쪽에 초점을 맞춰 설계를 진행합니다. 단어가 어려울 수는 있지만 쉽게 풀이하면 아낄 수 있는 부분에서는 확실히 아껴주고 써야 할 부분이 집중 투자해 따뜻하고 안전한 집을 짓는 것을 추구합니다.


돈이 많다면 얼마든지 비싸고 좋은 자재들만 선정하여 시공하면 된답니다. 하지만 우리의 현실은 넉넉하지는 않죠. 현실과 이상과의 타협점을 찾아야 하며, 무조건 내 마음에 드는 자재와 브랜드를 사용해지을 수는 없을 것입니다. 그것이 가능하다면 돈이 정말 무진장 많다는 것이겠지요.


집을 설계하면서 집중할 부위와 조금은 덜 신경 써도 되는 부위를 스스로 결정하셔야 합니다. 정해진 예산안에서 건축비라는 절댓값은 올가라면 올라갔지 내려가지는 않을 것입니다. 또한 발품을 판단하여 정해진 시장단가가 크게 내려가지도 않습니다. 그렇다면 결론은 내가 정말로 이 많은 항목 중에서 필요한 것에 좀 더 돈을 투자하고 그렇지 않아도 되는 부분에서는 비용을 세이브시켜 진행하는 방법밖에는 없다는 것을 아시게 될 것입니다.


이번 주택은 세종시 고운동 단독주택 필지 내에 지어질 주택입니다. 젊은 건축주님이 거주하시는 주택 라이프스타일에 맞추어 크게 부담되지 않는 예산 선에서 설계를 마무리 지었으며, 유지관리 측면과 단열, 방수 등 부분에 비용을 집중 투자하고 외장재 부분에서 조금 욕심을 덜어내 가성비 있는 주택을 완성시켰습니다.


소형주택을 설계할 때에는 어설프게 공간을 구분할 것이 아니라 공용공간에서 확실한 오픈스페이스를 주는 것이 주요합니다. 가끔 일본식 주택을 좋아해서 현관에 진입하자마자 벽이 있고 시각적으로 프라이빗하게 만든다고 이것저것 구성하는 분들이 계신데, 분명 후회하실 거예요. 한국의 주택 라이프사이클은 거실과 주방을 중심으로 돕니다. 거실과 주방은 절대 프라이빗한 공간이 아닙니다. 어설프게 가릴 것이 아니라 확실하게 트여주고 채광을 유리하게 설계하는 것이 좋습니다.


프라이빗한 공간은 잠을 자는 안방과 침실 공간들입니다. 이 공간들은 조금 가려주고 층간 분리를 통해 독립적인 영역을 확보해 주셔도 괜찮습니다.


가성비 있는 주택을 꿈꾸시나요? 어디에 집중하고 어떻게 디자인을 해서 내가 원하는 예산 범위 안에서 집을 지을지 오늘 내용을 보시면서 고민해 보시면 좋을 듯합니다.


#세종시고운동 #세종시단독주택 #고운동단독주택 #모던스타일 #세종시예쁜집

세종-투시도.JPG

공법 : 경량목구조

설계, 시공 : 홈트리오(주) / 상담문의 : 1522-4279

지붕마감재 : 아스팔트슁글 / 외벽 마감재 : 스타코플렉스 / 포인트자재 : 파벽돌

실내벽마감재 : 실크벽지 / 실내바닥마감재 : 이건 강마루

창호재 : 이건 알루미늄 3중 시스템창호

건축면적 : 139.74㎡(1층 : 88.10㎡, 2층 : 51.64㎡)

예상 총 건축비 : 277,200,000원(부가세 포함, 산재보험료 포함 / 설계비, 인허가비, 구조계산 설계비 별도)

설계비 : 6,300,000원(부가세 포함) / 인허가비 : 4,200,000원(부가세 포함)

구조계산 설계비 : 4,200,000원(부가세 포함) / 인테리어 설계비 : 4,200,000원(부가세 포함)

*건축비 외 부대비용 : 대지구입비, 가구(싱크대, 신발장, 붙박이장), 기반시설 인입(수도, 전기, 가스 등), 토목공사, 조경비 등


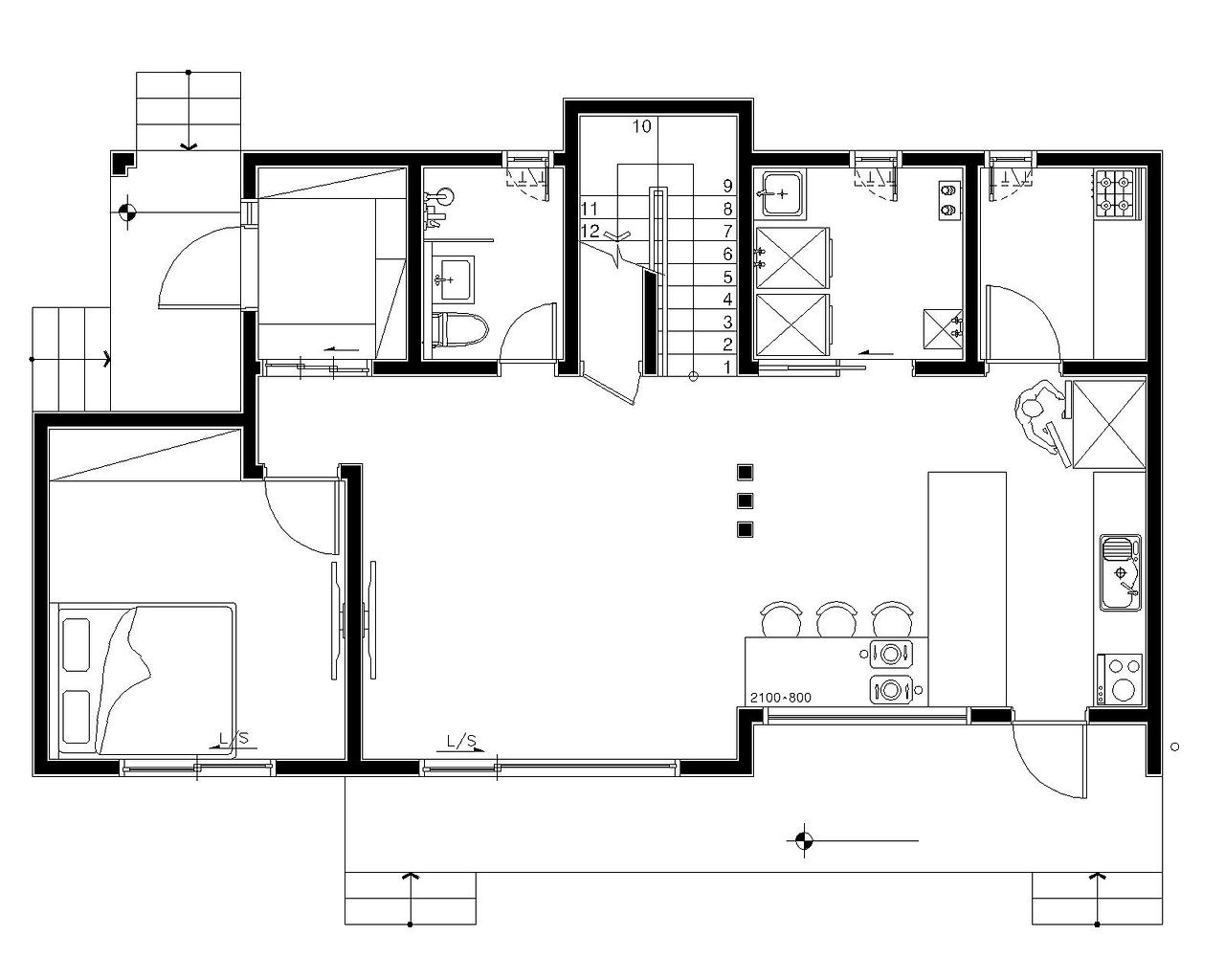
1층.jpg 1층 평면도
2층.jpg 2층 평면도

이동혁 건축가 : 북쪽으로 도로가 나 있는 경우 무리하게 현관을 중앙으로 가져오지 않아도 됩니다. 이번 주택처럼 남향을 앞마당으로 두고 도로를 북쪽으로 둔 땅이라면 뒤편 주차장 라인에서 바로 진입할 수 있는 측면 현관을 고려하는 것이 좋습니다. 현관 진입 후 거실과 주방까지 이어지는 탁 트인 공간에서 압도적인 개방감을 느낄 수 있으며, 크지 않은 평수 대지만 거실이라는 공간과 주방, 식당이라는 공간을 하나의 공간으로 인지되게 설계해 준다면 답답함 없는 내부 공간을 완성시킬 수 있습니다.

정다운 건축가 : 현관을 기본 사이즈보다 0.5평 정도 더 할애해 줄 수 있다면 좀 더 쾌적한 현관 공간을 만날 수 있습니다. 생각보다 많은 분들이 현관은 좁게 해도 된다고 생각하지만 어찌 보면 이 집을 들어올 때 가장 먼저 만나는 공간입니다. 다시 말해 집의 분위기를 충분히 좌지우지할 수 있는 공간인 것이죠. 조금 더 공간을 할애해 주고 간접 조명 및 가구 등으로 포인트를 준다면 현관이라는 공간이 단순히 지나가는 공간이 아닌 집의 첫인상을 결정하는 중요한 공간으로 변모할 수 있답니다.

임성재 건축가 : 지붕에 대한 논란이 많은 것으로 알고 있습니다. 목조주택은 옥상은 절대 불가. 그리고 경사 지붕을 통한 물매 구간 확실히 주고, 처마 공간을 확실히 만들어 집이 숨을 쉴 수 있는 벤트 공간을 만들어야 한다는 것. 디자인 이전에 집에 문제가 발생될 수 있는 요지들은 시공에서 잡을 것이 아니라 애초에 설계 때부터 잘해야 합니다. 시공 백날 잘해봤자 설계가 엉망이면 시공자의 기술이 아무리 뛰어나도 집 엉망으로 지어집니다. 너무 디자인적 방향으로 갈 것이 아니라 집의 기본을 지키면서 설계를 하고 디자인을 만들어 나가길 바라겠습니다.

메스1.jpg
메스2.jpg
메스3.jpg
메스4.jpg
세종-투시도.JPG

eFD--Ti5M7DvyVXHXruNd0cvet4.jpg (좌측부터)정다운 건축가, 이동혁 건축가, 임성재 건축가

[집이라는 본질적인 가치에 집중하다.]

Architecture Team : 홈트리오(주)

대표번호 : 1522-4279

홈페이지 : http://hometrio.kr/

KakaoTalk_20191210_164551850.jpg


KakaoTalk_20200521_090546896.jpg