02-07화. 아이에게 다락방을 선물하다

PART 02-07화. 용인 44평 2층 전원주택

by 이동혁 건축가
KakaoTalk_20200521_090546896.jpg

제목 : 나의 첫 번째 전원주택 짓기

-전원주택 20개의 이야기를 담아내다-


저자 : 이동혁, 임성재, 정다운


PART 02. 나의 첫 번째 전원주택 짓기 20개의 스토리


07화. 아이에게 다락방을 선물하다 : 용인 44평 2층 전원주택

HC006-0101.jpg

SPEC

공법 : 경량 목구조

설계, 시공 : 홈트리오(주) / 상담문의 : 1522-4279

지붕마감재 : 리얼징크 / 외벽 마감재 : 스타코플렉스 / 포인트자재 : 리얼징크, 루나우드, 세라믹사이딩

실내벽마감재 : 실크벽지 / 실내바닥마감재 : 강마루

창호재 : PVC 3중 시스템창호

건축면적 : 144.85㎡(1층 : 57.20㎡, 2층 : 53.52㎡, 다락 : 34.13) *지하주차장 제외

예상 총 건축비 : 286,200,000원(부가세 포함, 산재보험료 포함 / 설계비, 인허가비, 구조계산 설계비 별도)

설계비 : 6,600,000원(부가세 포함) / 인허가비 : 4,400,000원(부가세 포함)

구조계산 설계비 : 4,400,000원(부가세 포함) / 인테리어 설계비 : 4,400,000원(부가세 포함)

*건축비 외 부대비용 : 대지구입비, 가구(싱크대, 신발장, 붙박이장), 기반시설 인입(수도, 전기, 가스 등), 토목공사, 조경비 등


KEYWORD#

: 다락방, 모던하우스, 도심형주택, 예쁜단독주택, 스킵플로어설계


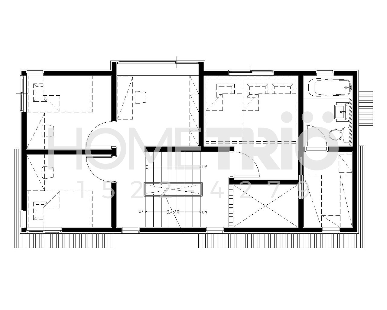
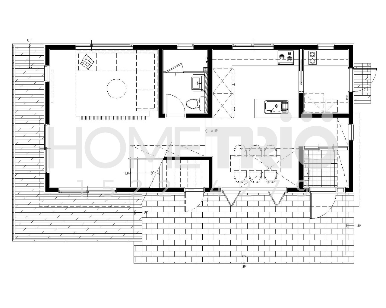
FLOOR PLAN

1층-워터마크.jpg 1층 평면도
2층-워터마크.jpg 2층 평면도
다락-워터마크.jpg 다락 평면도


ARCHITECTURE STORY

: 아파트에 없는 공간을 아이에게 선물한다는 것. 전원주택을 꿈꾸는 모든 분들이 가장 원하는 집의 이미지는 아파트를 벗어나 넓고 쾌적하며, 우리 가족에게 딱 맞춘 그러한 집일 것입니다.

간혹 전원생활을 위해 집을 짓는데 아파트가 편했다면서 향과 배치에 상관없이 아파트 평면을 그대로 가져와서 집을 지으시려고 하시는 분들이 계세요. 마음은 이해하지만 절대로 그렇게 하시면 안 되십니다.

아파트의 설계 시작점과 전원주택의 설계 시작점은 완전히 다릅니다. '어디에 중점을 둘 것인가?'에서부터 이견이 다르며, 전원주택은 오롯이 내 가족만을 위한 공간을 설계한다고 생각하시는 것이 좋습니다.


도심형 전원주택의 경우 땅을 개발한 후 분할해서 분양하는 경우들이 많습니다. 기반시설이 들어와 있고, 반듯하게 잘려서 정말로 집만 원하는 대로 앉히면 내가 살 집이 완성되는 그러한 시스템을 가지고 있습니다. 다만 편리성을 미리 만들어 놓았으니 땅 값이 저렴할리 만무하죠. 그렇다고 너무 외진 곳에 집을 짓게 되면 땅값은 쌀지 몰라도 나머지 부대비용이 훨씬 많이 들어가니 지금 말씀드린 이러한 부분들을 잘 비교해서 최종 땅을 결정하시길 바랍니다. 건축은 설계단계에서 원하는 만큼 수정이 가능하지만 한번 구매한 땅은 수정하거나 되돌리는 것이 불가능에 가까우니 꼭 땅 선정을 주의 깊게 하셔야 합니다.


이번 주택을 설계하면서 독특한 설계기법을 적용하였습니다. 작은 땅에 최대한의 마당을 확보하면서 기존의 주택들과는 조금 특색 있는 공간을 만들어 내기 위해 '스킵플로어'라는 설계기법을 적용하였습니다. 이 기법은 협소 주택에서 주로 사용하던 기법인데 벽으로서 공간을 구분하는 것이 아닌 층별로 공간을 구분하는 것에 그 특징이 있습니다.


현관으로 진입하면 주방 공간이 처음 우리들을 맞이하며, 두 계단 정도 올라가서 거실이 형성되는 구성을 진행하였습니다. 두 개의 계단이지만 확실할 시각적 공간 분리가 되며, 벽이나 문이 없더라도 각 공간의 영역성이 자연스럽게 형성됩니다.


거실에서 반층을 더 올라가면 안방 공간과 메인 화장실 공간이 존재하며, 다시 반층을 올라가면 자녀방이 구성되는 형태로 공간설계를 진행하였습니다.


이 집의 매력포인트는 다락방일 것입니다. 자녀방에서 반층을 더 올라가면 다락방이 존재하며, 어른들은 높이 때문에 사용하기 어렵겠지만 자녀들은 충분히 취미 및 놀이방으로 활용 가능합니다.


집 외부 디자인을 진행하면서 간결한 느낌을 넣어주고자 많이 노력하였습니다. 너무 과장되게 구성하는 것이 아닌 창문과 기본적인 포인트만으로 최대한 비워내고 말 그대로 포인트 정도 넣는 선에서 디자인 안을 정리했습니다. 지붕 디자인이 조금 독특한데 박공지붕 디자인을 기본으로 사선 방향으로 틀었습니다. 다락방을 구성하기 위해 층고를 맞추다 보니 자연스럽게 구성된 형태이며, 이 자체가 외부에서 보았을 때에는 좀 더 유니크한 느낌을 느끼게 해 주었습니다.


주택에서 실내공간보다 더 중요한 공간이 앞마당 공간입니다. 'ㄱ'자형이나 'ㄷ'자형도 좋지만 최대한의 마당을 확보할 수 있는 공간배치는 땅 끝에 붙여 직사각형 형태로 평면을 구성하는 것입니다. 낭비되는 공간 없이 이격거리만을 띄운 후 1층 배치를 진행하였으며, 데드 스페이스라고 불리는 죽은 공간 없이 실 구성과 배치가 이루어졌습니다.


마지막으로 데크에 대해서 이야기하고 마무리하겠습니다. 데크는 두 종류가 있습니다. 석재판을 까는 석재 데크와 나무로 시공하는 나무데크. 이미 잘 아시겠지만 석재 데크는 영구적입니다. 관리가 편한 대신 초기 시공비가 비쌉니다. 나무데크는 감성적인 분위기를 자아내는데 특화되어있는 자재입니다. 석재가 차가운 느낌이라면 나무는 따뜻한 느낌을 집 분위기에 불어넣어줍니다. 다만 나무의 특성상 틀어지거나 곰팡이가 생기는 단점이 존재합니다. 나무데크로 시공하시는 분들은 첫 해는 3개월마다 오일스텐을 칠해주시고 그다음 해부터는 1년에 최소는 1번, 많게는 2번 칠해 주셔야 계속적으로 사용이 가능하실 거예요.


ARCHITECT

HC006-6305.jpg (좌측부터) 이동혁 건축가, 임성재 건축가, 정다운 건축가

HC006-0093.jpg
HC006-0095.jpg
HC006-0098.jpg
HC006-0100.jpg
HC006-0101.jpg
HC006-0104.jpg
HC006-0108.jpg
HC006-0112.jpg
HC006-0116.jpg
HC006-0119.jpg
HC006-0122.jpg
HC006-0123.jpg
HC006-6243.jpg
HC006-6245.jpg
HC006-6246.jpg
HC006-6248.jpg
HC006-6251.jpg
HC006-6254.jpg
HC006-6256.jpg
HC006-6257.jpg
HC006-6258.jpg
HC006-6259.jpg
HC006-6262.jpg
HC006-6263.jpg
HC006-6265.jpg
HC006-6267.jpg
HC006-6268.jpg
HC006-6269.jpg
HC006-6270.jpg
HC006-6271.jpg
HC006-6273.jpg
HC006-6276.jpg
HC006-6277.jpg
HC006-6278.jpg
HC006-6279.jpg
HC006-6281.jpg
HC006-6294.jpg
HC006-6295.jpg
HC006-6296.jpg
HC006-6299.jpg
HC006-6329.jpg
HC006-6330.jpg
HC006-6331.jpg
HC006-6332.jpg
HC006-6333.jpg
HC006-6335.jpg
HC006-6336.jpg
HC006-6337.jpg
HC006-6338.jpg
HC006-6339.jpg
HC006-6340.jpg
HC006-6341.jpg
HC006-6342.jpg
HC006-6343.jpg
HC006-6344.jpg
HC006-6345.jpg
HC006-6347.jpg
HC006-6350.jpg
HC006-6351.jpg
HC006-6352.jpg
HC006-6353.jpg
HC006-6354.jpg
HC006-6355.jpg
HC006-6356.jpg
HC006-6359.jpg
HC006-6360.jpg
HC006-6361.jpg
HC006-6363.jpg
HC006-6364.jpg
HC006-6365.jpg
HC006-6366.jpg
HC006-6367.jpg
HC006-6369.jpg
HC006-6370.jpg
HC006-6371.jpg
HC006-6373.jpg
HC006-6374.jpg
HC006-6377.jpg
HC006-6379.jpg
HC006-6381.jpg
HC006-6383.jpg
HC006-6385.jpg
HC006-6387.jpg
HC006-6388.jpg
HC006-6392.jpg
HC006-6395.jpg
HC006-6396.jpg
HC006-6397.jpg
HC006-6398.jpg
HC006-6399.jpg
HC006-6400.jpg
HC006-6402.jpg
HC006-6403.jpg
HC006-6404.jpg
HC006-6405.jpg
HC006-6406.jpg
HC006-6408.jpg
HC006-6409.jpg
HC006-6410.jpg
HC006-6412.jpg
HC006-6414.jpg
HC006-6416.jpg
HC006-6417.jpg
HC006-6418.jpg
HC006-6420.jpg
HC006-6421.jpg
HC006-6423.jpg
HC006-6425.jpg
HC006-6426.jpg
HC006-6428.jpg
HC006-6429.jpg
HC006-6430.jpg
HC006-6431.jpg
HC006-6433.jpg
HC006-6434.jpg
HC006-6435.jpg
HC006-6437.jpg
HC006-6438.jpg
HC006-6439.jpg
HC006-6442.jpg
HC006-6444.jpg
HC006-6446.jpg
HC006-6447.jpg
HC006-6448.jpg
HC006-6450.jpg
HC006-6452.jpg
HC006-6455.jpg
HC006-6456.jpg
HC006-6458.jpg
HC006-6460.jpg

HC017-2574r.jpg (좌측부터) 정다운 건축가, 임성재 건축가, 이동혁 건축가

[집이라는 본질적인 가치에 집중하다.]

Architecture Team : 홈트리오(주)

대표번호 : 1522-4279

홈페이지 : http://hometrio.kr/

KakaoTalk_20191210_164551850.jpg
KakaoTalk_20200521_090546896.jpg