02-08화. 햇살 따스한 집

PART 02-08화. 양산 47평 2층 전원주택

by 이동혁 건축가
KakaoTalk_20200521_090546896.jpg

제목 : 나의 첫 번째 전원주택 짓기

-전원주택 20개의 이야기를 담아내다-


저자 : 이동혁, 임성재, 정다운


PART 02. 나의 첫 번째 전원주택 짓기 20개의 스토리


08화. 햇살 따스한 집 : 양산 47평 2층 전원주택


HC029-4766r.jpg


SPEC

공법 : 경량 목구조

설계, 시공 : 홈트리오(주) / 상담문의 : 1522-4279

지붕마감재 : 아스팔트 슁글 / 외벽 마감재 : 스타코플렉스 / 포인트 자재 : 파벽돌

실내 벽 마감재 : 실크벽지/ 실내 바닥마감재 : 강마루

창호재 : 이건 PVC 3중 시스템창호

건축면적 : 154.63㎡(1층 : 89.76㎡, 2층 : 64.87㎡)

예상 총 건축비 : 283,000,000원(부가세 포함, 산재보험료 포함 / 설계비, 인허가비, 구조계산 설계비 별도)

설계비 : 7,050,000원(부가세 포함) / 인허가비 : 4,700,000원(부가세 포함)

구조계산 설계비 : 4,700,000원(부가세 포함) / 인테리어 설계비 : 4,700,000원(부가세 포함)

*건축비 외 부대비용 : 대지구입비, 가구(싱크대, 신발장, 붙박이장), 기반시설 인입(수도, 전기, 가스 등), 토목공사, 조경비 등


KEYWORD#

: 햇살밝은집, 포근한집, 환한공간, 꿈속의집, 도심형단독주택


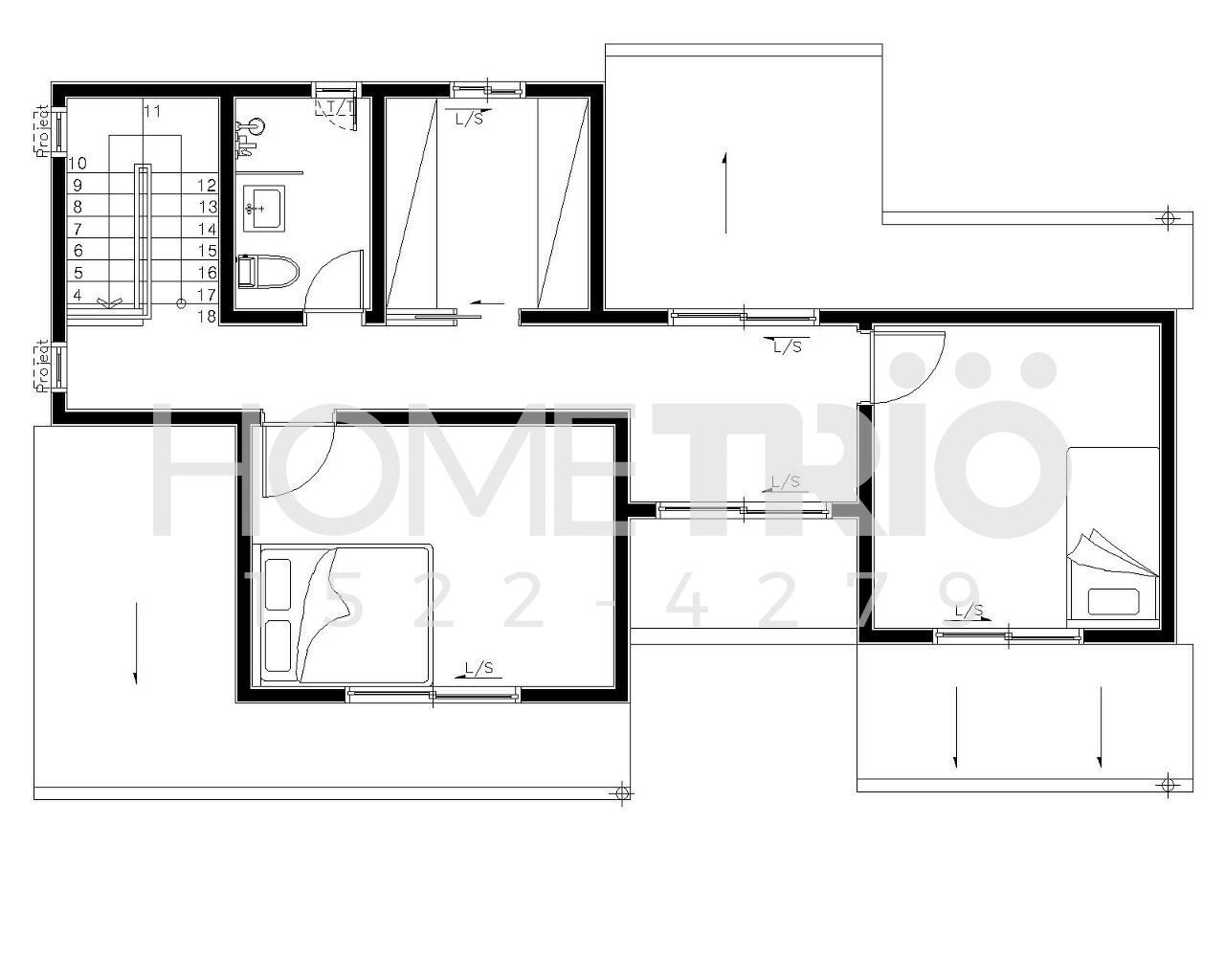
FLOOR PLAN

1층-워터마크.jpg 1층 평면도
2층-워터마크.jpg 2층 평면도


ARCHITECTURE STORY

: 따뜻한 햇살 아래 모닝커피를 한 잔 마시는 기분.

아파트 생활을 하면서 일에 치이고 육아에 치이고 정신없이 살다가 전원생활을 시작하니 "아 이게 여유구나"라는 것을 느낍니다.


내 손에 쥔 것들을 놓치면 큰일 날 것 같은 기분. 하지만 때로는 손에 움켜쥐고 있는 것들을 놓는 용기도 필요하답니다. 아파트 열풍을 지나 전원주택으로 다시 떠나기 시작하는 현시대에 '왜?'라는 질문을 우리 스스로 던져볼 필요가 있을 것 같습니다.


이번 프로젝트는 경남 양산의 도심형 단독주택 필지 내에 지어진 주택 프로젝트입니다. 기반시설 및 도로가 잘 닦여 있고, 'KTX 역사'와도 가까운 곳에 위치해 도심형 아파트에서 누릴 수 있는 인프라를 다 누리면서 지내실 수 있는 정말 건축가가 좋아하는 땅에서 이 프로젝트는 시작이 되었습니다.


설계의 시작은 건축주님의 땅을 방문하는 것부터 시작이 됩니다. 주변 환경을 생각하고 도로 및 기반시설을 체크하고... 그리고 가장 중요한 것이 있는데요. 지적도에서는 보이지 않는 옆 집과의 공간 배치도 꼭 검토를 해야 합니다. 처음에는 빈 땅으로 다 시작을 했지만 나중에는 결국 다 집이 지어질 땅들이기 때문에 너무 붙여서도 안되고, 내가 원하는 마당과 조망권 등을 고루고루 검토해서 집을 앉혀야 합니다.


도심형 단독주택의 경우 가장 애매한 부분이 조망권입니다. 대부분 건축법이 2층 내외로 층수를 제안하고 있어 다 지어졌을 경우 결국에는 시각이 가려질 수밖에 없거든요.

많은 분들이 혼동하시는 것들 중의 하나가 내 앞마당에서 저 멀리 좋은 조망권이 훤히 보여야 한다는 생각으로 집을 지으시는데, 거실에서 바라보는 제1 조망권은 내 앞마당이지 절대로 저 멀리에 있는 산이나, 바다가 아니랍니다. 어차피 안 되는 생각은 빨리 정리하시는 것이 정신건강에 좋답니다.


주차장과 현관 위치를 잡고, 최대한 앞마당을 확보할 수 있는 공간배치를 하여 설계 초안을 잡습니다. 그다음 건축주님이 원하는 요소들을 넣어준 뒤, 데드 스페이스 및 낭비되는 공간이 없는지 살펴봅니다.


"건축주님께 완벽한 집이란 무엇일까요?"

정답이 정해져 있는 것이라면 이렇게 무조건 해야 합니다라고 이야기드리겠지만 건축에는 답은 존재하지 않습니다. 이 땅에 걸려있는 건축법규 안에서 내가 원하는, 그리고 내 가족이 원하는 집을 최대한 맞춰 지으면 그것이 건축주님께 완벽한 집일 것입니다.


남의 집에 대해서 너무 많은 검토를 하시는 분들이 계신데, 내가 원하는 요소들을 가져와 내 집을 설계할 때 아이디어 차원에서 적용을 해야지 너무 그곳에 빠져서 그 평면만 바라보고 있는다면 결국에는 원하는 집이 아닌 이도 저도 아닌 집의 평면이 나오게 될 거예요.


한정된 건축비 예산안에서 내가 원하는 것을 최대한 담을 수 있게 방향을 잡는 것이 좋습니다.


1층에서 이 집만이 가지는 독특한 공간이 존재하는데요. 그것은 거실과 안방 사이에 존재하는 중정공간이에요. 많은 분들이 4면이 감싸져 있어야지만 중정이라고 생각하시는데 그렇지 않습니다. 한 곳이 터져 있어도 시각적으로 차단되고 둘러싸인 느낌을 가져갈 수 있다면 그 자체로 중정의 효과를 누릴 수 있습니다.


이 집은 자녀들을 위한 공간을 많이 만들어 놓았어요. 지금 당장 같이 살고 있지는 않지만 명절 때 놀러 오면 충분히 쉴 수 있도록 2층 공간을 구성했고, 가족실 및 발코니 등도 같이 구성해주어 2층에만 있어도 답답하지 않고 하루 종일 생활할 수 있는 공간을 만들어 주었습니다.


주요한 모든 실들이 전부 남향의 채광을 받을 수 있게 설계했습니다. 전원주택을 설계하면서 가장 피해야 할 단 한 가지를 꼽는다면 '어두운 공간' 만드는 것을 주의해야 한다는 것이에요. 항상 밝고 긍정적인 기운이 온 집에 퍼져있도록 해야 합니다. 그러기 위해서는 남향의 햇볕을 받을 수 있도록 공간 구성해야 하며, 창들을 크게 구성해 불을 켜고 있지 않더라도 항시 밝은 공간으로 느껴질 수 있도록 설계해야 합니다.


마지막으로 외부 디자인에 대해서 간략이 설명드리면, 외장을 꾸미는 비용을 초반에 정해놓으시는 것이 좋습니다. 그 예산을 잡은 뒤 그 비용에 맡게 외부 디자인을 진행하시면 되고, 너무 과하다 싶을 때는 일부 포인트 정도만 적용하여 예산이 오버되지 않게 하는 것이 좋습니다. 무조건 벽면 전체를 다 벽돌로 감싸는 게 정답이 아니라는 것을 설명드리고 싶습니다. 정해진 예산 안에서 진행하세요. 무리하지 마세요. 그래도 예쁜 집 충분히 만들 수 있답니다.


ARCHITECT

HC029-4969r.jpg (좌측부터) 정다운 건축가, 이동혁 건축가, 임성재 건축가

HC029-0118r.jpg
HC029-4742r.jpg
HC029-4746r.jpg
HC029-4755r.jpg
HC029-4760r.jpg
HC029-4764r.jpg
HC029-4766r.jpg
HC029-4775r.jpg
HC029-4779r.jpg
HC029-4780r.jpg
HC029-4781r.jpg
HC029-4784r.jpg
HC029-4785r.jpg
HC029-4786r.jpg
HC029-4790r.jpg
HC029-4793r.jpg
HC029-4795r.jpg
HC029-4797r.jpg
HC029-4798r.jpg
HC029-4799r.jpg
HC029-4802r.jpg
HC029-4804r.jpg
HC029-4805r.jpg
HC029-4807r.jpg
HC029-4808r.jpg
HC029-4810r.jpg
HC029-4817r.jpg
HC029-4819r.jpg
HC029-4821r.jpg
HC029-4824r.jpg
HC029-4831r.jpg
HC029-4832r.jpg
HC029-4836r.jpg
HC029-4837r.jpg
HC029-4840r.jpg
HC029-4842r.jpg
HC029-4845r.jpg
HC029-4848r.jpg
HC029-4854r.jpg
HC029-4857r.jpg
HC029-4858r.jpg
HC029-4860r.jpg
HC029-4861r.jpg
HC029-4862r.jpg
HC029-4864r.jpg
HC029-4865r.jpg
HC029-4868r.jpg
HC029-4869r.jpg
HC029-4875r.jpg
HC029-4877r.jpg
HC029-4879r.jpg
HC029-4880r.jpg
HC029-4883r.jpg
HC029-4887r.jpg
HC029-4888r.jpg
HC029-4891r.jpg
HC029-4894r.jpg
HC029-4896r.jpg
HC029-4898r.jpg
HC029-4899r.jpg
HC029-4902r.jpg
HC029-4906r.jpg
HC029-4910r.jpg
HC029-4912r.jpg
HC029-4913r.jpg
HC029-4914r.jpg
HC029-4919r.jpg
HC029-4922r.jpg
HC029-4923r.jpg
HC029-4930r.jpg
HC029-4933r.jpg
HC029-4936r.jpg
HC029-4938r.jpg
HC029-4946r.jpg
HC029-4948r.jpg
HC029-4950r.jpg
HC029-DJI0115-0524824r.png
HC029-DJI0116-0031031r.png
HC029-0118r.jpg

HC017-2574r.jpg (좌측부터) 정다운 건축가, 임성재 건축가, 이동혁 건축가

[집이라는 본질적인 가치에 집중하다.]

Architecture Team : 홈트리오(주)

대표번호 : 1522-4279

홈페이지 : http://hometrio.kr/

KakaoTalk_20191210_164551850.jpg
KakaoTalk_20200521_090546896.jpg