02-09화. 봄기운에 안기다

PART 02-09화. 대전 48평 2층 전원주택

by 이동혁 건축가
KakaoTalk_20200521_090546896.jpg

제목 : 나의 첫 번째 전원주택 짓기

-전원주택 20개의 이야기를 담아내다-


저자 : 이동혁, 임성재, 정다운


PART 02. 나의 첫 번째 전원주택 짓기 20개의 스토리


09화. 봄기운에 안기다 : 대전 48평 2층 전원주택


HC014-2111r.jpg


SPEC

공법 : 경량 목구조

설계, 시공 : 홈트리오(주) / 상담문의 : 1522-4279

지붕마감재 : 아스팔트슁글 / 외벽 마감재 : 스타코플렉스 / 포인트자재 : 루나우드, 파벽돌

실내벽마감재 : 실크벽지 / 실내바닥마감재 : 강마루

창호재 : PVC 3중 시스템창호

건축면적 : 158.42㎡(1층 : 104.06㎡, 2층 : 54.36㎡)

예상 총 건축비 : 298,000,000원(부가세 포함, 산재보험료 포함 / 설계비, 인허가비, 구조계산 설계비 별도)

설계비 : 7,200,000원(부가세 포함) / 인허가비 : 4,800,000원(부가세 포함)

구조계산 설계비 : 4,800,000원(부가세 포함) / 인테리어 설계비 : 4,800,000원(부가세 포함)

*건축비 외 부대비용 : 대지구입비, 가구(싱크대, 신발장, 붙박이장), 기반시설 인입(수도, 전기, 가스 등), 토목공사, 조경비 등


KEYWORD#

: 가성비최고, 밸런스있는외관, 'ㄱ'자형주택, 매력적인박공지붕, 홈트리오최애주택


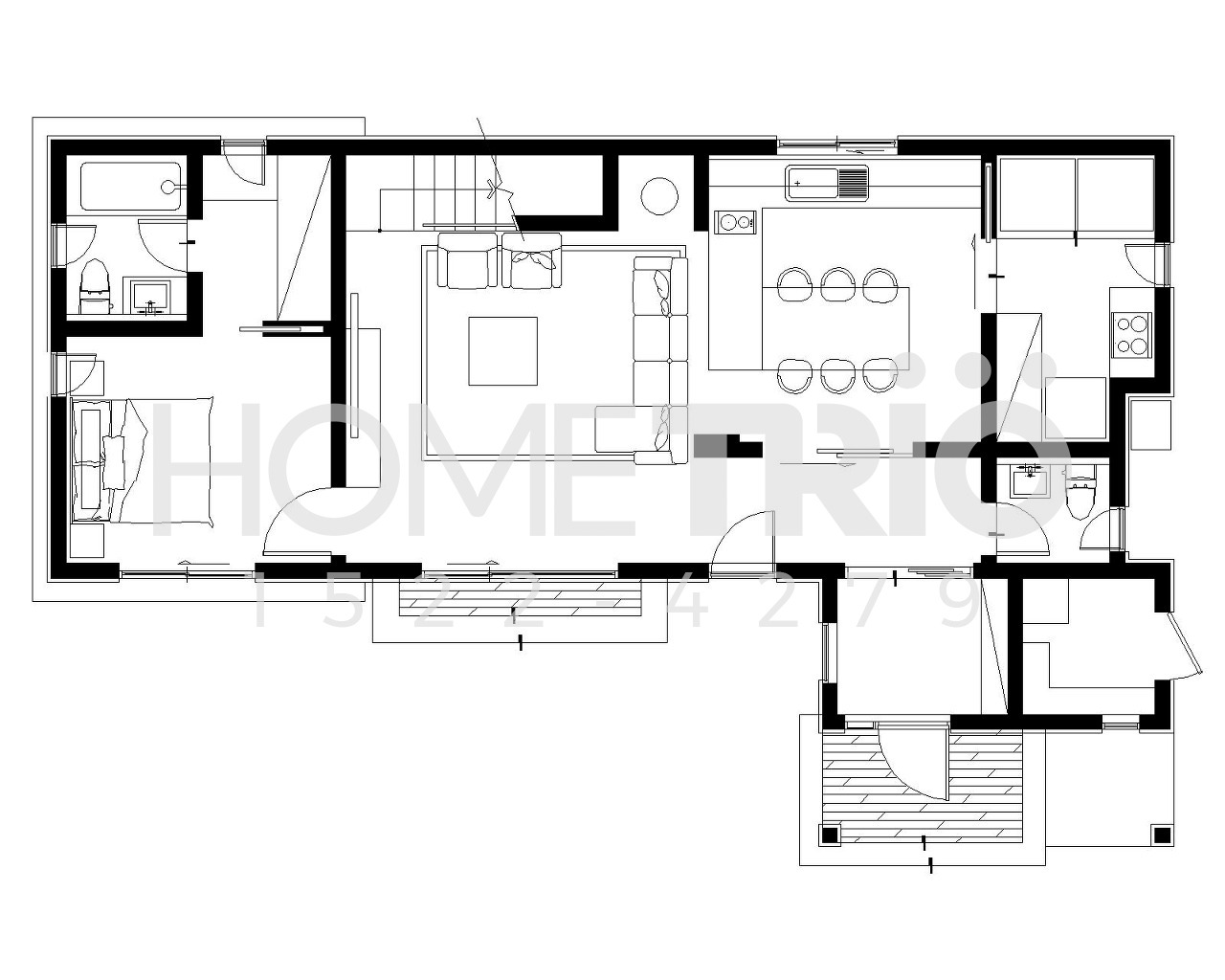
FLOOR PLAN

1층-워터마크.jpg 1층 평면도
2층-워터마크.jpg 2층 평면도


ARCHITECTURE STORY

: 대전 유성구 도심형 단독주택 프로젝트.

저희들이 설계를 할 때 항상 놓치지 않는 초심이 '집은 집답게, 그리고 단정한 느낌으로 지을 것'입니다. 디자인은 100% 취향적인 부분이라 무엇이 정답이라고 할 수는 없지만 너무 자유도가 높아지다 보니 어떤 집들을 보면 "좀 난해하다?"라는 느낌이 드는 집들이 지어지고 있습니다.

물론 건축주가 요구했으니 당연히 그렇게 디자인했겠지만 전문가가 보았을 때는 유니크한 느낌이 아니라 괴상한 느낌이 들 때가 많답니다.


디자인의 자유도와 항상 반대편에 있는 항목이 '하자'입니다. 우리는 이미 알고 있습니다. 어떻게 설계하고 디자인해야 누수에 대한 위험성이 줄어들고, 결로에 대한 발생률이 줄어드는지요. 하지만 그 갈림길에서 항상 여러분들은 디자인으로 가는 경향이 많습니다. 왜냐고요? 그래야 내 집이 부각되어 보인다고 생각하시거든요.


한 인터뷰를 하는 도중 기자가 저에게 이런 질문을 물어봤어요.

"건축가님이 생각하시기에 가장 이상적인 지붕 모양은 어떤 건가요?"

솔직히 이건 고민할 필요도 없어요. "15도 이상의 경사가 존재하는 박공지붕이요." 아마 모든 건축가들이 공통적으로 생각하고 인정하고 있을 거예요. 하지만 박공지붕의 디자인적 표현 방식은 한계점이 분명하게 있죠.

다양한 느낌이 아닌 자연스럽게 정돈되고 깔끔한 느낌만을 가져갈 수 있다는 디자인적 한계점을 가지고 있어요. 유니크한 느낌과는 분명 거리감이 있습니다.


그래서일 거예요. 점점 디자인을 하다 보면 박공지붕을 피하고, 지붕을 쪼개기 시작하면서 기형적인 경사도가 존재하는 지붕이 만들어지는 것이요. 꺾이고 접히는 순간 그 부분의 하자율을 올라갈 수밖에 없다는 것을 인지하셔야 한답니다.


이번 대전 유성구 도심형 단독주택을 시작하면서 이미 주변에 다양한 디자인의 집들이 지어져 있는 것을 확인하였습니다. 많은 집들이 지어져 있는 단독주택 필지의 경우 '디자인 조례'가 존재하면 다행이겠지만 자유 디자인으로 지어지는 단지의 경우 정말 혼잡을 넘어 난잡한 동네가 되기 마련입니다. 하나씩 보면 예쁠 수 있지만 다양한 디자인이 하나의 동네에 모여있을 경우 오히려 깔끔하게 지은 집들이 더 눈에 띄게 됩니다.


이 점 때문에 건축주님께 첫 디자인 제안을 할 때에도 최대한 정돈되고 심플한 느낌으로 전체 느낌을 가자고 제안드렸고, 옥상이나 누수에 위험성이 존재하는 부분들은 과감히 제외하고 30년이 지나도 지금 그 모습 그대로 유지될 수 있는 집을 짓고자 노력하였습니다.


'ㄱ'자 배치와 1층 현관 부분에 포치라는 공간을 만들어주고, 1층과 2층의 지붕 레벨링 효과 차이를 주면서 박공지붕이지만 볼륨감이 느껴질 수 있도록 디자인하였습니다.


이 집에 쓰인 외장 포인트는 단 하나입니다. 루나 우드 포인트를 사용하여 큰 추가 비용이 없이 집의 느낌을 완성시켜주었으며, 창문 테두리에 EPS 몰딩을 한 번씩 감아주어 창틀에서 발생되는 눈물자국을 방지할 수 있도록 하였습니다.


'ㄱ'자형 평면을 구성하였지만 현관을 제외하고는 바로 모든 공간을 사용할 수 있는 직사각형 평면을 기본으로 동선이 구성되었습니다. 일반적으로 'ㄱ'자형 배치는 복도라는 공간이 생기고 어쩔 수 없이 데드 스페이스가 발생되는 한계점을 가지고 있었는데 이번 주택처럼 공간을 풀어준다면 그러한 단점을 충분히 상쇄시킬 수 있습니다.


주방을 설계할 때 많은 고민 포인트가 발생하는 부위가 싱크대 앞 라인의 창문 부위입니다. 아파트에서는 대부분 작은 창문만 달리게 되는데 전원주택에서는 굳이 답답하게 창을 조그맣게 낼 필요가 없습니다. 크고 확실하게 채광과 환기가 될 수 있는 창을 배치하는 것이 좋습니다. 어둡게 설계하려고 하지 마세요. 주방도 항상 밝고 환한 느낌이 감도는 공간으로 설계해야 한답니다.


ARCHITECT

HC014-2016r.jpg (좌측부터) 임성재 건축가, 이동혁 건축가, 정다운 건축가

HC014-2111r.jpg
HC014-2118r.jpg
HC014-1831r.jpg
HC014-1832r.jpg
HC014-1834r.jpg
HC014-1835r.jpg
HC014-1839r.jpg
HC014-1841r.jpg
HC014-1843r.jpg
HC014-1844r.jpg
HC014-1846r.jpg
HC014-1847r.jpg
HC014-1849r.jpg
HC014-1851r.jpg
HC014-1854r.jpg
HC014-1855r.jpg
HC014-1857r.jpg
HC014-1859r.jpg
HC014-1863r.jpg
HC014-1864r.jpg
HC014-1866r.jpg
HC014-1868r.jpg
HC014-1869r.jpg
HC014-1870r.jpg
HC014-1873r.jpg
HC014-1874r.jpg
HC014-1877r.jpg
HC014-1878r.jpg
HC014-1880r.jpg
HC014-1882r.jpg
HC014-1883r.jpg
HC014-1884r.jpg
HC014-1885r.jpg
HC014-1887r.jpg
HC014-1888r.jpg
HC014-1890r.jpg
HC014-1891r.jpg
HC014-1892r.jpg
HC014-1893r.jpg
HC014-1894r.jpg
HC014-1895r.jpg
HC014-1896r.jpg
HC014-1898r.jpg
HC014-1900r.jpg
HC014-1901r.jpg
HC014-1902r.jpg
HC014-1904r.jpg
HC014-1905r.jpg
HC014-1906r.jpg
HC014-1907r.jpg
HC014-1909r.jpg
HC014-1910r.jpg
HC014-1911r.jpg
HC014-1913r.jpg
HC014-1914r.jpg
HC014-1915r.jpg
HC014-1916r.jpg
HC014-1919r.jpg
HC014-1920r.jpg
HC014-1921r.jpg
HC014-1922r.jpg
HC014-1923r.jpg
HC014-1924r.jpg
HC014-1925r.jpg
HC014-1926r.jpg
HC014-1927r.jpg
HC014-1928r.jpg
HC014-1929r.jpg
HC014-1931r.jpg
HC014-1933r.jpg
HC014-1934r.jpg
HC014-1935r.jpg
HC014-1936r.jpg
HC014-1937r.jpg
HC014-1938r.jpg
HC014-1942r.jpg
HC014-1943r.jpg
HC014-1945r.jpg
HC014-1946r.jpg
HC014-2056r.jpg
HC014-2068r.jpg
HC014-2073r.jpg
HC014-2111r.jpg
HC014-2125r.jpg
HC014-2128r.jpg
HC014-2130r.jpg
HC014-2131r.jpg

HC017-2574r.jpg (좌측부터) 정다운 건축가, 임성재 건축가, 이동혁 건축가

[집이라는 본질적인 가치에 집중하다.]

Architecture Team : 홈트리오(주)

대표번호 : 1522-4279

홈페이지 : http://hometrio.kr/

KakaoTalk_20191210_164551850.jpg
KakaoTalk_20200521_090546896.jpg