brunch

'부모님을 위한 선물' 35평 김천 전원주택 완공

#34 홈트리오 시공사례 - 건축비 : 22,850만 원

by 이동혁 건축가

*구독 버튼은 필수인 것 다들 아시죠^^

메인.jpg


제목 : '부모님을 위한 선물' 35평 김천 전원주택 완공

소제목 : #34 홈트리오 시공사례 - 건축비 : 22,850만원


STORY

: 오래된 고향 집을 허물고 여름에는 시원하고 겨울에는 따뜻한 집을 지어드리기로 했습니다.

온 가족이 명절마다 모여 웃음꽃을 피울 수 있는 포근한 집.

35평의 국민 전원주택 규모로 설계된 이번 사례는 좁은 대지에서 2층 집을 지을 수 있는 모범적인 사례로 기억될 것이라 생각하며, 깔끔한 디자인에 가성비 높은 건축비용은 부모님 집을 지어드리기 위해 준비 중이신 모든 분들의 마음을 매혹할 수 있는 집이라 생각합니다.


이번 주택의 평면과 디자인을 보시게 되면 콤팩트 한 느낌을 받을 수 있습니다. 큰 대지에 넓은 면적으로 집을 지은 것이 아니라 도심의 60평 미만의 토지에 꽉 차게 들어 앉힌 주택 설계라는 뜻입니다.

물론 넓은 대지에는 얼마든지 원하는 위치에 앉힐 수 있습니다. 하지만 도심형 단독주택 대지의 경우 건폐율과 용적률은 높지만 땅값이 높은 관계로 무작정 넓은 땅을 구해서 집을 지을 수는 없습니다. 그러한 대지에 맞는 설계를 이번 월간홈트리오 모델로 선보이고자 하였으며, 깔끔한 디자인에 가성비 높은 건축비로 전원생활의 시작을 맞이할 수 있는 그러한 집으로 설계가 진행되었습니다.


지붕의 모양이 집의 전반적인 분위기를 결정합니다. 많은 분들이 외장재와 배치에만 신경 쓰느라 정작 가장 중요한 지붕 디자인을 간과하고 넘어가는데 모던 스타일이던 클래식 스타일이던 지붕의 형태와 지붕의 마감재에 따라 그 느낌이 결정된다는 것을 알고 가셔야 합니다.

이번 주택을 디자인할 때 배치에 따른 입체감을 지붕에서 더 부각해줄 수 있도록 디자인을 하였는데요. 박공지붕을 기반으로 하되 꺾어지는 부위마다 박공지붕의 각도를 90도 이상 틀어 4면 어디에서 보던 안정감 있으면서 유니크한 느낌을 집을 전반적인 디자인에 입혀질 수 있도록 하였습니다. 모던과 클래식의 중간점으로 전체 느낌을 잡았으며, 어느 연령층이던 모두 만족할만한 집으로 디자인을 완성시켰습니다.


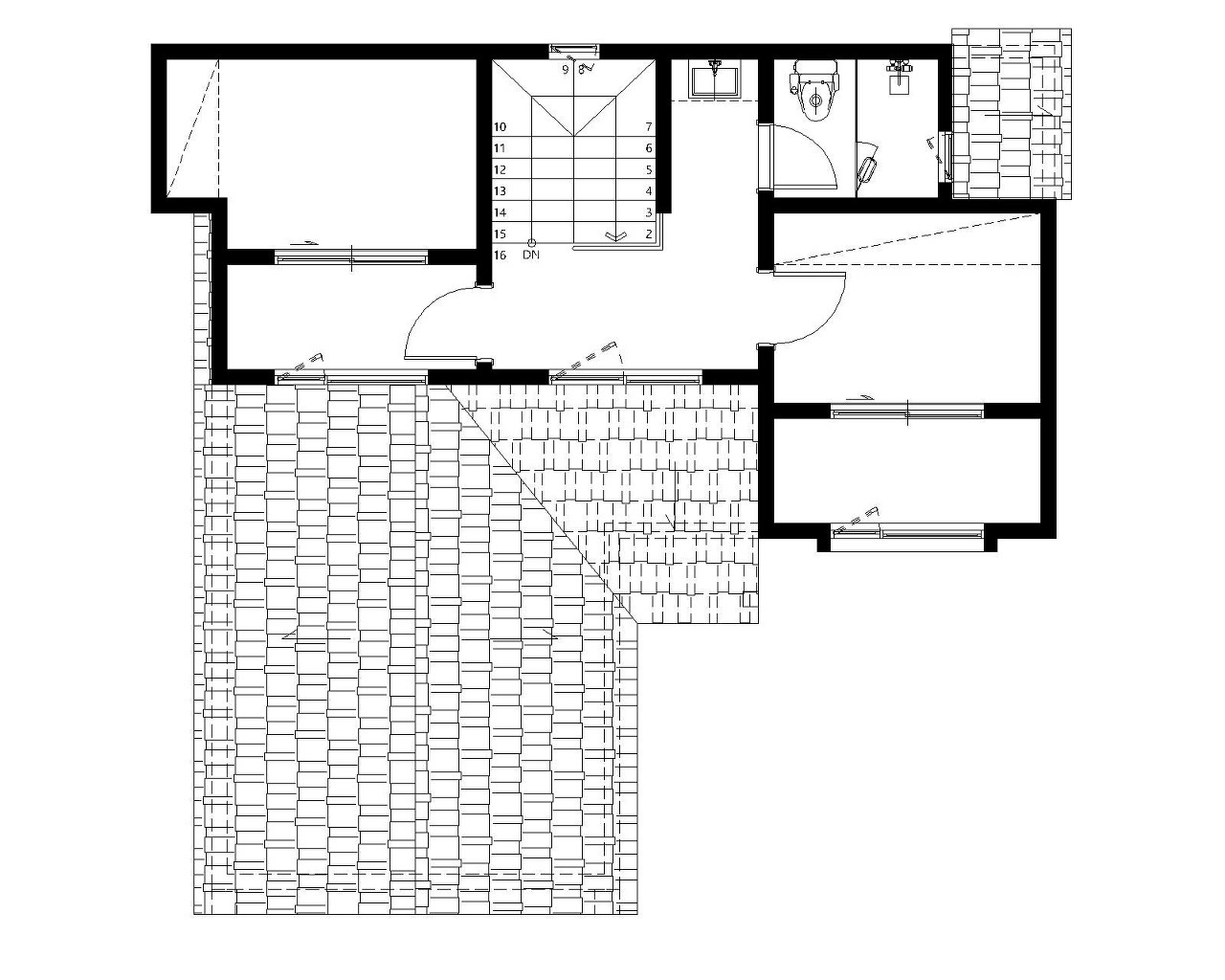
'ㄱ'자형 배치의 가장 큰 단점은 이동 동선에 있습니다. 우리의 주거는 일반적으로 현관을 들어오면 거실을 통해 각 공간으로 이동하는 패턴을 가지고 있습니다. 특별한 이유라기보다는 그렇게 공간을 구성해야 복도라는 이동 공간을 최소화할 수 있기 때문입니다. 넓은 평수대에서는 복도라는 공간이 또 하나의 신선한 공간으로 인지될 수 있지만 60평 미만의 소형주택에서는 잘못하다가는 데드 스페이스가 될 수 있는 요지가 크기 때문에 설계 시 주의하여야 합니다.

이번 주택은 'ㄱ'자형 배치를 진행하였지만 최소한의 복도만을 통해 각 공간으로 이동할 수 있도록 각 실을 배치하였으며, 거실과 주방을 하나의 원 스페이스로 구성하여 현관을 진입했을 때 평수 대비 넓은 개방감을 가져갈 수 있도록 하였습니다.


35평의 면적에서 가져갈 수 있는 요소들은 모두 가져간 주택인데요. 방 3개에 화장실 2개, 그리고 답답하지 않은 거실과 주방. 솔직히 이 집의 가장 큰 매력은 좁은 땅에서도 만들어 낼 수 있는 작은 앞마당이라고 할 수 있을 것입니다.


건축비를 좌지우지하는 가장 큰 요소는 외장재와 지붕재입니다. 매우 간단한 이치이지만 생각보다 욕심을 포기하기는 어려운 법이지요. 옷이 더러워지는 것을 두려워해 검은색 옷만 입는다면 어떨 것 같으세요? 물론 더 좋은, 그리고 비싼 외장재를 사용할수록 관리적인 부분과 오염에 대한 위험성을 줄여나갈 수는 있겠지만 건축예산이 계속 올라갈 수 있으므로 내가 가진 예산 안에서 최대한의 효과를 누릴 수 있는 그러한 마감재를 선정하여 여러분들이 원하는 집을 완성하시길 바라겠습니다.


SPEC

공법 : 경량목구조

설계, 시공 : 홈트리오(주) / 상담문의 : 1522-4279

지붕마감재 : 아스팔트슁글 / 외벽 마감재 : 스타코플렉스 / 포인트자재 : 합성목재, 파벽돌

실내벽마감재 : 실크벽지 / 실내바닥마감재 : 이건 강마루

창호재 : 이건 알루미늄 3중 시스템창호

건축면적 : 116.34㎡(1층 : 74.44㎡, 2층 : 41.90㎡)

예상 총 건축비 : 228,500,000원(부가세 포함, 산재보험료 포함 / 설계비, 인허가비, 구조계산 설계비 별도)

설계비 : 5,250,000원(부가세 포함) / 인허가비 : 3,500,000원(부가세 포함)

구조계산 설계비 : 3,500,000원(부가세 포함) / 인테리어 설계비 : 3,500,000원(부가세 포함)

*건축비 외 부대비용 : 대지구입비, 가구(싱크대, 신발장, 붙박이장), 기반시설 인입(수도, 전기, 가스 등), 토목공사, 조경비 등


HC038-7450r.jpg (좌측부터) 정다운 건축가, 임성재 건축가, 이동혁 건축가


Floor Plan

1층.jpg 1층 평면도
2층.jpg 2층 평면도


이동혁 건축가 : 창호와 단열을 최강으로 외장재 및 인테리어는 가볍게. 이 조건만 기억하고 집을 짓는다면 충분히 가성비 높은 집을 지을 수 있을 것입니다. 가장 큰 추가비는 외장재인데요. 벽돌 및 세라믹 사이딩 등 고가의 자재들만 조금 양보하고 스타코플렉스로 깔끔하게만 마감한다면 여러분들이 잡고 계신 예산 범위에서 충분히 집을 완공시킬 수 있을 것입니다.

정다운 건축가 : 박람회나 집 짓고 있는 현장에서 공사하고 있는 분들에게 평당 단가를 물어보면 알고 있는 금액보다 현저히 낮은 것을 알 수 있어요. 항상 말하듯 평당 단가는 의미가 없어요. 어떠한 자재로 어떠한 디자인으로 완공시킬지가 정해져야 그다음 최종 금액을 논할 수 있습니다. 시작 금액은 의미가 없습니다. 설계 후 정말로 내가 원하는 집을 다 그린 후 나오는 그 견적이 최종 견적이고 완공 금액이라 이야기할 수 있습니다.

임성재 건축가 : 도심 내 땅은 생각보다 평수가 많이 작습니다. 60평 미만의 땅이 대부분일 것이며, 일반적으로 50평 미만의 땅들이 대부분입니다. 좁은 대지에서 최대한의 효율을 낼 수 있는 공간배치를 이번 주택에서 적용하였으며, 작지만 조그마한 앞마당을 확보할 수 있도록 배치설계를 진행하였습니다. 'ㄱ'자형 배치를 할 때에는 많은 고민을 해야 합니다. 잘못 구성하다가는 이동 동선인 복도에 많은 공간을 할애할 수도 있거든요. 데드 스페이스는 최소한으로 구성할 수 있는 동선을 계획해야 하며, 땅에서도 낭비되는 공간 없이 최대한의 마당이 확보될 수 있는 집으로 설계를 완료하여야 합니다.


<외관>

메인.jpg
HC038-7462r.jpg
HC038-7466r.jpg
HC038-7468r.jpg
HC038-7473r.jpg
HC038-7475r.jpg
HC038-7529r.jpg
HC038-7540r.jpg


<현관>

HC038-7478r.jpg
HC038-7480r.jpg
HC038-7481r.jpg


<거실>

HC038-7482r.jpg
HC038-7483r.jpg
HC038-7484r.jpg
HC038-7486r.jpg
HC038-7487r.jpg
HC038-7492r.jpg
HC038-7496r.jpg
HC038-7499r.jpg
HC038-7502r.jpg
HC038-7545r.jpg


<주방>

HC038-7488r.jpg
HC038-7489r.jpg
HC038-7493r.jpg
HC038-7494r.jpg
HC038-7497r.jpg
HC038-7498r.jpg


<1층 화장실>

HC038-7507r.jpg
HC038-7509r.jpg
HC038-7510r.jpg
HC038-7511r.jpg
HC038-7512r.jpg
HC038-7514r.jpg


<다용도실>

HC038-7500r.jpg
HC038-7501r.jpg


<1층 방>

HC038-7503r.jpg
HC038-7504r.jpg
HC038-7505r.jpg
HC038-7506r.jpg


<계단실>

HC038-7515r.jpg
HC038-7516r.jpg
HC038-7517r.jpg
HC038-7518r.jpg
HC038-7519r.jpg
HC038-7521r.jpg
HC038-7522r.jpg
HC038-7544r.jpg


<2층 복도>

HC038-7523r.jpg
HC038-7541r.jpg
HC038-7543r.jpg


<2층 방>

HC038-7525r.jpg
HC038-7526r.jpg
HC038-7527r.jpg
HC038-7528r.jpg


<2층 화장실>

HC038-7530r.jpg
HC038-7531r.jpg
HC038-7532r.jpg
HC038-7533r.jpg
HC038-7534r.jpg
HC038-7535r.jpg
HC038-7536r.jpg
HC038-7537r.jpg
HC038-7538r.jpg
HC038-7539r.jpg
HC038-7450r.jpg (좌측부터) 정다운 건축가, 임성재 건축가, 이동혁 건축가

HC017-2574r.jpg (좌측부터) 정다운 건축가, 임성재 건축가, 이동혁 건축가

[집이라는 본질적인 가치에 집중하다.]

Architecture Team : 홈트리오(주)

대표번호 : 1522-4279

홈페이지 : http://hometrio.kr/

KakaoTalk_20191210_164551850.jpg
KakaoTalk_20200521_090546896.jpg


keyword