brunch

'행복한 집을 그려내다' 55평 남양주 전원주택 완공

#35 홈트리오 시공사례 - 건축비 : 33,500만 원

by 이동혁 건축가

*구독 버튼은 필수인 것 다들 아시죠^^

HC039-7599r.jpg


제목 : '행복한 집을 그려내다' 55평 남양주 전원주택 완공

소제목 : #35 홈트리오 시공사례 - 건축비 : 33,500만원


STORY

: 시원하고 상쾌한 바람이 불어오는 날씨에 가족들과 여유로운 하루를 보낸다는 것. 그러한 공간 안에 있다는 것만으로도 힐링이 되는 기분일 것입니다.


누구나 꿈꾸는 마당 있는 집.


층간소음 걱정 없이 뛰어다니며 놀 수 있고, 친구들을 불러 언제든지 숙제를 같이 할 수 있는 평범하지만 소박한 행복이 넘쳐나는 집. 이번 주택은 행복함을 담아낼 수 있는 집으로 탄생시켰으며, 안정감 있는 디자인에 55평이라는 넓고 풍족한 면적으로 실내를 구성하여 전원생활을 처음 시작하는 건축주님 내외분께 특화된 주택으로 만들어 내었습니다.


55평이라는 중형 평형에서는 소형평수에서 보지 못하는 공간 구성들이 형성됩니다. 일단 거실과 주방이 압도적으로 넓은 면적으로 자리 잡게 됩니다. 각 공간을 분리시킬 수도 있으며, 이번 주택설계처럼 하나의 대 공간으로 만들어 낼 수 있습니다.


목조주택의 경우 무한정 보의 길이가 길어질 수 없습니다. 공학용 목재를 사용해 5미터 이상을 뻗어나갈 수는 있지만 구조적 처짐 문제로 인해 대부분 4.8미터를 최대치로 놓고 공간을 구성합니다. 가로폭 4.8미터에 세로 폭은 땅 크기마다 다르겠지만 일반적으로 12~14 미터 정도를 구성하게 됩니다. 평면상으로 보면 잘 와 닿지 않을 수도 있지만 현관을 열고 들어가서 느껴지는 오픈된 공간감은 그동안 보아왔던 어떠한 집보다도 넓게 느껴지실 것입니다. 또 하나 더한다면 아파트와는 다르게 앞마당이라는 것이 존재하죠. 거실에서 통창을 설치해 주방, 거실, 그리고 앞마당까지 이어지는 시각적 흐름은 압도적 개방감을 여러분들께 선물할 것입니다.


많은 사람들이 오해하는 것들 중의 하나가 집 디자인을 잡을 때 디자인을 먼저 하고 내부 구성을 먼저 하는 것으로 알고 있습니다. 물론 빌딩이나 철학적 의미를 부여하는 건물 등에는 간혹 디자인부터 잡고 내부 구성을 그 후에 하는 경우도 있지만 주택은 절대 그렇지 않습니다.


일단 내가 살아가는 실내 공간을 최우선적으로 만들어 낸 뒤 그다음 벽을 올리면 매스가 되고 그 매스에 옷을 입히면 외장재가 됩니다. 생각보다 간단한 원리인데 대부분 외부 디자인에 너무 치중한 나머지 정작 본인들이 살 내부 공간은 대충 하는 중요도의 순위가 바뀌는 일이 발생하기도 합니다.


목조주택에 있어 지붕은 필수입니다. 첫 번째도 방수, 두 번째도 방수, 세 번째도 방수입니다. 제 글을 보고 요즘 기술력이 발달해서 목조주택인데도 옥상 만들어도 된다고 우기시는 분들이 계신데 반론하지 않겠습니다. 그것이 맞다고 생각하시는 분들은 그렇게 하셔도 무방한데, 제 집이라면 절대로 그렇게 안 지을 것입니다. 무조건 지붕을 덮어줄 것. 저희 홈트리오는 이 부분에 대해서는 타협의 여지가 없습니다. 목조주택 지붕은 무조건 덮습니다.


마지막으로 방에 대한 이야기를 하고 마무리하겠습니다. 방을 무조건 작게 해야 한다. 잠만 자니까. 많이들 이러한 생각으로 설계를 시작하는데요. 문제는 원하는 가구는 들어갈 정도의 공간은 남겨 놓으셔야죠. 무작정 줄인 후 추후에 가구를 넣고 안 들어간다고 한탄하면 안 됩니다. 일단 건축주님 집에 있는 침대나 책상, 수납장의 크기를 줄자로 재보세요. 그리고 정말로 그 가구가 가 들어가고도 남는 공간을 조금은 만들어 놓아야 합니다. 걸어는 다녀야 하니까요. 방은 절대로 창고가 아닙니다. 사람이 거주하는 공간인만큼 남에 말 듣고 무조건 줄일 것이 아니라 건축주님이 사용하게 적당하 크기로 설계를 하시길 바라겠습니다.


SPEC

공법 : 경량 목구조

설계, 시공 : 홈트리오(주) / 상담문의 : 1522-4279

지붕마감재 : 아스팔트슁글 / 외벽 마감재 : 롱브릭타일 / 포인트자재 : 롱브릭타일, 스타코플렉스

실내벽마감재 : 실크벽지/ 실내바닥마감재 : 이건 강마루

창호재 : 이건 알루미늄 3중 시스템창호

건축면적 : 182.64㎡(1층 : 99.17㎡, 2층 : 68.71㎡, 다락 : 14.76㎡)

예상 총 건축비 : 355,000,000원(부가세 포함, 산재보험료 포함 / 설계비, 인허가비, 구조계산 설계비 별도)

설계비 : 8,250,000원(부가세 포함) / 인허가비 : 5,500,000원(부가세 포함)

구조계산 설계비 : 5,500,000원(부가세 포함) / 인테리어 설계비 : 5,500,000원(부가세 포함)

*건축비 외 부대비용 : 대지구입비, 가구(싱크대, 신발장, 붙박이장), 기반시설 인입(수도, 전기, 가스 등), 토목공사, 조경비 등


HC039-7593r.jpg (좌측부터) 이동혁 건축가, 임성재 건축가, 정다운 건축가


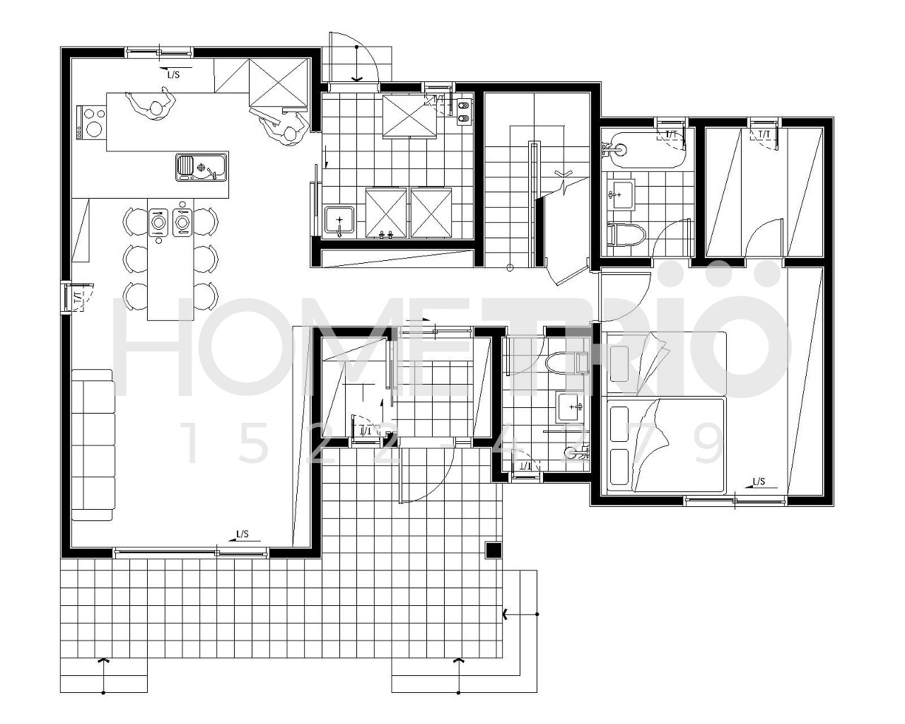
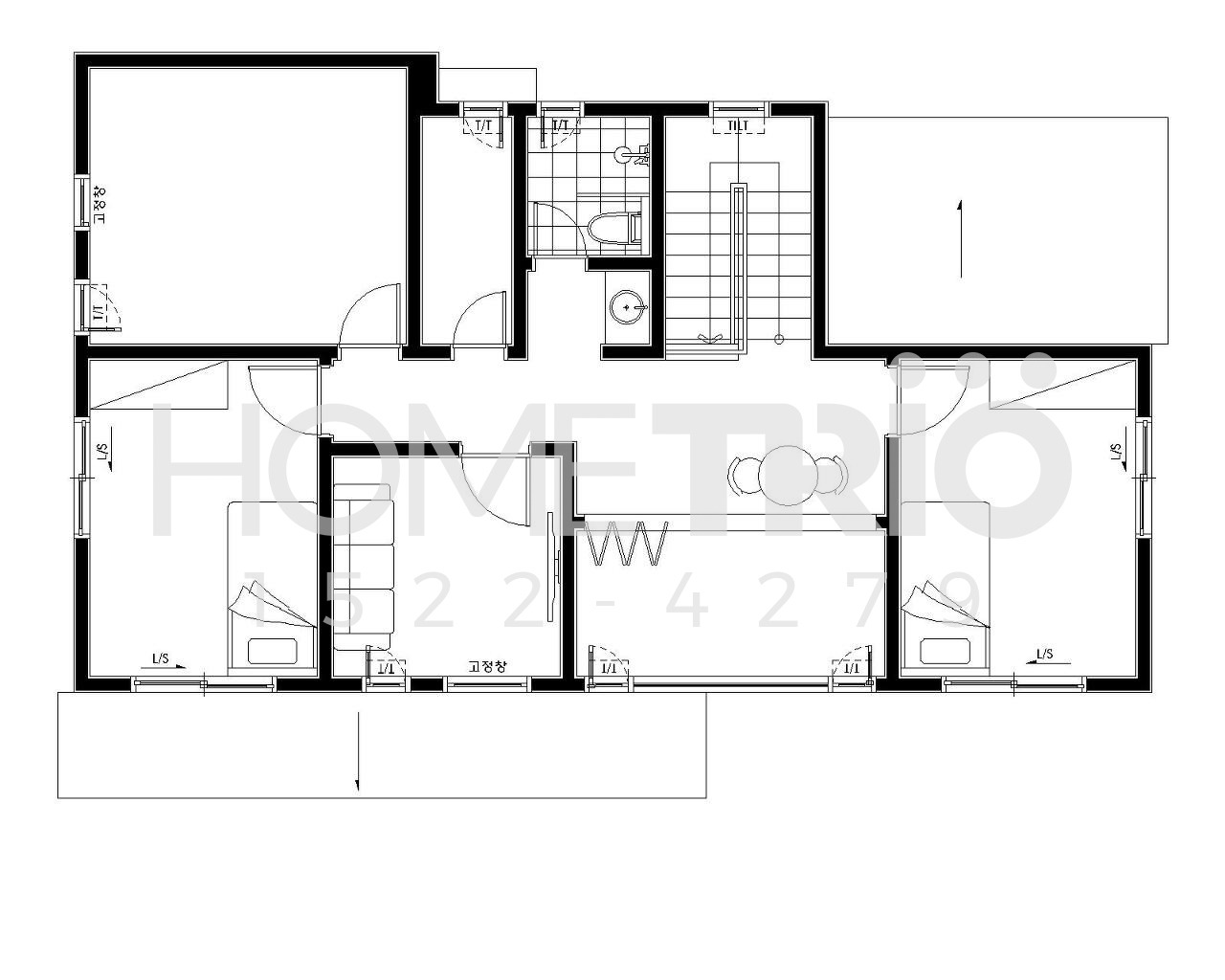
Floor Plan

1층.jpg 1층 평면도
2층.jpg 2층 평면도


이동혁 건축가 : 목조주택을 설계할 때 가장 고려하는 것은 바로 '누수'입니다. 콘크리트 대비 목조는 누수에 취약할 수밖에 없는 태생적 한계를 가지고 있습니다. 그렇기 때문에 흔히들 말하는 옥상이라는 공간은 생각조차 못하며, 어떻게든 지붕을 덮어 비가 맞을 수 있는 공간을 최소화하는 것이 주요합니다. 간혹 지붕 위에 옥상처럼 사용할 수 있는 공간을 만들면 어떤지 물어보시는 분들이 계신데, 결국 그 공간도 지붕과 그 아래에 있는 방수층을 뚫고 골조에 박혀야 하는 만큼 저는 개인적으로 추천드리는 방법은 아닙니다. 일단 저는 그렇게 절대 하지 않습니다. 맞다 틀렸다로 구분하기보다는 저라면 그렇게 안 할 겁니다. 판단은 여러분들에게 맡길게요.

정다운 건축가 : 이 집에서 공용공간이 차지하고 있는 부분은 타 주택 설계안과 비교했을 때 많다고 표현될 수 있을 만큼 다양하게 구성되어 있습니다. 거실과 주방은 물론이고, 테라스와 가족실. 거기에 각 자녀들 방을 제외하고도 남는 취미공간까지. 머릿속으로만 그려왔던 환상적인 공간이 이 집에서는 모두 구현되었다고 볼 수 있습니다. 너무 작게만 지으려고 하지 마세요. 그러다가 정말로 내가 원하던 공간 하나도 못 가지고 갈 수도 있습니다.

임성재 건축가 : 긴 벽돌이라고 하죠. 정식 명칭은 모노롱 벽돌이라고 부릅니다. 조적식으로 쌓는 블록도 있으며, 붙이는 타일 종류도 있습니다. 최종 시공했을 때 느낌은 거의 동일하다고 보시면 됩니다. 이번 주택은 일반 벽돌이 아닌 모노롱타일을 마감재로 선택해 타 주택과는 조금 다른 느낌의 집을 완성시키고자 했습니다. 또한 중부 1 지역에 해당하는 단열 값과, 전 창 이건 알루미늄 3중 시스템을 적용하는 등의 고단열 건자재를 선택하여 추위에 민감할 수 있는 자녀들을 따뜻하게 보호할 수 있도록 하였습니다. 디자인과 내구성, 그리고 단열까지 모두 잡은 집. 도심형 단독주택을 생각하시나요? 이 집을 꼭 눈여겨보세요.


<외관>

HC039-7599r.jpg
HC039-7601r.jpg
HC039-7602r.jpg
HC039-7603r.jpg
HC039-7606r.jpg
HC039-7608r.jpg
HC039-7612r.jpg
HC039-7613r.jpg
HC039-7615r.jpg
HC039-7617r.jpg
HC039-7618r.jpg
HC039-7619r.jpg
HC039-7728r.jpg
HC039-7730r.jpg


<현관>

HC039-7695r.jpg
HC039-7696r.jpg
HC039-7697r.jpg
HC039-7698r.jpg
HC039-7723r.jpg


<1층 거실>

HC039-7694r.jpg
HC039-7699r.jpg
HC039-7701r.jpg
HC039-7702r.jpg
HC039-7703r.jpg
HC039-7705r.jpg
HC039-7726r.jpg


<주방>

HC039-7710r.jpg
HC039-7711r.jpg
HC039-7713r.jpg
HC039-7714r.jpg
HC039-7715r.jpg
HC039-7716r.jpg
HC039-7724r.jpg
HC039-7725r.jpg


<다용도실>

HC039-7706r.jpg
HC039-7707r.jpg
HC039-7709r.jpg


<1층 욕실>

HC039-7717r.jpg
HC039-7719r.jpg
HC039-7722r.jpg


<1층 안방>

HC039-7682r.jpg
HC039-7683r.jpg
HC039-7684r.jpg
HC039-7693r.jpg


<1층 안방 드레스룸>

HC039-7689r.jpg
HC039-7690r.jpg
HC039-7691r.jpg


<안방 욕실>

HC039-7685r.jpg
HC039-7686r.jpg
HC039-7687r.jpg
HC039-7688r.jpg


<계단실>

HC039-7663r.jpg
HC039-7666r.jpg
HC039-7667r.jpg
HC039-7668r.jpg
HC039-7670r.jpg
HC039-7671r.jpg
HC039-7674r.jpg
HC039-7675r.jpg
HC039-7676r.jpg
HC039-7678r.jpg
HC039-7679r.jpg
HC039-7680r.jpg


<2층 거실>

HC039-7622r.jpg
HC039-7623r.jpg
HC039-7624r.jpg
HC039-7625r.jpg
HC039-7627r.jpg


<2층 방1>

HC039-7629r.jpg
HC039-7631r.jpg
HC039-7632r.jpg
HC039-7633r.jpg
HC039-7634r.jpg
HC039-7635r.jpg
HC039-7636r.jpg


<2층 욕실>

HC039-7638r.jpg
HC039-7639r.jpg
HC039-7642r.jpg
HC039-7643r.jpg
HC039-7644r.jpg


<2층 방2>

HC039-7646r.jpg
HC039-7647r.jpg
HC039-7648r.jpg


<2층 방3>

HC039-7657r.jpg
HC039-7658r.jpg
HC039-7659r.jpg
HC039-7660r.jpg
HC039-7661r.jpg


<2층 방4>

HC039-7650r.jpg
HC039-7651r.jpg
HC039-7653r.jpg


<다락>

HC039-7654r.jpg
HC039-7655r.jpg
HC039-7656r.jpg



HC039-7593r.jpg (좌측부터) 이동혁 건축가, 임성재 건축가, 정다운 건축가

HC017-2574r.jpg (좌측부터) 정다운 건축가, 임성재 건축가, 이동혁 건축가

[집이라는 본질적인 가치에 집중하다.]

Architecture Team : 홈트리오(주)

대표번호 : 1522-4279

홈페이지 : http://hometrio.kr/

KakaoTalk_20191210_164551850.jpg
KakaoTalk_20200521_090546896.jpg


keyword