51평 처마 아래 따뜻한 차 한잔(전원주택 트렌드Ⅳ)

2021 월간 홈트리오 2월호 ①

by 이동혁 건축가


2021 월간 홈트리오 2월호 ① - 51평 처마 아래 따뜻한 차 한잔(젊은 전원주택 트렌드Ⅳ)


※모든 저작권은 홈트리오(주)에게 있습니다. 최근 무단으로 디자인과 설계 평면도를 복제해 마치 본인들이 한 것인 듯 홍보하는 업체들이 있는데 법적 책임을 물을 수 있다는 점 고지드립니다.


STORY

: 처마 아래 앉아 아침 비 내리는 소리를 들으며 따뜻한 차 한잔의 여유를 가진다는 것.

광주광역시에 지어질 이번 주택은 51평의 넓은 면적과 모던함과 클래식함이 가지는 복합적인 감성을 가지고 태어난 주택입니다.


한 때 지붕 디자인을 여러 개로 쪼개고 미래지향적인 느낌으로 집을 설계하던 때가 있었는데요. 긴 시간을 돌아 돌아 다시 현재에 와서는 단조롭고 깔끔하면서 군더더기 없는 스타일의 집이 다시 트렌드로 자리 잡게 된 것 같습니다.


10년 전 전원주택을 짓는다고 하면 우리 머릿속에 고정관념처럼 박혀 있는 이미지들이 있었습니다. 조립식 주택 이미지와 통나무주택, 그리고 시골집의 이미지. 도심형 단독주택은 그나마 건축비를 투자하면서 이국적이고 특색 있게 지어지고 있었지만 수도권 외 지역에 지어지는 집들은 어느 정도 일관화된 느낌의 전원풍 디자인을 가지고 있더랬죠.


전원주택 디자인이 젊어지고 트렌디한 흐름을 따라가기 시작한 것은 5년이 채 안된 것 같아요. 신도시 등에 단독주택 필지 등이 같이 계획되고 아파트와 같이 공존할 수 있게 지구단위계획이 진행되면서 편리성과 안정성 등이 겸비된 단지들이 탄생을 한 것입니다. 그 흐름에 맞추어 노후에 지어야 한다라는 전원주택 이미지에서 젊은 신혼부부 층이 어린아이들을 키우면서 생활하는 집으로 이미지가 점점 변해간 것입니다.


현세대의 변화 흐름은 매우 빠릅니다. 무조건 최저가만 외치던 시장에서 이제는 비싸더라도 제대로 된 자재를 사용하여 꼼꼼히 짓는 것으로 흐름이 바뀌었고, "무조건 나만 믿고 지어라"라는 묻지도 따지지도 않고 집을 의뢰하는 방식에서 각 회사마다의 특장점을 건축주님들이 일일이 비교하면서 나에게 가장 맞는 회사를 찾아 집을 의뢰하는 방향으로 점차 바뀌어가고 있습니다.


똑같은 집들을 약간씩만 바꾸어 집을 설계하는 것이 아니라 건축주님만을 위한 공간을 설계하며, 땅이 가진 조건들과 한계성 등을 파악하여 최적의 배치를 찾아내는 시대가 된 것이죠.


그러한 흐름에서 시작점에서 출발한 이번 프로젝트는 그 자체로 많은 의미를 가지고 설계가 진행되었습니다.


51평이라는 규모는 결코 작은 크기가 아닙니다. 이미지 상으로 볼 때와는 다르게 실재 지어졌을 때 다가오는 느낌은 웅장함 그 자체일 것입니다.

집 매스가 커질수록 이 집을 더 커 보이게 만들 것인가(?), 아니면 안정감 있는 형태의 균형미를 디자인 방향성으로 잡고 설계할 것인가에 대한 고민에 빠집니다.


외부 입면 디자인을 간단히 설명드리면, 'ㄱ'자형 평면을 기준으로 코어 부분과 방 부분을 하나의 매스로 묶어주었습니다. 자연스럽게 현관 부분에서 무게를 잡아줄 수 있는 2층 매스 디자인을 잡아주었으며, 전면의 벽면이 많이 보이는 형태의 박공지붕을 얹혀주었습니다.

박공지붕의 장점이자 단점은 너무 단조롭다는 것에 있겠지요. 그래서 거실, 주방 부분은 층을 올리지 않고 단층으로 구성한 뒤 2층 부분의 박공지붕 각도와 90도로 꺾어 맞닿는 박공지붕 설계를 진행해 1층 부분을 지붕이 안정감 있게 감싸 안은 형상이 되도록 디자인하였습니다.


포인트는 전면부의 모노롱타일을 일부 사용했으며, 큰 통창을 전면 부에 적극 배치해 창 자체가 하나의 액자처럼 보일 수 있도록 하였습니다.


1층 부분에서 특징적인 부분은 한옥에서 볼 수 있었던 한식 마루가 포치 부분에 존재한다는 것입니다. 데크와는 다른 설계개념으로 신발을 벗고 올라가서 다과 및 차를 즐길 수 있는 공간이라 생각하시면 좋을 것 같습니다.


평면은 현관을 중심으로 안방 존과 공용 존으로 구분해 주었으며, 주방과 거실을 1:1 크기 비율로 공간을 할애했습니다. 전원주택의 매력포인트는 주방에 존재합니다. 아파트처럼 구석에 몰아넣는 것이 아니라 앞마당의 동선과 이어지게 하고 남향의 햇살을 받을 수 있게 하는 것이 최우선입니다. 다용도실은 필수로 존재해야 하며, 별도의 식탁 공간을 마련해 주어야 합니다.

전원생활을 시작하면 배달음식은 못 시켜먹습니다. 불러도 안 오거든요. 그리고 눈 오면 자연스레 고립이 됩니다. 서울처럼 제설 안 해주거든요. 그래서 음식을 저장해 놓을 공간이 필요하고, 냉장고도 1개가 아니라 기본 2개가 배치됩니다. 혹 아직 주방 공간을 작게만 생각하셨던 분들은 전원생활을 하고 계시는 분들의 조언을 꼭 듣고 공간 구성을 진행하시길 바라겠습니다. 현실과 이상은 분명 다르거든요.


2층은 공용화장실과 가족실, 방 2개를 구성해 놓았는데요. 2층 공간은 매일 사용하는 공간이라기보다는 자녀들이나 손님이 왔을 때 편안히 쉬다 갈 수 있는 독립적인 공간으로 설계를 했습니다.

특히 2층 가족실에서는 전면부 파티오 통창과 소파에 앉았을 때 바라볼 수 있는 긴 형태의 조망창은 전원주택만이 가지는 특유의 개방감을 느낄 수 있습니다.


마지막으로 지붕라인과 벽면이 거의 맞닿아 있다고 다들 생각하시는데 그렇지 않습니다. 30cm 정도 처마가 다 돌출되어 있답니다. 이렇게 설계해야 지붕의 먼지들이 빗물을 타고 벽에 눈물자국 발생시키는 것을 방지할 수 있습니다.


모던 스타일이라고 하는 것은 무조건 박스형으로 디자인했다 해서 모던 스타일이 되는 것이 아닙니다. 깔끔한 면처리, 그리고 집 전체의 디자인적 조화. 이런 요소들이 전부 모여야 비로소 모던 스타일의 감성을 뿜어내는 것입니다.

오염은 방지하고, 하자는 줄이고, 마지막으로 누구나 한 번쯤 길 지나가다 쳐다보면서 감탄을 자아내는 집.

여러분들도 이런 집 꼭 짓길 바라겠습니다.


#광주단독주택 #도심형단독주택 #예쁜전원주택 #한옥마루 #모던스타일

광주-세하동-투시도.jpg


공법 : 경량목구조

설계, 시공 : 홈트리오(주) / 상담문의 : 1522-4279

지붕마감재 : 아스팔트슁글 / 외벽 마감재 : 스타코플렉스 / 포인트자재 : 모노롱타일

실내벽마감재 : 실크벽지 / 실내바닥마감재 : 이건 강마루

창호재 : 이건 알루미늄 3중 시스템창호

건축면적 : 169.16㎡(1층 : 118.32㎡, 2층 : 50.84㎡)

예상 총 건축비 : 319,300,000원(부가세 포함, 산재보험료 포함 / 설계비, 인허가비, 구조계산 설계비 별도)

설계비 : 7,650,000원(부가세 포함) / 인허가비 : 5,100,000원(부가세 포함)

구조계산 설계비 : 5,100,000원(부가세 포함) / 인테리어 설계비 : 5,100,000원(부가세 포함)

*건축비 외 부대비용 : 대지구입비, 가구(싱크대, 신발장, 붙박이장), 기반시설 인입(수도, 전기, 가스 등), 토목공사, 조경비 등


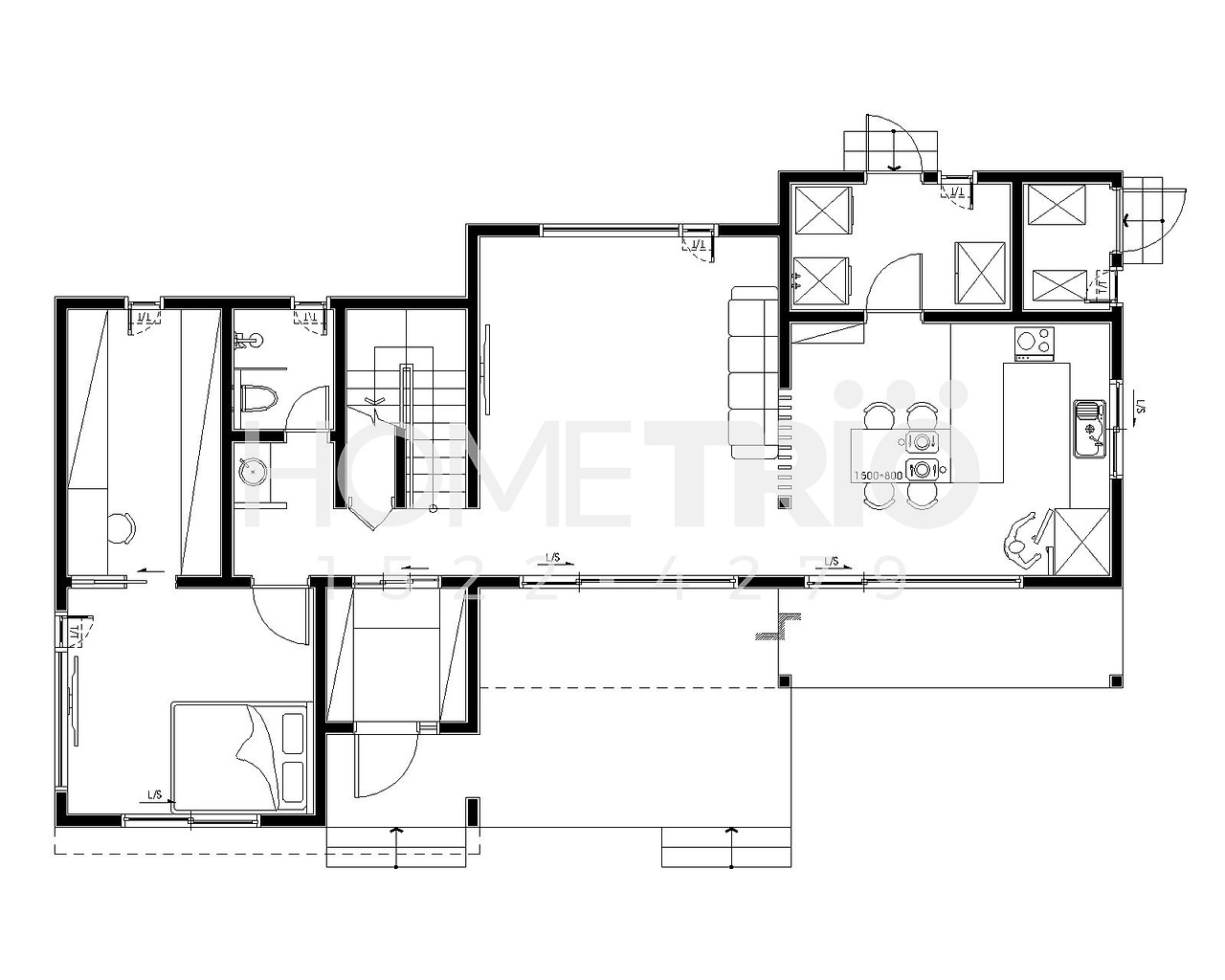
1층.jpg 1층 평면도
2층.jpg 2층 평면도


이동혁 건축가 : 'ㄱ'자형 주택의 정석과도 같은 배치를 1층에 적용했습니다. 남향을 바라보아야 하는 안방, 거실, 주방을 전면부에 배치하고 드레스룸, 화장실, 다용도실 등의 남향의 햇볕을 받지 않아도 되는 실들을 북쪽으로 배치해 집 전체의 공간 구성 밸런스를 맞추었습니다. 단열적인 부분 때문에 창을 무조건 작게만 하시려고 하시는 분들이 계신데 우선 남향에 실을 우선 배치하는 것부터 시작하세요. 북쪽에 방을 놓고 창을 작게 해달라고 하는 것보다는 남향에 배치되어야 하는 실과 북쪽에 배치되어도 괜찮은 실 등을 구분하여 설계를 한 뒤 그다음 창호를 고민하시는 것이 맞습니다.

정다운 건축가 : 두 개의 박공지붕이 존재하는 형태로 지붕 디자인을 완성하였습니다. 항상 말하듯 누수에 대한 위험성을 줄이려면 무조건 경사가 확실한 지붕형태를 구성해야 합니다. 모던한 박스 입면을 원한다고 경사 없는 지붕을 하는 경우들이 있는데 물이 고이는 순간 집 안으로 누수는 무조건 발생할 수밖에 없습니다. 누수가 발생되고 남 탓해봤자 의미 없습니다. 설계 단계에서부터 확실하게 하자가 발생될 수 있는 여지를 없애준 것. 그것이 집 짓기의 키 포인트랍니다.

임성재 건축가 : 입면을 보시면 거실과 주방 앞쪽으로 처마가 길게 뻗어 나온 것을 알 수 있습니다. 정확한 건축용어로는 '포치'라고 불리는 공간입니다. 건폐율과 건축비적인 부분 때문에 점차 포치라는 공간을 안 만들고 있는데 실상 전원생활의 묘미라고 할 수 있는 부분이 바로 이 '포치'입니다. 비가 오던 눈이 오던 잠깐 외부에 앉을 수 있는 공간이며, 이 공간을 통해 흔히 말하는 '비 멍'(비를 보며 멍 때리는 것), '눈 멍'(눈을 보며 멍 때리는 것)을 하게 되는 것입니다.


메스1.jpg
메스2.jpg
메스3.jpg
메스4.jpg
광주-세하동-투시도.jpg
광주-세하동-투시도-야경.jpg

eFD--Ti5M7DvyVXHXruNd0cvet4.jpg (좌측부터)정다운 건축가, 이동혁 건축가, 임성재 건축가

[집이라는 본질적인 가치에 집중하다.]

Architecture Team : 홈트리오(주)

대표번호 : 1522-4279

홈페이지 : http://hometrio.kr/

KakaoTalk_20191210_164551850.jpg


KakaoTalk_20200521_090546896.jpg