37평 해질녘의 여유(전원주택 트렌드Ⅳ)

2021 월간 홈트리오 1월호 ③

by 이동혁 건축가


2021 월간 홈트리오 1월호 ③ - 37평 해질녘의 여유(젊은 전원주택 트렌드Ⅳ)


※모든 저작권은 홈트리오(주)에게 있습니다. 최근 무단으로 디자인과 설계 평면도를 복제해 마치 본인들이 한 것인 듯 홍보하는 업체들이 있는데 법적 책임을 물을 수 있다는 점 고지드립니다.


STORY

: 깨끗한 느낌의 청초함.

밝고 투명함 느낌의 분위기로 설계된 전원주택입니다.

화이트톤 베이스 마감으로 보고만 있어도 마음이 깨끗해지는 느낌을 주는 주택이며, 외쪽지붕의 두 방향 경사 디자인으로 모던하면서 유니크한 입면이 매력적인 모델입니다.


37평의 2층 집으로 설계되었으며, 넓은 거실과 주방 그리고 2층의 독립적인 취미공간까지 마련된 팔방미인의 주택이라 할 수 있습니다. 방은 1층에 하나 2층에 하나 총 두 개 만을 구성하고 나머지 공간은 공용공간 쪽으로 활용해 30평형대의 소형주택이지만 시각적으로 넓은 개방감을 가져갈 수 있는 주택입니다.


전체적인 분위기를 매우 심플하게 가져간 주택입니다. 포인트 자체가 없고 화이트톤 스타코플렉스 베이스만으로 전체 색감을 잡고, 큰 창호를 전면에 배치해 창호 자체가 포인트로 인지될 수 있도록 하였습니다.


외쪽지붕을 앞과 뒤로 경사 디자인을 잡고 1층 부분에서 거실과 안방의 층고 높이를 달리 적용해 입면 자체에서도 지붕이 단조롭지 않고 입체감이 자연스럽게 느껴질 수 있도록 설계를 하였습니다. 전면부에서 창호면적이 차지하는 비중이 매우 높습니다. 단순히 벽돌이나 사이딩을 사용하여 공간을 채우는 것이 아닌 불필요한 포인트 비용을 줄이면서 채광과 조망을 확보할 수 있는 창문으로 디자인하면 건축비와 디자인을 모두 잡을 수 있는 일석이조의 방법으로 표현될 수 있습니다.


창문의 종류는 하나가 아닙니다. 옆으로 열릴 수도 있고 앞으로 열고 나갈 수도 있습니다. 또한 가로로 긴 픽스 창이나 세로로 긴 조망창 등을 활용하면 훨씬 다채로운 입면 파사드 디자인을 만들어 낼 수 있습니다.


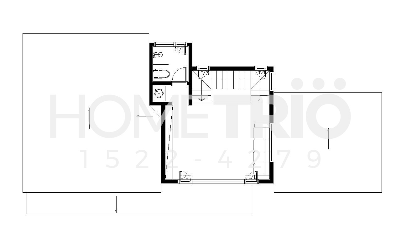
현관을 들어왔을 때 계단실이 바로 앞에 배치되어 있는데 그동안 보아왔던 'ㄷ'자형의 아닌 크게 돌아가는 'U'자형 계단이 존재하는 것을 확인할 수 있습니다. 상대적으로 면적을 좀 더 잡아먹는 계단 설계이지만 0.5평 정도의 복도 공간이 생겨나는 부분에 있어서 답답함을 없애고 가시적인 개방감을 좀 더 줄 수 있다는 장점이 존재합니다.


1층에는 방을 1개 만을 구성한 뒤 나머지 공간을 거실과 주방 등의 공용공간으로 면적을 할애했습니다. 1층 면적이 28평인 것을 감안하면 매우 넓은 면적을 공용공간으로 배치한 것을 알 수 있습니다. 무작정 남의 말을 듣고 작게만 지을 것이 아니라 건축주님의 라이프스타일에 따라서 면적을 정하는 것이 집 짓기에 있어 중요한 포인트라고 할 수 있습니다.


공간에 대한 개념이 잘 안 와 닿는 분들의 경우에는 가구 스케일을 기준으로 면적을 잡아나가면 됩니다. 예를 들면 안방의 공간에 침대와 붙박이장을 설치한다고 하면 가구 사이즈를 먼저 정한 뒤 지나다닐 수 있는 이동폭을 1m 정도 남겨놓고 면적을 산출하면 거의 낭비됨 없는 콤팩트 한 공간을 설계할 수 있습니다. 어려울 것 같지만 작은 부분부터 하나하나씩 잡고 나가면 데드 스페이스 없는 실내 공간을 만들어 낼 수 있답니다.


2층에는 방을 1개만 가져갔으며, 공간을 구획하는 것이 아닌 하나의 원 스페이스 공간으로 2층을 설계해 놓았습니다. 평소에는 다목적 공간을 사용하다가 손님이 오면 독립적인 영역성을 가지면서 편히 쉴 수 있는 공간으로 설계해 놓은 것입니다. 별도의 화장실까지 만들어 놓고 계단 부분에서 슬라이딩 도어를 설치해 1층과 완벽히 독립되는 공간이라고 생각하시면 좋을 것 같습니다.


30평형대의 주택을 설계할 때 가장 중요하게 생각해야 할 키포인트는 가시적으로 이 공간이 어떻게 보일 것인가입니다. 단순히 작게 작게만 구성하고 끝날 것이 아니라 정말로 내가 필요한 공간, 그리고 확실히 확보되어야 할 공간들을 각각 구분하여 이 공간들이 어설픈 공간으로 끝날 것이 아니라 정말로 필요로 하는 목적에 부합될 수 있는 공간으로 탄생될 수 있도록 방향을 잡고 나가야 합니다.


#가성비짱 #방2개 #독특한2층평면 #30평형모던스타일 #세컨하우스정석

충남-기산시-투시도-야경.jpg


공법 : 경량목구조

설계, 시공 : 홈트리오(주) / 상담문의 : 1522-4279

지붕마감재 : 아스팔트슁글 / 외벽 마감재 : 스타코플렉스 / 포인트자재 : 파벽돌

실내벽마감재 : 실크벽지 / 실내바닥마감재 : 이건 강마루

창호재 : 이건 알루미늄 3중 시스템창호

건축면적 : 122.18㎡(1층 : 93.32㎡, 2층 : 28.86㎡)

예상 총 건축비 : 224,600,000원(부가세 포함, 산재보험료 포함 / 설계비, 인허가비, 구조계산 설계비 별도)

설계비 : 5,550,000원(부가세 포함) / 인허가비 : 3,700,000원(부가세 포함)

구조계산 설계비 : 3,700,000원(부가세 포함) / 인테리어 설계비 : 3,700,000원(부가세 포함)

*건축비 외 부대비용 : 대지구입비, 가구(싱크대, 신발장, 붙박이장), 기반시설 인입(수도, 전기, 가스 등), 토목공사, 조경비 등


1층.jpg 1층 평면도
2층.jpg 2층 평면도

이동혁 건축가 : 집 전체에 심플하면서 모던한 느낌을 불어넣어주고자 했습니다. 화이트톤 외장 베이스에 창문 자체가 포인트가 될 수 있는 입면을 만들어 냈습니다. 외장재 부분에 대한 추가비가 제로입니다. 많은 분들이 벽돌이나 사이딩 종류의 외장재를 붙이는 가장 큰 이유가 예뻐서인 이유도 있지만 그것보다는 외장재의 오염 때문에 많은 비용을 들여 때가 덜 타는 종류의 외장재를 시공하는데요. "스타코플렉스 자체가 오염된다."라기보다는 지붕의 먼지가 빗물을 타고 흐르면서 눈물자국이 생기는 오염이 대부분입니다. 이번 주택처럼 화이트의 스타코플렉스를 시공하더라도 30cm 정도의 처마만 만들어준다면 그 오염을 90% 이상 줄일 수 있답니다.

정다운 건축가 : 1층을 28평이라는 넓은 면적으로 공간을 구성했습니다. 어설프게 방을 많이 만드는 것이 아닌 안방 1개 만을 구성한 뒤 나머지 공간들을 모두 공용공간으로 할애했습니다. 넓은 거실과 주방, 다용도실과 화장실까지 짜임새 있게 내부 설계가 이루어졌으며, 2층은 벽으로 공간을 구성하기보다는 하나의 원룸 형태의 공간으로 계획하여 다목적 공간의 역할을 할 수 있도록 하였습니다. 자녀 및 친척들이 놀러 와도 편안히 쉴 수 있는 공간이며, 별도의 화장실까지 구성하여 독립적인 영역성으로서 활용 가능한 공간이라 생각해주시면 좋을 것 같습니다.

임성재 건축가 : 30평형대 전원주택의 경우 넓은 면적의 공간은 아닙니다. 그렇기 때문에 어설프게 벽을 세우고 공간을 나누다 보면 정작 중요한 거실이나 주방 공간이 말도 안 되게 좁게 나오는 경우들이 있는데요. 전원주택은 아파트가 아니다 보니 너무 답답하게 공간을 구성하면 전원생활을 하는 느낌이 안 나오게 됩니다. 방은 작게 하더라도 가구에 맞게 공간을 구성하고, 거실과 주방을 먼저 면적 배정해 현관에 들어왔을 때 탁 트인 개방감을 느끼게 해주는 것이 좋습니다. 가끔 화장실이나 계단실처럼 이미 정해져 있는 최소면적의 공간들에 대해 고민하시는 분들이 계신데요. 더 못 줄여요. 더 줄이면 오히려 이상하게 공간이 만들어지거든요. 고민 없이 정해져 있는 면적으로 적용하세요.


메스1.jpg
메스2.jpg
메스3.jpg
메스4.jpg
충남-기산시-투시도.jpg
충남-기산시-투시도-야경.jpg

eFD--Ti5M7DvyVXHXruNd0cvet4.jpg (좌측부터)정다운 건축가, 이동혁 건축가, 임성재 건축가

[집이라는 본질적인 가치에 집중하다.]

Architecture Team : 홈트리오(주)

대표번호 : 1522-4279

홈페이지 : http://hometrio.kr/

KakaoTalk_20191210_164551850.jpg


KakaoTalk_20200521_090546896.jpg