#50 '아빠의 로망' 경주 현곡면 54평 전원주택

#50 목조 모던스타일 경북 경주 54평 전원주택 설계제안

by 이동혁 건축가

제목 : #50 '아빠의 로망' 경주 현곡면 54평 전원주택

소제목 : #50 목조 모던스타일 경북 경주 54평 전원주택 설계제안


출발


안녕하세요. 이동혁 건축가 입니다.^^

오늘 이야기 드릴 주택설계안은 경북 경주시 현곡면에 실재로 지어질 예정에 있는 주택입니다.

아빠의 로망이 담긴 이번 주택은 특히 남성 구독자분들께서 많은 관심을 가질 수 있는 설계안이지 않을까(?) 생각됩니다.^^;

모던한 느낌으로 심플함과 웅장함을 같이 느낄 수 있게 디자인하였으며, 리얼징크와 적삼목사이딩, 그리고 노출콘크리트보드까지 총 3가지의 포인트 자재를 사용하여 단조롭지 않고 각 부위별로 매스적 입체감이 더욱 극대화 될 수 있도록 설계하였습니다.^^

자 그럼 오늘도 출발해 보겠습니다.

*읽고 난 다음에는 위의 하트 모양 라이킷과 공유 꾹 눌러주세용~^^


thumbnail.jpg

HOUSE PLAN

연면적 : 177.51㎡

1층 : 98.43㎡

2층 : 79.08㎡

총괄 건축가 : 이동혁, 임성재, 정다운

설계·시공 : 홈트리오(주) 1522-4279

Homepage : http://hometrio.kr

이동혁건축가TV : http://tv.naver.com/sunsutu1

예상 총 건축비 : 274,100,000원(부가세포함)

설계비 및 인허가비 : 13,500,000(부가세포함)

*건축비 외 부대비용 : 대지구입비, 가구(싱크대, 신발장, 붙박이장), 기반시설인입(수도,전기,가스 등), 토목공사, 조경비 등


SPEC

공법 : 기초-철근콘크리트 / 1층, 2층 구조-목조

지붕마감재 : 아스팔트슁글

외벽마감재 : 스타코플렉스

외벽포인트자재 : 적삼목사이딩, 노출콘크리트보드, 리얼징크

실내벽마감재 : 실크벽지

실내바닥마감재 : 강마루

창호재 : 융기 3중 시스템창호

단열재 : 외부벽체(Glasswool Insulation R21HD-15" 나등급)

▷크나우프社 ECOBATT (ECOSE® 특허)

▷HD:저에너지 하우스용 / 15인치(381mm) *동등 제품

: 내부벽체(Glasswool Insulation R19-15" 다등급)

: 천장(Glasswool Insulation R30-15" 다등급)

: 지붕(Glasswool Insulation R37-23" 가등급) ▷ISOVER社에너지세이버

*단열기준은 2016년 7월1일자로 변경되는 단열기준법을 적용하여 강화시켜 놓았습니다.

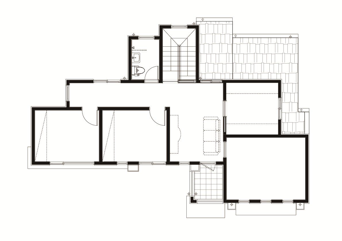
1층평면도.jpg 1층 평면도
2층평면도.jpg 2층 평면도

Q.설계 방향에 대해 설명해주세요.

이번 설계방향의 테마는 '아빠의 로망' 입니다.^^

아침에 일어나 모닝커피 한장. 그리고 거실 통창을 통해 들어오는 앞마당 자연의 기운을 느끼고 있노라면 이보다도 더 좋은 힐링은 없을 것입니다.^^

이번 주택은 거실과 주방, 그리고 식당에 이르기까지 외부와의 연계성과 확장성을 1층 공용공간에서 최대한 느낄 수 있도로 하였으며, 각 개인공간들마다 화장실과 드레스 룸 등 프라이빗한 편의 공간들을 배치하여 각 공간의 영역성을 극대화 시켜준 설계안 입니다.

특히 아빠들의 로망인 서재와 취미실 같은 공간의 배치로 나만의 시간을 누구의 방해도 받지 않고 즐길 수 있으며, 공용공간과의 동선적 분리를 통해 온전한 공간으로서의 설계를 만들어 냈습니다.



Q.면적은 얼마나 되는가요?

총 54평 2층으로 계획되어졌으며, 1층 98.43㎡(30평), 2층 79.08㎡(24평)으로 설계되어졌습니다. 일반적 전원주택보다는 조금 크게 설계되었으나 각 공간별 개인 프라이빗 영역을 모두 확보해 주었기 때문에 건축주님 마음에 꼭 드는 공간감과 설계구성이 나온 것 같습니다.


Q.비용은 얼마가 들었나요?

총 274,100,000원이 소요될 것으로 판단됩니다. 부가세가 포함된 가격이며, 순수한 건축비입니다. 설계비는 13,500,000원이 소요되어졌습니다. 이는 부가세 포함 가격이며, 인허가 및 사용승인 비용도 포함된 금액입니다.


Q.1층과 2층의 층고가 어떻게 되나요?

저희가 진행하는 모든 주택의 기본 층고는 1층은 2.7m, 2층은 2.4m로 계획하고 있습니다. 1층의 경우 개방감을 조금 더 중요시하기 때문에 기존 층고보다 30cm이상 올려놓았으며, 2층은 개방감 보다는 안정감과 단열 적인 부분을 더 중요시 하기 때문에 2.4m로 계획하고 있습니다.


Q.지붕의 경사도는 어느정도 해야하나요?

목조주택의 경우 지붕의 경사도는 필수 입니다. 최소 15도 이상은 진행하셔야 하며, 평균적으로 30도 정도는 진행하는 편입니다.

지붕 경사면때문에 모던함이 깨진다고 생각하시는 분들이 많은데 실상 GL레벨에서 보시면 지붕은 보이지도 않는 경우가 많답니다.^^;

너무 지붕에 얽매이지 마시고 첫번째는 공간, 그리고 두번째 입면 순으로 설계를 진행하시기 바랍니다.


Q.이번 주택의 거실부분 오픈천장이 독특하네요.

거실 오픈천장은 총 3가지로 구분될 수 있습니다. 1층 박공지붕면을 그대로 살려 오픈한 1층 오픈천장, 1.5층으로 벽을 조금 더 올려 오픈한 1.5층 오픈천장, 그리고 2층 끝까지 오픈시켜 시공하는 2층 오픈천장 이렇게 3가지가 있습니다.

일반적으로 1층 오픈천장과 2층 오픈천장 옵션을 많이 진행하시는데요. 이번 건축주님께서는 외부의 입면적 디자인을 고려하여 1.5층 오픈천장으로 시공을 진행하였습니다.^^


Q.설계기간 및 시공기간은 얼마나 걸릴까요?

설계기간은 인허가 포함 3달 정도를 잡는 것이 여유로우며, 시공기간은 착공일로부터 3.5개월을 잡는 것이 좋습니다. 사용승인(준공)까지 포함된 기간입니다. 요즘 건축 문의가 많아지면서 계약에 관련된 내용을 많이 물으시는데요. 오늘 계약했다고 해서 내일 당장 집을 지을 수 있는 것은 아니랍니다.^^; 저희의 경우에는 최소 착공일 6개월 전에 계약이 진행되어야 원하는 공사 날짜에 스타트가 가능합니다. 아마 이 부분은 컨테이너가 아닌 이상 타 업체들도 동일한 일정이라고 생각합니다.


Q.마지막 총평을 한다면?

50평이 넘어가는 주택의 경우 이번 모델처럼 매스적인 웅장함이 배가 되어집니다. 그만큼 모던한 느낌을 더욱 더 잘 살려줄 수 있으며, 입체적인 매스감도 넣어줄 수 있게 됩니다.^^

집을 짓기 위해 상담을 하다보면 의외로 사모님보다 사장님께서 더 관심있어 하시고 원하는 공간이 뚜렷하게 있으십니다. 그만큼 전원주택을 짓는다는 것이 누구 한 사람의 꿈이 아니라 가족 전체의 꿈이라는 것을 대변하는 것이겠지요.

이번 모델처럼 아빠의 로망이 담겨진 주택을 보고 있노라면 저도 언젠가는 나만이 즐길 수 있는 취미실과 서재 등을 꼭 같고 싶다는 생각이 든답니다.^^

정면도.jpg 정면도
좌측면도.jpg 좌측면도
우측면도.jpg 우측면도
배면도.jpg 배면도
지붕평면도.jpg 지붕평면도

도착


54평 아빠의 로망을 담은 설계안. 어떠셨나요?

경북 경주에 실재로 지어질 이번 설계안은 완공되는 그 모습이 매우 기대되는 주택 중 하나입니다.

모던함을 극대화 시킬 수 있는 디자인적 요소가 많이 적용되어졌으며, 내부 공간들도 기존 주택들과 달리 넓은 공간 스케일감으로 설계되어 답답함 없이 시원시원한 느낌의 주택을 설계하게 된 것 같습니다.

별도의 드레스룸과 창고, 그리고 취미공간과 서재까지 남성분들이라면 꿈꾸고 있는 공간들이 이번주택에서 모두 실현된 느낌입니다.

최근들어 철근콘크리트보다 목조에 대한 관심과 문의가 압도적으로 많아진 것 같습니다.

아마 지진에 대한 문제와 금액적인 문제, 그리고 단열 및 친환경에 대한 문제가 이러한 시장 흐름을 만든 것 같습니다.^^

아직도 많은분들이 우리집을 뭘로 지을까(?) 고민중이실텐데. 너무 고민하지마세요.

정말로 내가 집을 짓겠다 생각이 들었을 때 저희들에게 한번만 상담전화나 방문상담을 받아보시면 그 자리에서 생각이 정리되실꺼에요.

집이라는 것은 너무 머리아프게 시작하면 안된답니다. 안그래도 많은 문제들이 도사리고 있는데 첫 시작부터 머리아픈 고민을 하면 되겠습니까?^^;

머리아픈 고민들은 전문가들에게 맡기시고 예비건축주님들께서는 좋은 기억과 추억만으로 입주하시는 그날까지 웃으면서 집을 짓길 바라겠습니다.

감사합니다.^^

*읽고 난 다음에는 위의 하트모양 라이킷과 공유 꾹 눌러주세용~^^


클로즈업.jpg (좌측부터) 이동혁 건축가, 임성재 건축가, 정다운 건축가


총괄 건축가 : 이동혁, 임성재, 정다운

설계·시공 : 홈트리오(주) 1522-4279

Homepage : http://hometrio.kr

이동혁건축가TV : http://tv.naver.com/sunsutu1

[집이라는 본질적인 가치에 집중하다.]



글쓴이 : 이동혁 건축가

이메일 : sunsutu@hanmail.net


상담 및 자문(홈트리오(주) 대표)

이동혁 건축가 : 010-4567-8413

정다운 건축가 : 010-8560-0477

임성재 건축가 : 010-9941-8899



keyword