#22 '감성 취향저격' 평창 47평 전원주택

#22 목조 북유럽 스타일 강원 평창 대화면 47평 전원주택 완공 사례

by 이동혁 건축가

제목 : #22 '감성 취향저격' 평창 47평 전원주택

소제목 : #22 목조 북유럽 스타일 강원 평창 대화면 47평 전원주택 완공 사례


출발


안녕하세요. 이동혁 건축가 입니다.^^

벌써 11월 말이 다가오고 있네요. 가을이 왔다고 좋아했던 때가 엊그제 같은데 벌써 첫눈을 기다리고 있는 계절이 되었습니다.

어제 강릉 쪽으로 출장을 다녀왔는데요. 제2영동고속도로를 타고 달리다 보니 양쪽으로 붉게 물든 단풍들이 절경을 이룬 것을 볼 수 있었습니다.^^ 일을 하러 가는 거였는데도 불구하고 마치 여행을 다녀온 기분을 들게 하네요.

오늘은 강원도 평창 대화면에 지어진 북유럽식 스타일의 주택을 소개하여 드릴까 합니다.

유럽의 감성과 현대적인 감성이 같이 공존하는 이번 주택은 북유럽 감성을 좋아하시는 분들께는 취향 저격할 만한 주택이 아닐까(?) 생각됩니다.^^

자 그럼 오늘도 출발해 보겠습니다.

*읽고 난 다음에는 위의 하트 모양 라이킷과 공유 꾹 눌러주세용~^^


DSC_1201.jpg


HOUSE PLAN

연면적 : 155.01㎡

1층 : 107.76㎡

2층 : 47.25㎡

규모 : 지상 2층

총괄 건축가 : 이동혁, 임성재, 정다운

설계·시공 : 홈트리오(주) 1522-4279

Homepage : http://hometrio.kr

이동혁건축가TV : http://tv.naver.com/sunsutu1

예상 총 건축비 : 267,000,000원(부가세 포함)

설계비 및 인허가비 : 11,750,000(부가세 포함)

*건축비 외 부대비용 : 대지구입비, 가구(싱크대, 신발장, 붙박이장), 기반시설 인입(수도, 전기, 가스 등), 토목공사, 조경비 등


SPEC

공법 : 기초-철근콘크리트 / 1층, 2층 구조-목조

지붕마감재 : 점토기와(테릴기와)

외벽마감재 : 스타코플렉스

외벽포인트자재 : 파벽돌, 적삼목사이딩

실내벽마감재 : 실크벽지

실내바닥마감재 : 강마루

창호재 : 융기 3중 시스템창호

단열재 : 외부벽체(Glasswool Insulation R21HD-15" 나등급)

▷크나우프社 ECOBATT (ECOSE® 특허)

▷HD:저에너지 하우스용 / 15인치(381mm) *동등 제품

: 내부벽체(Glasswool Insulation R19-15" 다등급)

: 천장(Glasswool Insulation R30-15" 다등급)

: 지붕(Glasswool Insulation R37-23" 가등급) ▷ISOVER社에너지세이버

*단열기준은 2016년 7월1일자로 변경되는 단열기준법을 적용하여 강화시켜 놓았습니다.

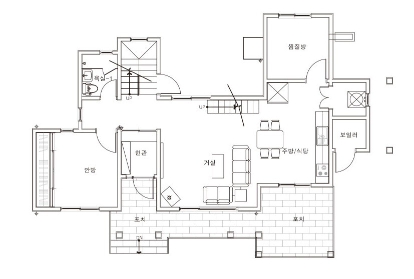
1.jpg 1층 평면도(찜질방의 경우 실재 공사에서는 적용되지 않았으며, 식당 공간으로 대체되었습니다.)


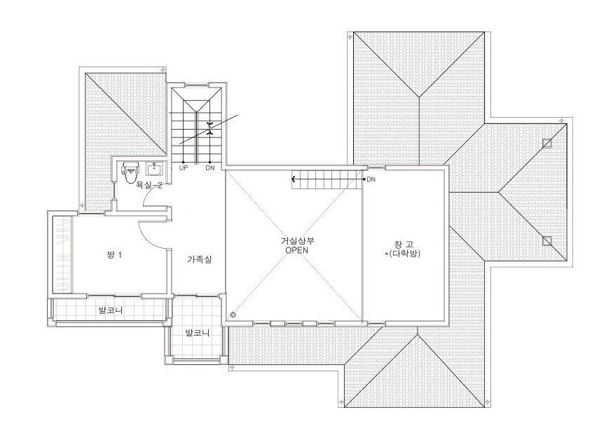
2.jpg 2층 평면도


Q.설계 방향에 대해 설명해주세요.

이번 설계 방향의 테마는 '북유럽 감성의 취향저격'입니다.^^

취향저격이라니 조금은 생소하시죠? 최근 들어 젊은 건축주님들께서 전원주택을 본격적으로 짓기 시작하면서 깔끔하고 모던한 주택 디자인 위주로 집을 짓고 있습니다.

물론 각 스타일별로 장, 단점이 있고 느껴지는 분위기가 아예 틀린 만큼 무엇이 더 좋고 나쁨을 판단하기에는 어려움이 있을 걸로 생각됩니다.^^;

솔직히 모던이냐, 북유럽식이냐, 일본식이냐 라는 물음에는 좋고 나쁨을 떠나 개인적 취향 문제라고 답변드리고 싶네요.^^

이번 주택에서는 다양한 요소들이 적용되어졌습니다. 오픈 천장 및 거실에서 이어지는 다락, 넓은 포치와 데크까지. 일반적으로 사용되는 요소들이라 할 수 도 있지만 이번 주택처럼 넓은 공간을 디자인되어 시공된 사례는 이번 주택이 처음이 아닐까 싶습니다.

북유럽식 감성을 좋아하시는 예비건축주님들께서는 아마 이번 사례가 취향 저격할 수 있는 사례이지 않을까 조심스럽게 생각해봅니다.^^


Q.면적은 얼마나 되는가요?

총 47평 1층(107.76㎡), 2층(47.25㎡)으로 계획된 2층 전원주택입니다. 1층을 33평으로 거실과 주방 위주의 공용공간으로 설계하였으며, 2층을 프라이빗한 개인적 공간으로 구성하였습니다.


Q.비용은 얼마가 들었나요?

총 267,000,000원이 소요될 것으로 판단됩니다. 부가세가 포함된 가격이며, 순수한 건축비입니다. 설계비는 11,750,000원이 소요되어졌습니다. 이는 부가세 포함 가격이며, 인허가 및 사용승인 비용도 포함된 금액입니다.


Q.벽난로 굴뚝의 경우 시공비가 별도로 있나요?

네 그렇습니다. 일반적으로 벽난로는 건설회사에서 시공하는 것이 아닌 벽난로 전문 업체에서 직접 현장으로 와 시공을 하고 있습니다. 다만 지붕에서 바로 연통이 나오게 되면 미관상 이쁘지 않기 때문에 저희 쪽에서 100만 원의 실비용을 받고 굴뚝 형태로 디자인해 드리고 있습니다.^^


Q.데크의 경우 기초 부분 마감을 어떻게 하나요?

대부분 맨 땅에다 볼록한 시멘트를 기초로 둔 뒤에 목재데크를 바로 시공하는 경우가 많은데요. 이렇게 시공할 경우 나머지 부분의 땅이 파이면서 물이 고여 썩는 문제점이 발생한답니다.

그래서 저희들은 건물 기초와 같이 데크 기초를 같이 뻗어내어 시공하며, 기초가 전부 깔린 위에 데크를 얹혀 시공하고 있습니다.


Q.주차장 계획은 꼭 해야 하나요?

주차장의 경우 인허가 단계에서 필수로 들어가야 하는 건축 사항입니다.

많은 분들이 준공단계에서 주차장을 만들어 놓았다가 추후 마당으로 그냥 쓰시는 데 사용 자체에는 문제가 없지만 추후 민원이 들어갔을 때에 벌금 및 원상복구 명령이 떨어질 수 있으므로 남의 집에서 주차장을 안 했다고 하여 내 집에도 안 하는 일은 없으셔야 합니다.^^


Q.설계기간 및 시공기간은 얼마나 걸릴까요?

설계기간은 인허가 포함 3달 정도를 잡는 것이 여유로우며, 시공기간은 착공일로부터 3.5개월을 잡는 것이 좋습니다. 사용승인(준공)까지 포함된 기간입니다.

인허가 기간이 일반적으로는 15일이면 되지만 최근 들어 규제가 까다롭게 적용되고 있어 평균 30일은 걸리는 것 같습니다. 특히 신고권이 아닌 허가권에서 심의가 있는 곳은 더 걸릴 수 있으니 인허가 기간을 넉넉히 잡으신 후 일을 진행하길 권해드립니다.^^


Q.마지막 총평을 한다면?

이번 주택은 북유럽의 감성과 현대적인 감각을 동시에 만족시켜 준 주택이라 생각합니다.^^

가족들이 다 모였을 때 불편함이 없도록 공간 구성이 되었으며, 전 창 3중 시스템창호 적용으로 가장 걱정하셨던 단열에 대한 부분도 완벽하게 보강을 진행하였습니다.

아직 조경이 진행되기 전이기 때문에 완벽히 100% 공사가 끝났다고 보기는 어렵지만 평창 대화면에서 가장 아름다운 집으로 손꼽히지 않을까 조심스럽게 생각해봅니다.^^;

이번 주택에서는 넓은 공간인 만큼 벽난로를 거실에 도입하였으며, 기름보일러 외에도 공기를 데울 수 있는 보조 난방기기를 선택하여 난방비에 대한 걱정을 줄일 수 있도록 매니징 하였습니다.

평창은 울창한 숲이 매우 매력적인 곳이라 할 수 있습니다. 이번 주택에서는 2층에 타 주택보다 넓은 발코니를 적용하여 가족들이 2층에 나와 같이 바람을 쐬고 단풍 및 멋진 평창의 풍경을 조망할 수 있도록 계획하였습니다.^^


외부
DSC_1202.jpg
DSC_1210.jpg
DSC_1215.jpg
DSC_1216.jpg
DSC_1217.jpg


현관
DSC_1028.jpg
DSC_1029.jpg
DSC_1032.jpg
DSC_1184.jpg
DSC_1185.jpg
DSC_1188.jpg
DSC_1189.jpg
DSC_1190.jpg


거실
DSC_1033.jpg
DSC_1039.jpg
DSC_1040.jpg
DSC_1183.jpg
DSC_1050.jpg
DSC_1051.jpg
DSC_1053.jpg
DSC_1058.jpg


다락
DSC_1059.jpg
DSC_1085.jpg
DSC_1090.jpg
DSC_1094.jpg
DSC_1096.jpg
DSC_1097.jpg
DSC_1098.jpg
DSC_1099.jpg
DSC_1100.jpg
DSC_1101.jpg


주방
DSC_1063.jpg
DSC_1064.jpg
DSC_1066.jpg
DSC_1067.jpg
DSC_1068.jpg
DSC_1069.jpg


식당
DSC_1071.jpg
DSC_1072.jpg
DSC_1073.jpg
DSC_1075.jpg
DSC_1077.jpg
DSC_1079.jpg
DSC_1084.jpg


방1
DSC_1103.jpg
DSC_1108.jpg
DSC_1110.jpg
DSC_1112.jpg
DSC_1114.jpg


복도
DSC_1117.jpg
DSC_1119.jpg


1층 화장실
DSC_1120.jpg
DSC_1122.jpg


2층 계단
DSC_1125.jpg
DSC_1127.jpg
DSC_1130.jpg
DSC_1131.jpg
DSC_1134.jpg
DSC_1135.jpg


2층 화장실
DSC_1136.jpg
DSC_1139.jpg
DSC_1140.jpg


방2
DSC_1144.jpg
DSC_1146.jpg
DSC_1154.jpg


2층 발코니
DSC_1155.jpg
DSC_1157.jpg
DSC_1159.jpg
DSC_1160.jpg
DSC_1163.jpg
DSC_1165.jpg


방3
DSC_1178.jpg
DSC_1179.jpg
DSC_1181.jpg


도착


강원 평창 대화면에 완공된 47평 북유럽식 스타일 전원주택. 어떠셨나요?

감성을 취향저격했는지 모르겠네요.^^;

이번 주택의 매력은 다양한 공간에 적용된 아이디어들이라 생각됩니다. 넓게 빠진 1층 포치부터 멋진 조망을 볼 수 있는 2층 발코니, 그리고 단풍과 잘 어울리는 점토기와에 주황빛 파벽돌. 아마 고즈넉한 분위기를 좋아하시는 분들께는 딱 맞춘 주택이 아닐까 싶습니다.

저희들은 벌써 내년 공사를 준비 중에 있답니다.^^

봄 공사와 가을 공사의 60%가량 계약이 완료되어 설계를 열심히 진행 중에 있습니다. 올해 계약이 7월에 너무 일찍 마감되어 많이 아쉬워하셨던 건축주님들이 계셨는데요. 내년에는 인력 보강 및 관리적인 측면을 한층 더 강화하기로 했답니다.

1년에 진행할 수 있는 프로젝트 개수는 크게 늘어나지 않았지만 한채, 한채 더욱 꼼꼼히 시공하고 디자인하는 회사가 될 테니 앞으로도 많은 관심과 사랑 부탁드립니다.

감사합니다.^^

*읽고 난 다음에는 위의 하트 모양 라이킷과 공유 꾹 눌러주세용~^^


JsEHh6cf1UcgtzxKqtlYOpUXJhk.jpg (좌측부터) 이동혁 건축가, 정다운 건축가, 임성재 건축가


총괄 건축가 : 이동혁, 임성재, 정다운

설계·시공 : 홈트리오(주) 1522-4279

Homepage : http://hometrio.kr

이동혁건축가TV : http://tv.naver.com/sunsutu1

[집이라는 본질적인 가치에 집중하다.]


글쓴이 : 이동혁 건축가

이메일 : sunsutu@hanmail.net


상담 및 자문(홈트리오(주) 대표)

이동혁 건축가 : 010-4567-8413

정다운 건축가 : 010-8560-0477

임성재 건축가 : 010-9941-8899



keyword