#62 '경사지를 활용하다.' 여주 63평 전원주택

#62 경기 여주시 산북면 목조 경사지 활용 63평 전원주택 설계 제안

by 이동혁 건축가

제목 : #62 '경사지를 활용하다.' 여주 63평 전원주택

소제목 : #62 경기 여주시 산북면 목조 경사지 활용 63평 전원주택 설계 제안


출발


안녕하세요. 이동혁 건축매니저 입니다.^^

날씨가 흐려지더니 빗방울이 한두 방울 떨어지네요. 겨울인데 날씨가 따뜻하다 보니 눈이 아닌 비가 내리나 봅니다. 포근하다는 느낌이 드는 겨울. 겨울은 추워야 제맛인데 조금은 아쉬움이 남네요.ㅠㅠ

그래도 집을 짓기에는 너무 좋은 날씨라 매일매일 은근 행복해하고 있답니다.^^

오늘 이야기 드릴 주택은 경사지에 지은 63평 전원주택입니다. 경사지라고 해서 너무 걱정하고 계셨던 분들은 이번 사례를 보시면서 조금은 걱정 더시길 바라겠습니다.^^

자 그럼 오늘도 출발해 보겠습니다.

*읽고 난 다음에는 위의 하트 모양 라이킷과 공유 꾹 눌러주세용~^^


여주 주택thumbnail.jpg

HOUSE PLAN

연면적 : 210.10㎡

지하층 : 45.50㎡

1층 : 35.90㎡

2층 : 128.70㎡

다락 : 99.00㎡(연면적 제외)

규모 : 지상 2층

총괄 건축매니저 : 이동혁, 임성재, 정다운

설계·시공 : 홈트리오(주) 1522-4279

Homepage : http://hometrio.kr

이동혁건축가TV : http://tv.naver.com/sunsutu1

예상 총 건축비 : 570,000,000원(지하주차장 및 토목공사, 다락 포함, 부가세 포함)

설계비 및 인허가비 : 15,750,000(부가세 포함)

*건축비 외 부대비용 : 대지구입비, 가구(싱크대, 신발장, 붙박이장), 기반시설 인입(수도, 전기, 가스 등), 토목공사, 조경비 등


SPEC

공법 : 기초-철근콘크리트 / 1층, 2층 구조-목조

지붕마감재 : 스페니쉬 기와

외벽마감재 : 스타코플렉스

외벽포인트자재 : 파벽돌, 리얼징크

실내벽마감재 : 실크벽지

실내바닥마감재 : 강마루

창호재 : 융기 3중 시스템창호

단열재 : 외부벽체(Glasswool Insulation R21HD-15" 나등급)

▷크나우프社 ECOBATT (ECOSE® 특허)

▷HD:저에너지 하우스용 / 15인치(381mm) *동등 제품

: 내부벽체(Glasswool Insulation R19-15" 다등급)

: 천장(Glasswool Insulation R30-15" 다등급)

: 지붕(Glasswool Insulation R37-23" 가등급) ▷ISOVER社에너지세이버

*단열기준은 2016년 7월1일자로 변경되는 단열기준법을 적용하여 강화시켜 놓았습니다.

02-주차장평면도.jpg 지하 주차장 평면도
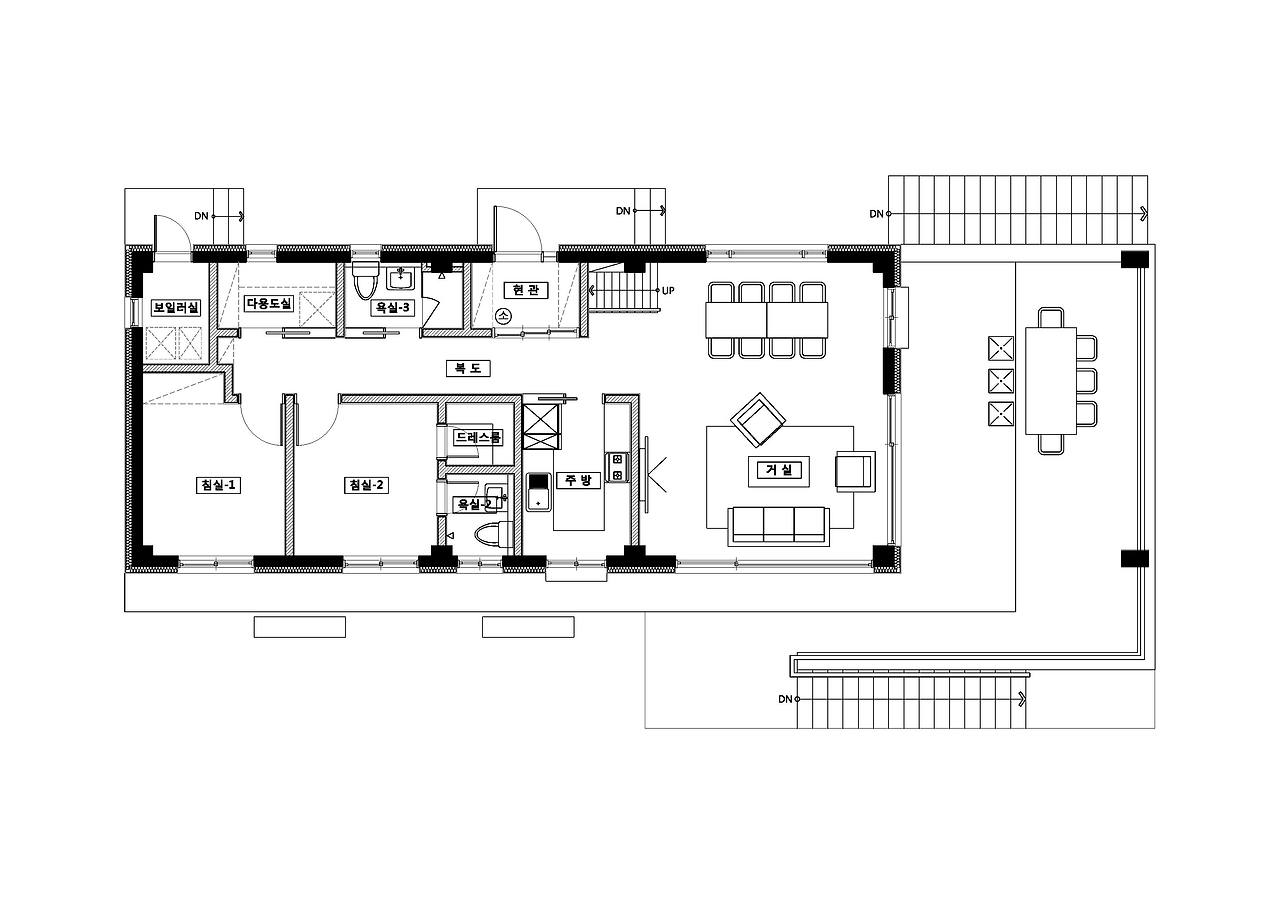
03-1층평면도.jpg 1층 평면도
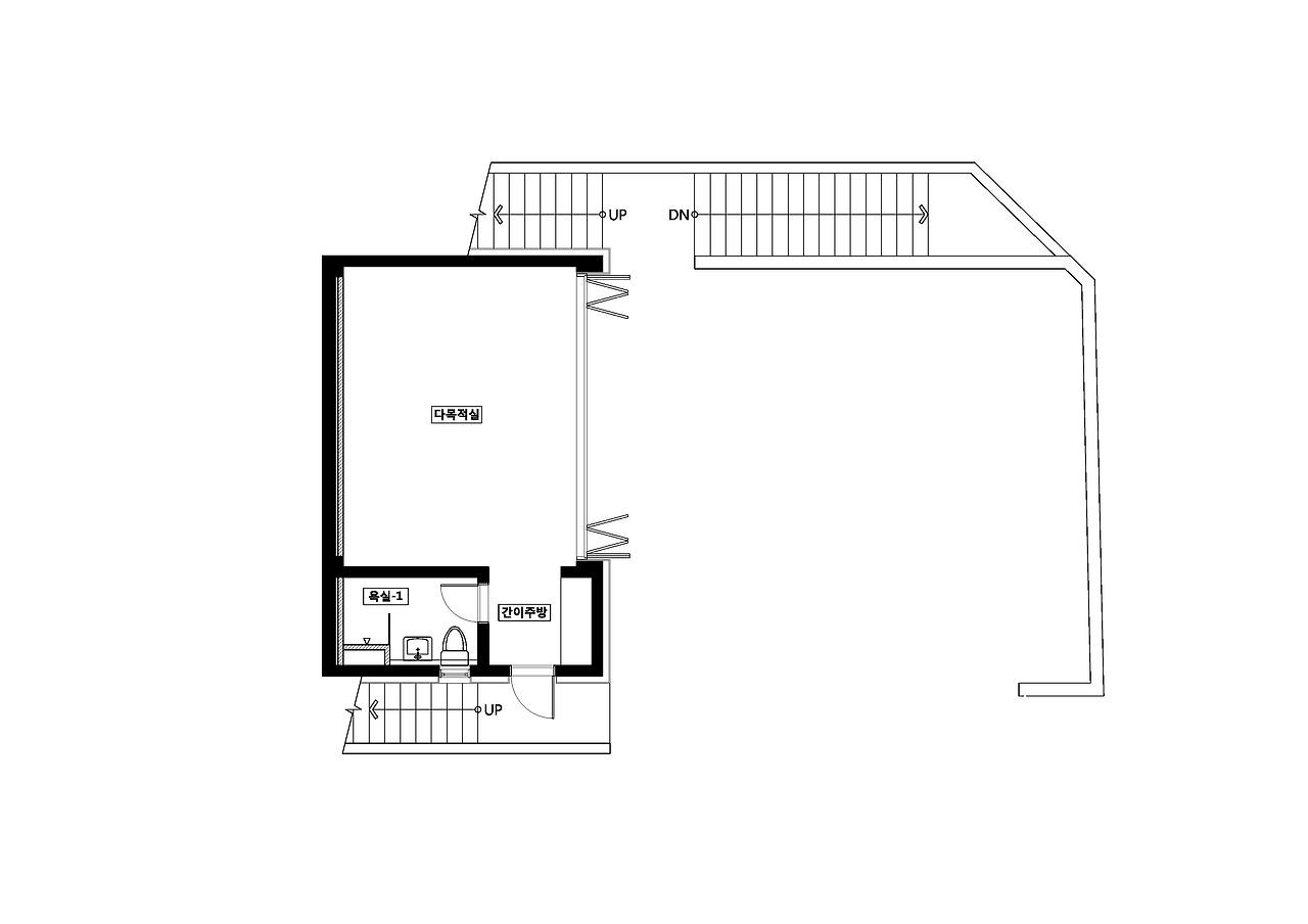
04-2층평면도.jpg 2층 평면도
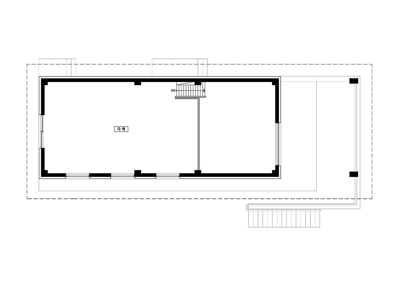
05-다락평면도.jpg 다락 평면도


Q.설계 방향에 대해 설명해주세요.

이번 설계 방향의 테마는 '경사지를 활용하다.'입니다.

경사지를 활용한다니 재미있는 설계안이 나오지 않았을까(?) 생각되지 않나요?

여러분들의 기대치에 맞게 일반적인 설계안이 아닌 이 땅에 맞는 조금은 독특한 설계안이 만들어졌습니다.^^

지하주차장부터 시작되는 공간은 1층과 2층 그리고 다락까지 평면적으로 보았을 때는 약 4층 정도의 집이 설계되었습니다.

각 공간과 층수에 맞게 설계되었으며, 최대한 낭비되는 공간 없이 모든 공간을 데드 스페이스 없게 설계하고자 노력하였습니다.


Q.면적은 얼마나 되는가요?

총 63평 지하주차장+1층, 2층(210.10㎡)으로 설계되었으며, 지하주차장 45.50㎡(14평), 1층 35.90㎡(11평), 2층 128.70㎡(39평), 다락 99.00㎡(30평)로 계획되었습니다.


Q.비용은 얼마가 들었나요?

건축비의 경우 570,000,000원이 소요될 것으로 예상됩니다. 부가세가 포함된 가격이며, 순수한 건축비입니다.

설계비는 15,750,000원이 소요되어졌습니다. 이는 부가세 포함 가격이며, 인허가 및 사용승인 비용도 포함된 금액입니다.


Q.외벽 스타코플렉스의 색깔을 변경할 때 비용이 추가되나요?

그렇지는 않습니다. 외벽 스타코플렉스 색깔은 다양하게 변경 가능하며, 색을 변경한다고 해서 추가가 되는 것이 아니니 이번 주택처럼 외벽의 색 변화만으로도 다양한 이미지가 연출 가능하답니다.^^


Q.지붕형 발코니의 경우 건축비가 어떻게 되나요?

목조주택에 발코니를 설치할 때에는 필수적으로 지붕을 씌워줘야 합니다. 직사광선을 피하셔야 하며, 발코니 위에 지붕을 시공하여 혹시 모를 누수에 대비하셔야 합니다. 간혹 지붕이 없는 것이 이쁘다고 무조건 해 달라고 하시는 분들이 계신데 이는 위험한 행동입니다. ^^;

건축가가 지붕을 없애도 된다고 하여도 우리 구독자 여러분들은 꼭 지붕을 씌워 달라고 요청하셔야 합니다.^^

지붕형 발코니의 경우 평당 단가로 따졌을 때 260만 원(부가세 포함)으로 진행되며, 내부 마감까지 포함된 금액입니다.


Q.주차장 계획은 꼭 해야 하나요?

주차장의 경우 인허가 단계에서 필수로 들어가야 하는 건축 사항입니다.

많은 분들이 준공단계에서 주차장을 만들어 놓았다가 추후 마당으로 그냥 쓰시는 데 사용 자체에는 문제가 없지만 추후 민원이 들어갔을 때에 벌금 및 원상복구 명령이 떨어질 수 있으므로 남의 집에서 주차장을 안 했다고 하여 내 집에도 안 하는 일은 없으셔야 합니다.^^


Q.설계기간 및 시공기간은 얼마나 걸릴까요?

설계기간은 인허가 포함 3달 정도를 잡는 것이 여유로우며, 시공기간은 착공일로부터 5개월을 잡는 것이 좋습니다. 사용승인(준공)까지 포함된 기간입니다.

이번 주택의 경우 목조주택이지만 지하의 콘크리트 공사가 동반되므로 3.5개월이 아닌 5개월 정도 시공기간을 잡는 것이 옳습니다.^^


Q.마지막 총평을 한다면?

경사지에 짓는 집은 기본적으로 토목공사를 동반할 수밖에 없습니다. 다시 말하면 건축비 외 토목공사비의 비중을 어느 정도 가지고 가야 한다는 것을 뜻합니다.

단순히 땅을 올려 평평하게 만들 것이냐(?), 아니면 그 공간을 이번 주택처럼 주차장 및 활용 공간으로 만들 것이냐 하는 문제는 솔직히 비용과 관련되어 있다고 볼 수 있습니다.

예산을 먼저 잡고 집 짓기에 도전하실 때 경사진 땅을 보고 있으시다면 꼭 이러한 토목공사와 건축 시공비 등을 꼼꼼히 계획하신 뒤에 시작하시는 것이 좋습니다.^^

보통 많은 분들께서 인터넷을 정말 열심히 뒤져서 공부하다가 오시는데 너무 긴 시간 인터넷을 검토하다 보면 무엇이 진실이고 거짓인지 헷갈릴 때가 있습니다. 그럴 때는 스스로 판단하시지 마시고 꼭 저희들과 같은 전문가에게 자문을 구하는 것이 가장 좋습니다.^^

직접 찾아오시기가 힘들다고요? 그럼 카톡이나 문자로 주세요. 저희가 시간 되는 대로 답변드리겠습니다.^^

07-정면도.jpg 정면도
10-좌측면도.jpg 좌측면도
08-우측면도.jpg 우측면도
09-배면도.jpg 배면도
06-지붕평면도.jpg 지붕 평면도


투시 1.jpg 매스-1
투시 2.jpg 매스-2
투시 3.jpg 매스-3


도착


63평 경기 여주시 산북면 명품리에 지어질 전원주택 설계안. 어떠셨나요?

경사지에 집을 짓다니(?) 조금은 생소한 집이라 느껴지지 않나요?

경사지에 그동안 집들은 많이 안 지은 이유가 있었답니다. 그 이유는 집값보다 큰 토목공사비에 있습니다. 단순히 콘크리트 박스 짜서 위에 집 올리면 되겠지(?)라는 생각들을 다들 하시지만 생각보다 토압을 견디게 만드는 콘크리트 옹벽을 짜서 넣는다는 게 쉽지가 않답니다.^^;

위에 제시해 드린 금액을 보시면 건축비만큼 토목공사비의 비중이 크게 작용했다는 것을 볼 수 있을 겁니다.

하지만 너무 실망하지 마세요. 토목공사비를 최대한 줄일 수 있는 방법과 공간을 활용할 수 있는 방법들을 찾아내는 것이 저희들이니 경사지 땅을 가지고 계신다면 인터넷을 뒤지기보다는 저희들에게 찾아와 상담받도록 하세요.

오늘은 여기까지 입니다.

다들 즐거운 연말 보내시길 바랍니다.^^

*읽고 난 다음에는 위의 하트모양 라이킷과 공유 꾹 눌러주세용~^^


KakaoTalk_20161025_150013244.jpg (좌측부터) 정다운 건축가, 임성재 건축가, 이동혁 건축가


설계·시공 : 홈트리오(주) 1522-4279

Homepage : http://hometrio.kr

이동혁건축가TV : http://tv.naver.com/sunsutu1

[집이라는 본질적인 가치에 집중하다.]


글쓴이 : 이동혁 건축매니저

이메일 : sunsutu@hanmail.net


상담 및 자문(홈트리오(주) 대표)

이동혁 건축가 : 010-4567-8413

정다운 건축가 : 010-8560-0477

임성재 건축가 : 010-9941-8899



keyword