brunch

'양양 바닷바람을 품다' 42평 양양 전원주택 완공

#64 홈트리오 시공사례 - 건축비 : 31,200만 원

by 이동혁 건축가

*구독 버튼은 필수인 것 다들 아시죠^^

HC073-7861(h).jpg

제목 : '양양 바닷바람을 품다' 42평 양양 전원주택 완공

소제목 : #64 홈트리오 시공사례 - 건축비 : 31,200만원


STORY

: 마음의 여유.

도심을 벗어나 한가로운 바닷 마을 앞에서 즐기는 커피 한잔.

이번 주택은 양양의 탁 트인 바다 앞에서 지어질 주택으로, 고즈넉하게 내려앉은 처마와 화이트톤 외벽이 주는 차분한 감성이 매력적인 집입니다.


뛰어난 단열성과 가성비 높은 건축비는 이 집의 장점이라 칭할 수 있으며, 큰 포인트 없이도 창 자체가 포인트가 되는 신비로운 설계요소들로 탄생한 주택입니다.


여유로움이라는 감성을 품고 태어난 집.

이번 주택은 양양이라는 바다 마을이 떠오르는 그러한 여유로운 감성의 집으로 설계된 주택이랍니다.


현 주택 시장 상황을 살펴보면 집을 가진 자가 죄가 되는 시대라고 볼 수 있는데요. 3년 전만 해도 '욜로'라는 열풍이 불면서 도심의 집을 떠나 시골로, 농촌으로 세컨드 하우스를 지어 나가는 분들이 많았었습니다.

월간 홈트리오가 '전원주택 트렌드'라는 제목의 책으로 벌써 5년째 쓰이고 있다 보니 시대의 흐름을 집에 담아서 발표하게 된 것 같아요.


저도 3년 전 썼던 책을 다시 들여다보면 마치 역사책처럼 "아 이 연도에는 이러한 사회적 문제가 있었고, 우리들이 어떠한 고민들을 하고 있었구나!"라는 것을 알게 됩니다. 그만큼 지금의 이 글도 현 사회상을 담아 적고 있는 역사 기록쯤 되지 않을까 조심스럽게 생각해 봅니다.


저희들이 설계하고 시공한 집을 쭉 세 보니 약 250채 정도 되는 것 같아요. 10년이라는 시간 동안 정말 많이 짓기는 했네요. 본격적인 글과 책을 기록하기 시작한 지가 5년이니, 만약 전원주택에 대한 역사와 사회상을 알고 싶으신 분들이 계시다면 '젊은 전원주택 트렌드'를 1권부터 쭉 읽어나가시면 좋을 것 같습니다. 정말 집의 설계안들이 그 상황을 대변하고 있거든요.


건축비가 코로나19를 거치면서 정말 많이 올랐습니다. 그 결과가 주택 디자인에 나타나고 있는 것 같아요. 2021년도 초만 해도 건자재비 및 장비대가 저렴한 편이었는데 1년 사이 두 개 가까이 비용이 올라버렸습니다. 철근 가격의 경우 3배 이상 올랐으니 말 다했죠. 해가 지나면 내려간다고 이야기하는 사람들이 있는데 생각이 있게 말하는 것인지 모르겠어요. 업계 사람들은 다 알아요. 해가 넘어가면 인건비는 무조건 올라가고 장비대 및 운영비용도 모두 올라간다는 것을요. 잘해야 현상 유지예요. 절대로 떨어지는 일 없습니다. 10년을 이 시장에서 일을 해왔는데 떨어진 적을 본 적이 없어요.


큰 틀에서는 건축이지만 세부적으로 들어가 보면 유통구조를 띄고 있어요. 건자재들은 모두 유통 마진을 포함하여 대리점에서 판매하거든요. 기름값과 같아요. 전 세계적으로 기름값이 떨어져도 우리가 현실적으로 와닿는 부분은 미미하게 떨어져요. 그 이유는 유통구조 때문입니다. 건축도 엄청 얽혀 있는 유통구조망 때문에 쉽게 떨어지지 않아요. 그런데 신기하게 올라갈 때는 쭉 올라간다는 말도 안 되는 현실.


저희들 홈트리오의 시그니처 디자인이 존재하죠. 그것은 바로 화이트톤 외벽에 박공지붕이 고즈넉하게 올라가고, 블랙 프레임의 큰 통장 디자인. 많은 분들이 '원래부터 이렇게 집이 생겼었나(?)'라고 생각하지만 10년 전 주택 디자인들 봐보세요. 통나무 주택 및 황토주택, 조립식 패널 주택 등 정말 말도 안 되는 디자인의 시장이었습니다.


고퀄리티의 가성비 높은 집을 짓고자 한 저희들이 하나씩 개선해 나가면서 목조주택 시장을 형성해 나갔으며, 그 결과 올드한 느낌을 지우고 젊은 느낌의 감성을 가진 전원주택을 탄생시킬 수 있었던 것 같아요.


이번 주택도 저희 홈트리오의 특색을 가장 잘 입고 태어난 주택이라 평 할 수 있을 것 같습니다.


평면이 좀 독특해요. 솔직히 저희들의 주택들의 도면이 타 회사에 비해 많이 유니크하다 할 수 있습니다. 기성화 된 느낌을 벗어나고 건축주님만의 집을 짓고자 설계 때 많이 노력하거든요. 그 생각과 마음이 집에 담겨서 탄생하는 것 같습니다.


넓은 거실과 주방, 그런데 메인 주방이 안에 숨겨져 있어요. 식당 공간을 거실과 연계하고 주방을 안쪽으로 숨겨주면서, 손님을 맞이했을 때 깔끔한 오픈 공간을 만날 수 있게 설계하였습니다. 거실, TV 보는 공간, 식당, 주방을 한 공간의 느낌이지만 시각적으로 차단되게 계획하여, 각 공간의 영역성을 지켜주되 시각적으로 답답함이 없는 공간을 만들고자 노력했습니다.


아! 하나가 빠졌네요. 거실 위의 오픈 천장. 압도적인 개방감. 전원주택만이 가질 수 있는 시각적 개방감을 극대화시켜주었으며, 거실 전면부의 통창을 통해 앞마당과의 동선적 연계성도 확보해 주었습니다.


SPEC

공법 : 경량목구조

설계, 시공 : 홈트리오(주) / 상담문의 : 1522-4279

ARTIST : 건축가 정다운, 임성재, 이동혁

홈페이지 : http://hometrio.kr/

지붕마감재 : 아스팔트슁글 / 외벽 마감재 : 스타코플렉스 / 포인트자재 : 파벽돌

실내벽마감재 : 실크벽지 / 실내바닥마감재 : 이건 강마루

창호재 : 이건 알루미늄 3중 시스템창호

건축면적 : 138.30㎡(1층 : 100.34㎡, 2층 : 37.96㎡)

예상 총 건축비 : 312,000,000원(부가세 포함, 산재보험료 포함 / 설계비, 인허가비, 구조계산 설계비 별도)

설계비 : 10,500,000원(부가세 포함) / 인허가비 : 4,200,000원(부가세 포함)

구조계산 설계비 : 4,200,000원(부가세 포함) / 인테리어 설계비 : 6,300,000원(부가세 포함)

*건축비 외 부대비용 : 대지구입비, 가구(싱크대, 신발장, 붙박이장), 기반시설 인입(수도, 전기, 가스 등), 토목공사, 조경비 등


HC071-라이트룸수정-4731.jpg (좌측부터) 이동혁 건축가, 임성재 건축가, 정다운 건축가


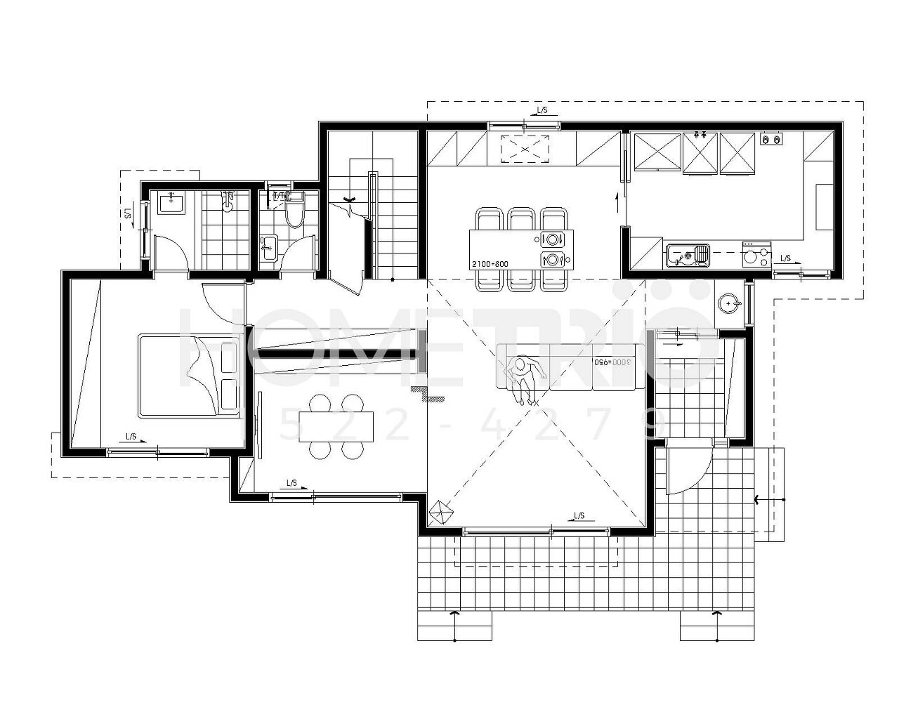
Floor Plan

1f.jpg 1층 평면도
2f.jpg 2층 평면도


이동혁 건축가 : 깨끗함이 전해주는 맑음의 기운. 집을 설계하고 지을 때도 항상 생각하는 것이, 이 집의 첫인상이 어둡거나 음침한 것이 아닌 밝고 경쾌한 기운이었으면 한다는 것입니다. 새 집인데 오래된 느낌이나 음습한 느낌이면 좋겠어요? 당연히 안 좋죠. 집은 밝은 분위기에 항상 웃음이 끊이지 않는 그러한 집으로 탄생해야 한다는 것이 저의 지론입니다. 그래서 항상 외벽톤을 밝은 느낌으로 색상을 정합니다. 포인트 파벽돌이라고 해서 어두운 느낌이라기보다는 클래식함이 공존하는 따뜻한 주황빛이라고 생각하시면 더 좋을 것 같습니다. 창문에 대해서 말들이 많아요. 춥다고 창 작게 할 거면 전원주택에 대한 매력을 전혀 모르시는 것입니다. 전원주택의 매력 첫 번째는 개방감이고, 두 번째도 개방감이고, 세 번째도 개방감입니다. 답답하게 살려고 아파트 벗어나 전원주택으로 온 것이 아니라는 것을 꼭 기억하시고 설계하세요.

정다운 건축가 : 아스팔트 슁글 지붕 마감재와 스타코플렉스 외벽 마감재는 가성비 있는 자재일 뿐 나쁜 자재가 아닙니다. 타 자재 대비 저렴하다고 성능까지 안 좋을 것이라는 인식들이 있는데 절대 그렇지 않습니다. 이미 검증된 자재들이기 때문에 걱정 말고 사용하셔도 되세요. 흔히 보인다고 해서 평범하다고 생각들 하시는데, 많이 사용했다는 뜻은 다시 말해 검증되고 건축주님들에게 인정받은 제품이라고 생각해주시면 좋을 것 같습니다. 상담하다 보면 외장재 부분에 대해서 오해를 하고 계신 것들이 많으세요. 비싸다고 다 좋은 것은 아니에요. 사용 목적과 디자인적인 부분에 따라 결정해야 하는 외장재가 달라집니다. 무조건 비싼 게 좋은 거다라는 인식은 버리셔도 무방합니다.

임성재 건축가 : 4인 가족 주택 중 가장 실내 공간이 베스트라고 생각합니다. 각 공간의 목적성이 명확하고, 어설프게 공간을 구분한 것이 아닌 확실하게 면적을 배정해 주었습니다. 그러다 보니 현관을 진입했을 때 느끼는 가시성이 엄청 넓어요. 거실과 주방을 하나의 원 스페이스로 구성하고, 오픈 천장을 옵션으로 넣어준 뒤 거기에 데크까지 이어지는 시각을 열어주어 압도적인 개방감을 만들었습니다. 다용도실은 이번 주택처럼 확실하게 구성하면 좋습니다. 어차피 요리를 해야 하는 공간이라면 어설프게 1~2평은 너무 작아요. 냉장고 및 메인주방의 역할까지 할 수 있도록 확실히 넓혀 주는 것이 중요합니다.


<외관>

HC073-7615(h).jpg
HC073-7852(h).jpg
HC073-7860(h).jpg

<현관>

HC073-7714(h).jpg
HC073-7717(h).jpg
HC073-7843(h).jpg
HC073-7845(h).jpg
HC073-7847(h).jpg
HC073-7848(h).jpg

<거실>

HC073-7718(h).jpg
HC073-7721(h).jpg
HC073-7723(h).jpg
HC073-7724(h).jpg
HC073-7726(h).jpg
HC073-7728(h).jpg
HC073-7730(h).jpg
HC073-7733(h).jpg
HC073-7734(h).jpg
HC073-7737(h).jpg
HC073-7739(h).jpg
HC073-7740(h).jpg
HC073-7747(h).jpg
HC073-7799(h).jpg
HC073-7801(h).jpg
HC073-7803(h).jpg
HC073-7808(h).jpg
HC073-7809(h).jpg
HC073-7811(h).jpg
HC073-7815(h).jpg
HC073-7817(h).jpg

<주방>

HC073-7742(h).jpg
HC073-7744(h).jpg
HC073-7749(h).jpg
HC073-7750(h).jpg
HC073-7752(h).jpg
HC073-7754(h).jpg
HC073-7757(h).jpg
HC073-7759(h).jpg
HC073-7761(h).jpg
HC073-7763(h).jpg
HC073-7764(h).jpg
HC073-7778(h).jpg
HC073-7780(h).jpg
HC073-7783(h).jpg
HC073-7785(h).jpg
HC073-7813(h).jpg

<다용도실>

HC073-7766(h).jpg
HC073-7769(h).jpg
HC073-7770(h).jpg
HC073-7772(h).jpg
HC073-7774(h).jpg
HC073-7777(h).jpg
HC073-7786(h).jpg
HC073-7790(h).jpg
HC073-7793(h).jpg
HC073-7794(h).jpg

<1층 화장실>

HC073-7796(h).jpg
HC073-7797(h).jpg
HC073-7798(h).jpg

<1층 안방>

HC073-7820(h).jpg
HC073-7823(h).jpg
HC073-7825(h).jpg
HC073-7826(h).jpg
HC073-7828(h).jpg
HC073-7831(h).jpg
HC073-7832(h).jpg
HC073-7834(h).jpg

<1층방 화장실>

HC073-7836(h).jpg
HC073-7837(h).jpg
HC073-7838(h).jpg
HC073-7839(h).jpg
HC073-7840(h).jpg
HC073-7841(h).jpg
HC073-7842(h).jpg

<계단실>

HC073-7684(h).jpg
HC073-7685(h).jpg
HC073-7706(h).jpg
HC073-7708(h).jpg
HC073-7709(h).jpg
HC073-7711(h).jpg
HC073-7712(h).jpg

<2층 복도>

HC073-7664(h).jpg
HC073-7665(h).jpg
HC073-7667(h).jpg

<2층 방1>

HC073-7669(h).jpg
HC073-7673(h).jpg
HC073-7675(h).jpg
HC073-7677(h).jpg
HC073-76729(h).jpg

<2층 방2>

HC073-7687(h).jpg
HC073-7689(h).jpg
HC073-7691(h).jpg
HC073-7693(h).jpg
HC073-7696(h).jpg

<2층 화장실>

HC073-7697(h).jpg
HC073-7698(h).jpg
HC073-7699(h).jpg
HC073-7700(h).jpg
HC073-7701(h).jpg
HC073-7703(h).jpg



홈트리오 조직 계열도.jpg
프로필 통합본.jpg

[집이라는 본질적인 가치에 집중하다.]

Architecture Team : 홈트리오(주)

대표번호 : 1522-4279

홈페이지 : http://hometrio.kr/

KakaoTalk_20191210_164551850.jpg
KakaoTalk_20200521_090546896.jpg
img.jpg


keyword